Habiter une maison

Maison XL2

95210 Saint-Gratien - Val d'Oise - Ile de France

BÂTIMENT / LOGEMENT

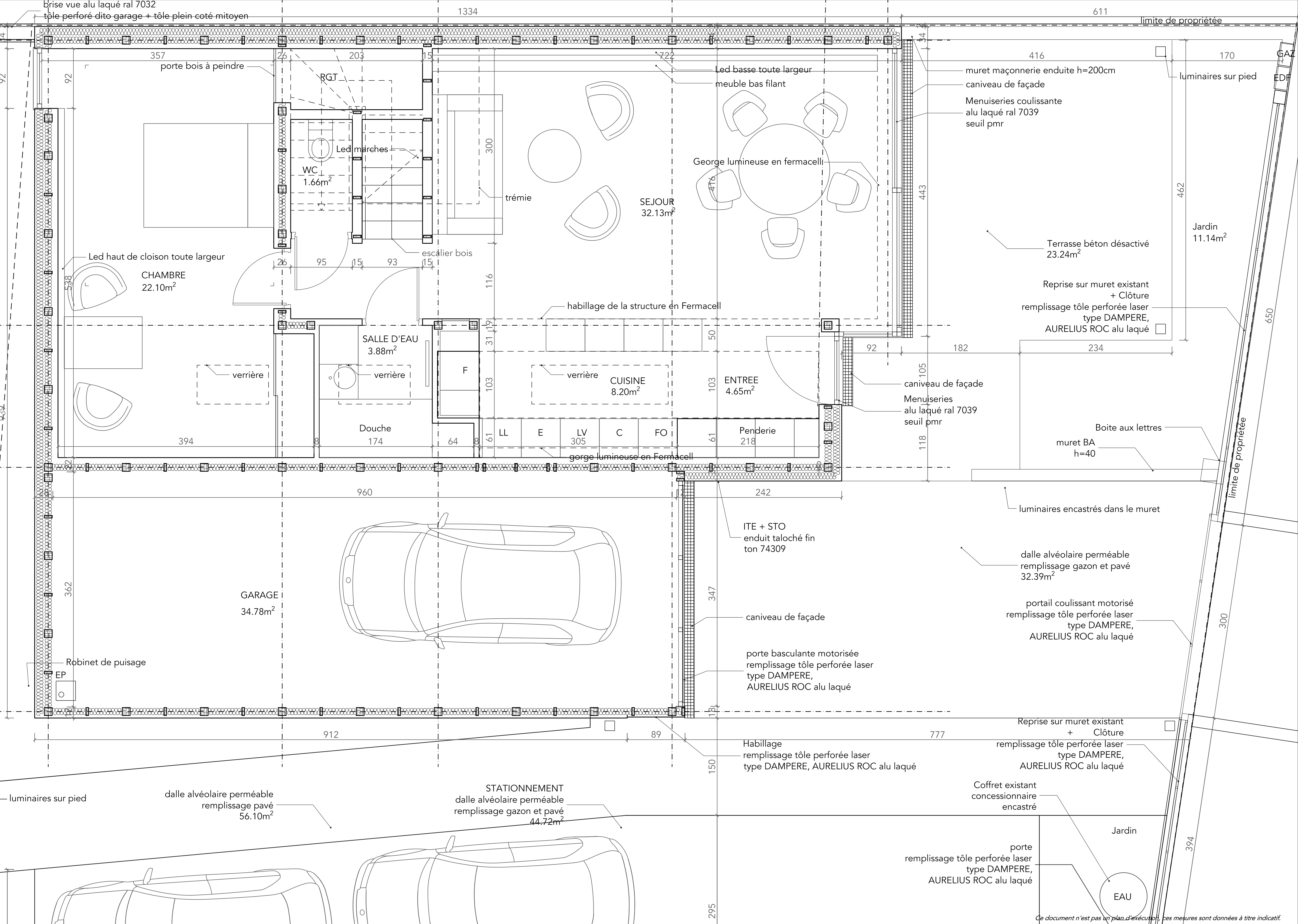
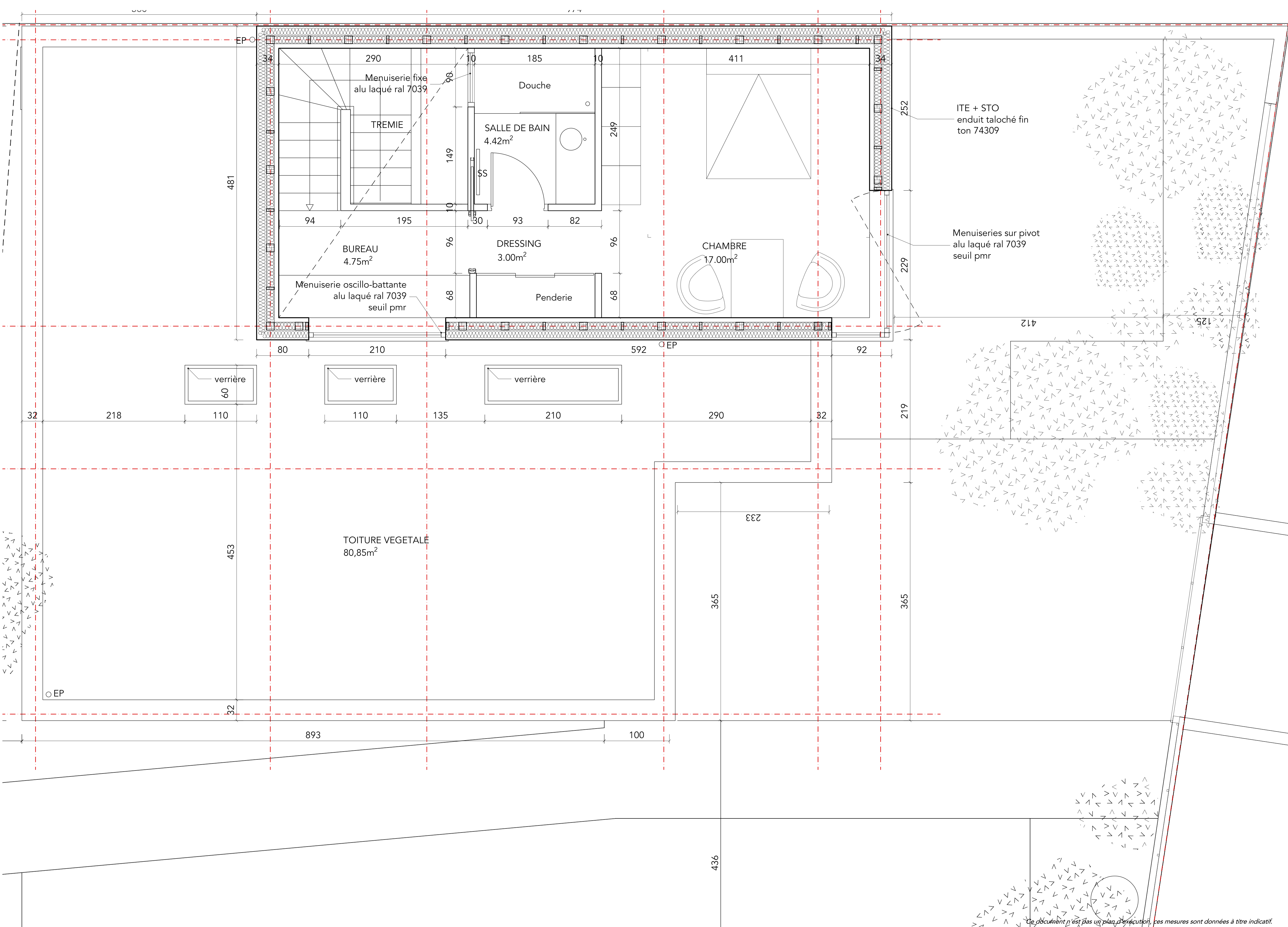
Façade ordonnancée sur l’avenue piétonne et jardins suspendus coté résidence. Le confort d’été est obtenu par une isolation performante (300mm polyuréthane) et un couvert végétal (15cm de substrat), qui confère au bâtiment une inertie entre le jour et la nuit, ainsi que par une ventilation naturelle traversante est/ouest. L’approche bioclimatique résonne dans l’épannelage général, l’orientation et les découpes des ouvertures zénithales répondent à la course du soleil pour un apport solaire contrôlé des espaces intérieurs.

Catégorie Bâtiment / logement
Numéro de projet6771
Date de candidature14/02/2022

Bâtiment / logement

Détail projet

Typologie de bâtiment : Neuf
Type de bâtiment : Logement individuel inférieur 120 m²
Année de livraison : 2021
Surface totale du bâtiment en m² : 96
Coût total en € HT (hors foncier, hors VRD, hors honoraires) : 465217
Volume lot bois n°1 - m³ : 17
Bois Français : non
Isolations biosourcées (préciser dans le descriptif technique) : oui
Matériaux géosourcés (préciser dans le descriptif technique) : non
Finitions intéreures biosourcées ou géosourcées (préciser dans le descriptif technique) : oui

Structure bois du bâtiment

Structure verticale :

ProduitEssenceProvenances (lieu de croissance du bois)Traitements de préservationMarque et certification produit
Poteau poutreÉpicéa communEuropeTraitement Classe 2 (trempage)

Structure horizontale :

ProduitEssenceProvenances (lieu de croissance du bois)Traitements de préservationMarque et certification produit
Solivage traditionnelÉpicéa communEuropeTraitement Classe 2 (trempage)

Charpente :

ProduitEssenceProvenances (lieu de croissance du bois)Traitements de préservationMarque et certification produit
Charpente bois lamellé-colléÉpicéa communEuropeTraitement Classe 2 (trempage)

Revêtement bois extérieur

Revêtement minéral :

Produit
Enduit chaux

Autre revêtement métallique :

Produit
Alu

Menuiserie intérieure et extérieure

Isolation des murs

Isolation entre-montant des murs :

Produit
Laine de bois souple
Epaisseur (mm) Isolation entre-montant des murs : 120

Isolation extérieure des murs :

Produit
Polystyrène
Epaisseur (mm) Isolation extérieure des murs : 120

Isolation de la toiture

Epaisseur (mm) Isolation entre-montant de la toiture : 100
Epaisseur (mm) Isolation extérieure de la toiture : 300

Approche environnementale : Une superstructure réalisée en quasi totalité avec des matériaux biosourcés et/ou recyclables. Une rétention des eaux pluviales avec 75% des surfaces de toiture végétalisées. Une densification urbaine contrôlée dans un quartier résidentiel du centre-ville de Saint-Gratien (95), le projet propose un habitat de densité intermédiaire avec deux logements sur la parcelle.

Descriptif technique : Structure verticale + Système poteau-poutre en bois LC Doublage intérieur en BA13 Membrane pare-vapeur Isolation laine de bois souple ITE + Enduit minéral Structure horizontale Toiture terrasse + végétalisation (15cm) Étanchéité Bicouche Plancher de l’étage en bois + parquet PEFC (Gestion forestière durable) FSC (Gestion forestière responsable) NF Portes résistant au feu en bois NF Vantaux de portes planes NF Contreplaqués (CTBX - CTBC) NF Parquets Marquage CE

Chauffage au Bois : non
Données déclaratives

Acteurs du projet

Maître d'ouvrage (1)

Maître d'ouvrage - Particuliers

particulier (x)

Etudes et ingénieries (2)

Maître d'œuvre - Architecte mandataire

TEISSEIRE Ken (92)

Maître d’œuvre - Architecte associé

Teisseire Hélène architecte (92)

Entreprises des lots bois (1)

Constructeur bois

ECOBOIS (95)




* : L'entreprise n'est plus active
Retour à la liste