Réhabiliter un équipement
Réhabiliter un équipement

Réhabilitation architecturale et énergétique du bâtiment "Luc HOFFMANN"

13200 ARLES - Bouches du rhône - Provence Alpes Côte d'Azur

BÂTIMENT / LOGEMENT

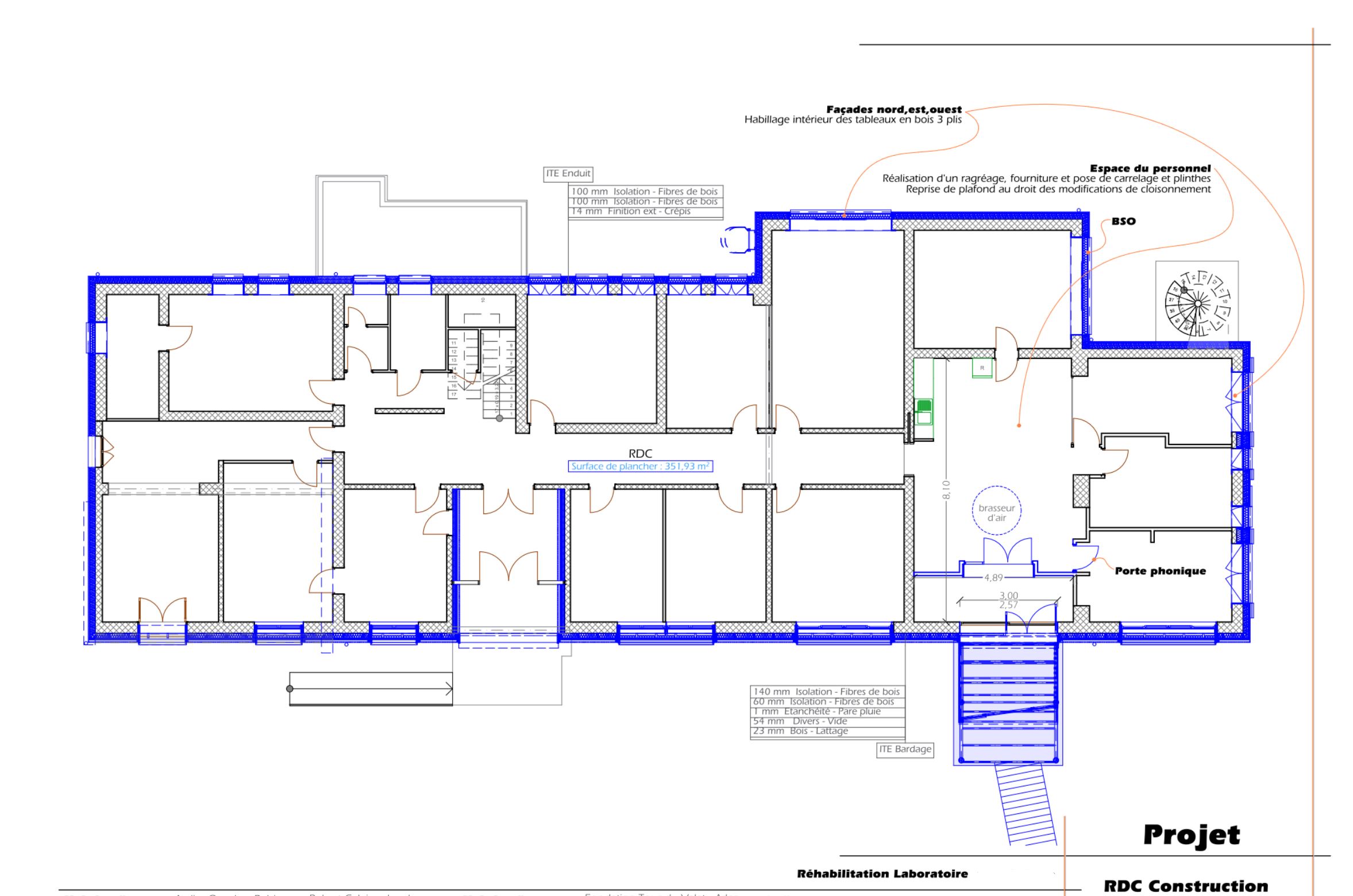
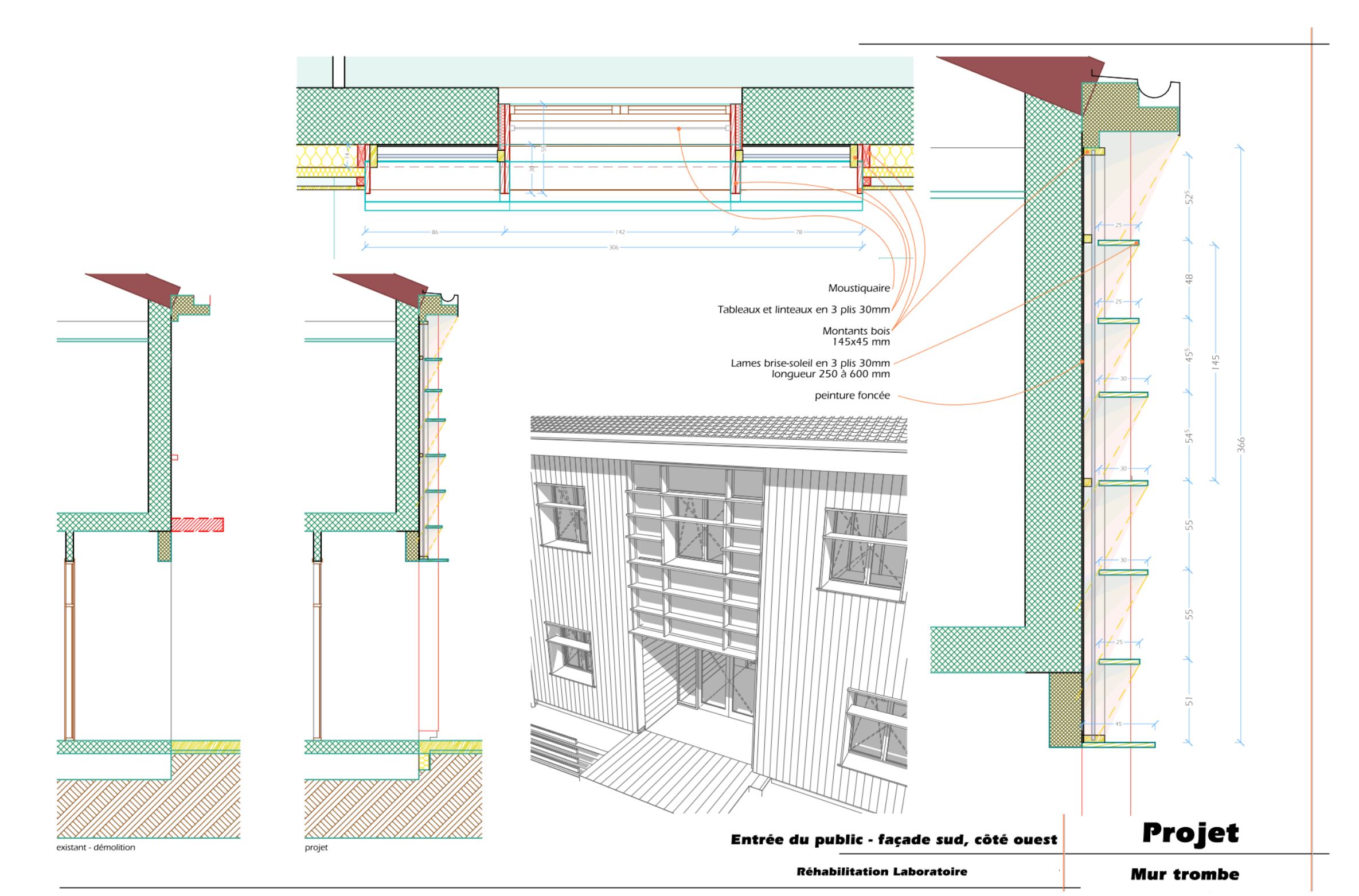
Approche globale pour le confort thermique des usagers. Chauffage sur réseau de chaleur à plaquettes forestière. Rafraichissement par conservation de l'inertie à l'intérieur, installation de baie à ventelles dans les portes de circulation intérieure pour une sur ventilation nocturne grâce aux menuiseries en oscillo-battant. Installation de brasseur d'air. ITE sous enduit de 200mm sur les façades Est, Ouest et Nord. Brise soleil orientable sur l'Est. ITE en caissons sous bardage en balles de riz au Sud. Brise soleil en bois fixe au sud + mur trombe. Salle de réunion extérieure en bois-roseaux.

Catégorie Bâtiment / logement
Numéro de projet6780
Adresse du projet Fondation la Tour du Valat
Le Sambuc
13200 ARLES
Date de candidature08/03/2023

Bâtiment / logement

Détail projet

Typologie de bâtiment : Rénovation / Réhabilitation
Type de bâtiment : Enseignement ou éducation,Service institutionnel et public
Année de livraison : 2021
Surface totale du bâtiment en m² : 672
Dont extension / surélévation en m² : 20
Coût total en € HT (hors foncier, hors VRD, hors honoraires) : 352000
Lot bois n°1 concerné : Charpente bois
Volume lot bois n°1 - m³ : 16
Coût du lot bois n°1 - € HT : 1370000
Lot bois n°2 concerné : Menuiserie extérieure bois
Coût du lot bois n°2 - € HT : 143000
Bois Français : non
Matériaux issus du ré-emploi (préciser dans le descriptif technique) : non
Isolations biosourcées (préciser dans le descriptif technique) : oui
Matériaux géosourcés (préciser dans le descriptif technique) : non
Finitions intéreures biosourcées ou géosourcées (préciser dans le descriptif technique) : non

Structure bois du bâtiment

Structure verticale :

ProduitEssenceProvenances (lieu de croissance du bois)Traitements de préservationMarque et certification produit
Panneau ossature boisTempéréFranceTraitement Classe 3a (trempage)Je n'ai pas l'information

Structure horizontale :

ProduitEssenceProvenances (lieu de croissance du bois)Traitements de préservationMarque et certification produit
Solivage traditionnelAucune

Charpente :

ProduitEssenceProvenances (lieu de croissance du bois)Traitements de préservationMarque et certification produit
Charpente historiqueAucune

Revêtement bois extérieur

Revêtement bois ou dérivés :

ProduitEssenceProvenances (lieu de croissance du bois)Marque et certification produitFinitionTraitements de préservation
Lame bois massif, Roseau - chaumeFranceJe n'ai pas l'informationLasureAucun traitement

Revêtement minéral :

Produit
Enduit chaux

Menuiserie intérieure et extérieure

Menuiserie extérieure :

ProduitEssenceProvenances (lieu de croissance du bois)Marque et certification produitFinition
Brise soleil bois, Menuiserie boisTempéréFranceJe n'ai pas l'informationPeinture

Isolation des murs

Isolation extérieure des murs :

Produit
Fibre de bois (Panneaux)
Epaisseur (mm) Isolation extérieure des murs : 200

Isolation de la toiture

Epaisseur (mm) Isolation intérieure de la toiture : 380

Approche environnementale : Réduction des consommations x5 Réduction d'émission de gaz à effet de serre x6 Utilisation de matériaux biosourcés. Utilisation d'isolants locaux tels la balles de riz en caissons sur la façade sud. Utilisation de parement (toiture et façades) en roseau local sur la salle de réunion extérieure. Appel aux brise soleil fixes en façade Sud et orientables en façade Est. Changement des menuiseries aluminium simple vitrage en menuiseries bois double-vitrage osillo-battant. Isolation des pieds de façades jusqu'aux fondations par des panneaux de type periboard 100 mm. Conservation de nid d'oiseaux.

Performance du bâtiment (Cep en kWhep/m²/an) : 38
Chauffage au Bois : oui
Appareil de chauffage au bois : Chaudière
Données déclaratives

Acteurs du projet

Maître d'ouvrage (1)

Autres

La fondation La Tour du Valat (13)

Etudes et ingénieries (2)

Maître d'œuvre - Architecte mandataire

Atelier Ostraka (84)

Bureau d'études thermique

Robert Celaire (13)

Entreprises des lots bois (4)

Charpentier

INDIGO BATIMENT (84)

Menuisier

Pacapose menuiserie (84)

Constructeur bois

PRO-NATURA (ATELIER VILLA NATURA - VILLA NATURA- AVN) (30)

Autre lot de la construction (en lien avec le bois)

Les Toits de Camargue (13)




* : L'entreprise n'est plus active
Retour à la liste