Habiter une maison
Habiter une maison

Face à la Mer

62179 wissant - Pas de Calais - Hauts-de-France
Lauréat régional

BÂTIMENT / LOGEMENT

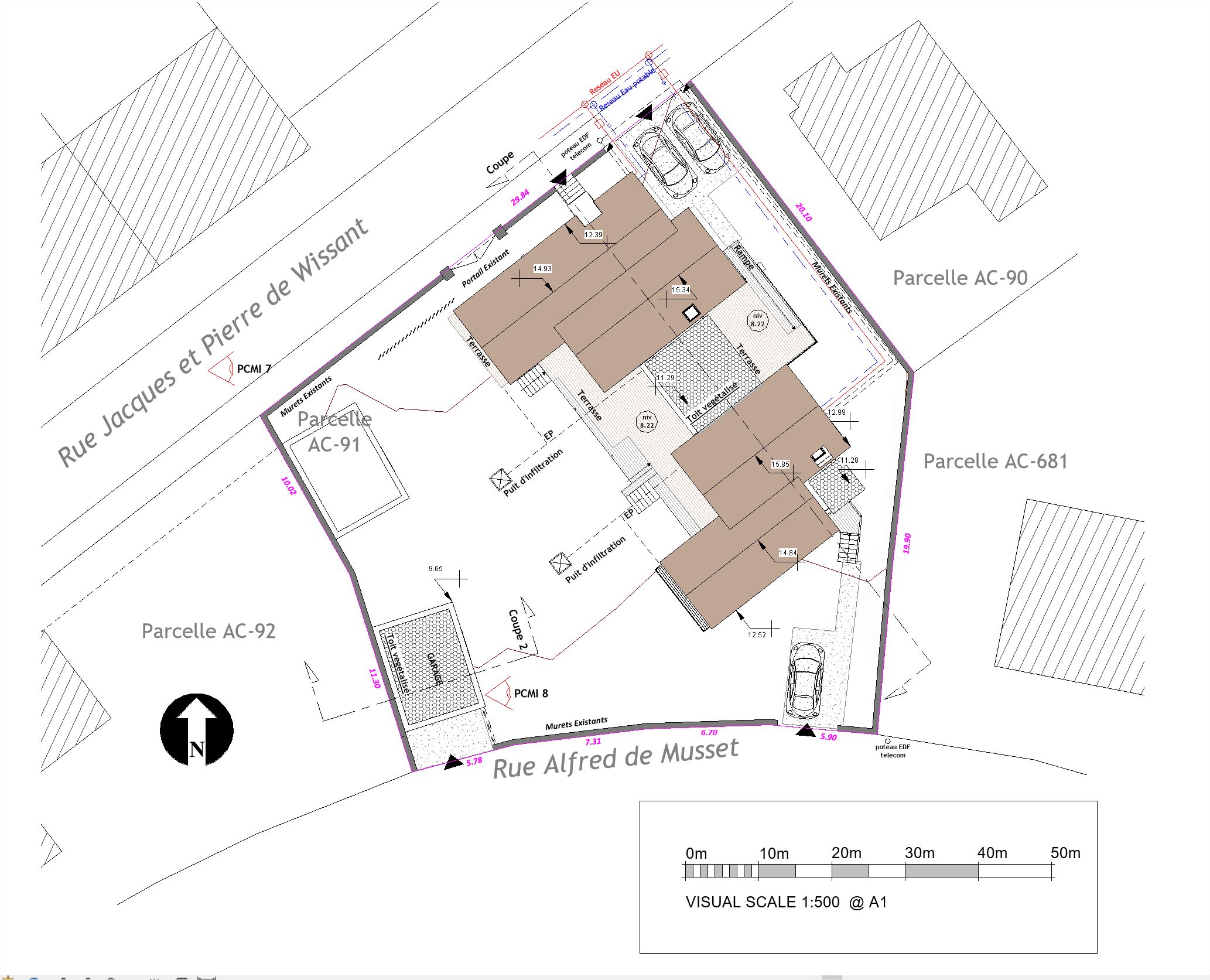
Création d'une habitation comportant 2 maisons familiales (Parents/enfants/petits enfants), relié par une salle commune. Le projet s'insére en 2em rang sur un front de mer, en zone sensible (PPRL), avec vague centenaire et en zone patrimoine ( GRAND SITE DE FRANCE LES DEUX-CAPS). L'implantation permet une protection au nord du projet et une ouverture vers le jardin, avec quelques vues mer. Ses fondations et sa base sur pilotis, permet de répondre à des conditions administratives fortes (Zone ABF - site des grands caps - Zone PPRI/PPRL)

Catégorie Bâtiment / logement
Numéro de projet6961
Date de candidature04/03/2022
Récompensemention

Bâtiment / logement

Détail projet

Typologie de bâtiment : Neuf
Type de bâtiment : Logement individuel supérieur à 120 m²
Année de livraison : 2021
Surface totale du bâtiment en m² : 236
Coût total en € HT (hors foncier, hors VRD, hors honoraires) : 700000
Coût du lot bois n°1 - € HT : 410191.37
Bois Français : non
Isolations biosourcées (préciser dans le descriptif technique) : oui
Matériaux géosourcés (préciser dans le descriptif technique) : non
Finitions intéreures biosourcées ou géosourcées (préciser dans le descriptif technique) : oui

Structure bois du bâtiment

Structure verticale :

ProduitEssenceProvenances (lieu de croissance du bois)Traitements de préservationMarque et certification produit
Panneau de bois massif (CLT collé ou CLT cloué)Épicéa communEuropeAucun traitement

Structure horizontale :

ProduitEssenceProvenances (lieu de croissance du bois)Traitements de préservationMarque et certification produit
Panneau de bois massif (CLT collé ou CLT cloué), Poutre en I ou mixteÉpicéa communEuropeAucun traitement

Charpente :

ProduitEssenceProvenances (lieu de croissance du bois)Traitements de préservationMarque et certification produit
Caisson de toiture, Panneau massifÉpicéa communEuropeAucun traitement

Revêtement bois extérieur

Revêtement minéral :

Produit
Bardeau terre cuite
Autres

Menuiserie intérieure et extérieure

Isolation des murs

Isolation extérieure des murs :

Produit
Laine de bois souple
Epaisseur (mm) Isolation extérieure des murs : 200

Isolation de la toiture

Epaisseur (mm) Isolation extérieure de la toiture : 280

Approche environnementale : Maison en CLT (finition intérieur) isolé en 200 mm extérieur de laine de bois, et du triple vitrage. En RT2012 -30%, avec double VMC DF et ECS thermodynamique pour chaque maison (2) Son positionnement sur pilotis, permet un effacement hydrologique du projet (aucun terrain imperméabilisé)

Descriptif technique : Maison de ville RT2012 -30%, avec poêle à bois, VMC DF Aldes + ECS Thermodyn., Panneau CLT Woodeum, Bardage Panneau Minéral Eternit, sur pilotis (PPRL) avec Dalle Bois, Toiture en tuile plate Rouge Koramic, et étanchéité Bi-couche élastomère sur polyuréthane.

Performance du bâtiment (Cep en kWhep/m²/an) : 38
Chauffage au Bois : oui
Appareil de chauffage au bois : Poële/insert
Certifications, labels et marques bâtiment : Aucun
Données déclaratives

Acteurs du projet

Maître d'ouvrage (1)

Maître d'ouvrage - Particuliers

particulier (x)

Etudes et ingénieries (3)

Maître d'œuvre - Architecte mandataire

agence BENC (62)

Bureau d'études structure bois

Etudes Bois du Barrois (55) *

Bureau d'études thermique

OPTIMISATION CONSTRUCTION RENOVATION (O.C.R.) (59)

Entreprises des lots bois (1)

Charpentier

RETAUX STRUCTURES BOIS (80)

Fournisseurs du bois (1)

Industriel

AGROP NOVA A.S. (Novatop) (CZ)




* : L'entreprise n'est plus active
Retour à la liste