Habiter ensemble
Habiter ensemble

Trois logements en Pin Laricio

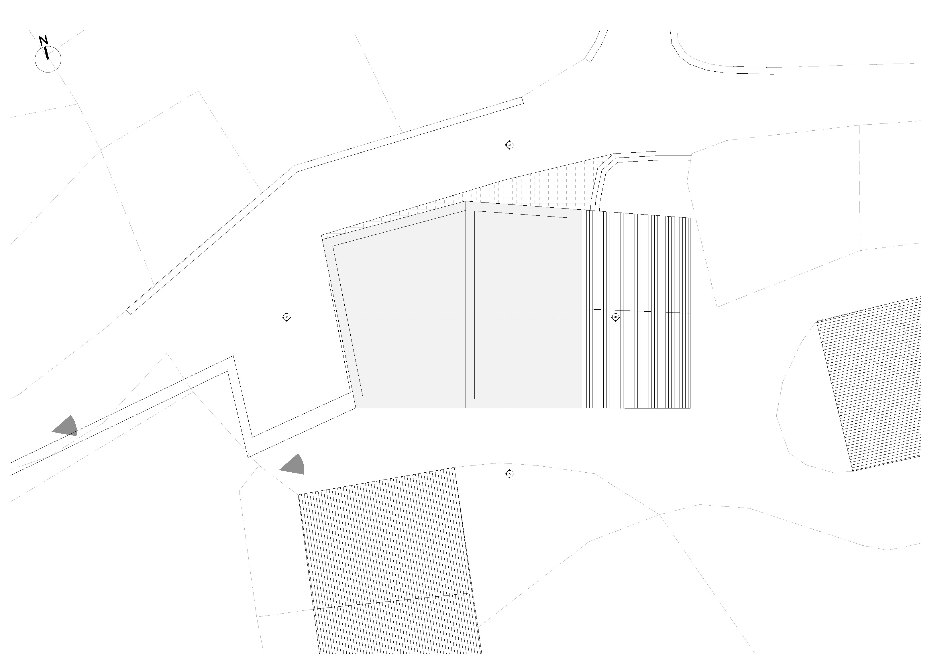
20126 Cristinacce
Lauréat national

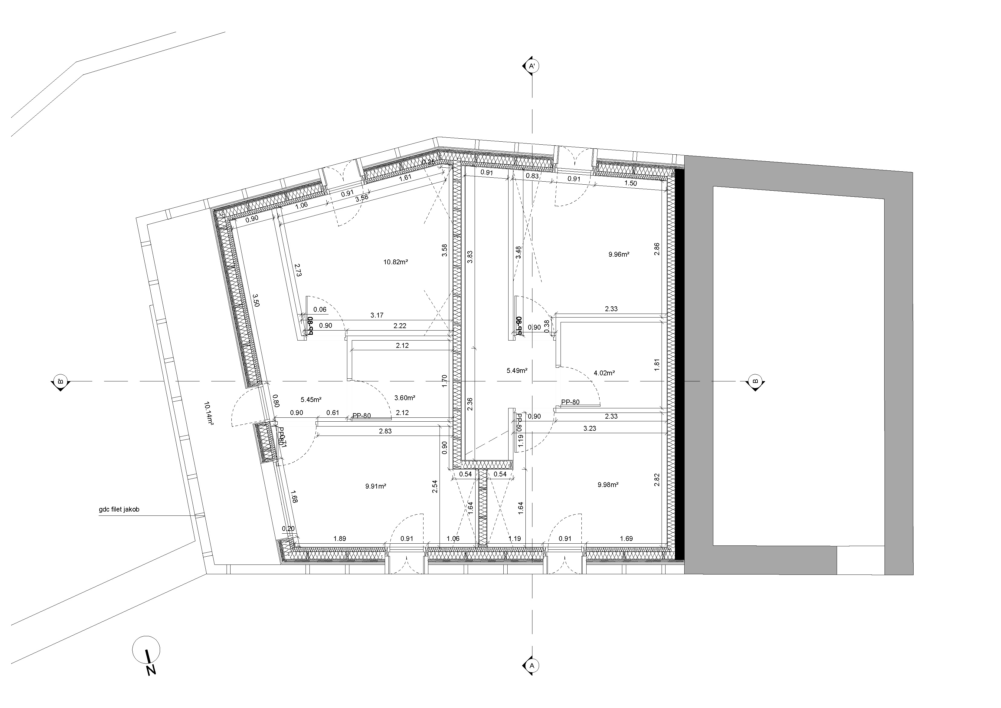
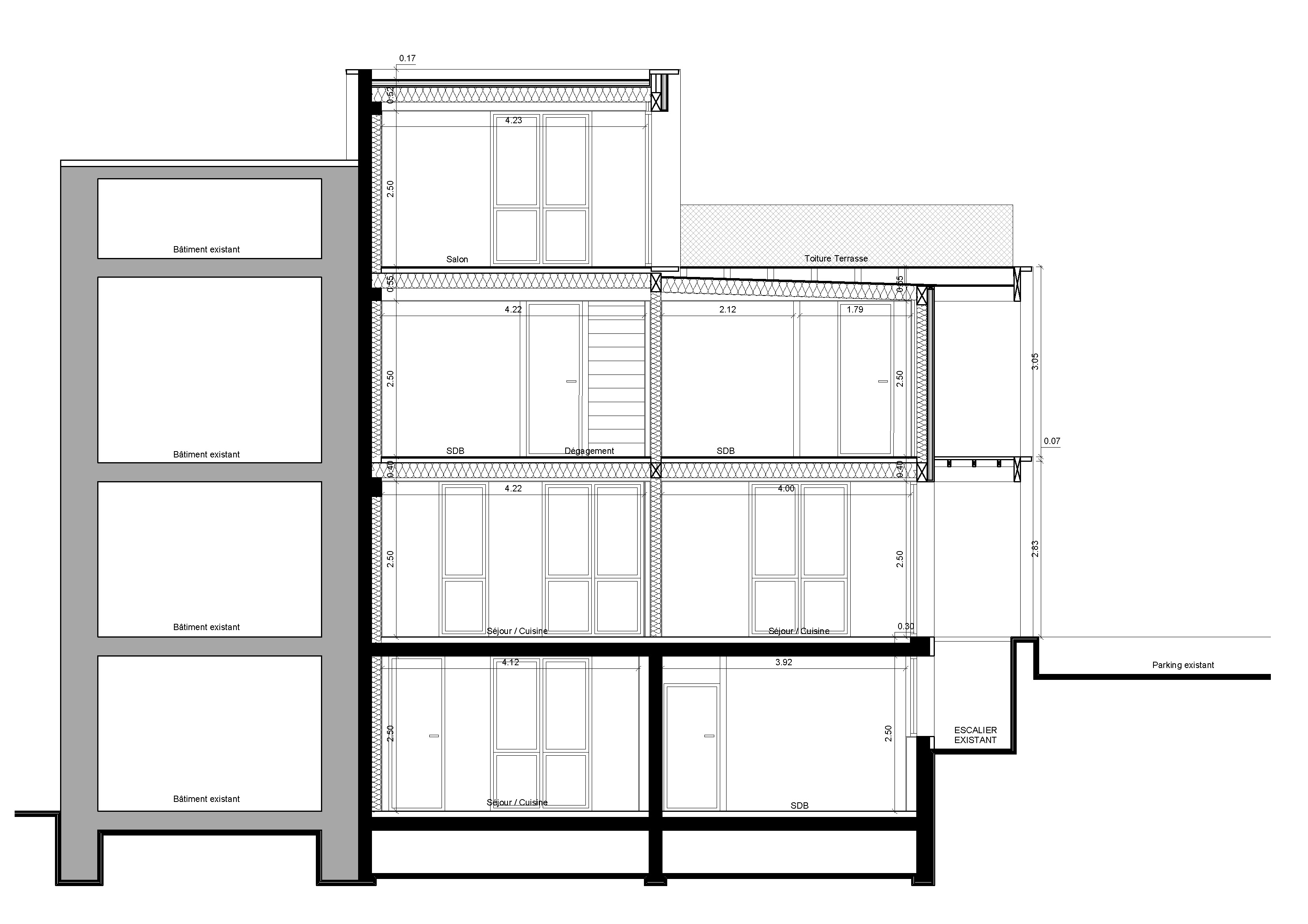
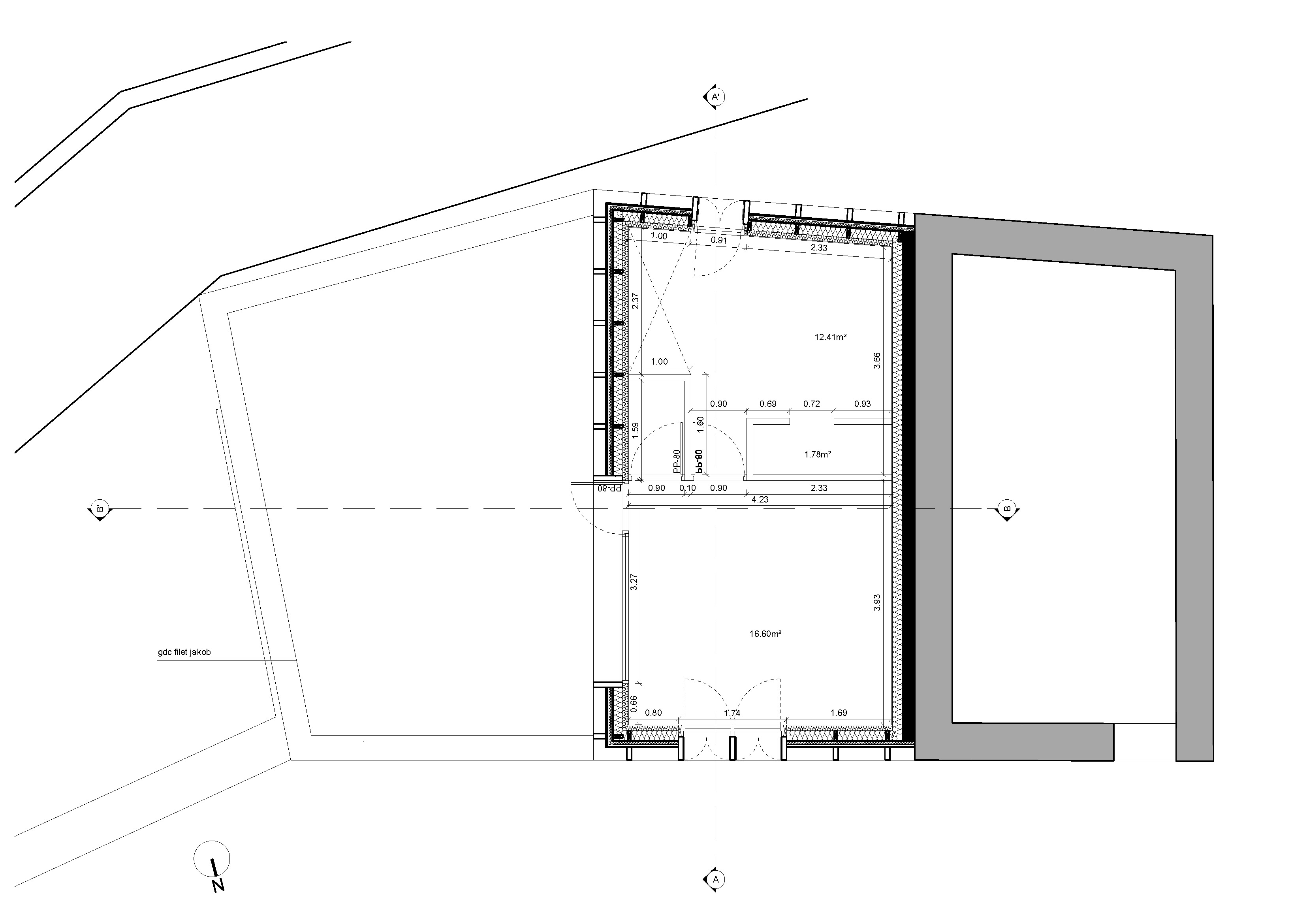
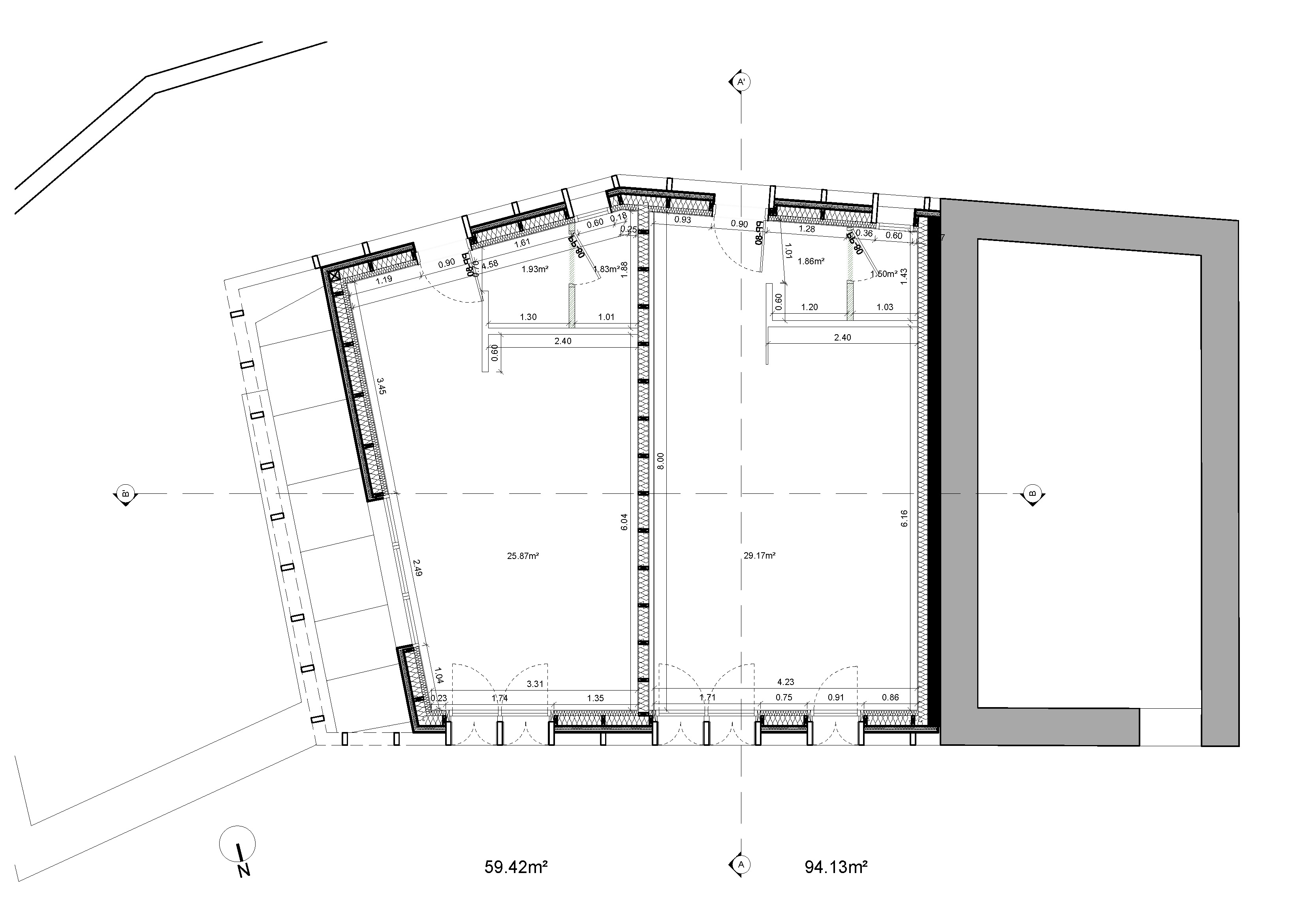
BÂTIMENT / LOGEMENT

Cristinacce est un village granitique. Son architecture se dessine par des bâtiments massifs s’érigeant au travers d’une très grande simplicité volumétrique immergés dans un paysage naturel. Inscrit dans cette architecture minérale et monolithique, le bâtiment en bois leur emprunte cette vérité architecturale et constructive exprimant la structure, les forces et descentes des charges. De la même manière où l’architecture vernaculaire en pierre nous permet de lire les chaînages d’angles, les linteaux, les encadrements de baies, la structure bois y est rendu visible en façade.

Catégorie Bâtiment / logement
Numéro de projet6993
Adresse du projet Cristinacce
20126 Cristinacce
Date de candidature07/03/2022
Récompense1er prix

Bâtiment / logement

Détail projet

Typologie de bâtiment : Neuf
Type de bâtiment : Logement collectif
Année de livraison : 2021
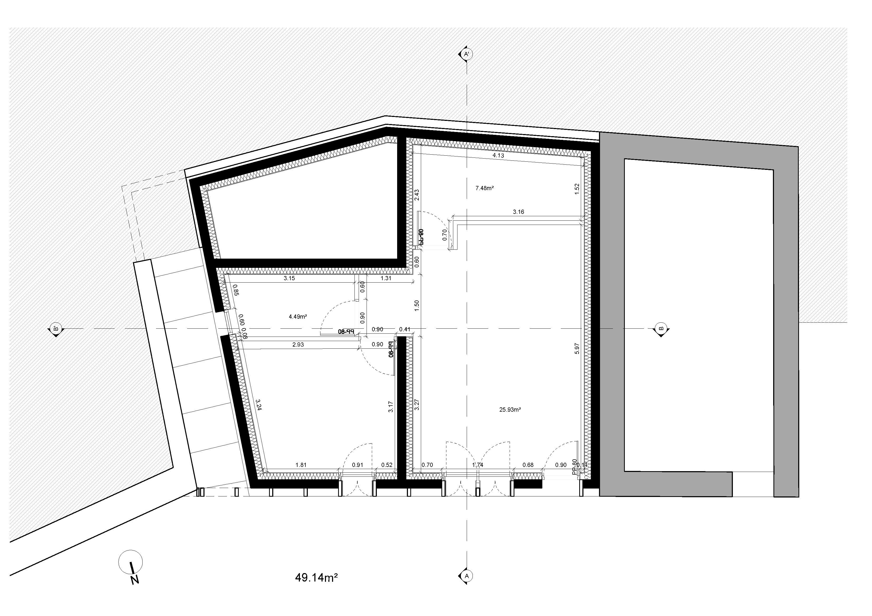
Surface totale du bâtiment en m² : 280
Coût total en € HT (hors foncier, hors VRD, hors honoraires) : 581000
Volume lot bois n°1 - m³ : 37.1
Coût du lot bois n°1 - € HT : 153591.44
Volume lot bois n°2 - m³ : 2.7
Coût du lot bois n°2 - € HT : 9992
Bois Français : oui
Matériaux issus du ré-emploi (préciser dans le descriptif technique) : non
Isolations biosourcées (préciser dans le descriptif technique) : oui
Matériaux géosourcés (préciser dans le descriptif technique) : non
Finitions intéreures biosourcées ou géosourcées (préciser dans le descriptif technique) : oui

Structure bois du bâtiment

Structure verticale :

ProduitEssenceProvenances (lieu de croissance du bois)Traitements de préservationMarque et certification produit
Poteau poutrePin laricioFranceTraitement Classe 3a (trempage)

Structure horizontale :

ProduitEssenceProvenances (lieu de croissance du bois)Traitements de préservationMarque et certification produit
Dalle boisPin laricioFranceTraitement Classe 3a (trempage)

Charpente :

ProduitEssenceProvenances (lieu de croissance du bois)Traitements de préservationMarque et certification produit
Charpente traditionnellePin laricioFranceTraitement Classe 3a (trempage)

Revêtement bois extérieur

Revêtement bois ou dérivés :

ProduitEssenceProvenances (lieu de croissance du bois)Marque et certification produitFinitionTraitements de préservation
Lame bois massifPin laricioFranceAucune finitionTraitement Classe 3a (trempage)

Revêtement minéral :

Produit
Autres

Menuiserie intérieure et extérieure

Menuiserie extérieure :

ProduitEssenceProvenances (lieu de croissance du bois)Marque et certification produitFinition
Menuiserie bois, Volet boisPin laricioFranceHuile pigmentée

Isolation des murs

Isolation intérieure des murs :

Produit
Laine de bois souple
Epaisseur (mm) Isolation intérieure des murs : 50

Isolation entre-montant des murs :

Produit
Laine de bois souple
Epaisseur (mm) Isolation entre-montant des murs : 160

Isolation extérieure des murs :

Produit
Laine de bois souple
Epaisseur (mm) Isolation extérieure des murs : 40

Isolation de la toiture

Epaisseur (mm) Isolation entre-montant de la toiture : 240
Epaisseur (mm) Isolation extérieure de la toiture : 80

Approche environnementale : Dans le but de proposer un projet exemplaire dans la prise en compte des problématiques environnementales et grâce aux solutions mises en place par la maitrise d’œuvre, le projet se veut entièrement constitué d’une structure en pin Laricio et mis en œuvre sur place. Il vise aussi à faire la démonstration de l’importance de l’emploi des matériaux et savoir-faire locaux afin de limiter les dépenses en énergies grises liées à la construction du bâtiment.

Descriptif technique : La réalisation du projet a fait l'objet d'une coupe de bois dans la forêt d’Aitone entièrement exploitée, sciée et charpentée dans un rayon de 80 km. Pour pallier l'absence d'unité de séchage, les procédés constructifs choisis prennent en compte l’utilisation d’un bois séché naturellement n’ayant pas atteint le taux d’humidité exigé par les murs en ossature bois traditionnelle. PEFC (Gestion forestière durable) Maison Haute Performance Energétique

Performance du bâtiment (Cep en kWhep/m²/an) : 65.5
Chauffage au Bois : non
Certifications, labels et marques bâtiment : Bâtiment Bas Carbone (BBCA),Passivhaus
Données déclaratives

Acteurs du projet

Maître d'ouvrage (1)

Maître d'ouvrage - État ou collectivité (locale et territ)

Commune de Cristinacce (20)

Etudes et ingénieries (5)

Maître d'œuvre - Architecte mandataire

ORMA ARCHITETTURA (20)

Bureau d'études structure bois

TECKICEA (25)

Bureau d'études thermique

Solertia Ingenieri (20)

Economiste

Eqotec (20)

Autre intervenant de la construction - bureau de contrôle, AMO, BIM...

Sarl ESBC (20)

Entreprises des lots bois (3)

Charpentier

LES CHARPENTIERS DE LA CORSE (20)

Menuisier

LES CHARPENTIERS DE LA CORSE (20)

Constructeur bois

LES CHARPENTIERS DE LA CORSE (20)

Fournisseurs du bois (1)

Scierie

ALBERTACCE BOIS (20) *

Autres (1)

Photographe

Julien KERDRAON Photographe (13)




* : L'entreprise n'est plus active
Retour à la liste