Habiter une maison
Habiter une maison

TAKI Soler

04227 Vachères - Alpes de haute provence - Provence Alpes Côte d'Azur

BÂTIMENT / LOGEMENT

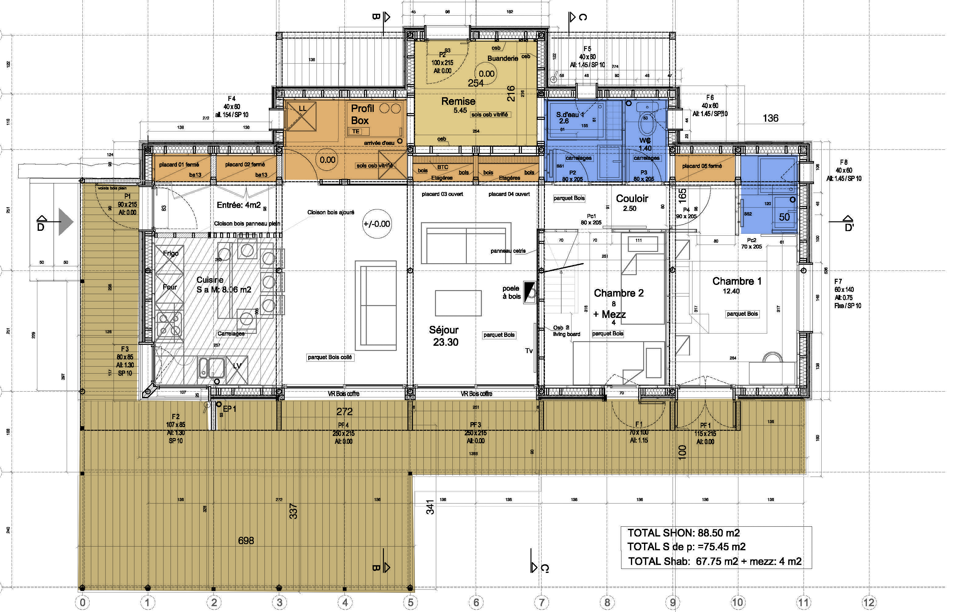
Le TAKI SOLER est le cinquième bâtiment conçu et réalisé avec le module TAKI. Il s’agit d’une maison de vacances de 90 m2 bâtie sur un terrain face à une vue à 30 km dans le petit village de vachères. Voulue comme un havre de paix tout en bois, ce projet est le premier a avoir été réalisé avec tous les sous-ensembles du module préfabriqués en usine.

Catégorie Bâtiment / logement
Numéro de projet6996
Date de candidature07/03/2022

Bâtiment / logement

Détail projet

Typologie de bâtiment : Neuf
Type de bâtiment : Logement individuel inférieur 120 m²
Année de livraison : 2019
Surface totale du bâtiment en m² : 90
Coût total en € HT (hors foncier, hors VRD, hors honoraires) : 228382
Lot bois n°1 concerné : Charpente bois,Bardage bois,ossature bois
Volume lot bois n°1 - m³ : 22
Coût du lot bois n°1 - € HT : 107384
Lot bois n°2 concerné : Menuiserie intérieure bois,Menuiserie extérieure bois
Coût du lot bois n°2 - € HT : 41700
Bois Français : oui
Isolations biosourcées (préciser dans le descriptif technique) : oui
Matériaux géosourcés (préciser dans le descriptif technique) : non
Finitions intéreures biosourcées ou géosourcées (préciser dans le descriptif technique) : oui

Structure bois du bâtiment

Structure verticale :

ProduitEssenceProvenances (lieu de croissance du bois)Traitements de préservationMarque et certification produit
Panneau ossature bois, Poteau poutre
Panneau ossature bois, Poteau poutreÉpicéa communCentre-Val-de-LoireJe n'ai pas l'information

Structure horizontale :

ProduitEssenceProvenances (lieu de croissance du bois)Traitements de préservationMarque et certification produit
Solivage traditionnel
Solivage traditionnelÉpicéa communCentre-Val-de-LoireJe n'ai pas l'information

Charpente :

ProduitEssenceProvenances (lieu de croissance du bois)Traitements de préservationMarque et certification produit
Caisson de toiture, Charpente traditionnelleÉpicéa communCentre-Val-de-LoireJe n'ai pas l'information

Revêtement bois extérieur

Revêtement bois ou dérivés :

ProduitEssenceProvenances (lieu de croissance du bois)Marque et certification produitFinitionTraitements de préservation
Lame bois massifMélèzeProvence-Alpes-Côte-d'AzurAucune finition

Autre revêtement métallique :

Produit
Zinc

Menuiserie intérieure et extérieure

Menuiserie extérieure :

ProduitEssenceProvenances (lieu de croissance du bois)Marque et certification produitFinition
Menuiserie boisMélèzeProvence-Alpes-Côte-d'AzurLasure

Isolation des murs

Isolation intérieure des murs :

Produit
Laine de bois souple

Isolation entre-montant des murs :

Produit
Laine de bois souple
Epaisseur (mm) Isolation entre-montant des murs : 140

Isolation extérieure des murs :

Produit
Fibre de bois (Panneaux)
Epaisseur (mm) Isolation extérieure des murs : 60

Isolation de la toiture

Epaisseur (mm) Isolation entre-montant de la toiture : 300

Approche environnementale : Ce projet est construit selon les préceptes de l'architecture bioclimatique pour bénéficier au maximum des apports solaires passifs et s'inscrit dans la pente naturelle du site en s'ouvrant sur une vue dégagée sur la vallée. Il utilise un maximum de matériaux biosourcés tant dans sa structure en ossature bois que dans ses isolants (laine de bois) ou ses matériaux de finition (parquet, parements bois, brique de terre crue..)

Descriptif technique : Ce projet est construit avec des modules préfabriqués du Concept TAKI. Le Taki est un outil de massification du bâtiment durable reproductible et biosourcé en fin de R et D, avec 7 bâtiments déjà réalisés et bénéficiant d’un soutien de l’Ademe PACA et de la Région Paca pour son développement. Outil constructif optimisé, il permet une conception et une réalisation rapide basées sur une trame en trois versions et une part de sur mesure a chaque fois. Chaque projet TAKI est alors un projet différent, adapté à une demande, un site et un contexte. PEFC (Gestion forestière durable) Bois des Alpes

Chauffage au Bois : oui
Appareil de chauffage au bois : Poële/insert
Certifications, labels et marques bâtiment : E + C -
Données déclaratives

Acteurs du projet

Maître d'ouvrage (1)

Maître d'ouvrage - Particuliers

particulier (x)

Etudes et ingénieries (3)

Maître d'œuvre - Architecte mandataire

SOLARI & ASSOCIES SARL (13)

Bureau d'études structure bois

CALDER (34)

Bureau d'études thermique

SCOP ATHERMIA (13)

Entreprises des lots bois (2)

Charpentier

Alpes Méditerranée Charpente (05)

Menuisier

SAS menuiserie de la Tour (05)




* : L'entreprise n'est plus active
Retour à la liste