Habiter une maison
Habiter une maison

ATELIER ARTISTE

34000 Montpellier - Hérault - Occitanie

BÂTIMENT / LOGEMENT

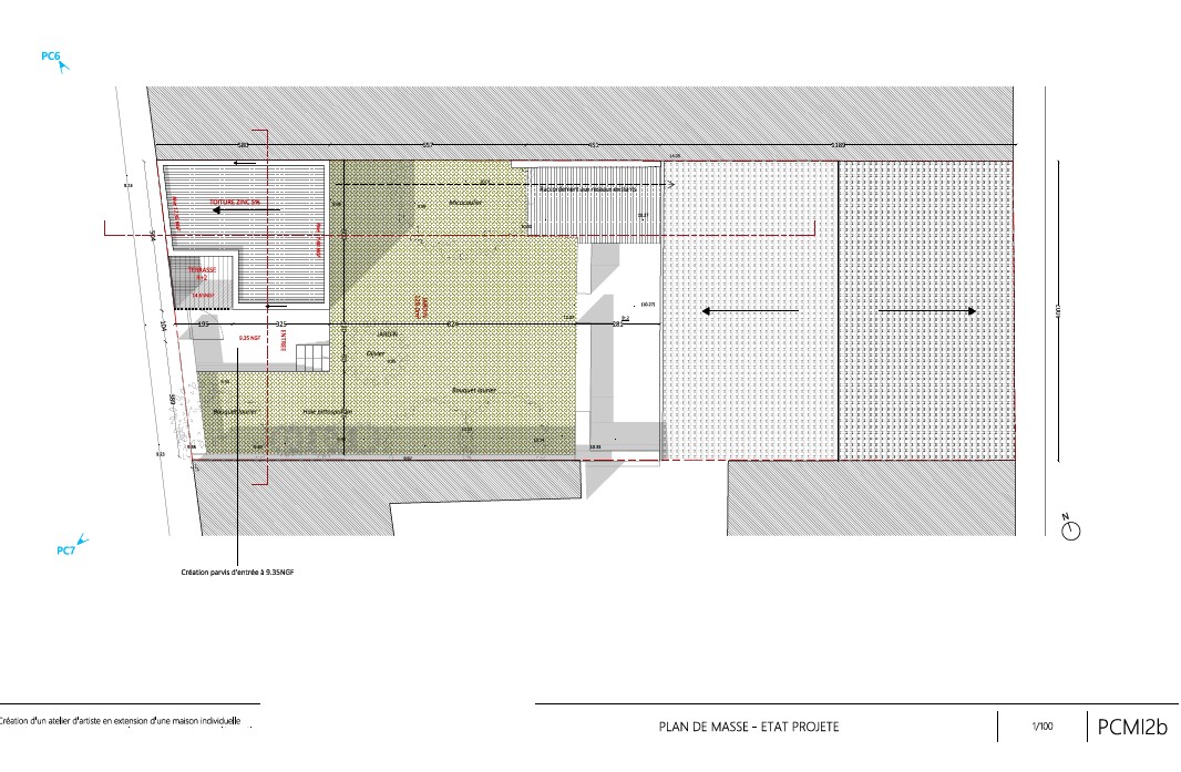
Le projet consiste en la création d'un atelier d'artiste en fond de jardin d'une maison de ville caractéristique des faubourgs de Montpellier. Le projet se développe sur 3 niveaux et s'insère en alignement avec les proportions du bâti existant mitoyen. Le rdc se dissimule derrière le mur de clôture existant , l'étage présente une façade vitrée laissant entrée la lumière dans le rdc et l'étage en coursive de l'atelier, le dernier niveau se compose d'un pièce de réunion. Le rdc est complété par espace terrasse entouré de la végétation existante et conservée du jardin.

Catégorie Bâtiment / logement
Numéro de projet7086
Date de candidature08/03/2022

Bâtiment / logement

Détail projet

Typologie de bâtiment : Neuf
Type de bâtiment : Logement individuel inférieur 120 m²
Année de livraison : 2021
Surface totale du bâtiment en m² : 48
Coût total en € HT (hors foncier, hors VRD, hors honoraires) : 80000
Lot bois n°1 concerné : Charpente bois,Bardage bois,ossature bois
Volume lot bois n°1 - m³ : 10.50
Coût du lot bois n°1 - € HT : 41500
Lot bois n°2 concerné : Menuiserie extérieure bois
Volume lot bois n°2 - m³ : 41500
Coût du lot bois n°2 - € HT : 10500
Bois Français : oui
Isolations biosourcées (préciser dans le descriptif technique) : non
Matériaux géosourcés (préciser dans le descriptif technique) : non
Finitions intéreures biosourcées ou géosourcées (préciser dans le descriptif technique) : non

Structure bois du bâtiment

Structure verticale :

ProduitEssenceProvenances (lieu de croissance du bois)Traitements de préservationMarque et certification produit
Panneau ossature boisÉpicéa communCentre-Val-de-LoireTraitement Classe 2 (trempage)

Structure horizontale :

ProduitEssenceProvenances (lieu de croissance du bois)Traitements de préservationMarque et certification produit
Dalle boisÉpicéa communCentre-Val-de-LoireTraitement Classe 2 (trempage)

Charpente :

ProduitEssenceProvenances (lieu de croissance du bois)Traitements de préservationMarque et certification produit
Caisson de toitureÉpicéa communCentre-Val-de-LoireTraitement Classe 2 (trempage)

Revêtement bois extérieur

Revêtement bois ou dérivés :

ProduitEssenceProvenances (lieu de croissance du bois)Marque et certification produitFinitionTraitements de préservation
Lame bois massifDouglasOccitanieTraitement Classe 3b (autoclave)

Menuiserie intérieure et extérieure

Menuiserie extérieure :

ProduitEssenceProvenances (lieu de croissance du bois)Marque et certification produitFinition
Menuiserie bois, Mur rideau boisPin sylvestreLasure

Isolation des murs

Isolation entre-montant des murs :

Produit
Laine de verre
Epaisseur (mm) Isolation entre-montant des murs : 145

Isolation de la toiture

Epaisseur (mm) Isolation entre-montant de la toiture : 240
Epaisseur (mm) Isolation extérieure de la toiture : 40

Approche environnementale : Dans le contexte urbain mais boisé du terrain, le choix de l'ossature bois a permis la préfabrication des éléments de murs ossature bois et planchers afin de limiter l'impact sur chantier et les nuisances pour les riverains. Le bois qui habille les façades est un douglas issu d'une scierie locale du gard.

Descriptif technique : Les murs ossature bois sont composés de montants en 45*145 contreventés par un OSB 12 mm. Le bardage est en douglas autoclave marron, posé verticalement. Les planchers intermédiaires sont composés de poutres porteuses lamelle collé permettant de créer les trémies d'escalier et de la double hauteur. Les solives sont en contre collé épicéa et resteront visible . Les solives de la toiture sont en bois massif. L'étanchéité de la toiture est réalisé en membrane synthétique . PEFC (Gestion forestière durable)

Chauffage au Bois : non
Données déclaratives

Acteurs du projet

Maître d'ouvrage (1)

Maître d'ouvrage - Particuliers

particulier (x)

Etudes et ingénieries (1)

Maître d'œuvre - Architecte mandataire

CUSY MARAVAL ARCHITECTES (34)

Entreprises des lots bois (1)

Charpentier

ENVIRONNEMENT BOIS (34)




* : L'entreprise n'est plus active
Retour à la liste