Aménager

WOMT

67410 ROHRWILLER - Bas Rhin - Grand Est

AMÉNAGEMENT BOIS

Aménagement intérieur

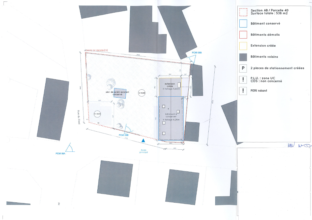
Maison existante : restructuration / réhabilitation avec des matériaux naturels, enduits naturels à la chaux, charpente et ré-emploi des tuiles existantes Extension : ossature bois, isolants bio-sourcés, bardage en bardeaux de bois.

Aménagement exterieur

Extension : ossature bois, isolants bio-sourcés, bardage en bardeaux de bois.

Catégorie aménagement bois, aménagement intérieur, aménagement exterieur
Numéro de projet7099
Adresse du projet 13 rue du Presbytère
67410 ROHRWILLER
Date de candidature09/03/2022

aménagement bois

Coût total en € HT : 173000

aménagement intérieur

Année de réalisation : 2020
Coût lots bois en € HT : 120000
Surface aménagée en m² : 110

Liste des produits :

ProduitEssenceProvenances (lieu de croissance du bois)Marque et certification produitFinition
Escalier, Panneau massif d'agencement, ParquetMélèzeGrand-EstAucune finition
Bois Français : oui

Approche environnementale : Une réflexion globale sur l’espace existant a été menée. Les espaces intérieurs existants ont été redistribués selon des critères d’orientation, d’ensoleillement et de points de vues. Une extension a été créée, qui intègre le séjour et le salon, largement ouverts et vitrés vers le jardin. L'extension a été réalisée en ossature bois avec une isolation naturelle et respirante en laine de bois, et un bardage bois extérieur en bardeaux de bois.

Descriptif technique de l'aménagement : Un poêle à bois à haut rendement est la source principale de chauffage de la maison. L'isolation en laine de bois de l'extension permet un déphasage thermique très intéressant, c'est à dire un confort thermique en été.

Des matériaux issus du ré-emploi ont été utilisés dans le projet : oui

aménagement exterieur

Année de réalisation : 2020

Liste des produits :

ProduitEssenceProvenances (lieu de croissance du bois)Traitements de préservationFinitionMarque et certification produit
Lame de terrasseMélèze
Bois Français : oui
Notice architecturale : Extension : ossature bois, isolants bio-sourcés, bardage en bardeaux de bois.
Approche environnementale : L'extension a été réalisée en ossature bois avec une isolation naturelle et respirante en laine de bois, et un bardage bois extérieur en bardeaux de bois.
Descriptif technique de l'aménagement : Bardeaux de bois et terrasse en mélèze. Faux colombage en mélèze de Sibérie sur pignon.
Des matériaux issus du ré-emploi ont été utilisés dans le projet : non
Données déclaratives

Acteurs du projet

Maître d'ouvrage (1)

Maître d'ouvrage - Particuliers

particulier (x)

Etudes et ingénieries (1)

Maître d'œuvre - Architecte mandataire

Atelier d'Architecture CNB (67)

Entreprises des lots bois (10)

Charpentier

SARL MF CHARPENTE (68)

Menuisier

TETE DE BOIS (67)
B M S SARL (57)

Autre lot de la construction (en lien avec le bois)

GCM DEMOLITION (67)
ALLIANCE PRO ENERGIES (67)
EURL RL TOP ISOL (67)
BISCEGLIA & Cie (67)
SARL AU COIN DU FEU / JPL2A (67)
CARRELAGE JORGE (67)
WIRTH CHAPE CARRELAGE (67)




* : L'entreprise n'est plus active
Retour à la liste