Travailler – accueillir, Réhabiliter un équipementTravailler – accueillir, Réhabiliter un équipement
Travailler – accueillir, Réhabiliter un équipement

Maison de santé à Liffol-le-Grand

88350 Liffol-le-Grand - Vosges - Grand Est
Lauréat régional
Lauréat national
Finaliste national

BÂTIMENT / LOGEMENT

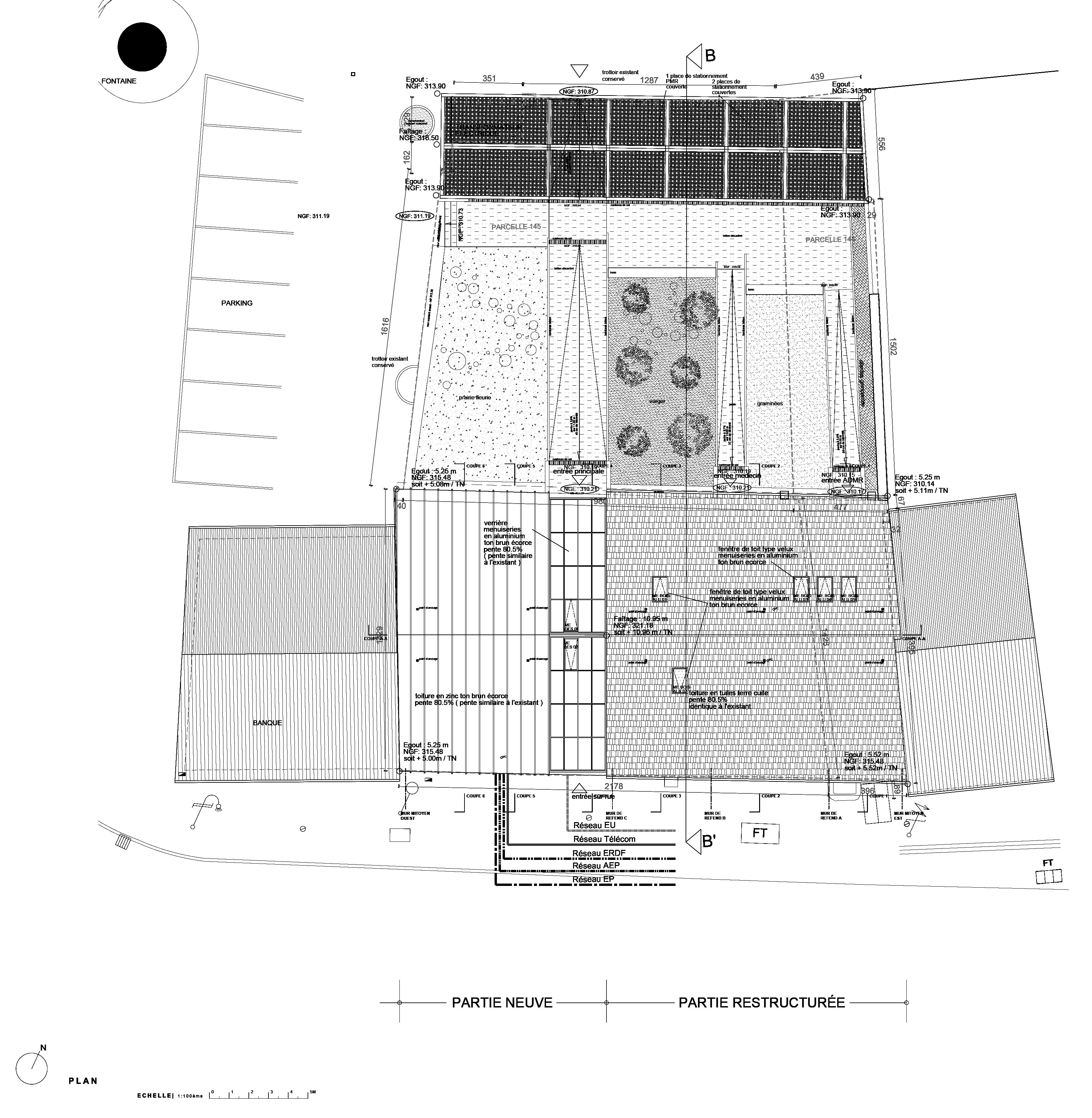
Tout le monde connait le « siège de Liffol » 150 années d’un artisanat d’excellence autour de la menuiserie en siège (savoir faire, artisanat, fabrication locale) reconnu par Indication Géographique (IG) en 2015. L’architecture de la nouvelle maison de santé de Liffol-le-Grand s’attache à cette culture particulière : - La charpente de la partie neuve est une grille poteau poutre en bois de feuillus, en chêne local - De grands claustras bois, séparant les salles d’attente du hall, sont constitués de lattes d’épicéa assemblées suivant le motif précis du « cannage » traditionnel.

Catégorie Bâtiment / logement
Numéro de projet7117
Adresse du projet 28 rue de l'Orme
88350 Liffol-le-Grand
Date de candidature09/03/2022
Récompense1er prix

Bâtiment / logement

Détail projet

Typologie de bâtiment : Neuf,Rénovation / Réhabilitation
Type de bâtiment : Santé
Année de livraison : 2021
Surface totale du bâtiment en m² : 638
Coût total en € HT (hors foncier, hors VRD, hors honoraires) : 884000
Lot bois n°1 concerné : Charpente bois
Bois Français : oui
Isolations biosourcées (préciser dans le descriptif technique) : oui
Matériaux géosourcés (préciser dans le descriptif technique) : non
Finitions intéreures biosourcées ou géosourcées (préciser dans le descriptif technique) : oui

Structure bois du bâtiment

Structure verticale :

ProduitEssenceProvenances (lieu de croissance du bois)Traitements de préservationMarque et certification produit
Panneau ossature bois, Poteau poutreChêneBourgogne-Franche-ComtéAucun traitement

Structure horizontale :

ProduitEssenceProvenances (lieu de croissance du bois)Traitements de préservationMarque et certification produit
Dalle bois, Solivage traditionnelChêneBourgogne-Franche-ComtéAucun traitement

Charpente :

ProduitEssenceProvenances (lieu de croissance du bois)Traitements de préservationMarque et certification produit
Charpente traditionnelleÉpicéa communGrand-EstAucun traitement

Revêtement bois extérieur

Autre revêtement métallique :

Produit
Zinc

Menuiserie intérieure et extérieure

Menuiserie extérieure :

ProduitEssenceProvenances (lieu de croissance du bois)Marque et certification produitFinition
Menuiserie boisPin sylvestreFranceLasure

Isolation des murs

Isolation intérieure des murs :

Produit
Laine de bois souple
Epaisseur (mm) Isolation intérieure des murs : 200

Isolation entre-montant des murs :

Produit
Laine de bois souple
Epaisseur (mm) Isolation entre-montant des murs : 200

Isolation de la toiture

Epaisseur (mm) Isolation intérieure de la toiture : 300

Approche environnementale : Ressources biosourcées et locales : - La charpente de la partie neuve est une grille poteau poutre en bois de feuillus, en chêne local - De grands claustras bois, séparant les salles d’attente du hall, sont constitués de lattes d’épicéa vosgien assemblées suivant le motif précis du « cannage » traditionnel. Côté place d’Armes, le bâtiment se prolonge par un jardin composé en lanières évoquant les anciennes parcelles mitoyennes puis une petite halle en bois fait le lien avec la place. La charpente de cette halle est en bois massif de douglas vosgien

Descriptif technique : La partie authentique a été conservée, la partie dénaturée (ancienne caserne des sapeurs-pompiers) a été démolie pour accueillir la partie neuve. Le projet se décompose en 3 tranches : - une faille transparente au milieu qui traverse le bâtiment et relie la place d’Armes à la rue principale, en face du magnifique Hôtel de Ville. - le corps de ferme ancien rénové fidèlement à l’existant - le corps neuf en structure bois habillé de Zinc

Chauffage au Bois : non
Données déclaratives

Acteurs du projet

Maître d'ouvrage (1)

Maître d'ouvrage - État ou collectivité (locale et territ)

Commune de Liffol-le-Grand (88)

Etudes et ingénieries (6)

Maître d'œuvre - Architecte mandataire

Christophe AUBERTIN - Studiolada Architectes (54)
Eléonore NICOLAS - Studiolada (54)

Maître d’œuvre - Architecte collaborateur

Studiolada Architectes (54)

Bureau d'études structure bois

STÉ INGÉNIERIE GÉNÉRALE MARCHAL (SIGMA) (88)

Bureau d'études thermique

FLUID'CONCEPT (88)

Designer / architecte d'intérieur

ATELIER DM (54)

Entreprises des lots bois (3)

Charpentier

SERTELET YVES (88)

Menuisier

REB ET ELOI (52)
MENUISERIE FAUVET (88)




* : L'entreprise n'est plus active
Retour à la liste