Réhabiliter un logement
Réhabiliter un logement

Gui

33140 Villenave D’ornon - Gironde - Nouvelle-Aquitaine

BÂTIMENT / LOGEMENT

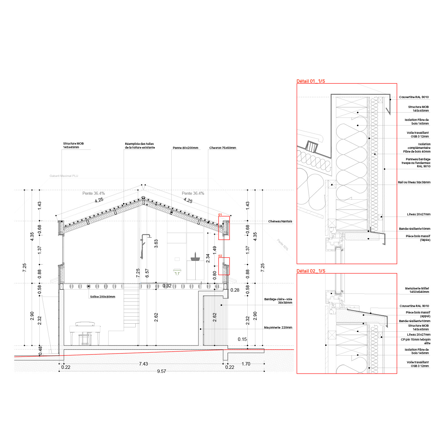
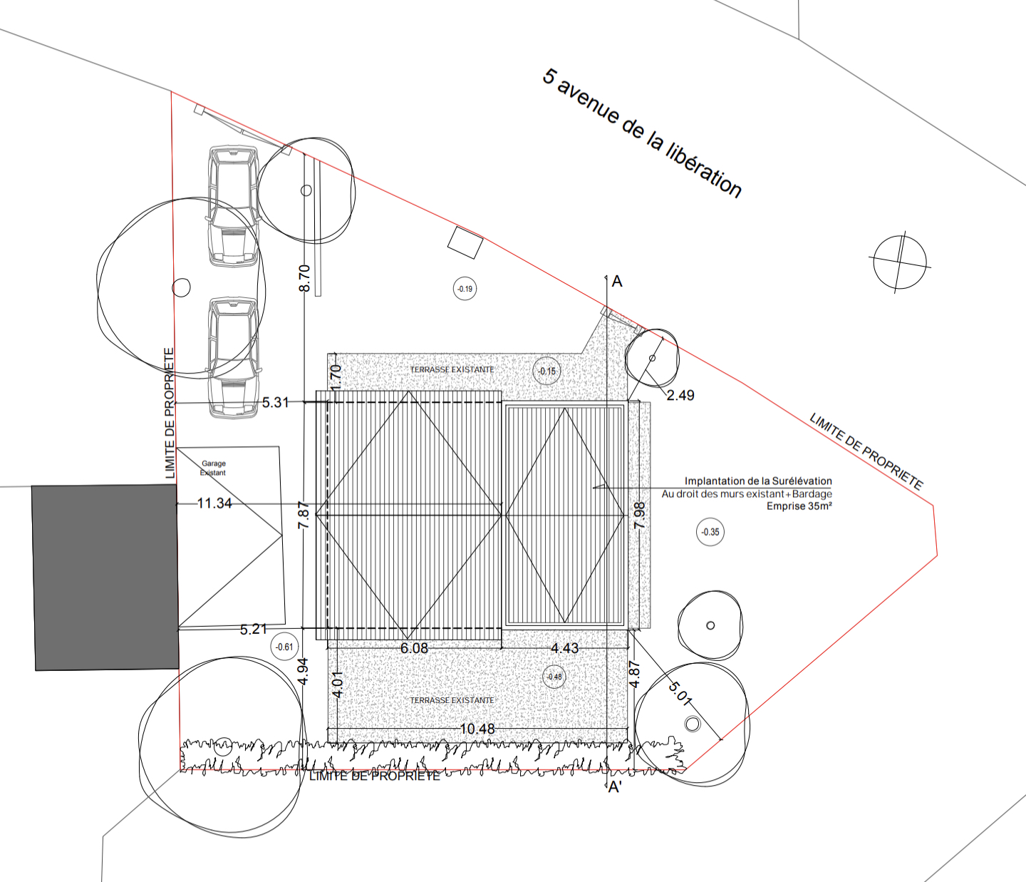
GUI: [Viscum album] Le projet de surélévation de cette maison dans la banlieue bordelaise a pour ambition de proposer deux chambres supplémentaires dont une chambre parentale avec une salle d’eau attenante. L’enjeu de ce projet fut de tenir une enveloppe économique restreinte tout en combinant les contraintes techniques d’un chantier sur l’existant.

Catégorie Bâtiment / logement
Numéro de projet7132
Date de candidature09/03/2022

Bâtiment / logement

Détail projet

Typologie de bâtiment : Extension / surélévation
Type de bâtiment : Logement individuel inférieur 120 m²
Année de livraison : 2020
Surface totale du bâtiment en m² : 86
Dont extension / surélévation en m² : 23
Coût total en € HT (hors foncier, hors VRD, hors honoraires) : 65000
Lot bois n°1 concerné : ossature bois
Coût du lot bois n°1 - € HT : 15000
Lot bois n°2 concerné : Charpente bois
Coût du lot bois n°2 - € HT : 10000
Bois Français : non
Isolations biosourcées (préciser dans le descriptif technique) : non
Matériaux géosourcés (préciser dans le descriptif technique) : non
Finitions intéreures biosourcées ou géosourcées (préciser dans le descriptif technique) : oui

Structure bois du bâtiment

Structure verticale :

ProduitEssenceProvenances (lieu de croissance du bois)Traitements de préservationMarque et certification produit
Panneau de bois massif (CLT collé ou CLT cloué)Épicéa communEuropeTraitement Classe 4 (autoclave)

Structure horizontale :

ProduitEssenceProvenances (lieu de croissance du bois)Traitements de préservationMarque et certification produit
Solivage traditionnelÉpicéa communEurope

Charpente :

ProduitEssenceProvenances (lieu de croissance du bois)Traitements de préservationMarque et certification produit
Charpente traditionnelleDouglasEurope

Revêtement bois extérieur

Revêtement bois ou dérivés :

ProduitEssenceProvenances (lieu de croissance du bois)Marque et certification produitFinitionTraitements de préservation
Panneau de synthèse ou composite

Menuiserie intérieure et extérieure

Isolation des murs

Isolation entre-montant des murs :

Produit
Laine de bois souple
Epaisseur (mm) Isolation entre-montant des murs : 140

Isolation extérieure des murs :

Produit
Fibre de bois (Panneaux)
Epaisseur (mm) Isolation extérieure des murs : 60

Isolation de la toiture

Epaisseur (mm) Isolation entre-montant de la toiture : 200
Epaisseur (mm) Isolation extérieure de la toiture : 60

Approche environnementale : L’une des contraintes majeur fut de devoir surélever sans découvrir l’existant, l’habitation restant occupée durant toute la durée du chantier. Une des solutions esthétiques mais aussi économique fut de réaliser le doublage intérieur en contre-plaqué pin provenant des landes.

Chauffage au Bois : non
Données déclaratives

Acteurs du projet

Maître d'ouvrage (1)

Maître d'ouvrage - Particuliers

particulier (x)

Etudes et ingénieries (1)

Maître d'œuvre - Architecte mandataire

ACOSA ARCHITECTES (33)

Entreprises des lots bois (2)

Charpentier

Guillaume Aubert Bois (33)

Menuisier

Guillaume Aubert Bois (33)




* : L'entreprise n'est plus active
Retour à la liste