Réhabiliter un logement

Transformation d'une grange en habitation principale

68320 Wickerschwihr - Haut Rhin - Grand Est
Lauréat régional
Finaliste national

BÂTIMENT / LOGEMENT

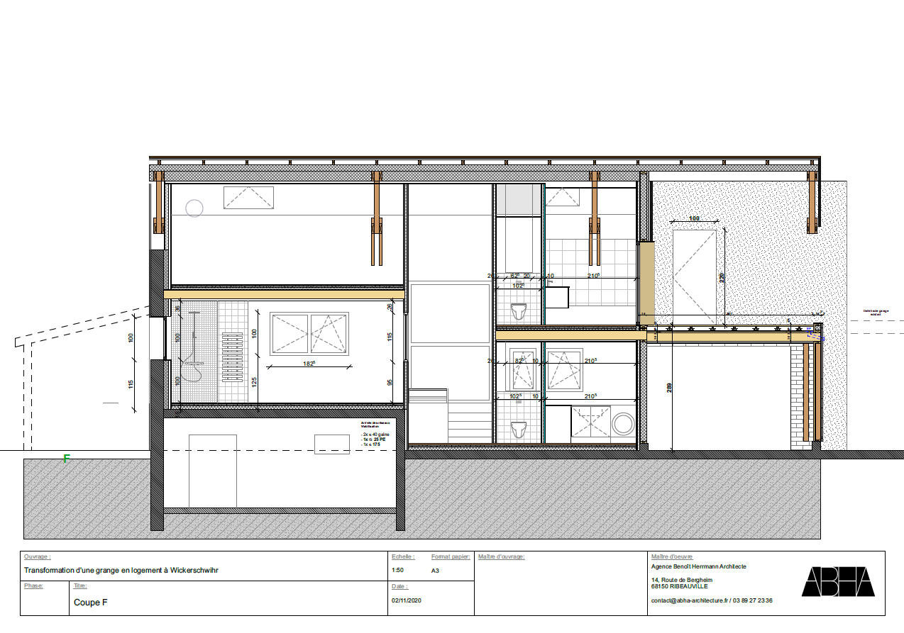
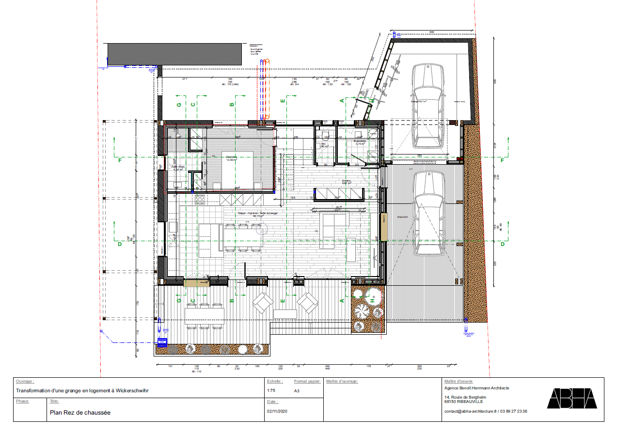
La transformation de cette grange d'après guerre en habitation est le fruit d’un choix délibéré du réemploi. Ainsi, l’ensemble de la structure a été conservé, et consolidé pour accueillir les nouveaux espaces du projet et augmenter la surface. Dans cette même logique, l’intention était de maintenir l’identité du bâtiment par sa forme et ses ouvertures tramées, tout en signifiant l’usage résidentiel par une matérialité plus chaleureuse. L’intérieur poursuit ce dialogue, les parties nouvelles et résolument contemporaines mettant en valeur la charpente existante composée d'éléments en treillis.

Catégorie Bâtiment / logement
Numéro de projet7158
Date de candidature10/03/2022

Bâtiment / logement

Détail projet

Typologie de bâtiment : Rénovation / Réhabilitation
Type de bâtiment : Logement individuel supérieur à 120 m²
Année de livraison : 2021
Surface totale du bâtiment en m² : 134
Dont extension / surélévation en m² : 55
Coût total en € HT (hors foncier, hors VRD, hors honoraires) : 250000
Lot bois n°1 concerné : ossature bois
Volume lot bois n°1 - m³ : 10
Coût du lot bois n°1 - € HT : 18200
Lot bois n°2 concerné : Bardage bois
Volume lot bois n°2 - m³ : 2.5
Coût du lot bois n°2 - € HT : 10600
Bois Français : oui
Isolations biosourcées (préciser dans le descriptif technique) : oui
Matériaux géosourcés (préciser dans le descriptif technique) : non
Finitions intéreures biosourcées ou géosourcées (préciser dans le descriptif technique) : non

Structure bois du bâtiment

Structure verticale :

ProduitEssenceProvenances (lieu de croissance du bois)Traitements de préservationMarque et certification produit
Panneau ossature boisSapin pectinéGrand-EstJe n'ai pas l'information

Structure horizontale :

ProduitEssenceProvenances (lieu de croissance du bois)Traitements de préservationMarque et certification produit
Solivage traditionnelSapin pectinéGrand-EstJe n'ai pas l'information

Charpente :

ProduitEssenceProvenances (lieu de croissance du bois)Traitements de préservationMarque et certification produit
Charpente traditionnelleSapin pectinéGrand-EstJe n'ai pas l'information

Revêtement bois extérieur

Revêtement bois ou dérivés :

ProduitEssenceProvenances (lieu de croissance du bois)Marque et certification produitFinitionTraitements de préservation
Lame bois massifDouglasFranceBois bruléTraitement par haute température (THT, rétification)

Revêtement minéral :

Produit
Enduit chaux

Autre revêtement métallique :

Produit
Alu

Menuiserie intérieure et extérieure

Menuiserie extérieure :

ProduitEssenceProvenances (lieu de croissance du bois)Marque et certification produitFinition
Menuiserie mixteMélèzeFranceAucune finition

Isolation des murs

Isolation intérieure des murs :

Produit
Laine de bois souple
Epaisseur (mm) Isolation intérieure des murs : 60

Isolation entre-montant des murs :

Produit
Laine de bois souple
Epaisseur (mm) Isolation entre-montant des murs : 140

Isolation extérieure des murs :

Produit
Fibre de bois (Panneaux)
Epaisseur (mm) Isolation extérieure des murs : 60

Isolation de la toiture

Epaisseur (mm) Isolation intérieure de la toiture : 200
Epaisseur (mm) Isolation entre-montant de la toiture : 200

Approche environnementale : Le bois brûlé, au delà du choix esthétique pur, est également respectueux de l'environnement par son traitement naturel par brûlage, sa pérennité ne nécessitant aucun entretien. Les menuiseries extérieures à triple vitrages et bois-aluminium suivent la même exigence. L'ensemble de la structure est réalisée en murs ossature bois et isolée par de la laine de bois, apportant un excellent confort aux usagers. La qualité et la cohérence de l'enveloppe favorisent l'économie d'énergies allouées au chauffage du bâtiment, tout en le rendant très lumineux et confortable tant en hiver qu'en été.

Descriptif technique : Les parois sont composées de murs à ossature bois épicéa épaisseur 140 mm, contreventées par un panneau en OSB épaisseur 15 mm. Un isolant laine de bois semi-rigide 140 mm assure l'isolation entre montants, laquelle est doublée à l'extérieur par une laine de bois rigide épaisseur 60 mm, faisant office de support pour le bardage. La charpente bien dimensionnée reçoit 400 mm de laine de bois semi-rigide permettant d'éviter des besoins de rafraichissement en été. PEFC (Gestion forestière durable) FSC (Gestion forestière responsable) NF Fenêtres Bois et Portes Extérieures - Acotherm Marquage CE

Performance du bâtiment (Cep en kWhep/m²/an) : 32
Chauffage au Bois : non
Données déclaratives

Acteurs du projet

Maître d'ouvrage (1)

Maître d'ouvrage - Particuliers

particulier (x)

Etudes et ingénieries (4)

Maître d'œuvre - Architecte mandataire

Agence Benoît Herrmann Architecte (68)

Bureau d'études thermique

GEDIMAT DERREY (88)

Economiste

Agence Benoît Herrmann Architecte (68)

Designer / architecte d'intérieur

Agence Benoît Herrmann Architecte (68)

Entreprises des lots bois (4)

Charpentier

MEYER ET FILS SARL (68) *

Menuisier

SOREBA SAS (68)
Escaliers MOREL Frères (88)
LCM Design (68)




* : L'entreprise n'est plus active
Retour à la liste