Apprendre – se divertir, Travailler – accueillirApprendre – se divertir, Travailler – accueillir
Apprendre – se divertir, Travailler – accueillir

Pôle multi-accueil petite enfance Saint-Jean-de-Boiseau

44640 SAINT JEAN DE BOISEAU - Loire Atlantique - Pays de la Loire

BÂTIMENT / LOGEMENT

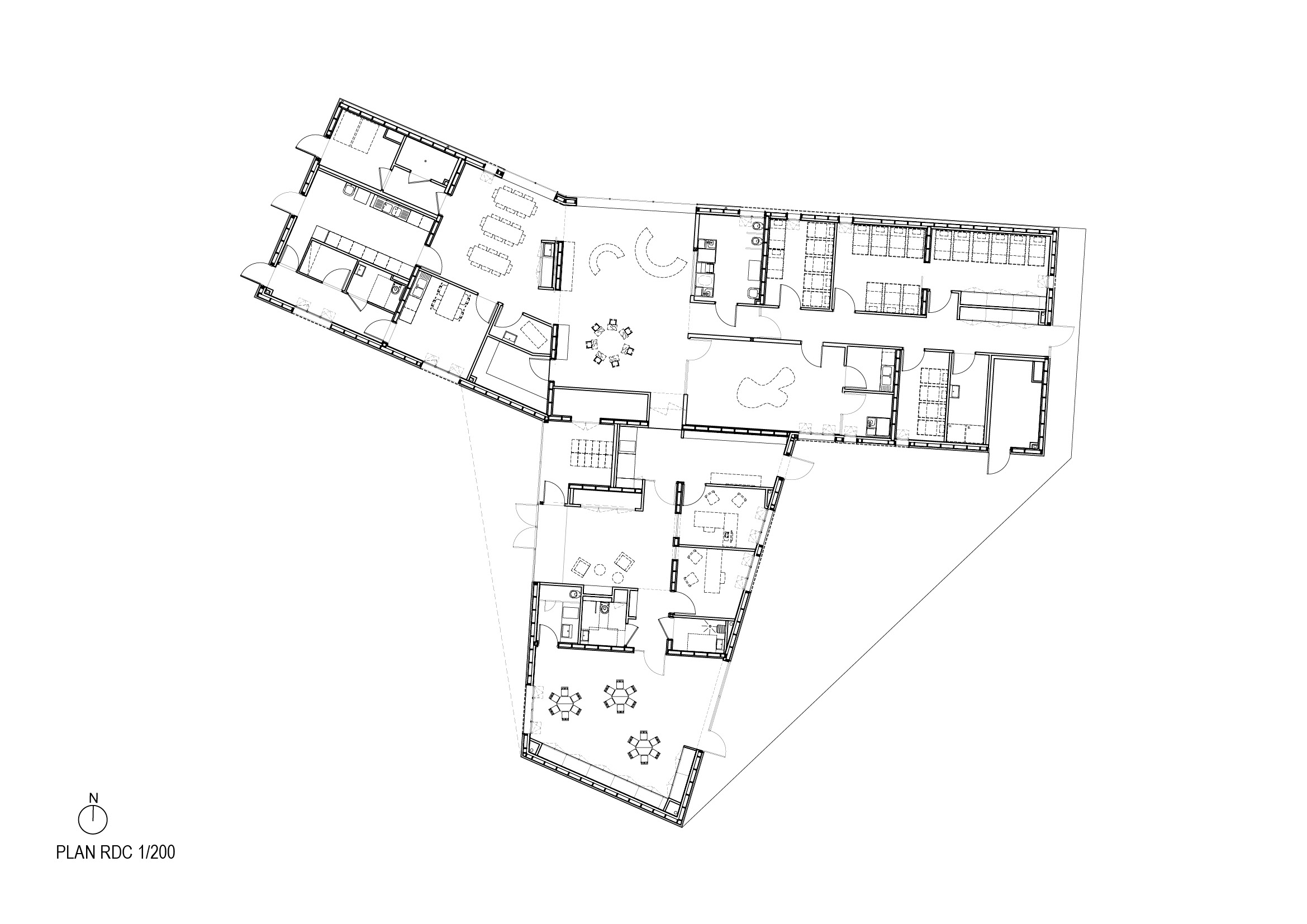
Ce projet est conçu comme un objet architectural sculpté par son contexte. Sa forme en étoile répond aux lignes de force des existants. Ce jeu d’avancées et de reculs génère à l’intérieur, un cœur de bâtiment qui rassemble et distribue dans les ailes les différents espaces ; et au-dehors, des espaces extérieurs enveloppant. L’image architecturale recherchée est celle d’un volume uni, où façades et couverture constituent une seule enveloppe, une seule matière. Il rappelle l’imaginaire de l’enfance autour de la « cabane en bois », tout en affirmant une écriture contemporaine.

Catégorie Bâtiment / logement
Numéro de projet7284
Adresse du projet RUE PIERRE MENDES FRANCE
44640 SAINT JEAN DE BOISEAU
Date de candidature03/01/2023

Bâtiment / logement

Détail projet

Typologie de bâtiment : Neuf
Type de bâtiment : Enseignement ou éducation,Service institutionnel et public
Année de livraison : 2022
Surface totale du bâtiment en m² : 472
Coût total en € HT (hors foncier, hors VRD, hors honoraires) : 1254269
Lot bois n°1 concerné : Charpente bois,Bardage bois
Volume lot bois n°1 - m³ : 92.65
Coût du lot bois n°1 - € HT : 407664
Lot bois n°2 concerné : Menuiserie intérieure bois
Volume lot bois n°2 - m³ : 0.5
Coût du lot bois n°2 - € HT : 118105
Bois Français : non
Matériaux issus du ré-emploi (préciser dans le descriptif technique) : non
Isolations biosourcées (préciser dans le descriptif technique) : non
Matériaux géosourcés (préciser dans le descriptif technique) : non
Finitions intéreures biosourcées ou géosourcées (préciser dans le descriptif technique) : non

Structure bois du bâtiment

Structure verticale :

ProduitEssenceProvenances (lieu de croissance du bois)Traitements de préservationMarque et certification produit
Poteau poutreRésineuxFranceTraitement Classe 4 (autoclave)PEFC
Panneau ossature boisRésineuxEuropeJe n'ai pas l'informationPEFC

Structure horizontale :

ProduitEssenceProvenances (lieu de croissance du bois)Traitements de préservationMarque et certification produit
Plancher béton

Charpente :

ProduitEssenceProvenances (lieu de croissance du bois)Traitements de préservationMarque et certification produit
Charpente bois lamellé-colléEuropeJe n'ai pas l'informationJe n'ai pas l'information

Revêtement bois extérieur

Revêtement bois ou dérivés :

ProduitEssenceProvenances (lieu de croissance du bois)Marque et certification produitFinitionTraitements de préservation
Lame bois massifDouglasFrancePEFCpré-griséTraitement Classe 3b (autoclave)

Menuiserie intérieure et extérieure

Isolation des murs

Isolation intérieure des murs :

Produit
Laine de verre
Epaisseur (mm) Isolation intérieure des murs : 100

Isolation entre-montant des murs :

Produit
Laine de verre
Epaisseur (mm) Isolation entre-montant des murs : 140

Isolation de la toiture

Epaisseur (mm) Isolation intérieure de la toiture : 300

Approche environnementale : Le bâtiment est construit en mur en ossature bois isolé et revêtu d’un bardage bois à l’opacité variable selon qu’il passe devant le vitrage ou non.

Descriptif technique : Le bardage bois constitué de lames de différentes largeurs est en douglas pré-grisé pour assurer sa tenue dans le temps. La toiture est recouverte d’une membrane d’étanchéité avec des chéneaux encastrés et invisibles. Elle est ensuite revêtue du même bardage pré-grisé. Les jonctions mur/toiture sont réalisées de manière particulièrement fine afin de lire la continuité enveloppante du bardage bois. Les menuiseries extérieures en finition de teinte champagne se marient bien avec le bois et apportent une touche lumineuse.

Performance du bâtiment (Cep en kWhep/m²/an) : 91
Ic construction - Impact Environnemental de la Construction (kg éq CO2/m² de SHAB ou SU) : 11
Chauffage au Bois : non
Données déclaratives

Acteurs du projet

Maître d'ouvrage (1)

Maître d'ouvrage - État ou collectivité (locale et territ)

Mairie de Saint Jean de Boiseau (44)

Etudes et ingénieries (5)

Maître d'œuvre - Architecte mandataire

Agence Jba (44)

Bureau d'études structure bois

Iba Ingénierie Du Bâtiment (44)

Bureau d'études thermique

Iba Ingénierie Du Bâtiment (44)

Economiste

Agence Jba (44)

Autre intervenant de la construction - bureau de contrôle, AMO, BIM...

Ecms (Economistes de la Construction Morice Suteau) (44)

Entreprises des lots bois (2)

Charpentier

LCA Construction Bois (85)

Menuisier

ATELIER DE MENUISERIE SAINTE ANNE (44)




* : L'entreprise n'est plus active
Retour à la liste