Travailler – accueillir, Réhabiliter un équipementTravailler – accueillir, Réhabiliter un équipement
Travailler – accueillir, Réhabiliter un équipement

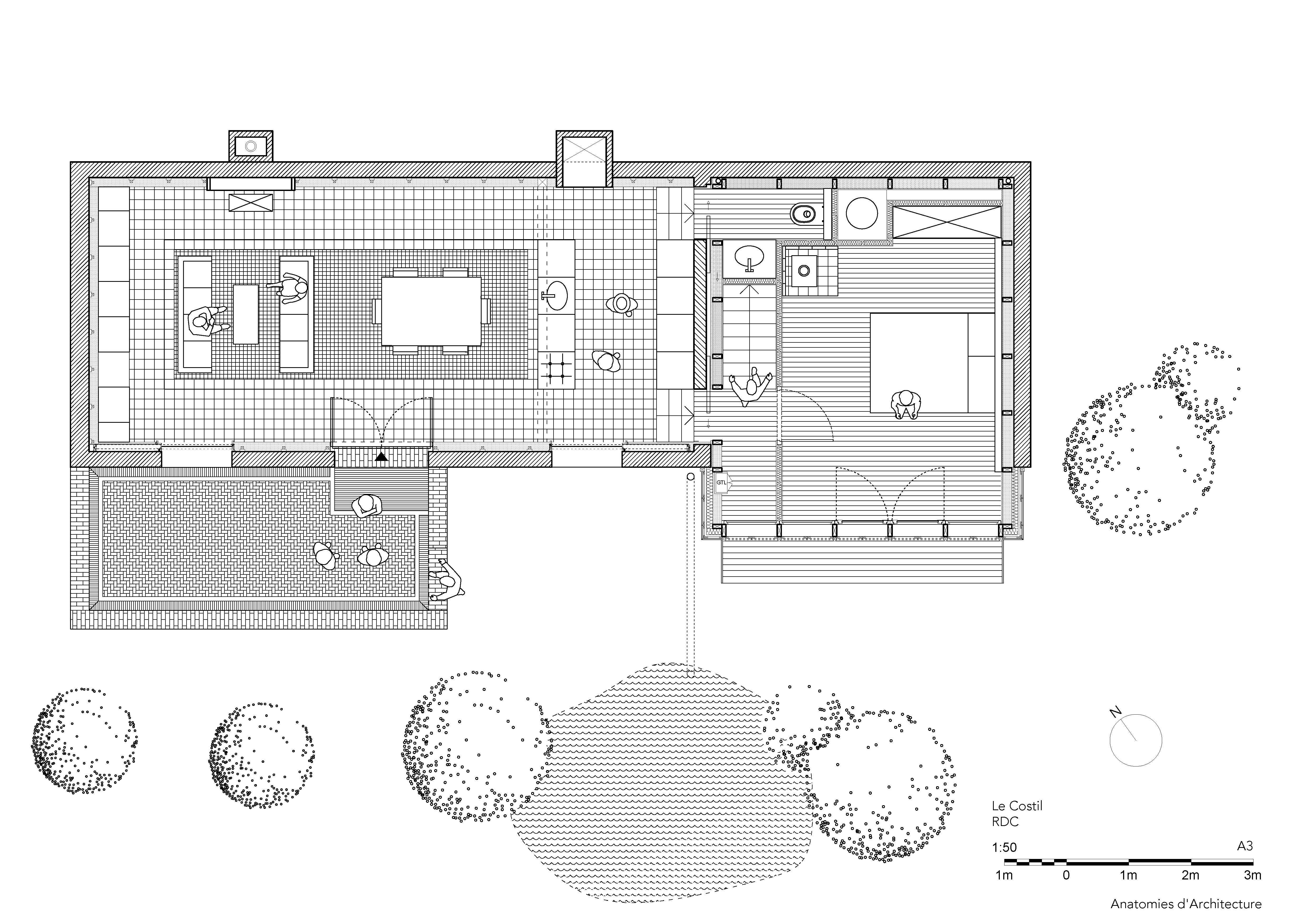
Le Costil

61122 - Orne - Normandie

BÂTIMENT / LOGEMENT

Avec « Le Costil », en Normandie (France), Anatomies d'Architecture propose d'aborder la construction écologique à travers une expérimentation inédite. La rénovation d'une maison traditionnelle en brique de 83m² avec des ambitions ultra-locales : 0% béton, 0% plastique et 100% matériaux naturels dans un rayon de moins de 100 km.

Catégorie Bâtiment / logement
Numéro de projet7301
Adresse du projet Le Costil, le Sap-en-Auge
61122
Date de candidature09/01/2023

Bâtiment / logement

Détail projet

Typologie de bâtiment : Neuf,Extension / surélévation,Rénovation / Réhabilitation
Type de bâtiment : Hébergement
Année de livraison : 2022
Surface totale du bâtiment en m² : 83
Dont extension / surélévation en m² : 24
Coût total en € HT (hors foncier, hors VRD, hors honoraires) : 380000
Volume lot bois n°1 - m³ : 20
Coût du lot bois n°1 - € HT : 36000
Volume lot bois n°2 - m³ : 9
Coût du lot bois n°2 - € HT : 24000
Bois Français : oui
Matériaux issus du ré-emploi (préciser dans le descriptif technique) : oui
Isolations biosourcées (préciser dans le descriptif technique) : oui
Matériaux géosourcés (préciser dans le descriptif technique) : oui
Finitions intéreures biosourcées ou géosourcées (préciser dans le descriptif technique) : oui

Structure bois du bâtiment

Structure verticale :

ProduitEssenceProvenances (lieu de croissance du bois)Traitements de préservationMarque et certification produit
ColombageNormandieAucun traitement

Structure horizontale :

ProduitEssenceProvenances (lieu de croissance du bois)Traitements de préservationMarque et certification produit
Solivage traditionnelDouglasNormandieAucun traitement

Charpente :

ProduitEssenceProvenances (lieu de croissance du bois)Traitements de préservationMarque et certification produit
Charpente traditionnelleChêneNormandieAucun traitement

Revêtement bois extérieur

Revêtement bois ou dérivés :

ProduitEssenceProvenances (lieu de croissance du bois)Marque et certification produitFinitionTraitements de préservation
Bardeau boisChâtaignierBretagneAucune finitionAucun traitement

Revêtement minéral :

Produit
Brique

Menuiserie intérieure et extérieure

Menuiserie intérieure :

ProduitEssenceProvenances (lieu de croissance du bois)FinitionMarque et certification produit
Escalier, Mobilier, ParquetChêneNormandieHuile

Menuiserie extérieure :

ProduitEssenceProvenances (lieu de croissance du bois)Marque et certification produitFinition
Brise soleil bois, Menuiserie boisChêneNormandieOrigine France GarantieLasure

Isolation des murs

Isolation intérieure des murs :

Produit
Béton de chanvre
Epaisseur (mm) Isolation intérieure des murs : 80

Isolation entre-montant des murs :

Produit
Béton de chanvre
Epaisseur (mm) Isolation entre-montant des murs : 140

Isolation extérieure des murs :

Produit
Fibre de bois (Panneaux)
Epaisseur (mm) Isolation extérieure des murs : 100

Isolation de la toiture

Epaisseur (mm) Isolation entre-montant de la toiture : 300
Epaisseur (mm) Isolation extérieure de la toiture : 100

Approche environnementale : Anatomies d'Architecture a réalisé la construction tout en essayant constamment de trouver des solutions alternatives et locales aux constructions conventionnelles. Ce projet n'a été rendu possible que grâce à des entreprises remarquables qui se battent au quotidien pour la préservation de l'artisanat local et traditionnel, des pratiques ancestrales, de la solidarité régionale et des circuits courts : agriculteurs, bûcherons, scieries, carriers, maçons, historiens, chercheurs, apprentis, bénévoles…

Descriptif technique : Isolation en chanvre, enduits en terre crue, charpentes en bois local douglas, bardage en ganivelles de châtaignier, meubles en chêne massif, réemploi de briques traditionnelles, bouchons de liège recyclés, fondations en troncs d'acacia, sols en bois de réemploi de fenêtres… depuis deux ans,

Chauffage au Bois : oui
Appareil de chauffage au bois : Poële/insert
Données déclaratives

Acteurs du projet

Maître d'ouvrage (1)

Maître d'ouvrage - Particuliers

particulier (x)

Etudes et ingénieries (1)

Maître d'œuvre - Architecte mandataire

ANATOMIES D'ARCHITECTURE (75)

Entreprises des lots bois (2)

Charpentier

DEPUIS 1920 (93)

Menuisier

DEPUIS 1920 (93)

Fournisseurs du bois (1)

Scierie

LES FORESTIERS ASSOCIES (61)




* : L'entreprise n'est plus active
Retour à la liste