Travailler – accueillir
Travailler – accueillir

Services Techniques de la Communauté de Communes de Grand Lieu

44118 LA CHEVROLIERE - Loire Atlantique - Pays de la Loire
Lauréat régional

BÂTIMENT / LOGEMENT

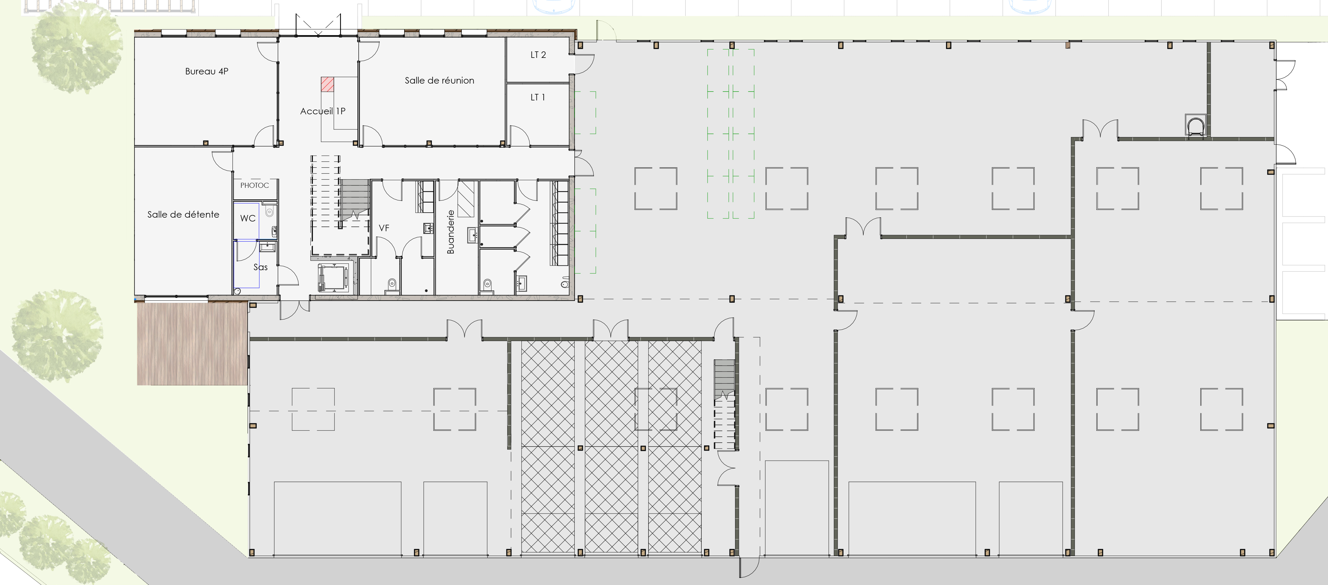
Le projet consiste en la réalisation d’un bâtiment pour les services techniques de la Communauté de commune de Grand Lieu. Le programme comprend des bureaux et locaux sociaux dont un accès ERP et une partie ateliers et stockages. L’orientation du bâtiment a été pensée de manière à optimiser les apports solaires tout en s’en protégeant par des lames de bois disposées devant les menuiseries et animant la façade.

Catégorie Bâtiment / logement
Numéro de projet7390
Adresse du projet Rue de la Guillauderie
44118 LA CHEVROLIERE
Date de candidature25/01/2023

Bâtiment / logement

Détail projet

Typologie de bâtiment : Neuf
Type de bâtiment : Service institutionnel et public
Année de livraison : 2022
Surface totale du bâtiment en m² : 1127
Coût total en € HT (hors foncier, hors VRD, hors honoraires) : 1845000
Lot bois n°1 concerné : Charpente bois,Bardage bois,ossature bois
Volume lot bois n°1 - m³ : 195
Coût du lot bois n°1 - € HT : 525000
Lot bois n°2 concerné : Menuiserie extérieure bois
Volume lot bois n°2 - m³ : 1.165
Coût du lot bois n°2 - € HT : 79409
Bois Français : non
Matériaux issus du ré-emploi (préciser dans le descriptif technique) : non
Isolations biosourcées (préciser dans le descriptif technique) : oui
Matériaux géosourcés (préciser dans le descriptif technique) : non
Finitions intéreures biosourcées ou géosourcées (préciser dans le descriptif technique) : oui

Structure bois du bâtiment

Structure verticale :

ProduitEssenceProvenances (lieu de croissance du bois)Traitements de préservationMarque et certification produit
Panneau ossature boisÉpicéa communTraitement Classe 2 (trempage)PEFC

Structure horizontale :

ProduitEssenceProvenances (lieu de croissance du bois)Traitements de préservationMarque et certification produit
Plancher mixte bois-bétonÉpicéa communTraitement Classe 2 (trempage)PEFC

Charpente :

ProduitEssenceProvenances (lieu de croissance du bois)Traitements de préservationMarque et certification produit
Charpente bois lamellé-colléÉpicéa communTraitement Classe 2 (trempage)PEFC

Revêtement bois extérieur

Revêtement bois ou dérivés :

ProduitEssenceProvenances (lieu de croissance du bois)Marque et certification produitFinitionTraitements de préservation
Lame bois massifDouglasFrancePEFCAucune finitionTraitement Classe 3b (autoclave)

Autre revêtement métallique :

Produit
Acier

Menuiserie intérieure et extérieure

Menuiserie intérieure :

ProduitEssenceProvenances (lieu de croissance du bois)FinitionMarque et certification produit
EscalierÉpicéa communLasurePEFC

Menuiserie extérieure :

ProduitEssenceProvenances (lieu de croissance du bois)Marque et certification produitFinition
Menuiserie mixtePin maritimeFrancePEFCAutres

Isolation des murs

Isolation intérieure des murs :

Produit
Béton de chanvre
Epaisseur (mm) Isolation intérieure des murs : 95

Isolation entre-montant des murs :

Produit
Béton de chanvre
Epaisseur (mm) Isolation entre-montant des murs : 145

Isolation extérieure des murs :

Produit
Fibre de bois (Panneaux)
Epaisseur (mm) Isolation extérieure des murs : 80

Isolation de la toiture

Epaisseur (mm) Isolation intérieure de la toiture : 360

Approche environnementale : Le projet a pour but de servir d’exemple en termes de prise en compte des enjeux écologiques actuels par l’utilisation de matériaux biosourcés. A ce titre, le bois est présent pour la structure, les menuiseries et les murs enveloppe qui sont eux isolés en béton de chanvre ou ouate de cellulose. La toiture des bureaux est isolée en ouate de cellulose et les cloisons intérieures en laine de chanvre, coton et lin. Afin de se passer de climatisation, des BSO extérieurs permettent d'améliorer le confort d'été. Une partie de l’énergie est produite par des panneaux solaires en toiture.

Descriptif technique : La structure du bâtiment est en poteaux-poutres bois, elle est habillée d'un mur manteau en ossature bois isolé en fibre de bois et béton de chanvre. La toiture isolée en ouate de cellulose accueille les 47 panneaux solaires photovoltaïques. Les menuiseries extérieures sont réalisées en matériaux mixtes bois intérieur et aluminium extérieur. Les finitions murales sont traitées en enduits chaux-chanvre. Une ventilation double-flux permet le renouvellement de l'air.

Performance du bâtiment (Cep en kWhep/m²/an) : -42
Chauffage au Bois : non
Données déclaratives

Acteurs du projet

Maître d'ouvrage (1)

Maître d'ouvrage - État ou collectivité (locale et territ)

GRAND LIEU COMMUNAUTE (44)

Etudes et ingénieries (4)

Maître d'œuvre - Architecte mandataire

Can Ingenieurs Architectes (44)

Bureau d'études structure bois

PEZZO INGENIERIE (44)

Bureau d'études thermique

AIREO ENERGIES (44)

Autre intervenant de la construction - bureau de contrôle, AMO, BIM...

DEKRA INDUSTRIAL (44)

Entreprises des lots bois (2)

Charpentier

LCA Construction Bois (85)

Menuisier

LCA Construction Bois (85)




* : L'entreprise n'est plus active
Retour à la liste