Aménager
Aménager

SHOWROOM LECTRA - Requalification de l'espace Showroom d'une entreprise industrielle

33610 Bordeaux Cestas - Gironde - Nouvelle-Aquitaine

AMÉNAGEMENT BOIS

Aménagement intérieur

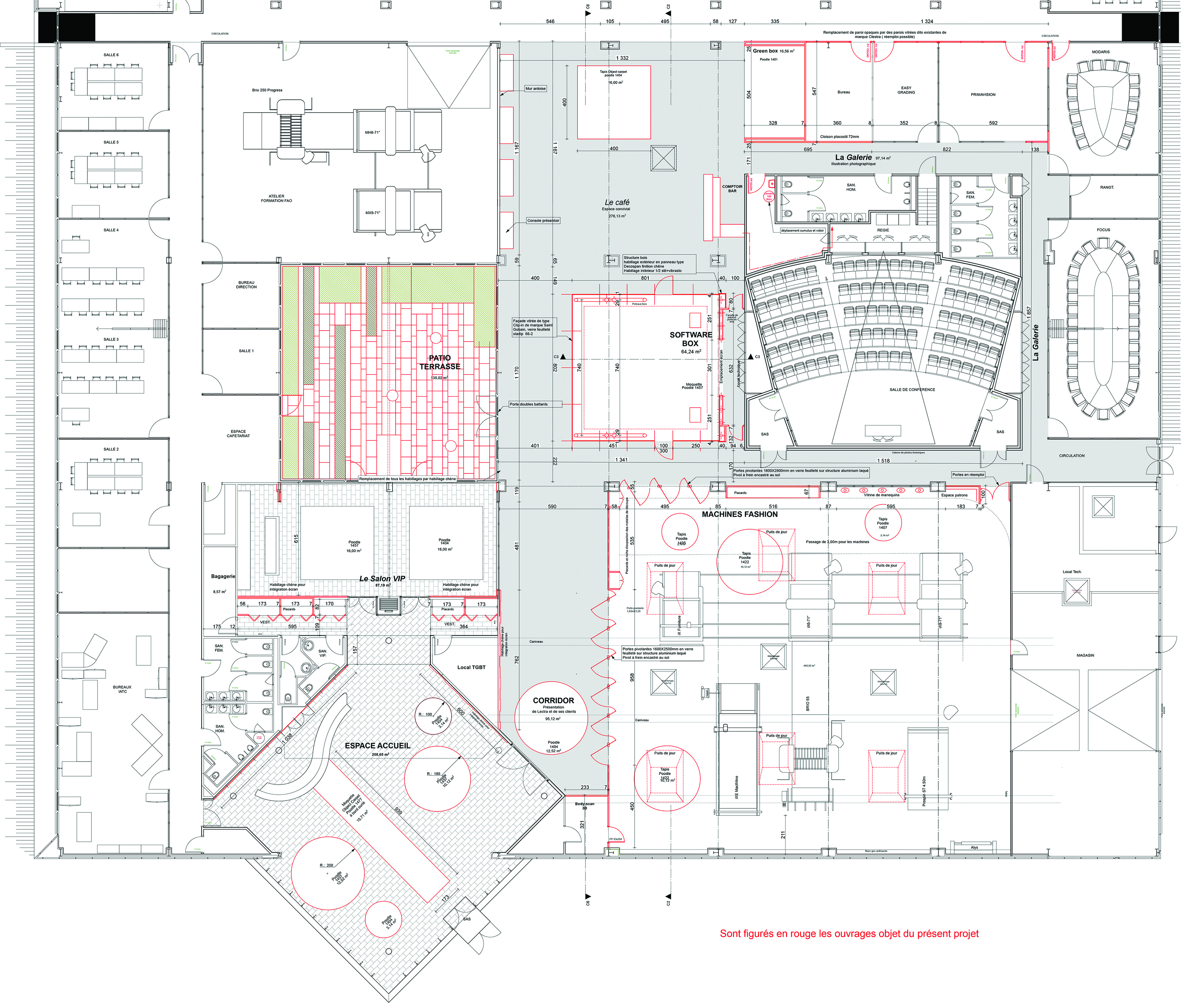
Chaque année l'usine Lectra à Cestas accueille plusieurs centaines de visiteurs venus du monde entier. Un showroom abritant les machines de démonstrations et une salle de conférence, nécessite d'être relooké. Epurer, dépouiller, redessiner l'espace, accueillir, informer, démontrer. C’est sur cette base nouvelle que nous avons assis les principes d’un projet mettant en scène le savoir faire de l’entreprise Lectra, fleuron de l'industrie régionale, dans une ambiance chaleureuse, conviviale et accueillante.

Catégorie aménagement bois, aménagement intérieur
Numéro de projet742
Adresse du projet 23 chemin de Marticot
33610 Bordeaux Cestas
Date de candidature17/04/2018

aménagement bois

typologie : Lieu d'entreprise,Industrie et commerce

aménagement intérieur

Année de réalisation : 2015
Surface aménagée en m² : 850

Liste des produits :

ProduitEssenceProvenances (lieu de croissance du bois)Marque et certification produitFinition
MobilierChêneFrance
Panneau massif d'agencementChêneFrance
InstallationChêneFrance

Approche environnementale : Pour adoucir le hall d’accueil, des structures aériennes animent l’espace coté verrière et les boiseries sont remplacées dans un bois blond. Nous avons sélectionné un mobilier aux lignes contemporaines, dans une matière noble: le chêne. De fabrication française, ce mobilier aux finitions soignées et élégantes est décliné dans plusieurs coloris. Dans la continuité de l’accueil, un écran s’inscrit dans l’habillage en bois clair. A la convergence des deux showsrooms, l’espace de convivialité s’ouvre sur le patio. Posée sur le sol en résine, la software box, parée de bois, abrite l’écran géant.

Descriptif technique de l'aménagement : L’objectif de l’aménagement de ce showroom était de mettre en scène le savoir faire de l’entre¬prise Lectra, nous avons pu proposer une organisation spatiale singulière et adaptée tout en faisant de la question environnementale un axe fort de conception. Les enjeux étaient: Travailler sur les qualités d'usages Favoriser l'utilisation de matériaux sains et régionaux, notamment du mobiliers d'entreprises basques et landaises qui ont su mettre au goût du jour leur savoir faire Avoir un confort hygrothermique, acoustique et visuel

Données déclaratives

Acteurs du projet

Maître d'ouvrage (1)

Maître d'ouvrage - Industriels - commerçants - entreprise

LECTRA (33)

Etudes et ingénieries (3)

Maître d'œuvre - Architecte mandataire

a_traits architecture & design graphique (33)

Designer / architecte d'intérieur

a_traits architecture & design graphique (33)

Architecte / paysagiste concepteur

ag-paysages (33)

Entreprises des lots bois (1)

Menuisier

L'ATELIER D'AGENCEMENT (33)




* : L'entreprise n'est plus active
Retour à la liste