Aménager
Aménager

ERU - Aménagement d'une cloison pour l'Ecole du Renouvellement Urbain

93500 PANTIN - Seine Saint Denis - Ile de France

AMÉNAGEMENT BOIS

Aménagement intérieur

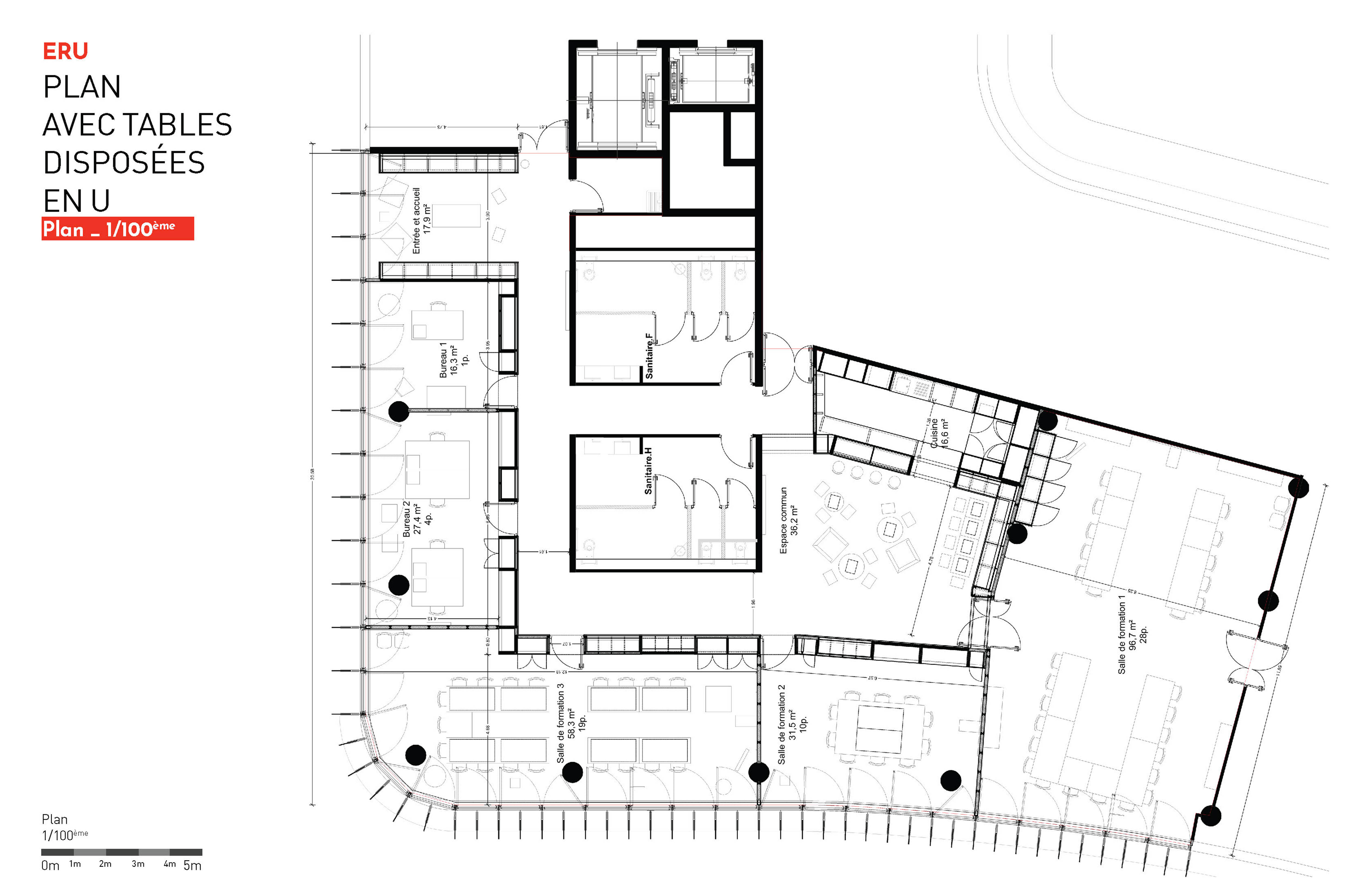
Dans un bâtiment de Rudy Ricciotti, l'aménagement des bureaux de l'école du Renouvellement Urbain lui donne une âme supplémentaire. À la fois mur, cloison et mobilier, cet aménagement sur-mesure est entièrement fabriqué à partir de matières réemployées. Assumant fièrement son patchwork de bois récupéré et son esthétisme renouvelé, il apporte une nouvelle identité, chaleur et convivialité aux nouveaux locaux. De 42m de long, ce meuble-cloison sépare et module judicieusement l’espace pour offrir de multiples fonctionnalités : étagères, assises, placards, éclairages et prises intégrées...

Catégorie aménagement bois, aménagement intérieur
Numéro de projet7567
Adresse du projet 159 Av. Jean Lolive, 93500 Pantin
93500 PANTIN
Date de candidature06/03/2023

aménagement bois

typologie : Lieu d'entreprise
Coût total en € HT : 450000

aménagement intérieur

Année de réalisation : 2022
Coût total Aménagement Intérieur en € HT : 250000
Coût lots bois en € HT : 150000
Volume bois m³ : 10.9
Surface aménagée en m² : 500

Liste des produits :

ProduitEssenceProvenances (lieu de croissance du bois)Marque et certification produitFinition
Mobilier, Panneau massif d'agencementTempéréÎle-de-FranceAutres
Installation, Mobilier, Panneau massif d'agencementTempéréÎle-de-FranceJe n'ai pas l'information
Bois Français : oui

Approche environnementale : Réinventer la menuiserie à partir de déchets, revaloriser la matière et donner une seconde vie aux objets, c'est notre métier. Avec la cloison ERU, le pari est gagné : ce sont 6 Tonnes de matériaux neufs évitées ! Portes de chêne massif provenant d'un immeuble à Saint Denis, médiums laqués noirs issues du démontage d'un magasin Dolce & Gabbana de Paris, et panneaux en chêne massif provenant des vestiaires du site de recherche Gaz de France, démoli pour construire la piscine olympique...

Descriptif technique de l'aménagement : L'aménagement a été réalisé en plusieurs étapes, en commençant par une charpente en ossature bois puis un travail de disposition des panneaux. Au fil de la construction, le plan a évolué selon les gisements disponibles et la créativité des menuisiers. En effet, travailler avec des matières réemployées, c'est devoir s'adapter et accepter la transformation de ses premières idées. Là est la difficulté du réemploi, mais c'est aussi là que l'œuvre prend sens : L'architecte, le charpentier, le menuisier et le designer s'unissent contre l'objectification du monde, et oeuvrent pour un design circulaire !

Des matériaux issus du ré-emploi ont été utilisés dans le projet : oui
Données déclaratives

Acteurs du projet

Maître d'ouvrage (1)

Autres

ECOLE DU RENOUVELLEMENT URBAIN - INSTITUT DE FORMATION DE LA MAITRISE D'OUVRAGE DE LA VILLE (93)

Etudes et ingénieries (2)

Maître d'œuvre - Architecte mandataire

URBAN ACT ARCHITECTURE ET ECOLOGIE URBAINE (75)

Designer / architecte d'intérieur

La Remanufacture, une marque Urban Act (75)

Entreprises des lots bois (1)

Menuisier

La Remanufacture, une marque Urban Act (75)

Fournisseurs du bois (1)

Industriel

REAVIE (93)




* : L'entreprise n'est plus active
Retour à la liste