Aménager
Aménager

Office du tourisme des Menuires

73440 LES BELLEVILLE - Savoie - Auvergne-Rhône-Alpes

AMÉNAGEMENT BOIS

Aménagement intérieur

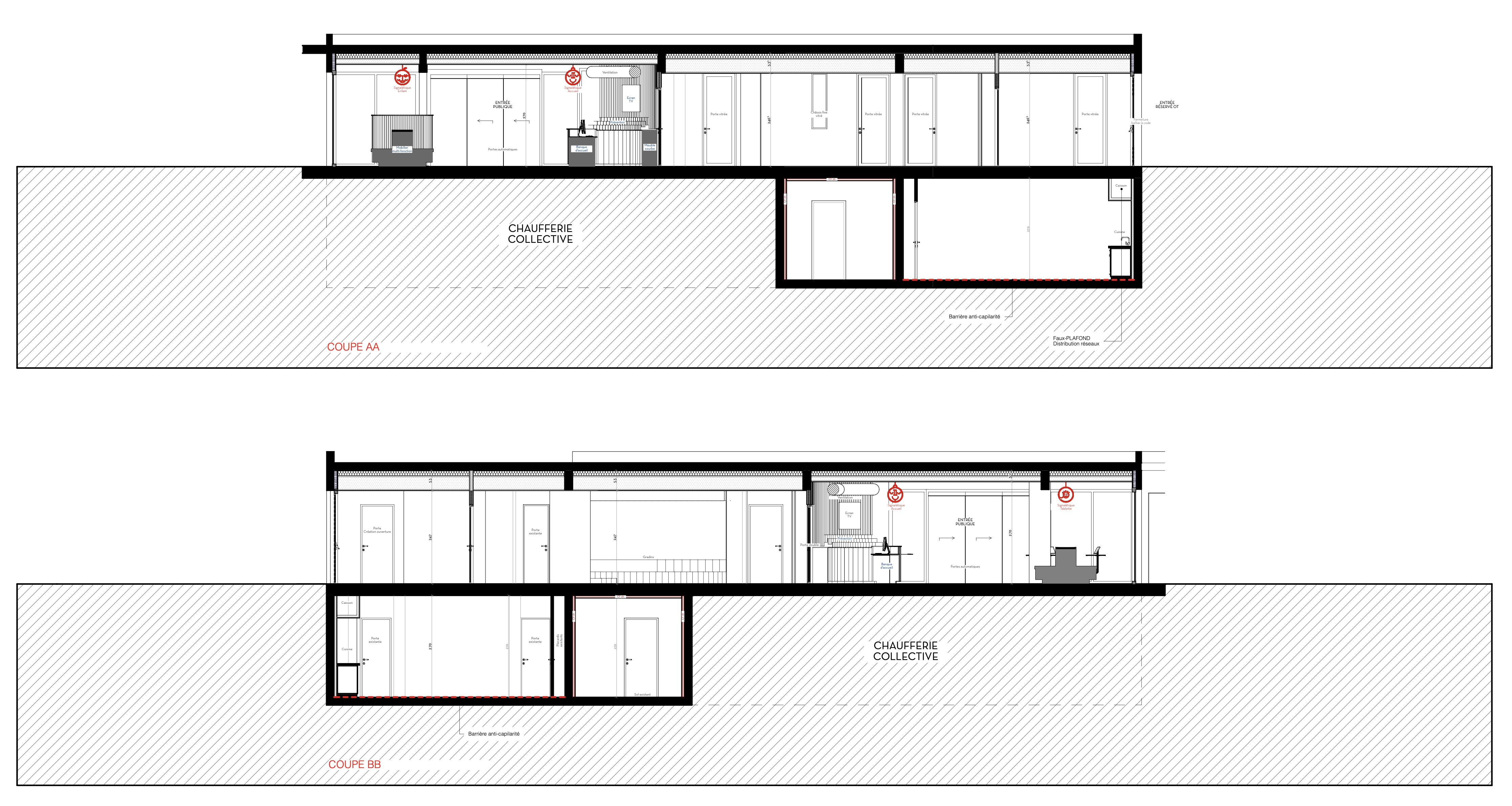
Le projet d’aménagement renoue avec l’architecture originelle de la station en valorisant la trame de façade, en épurant les lignes intérieures et en utilisant des matériaux bruts et durables. Les cloisonnements courbes et blancs font référence aux sports de glisse, à la fluidité et accompagnent les mouvements des visiteurs. Le mobilier est étudié pour assurer le confort des utilisateurs et assurer au mieux la fonction d’accueil du lieu. Reprenant la couleur rouge de la station, la signalétique sur mesure propose une approche décalée et ludique de la vie en station.

Catégorie aménagement bois, aménagement intérieur
Numéro de projet7583
Adresse du projet 1269 avenue de la Croisette
73440 LES BELLEVILLE
Date de candidature15/02/2023

aménagement bois

typologie : Service institutionnel et public
Coût total en € HT : 450000

aménagement intérieur

Année de réalisation : 2020
Coût total Aménagement Intérieur en € HT : 450000
Coût lots bois en € HT : 65000
Volume bois m³ : 4.11
Surface aménagée en m² : 80

Liste des produits :

ProduitEssenceProvenances (lieu de croissance du bois)Marque et certification produitFinition
MobilierPin maritimeFranceAutres
MobilierFrêneFranceAutres
Bois Français : oui
Des matériaux issus du ré-emploi ont été utilisés dans le projet : non
Données déclaratives

Acteurs du projet

Maître d'ouvrage (1)

Maître d'ouvrage - État ou collectivité (locale et territ)

COMMUNE DE LES BELLEVILLE (73)

Etudes et ingénieries (2)

Maître d'œuvre - Architecte mandataire

SILO ARCHITECTES (38)

Maître d’œuvre - Architecte associé

SNACK ARCHITECTURE (38)

Entreprises des lots bois (1)

Menuisier

HR EBENISTERIE (38)

Fournisseurs du bois (3)

Industriel

CICA (26)
D.M.B.P DISPANO CHAMBERY (73)
DELTA BOIS (38)




* : L'entreprise n'est plus active
Retour à la liste