Travailler – accueillir
Travailler – accueillir

Deux cabanes perchées sur pilotis

06450 SAINT MARTIN VESUBIE - Alpes maritimes - Provence Alpes Côte d'Azur

BÂTIMENT / LOGEMENT

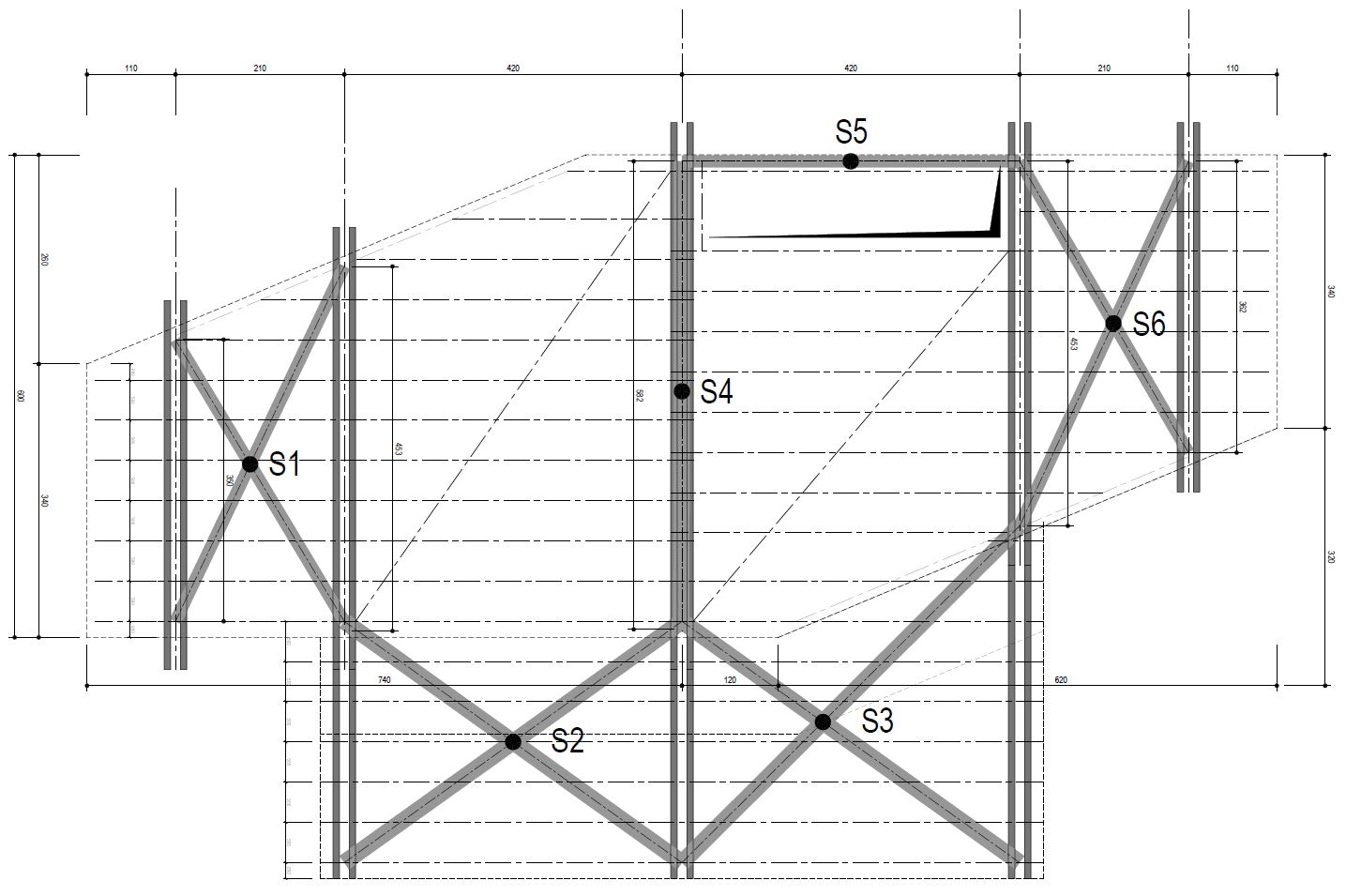
Le projet a pour objet la construction d‘un habitat à vocation de location touristique haut de gamme dans le massif forestier du Boréon en lisière du Parc National du Mercantour. La particularité du projet était de concevoir deux cabanes perchées sur pilotis, confortables durant les quatres saisons. Le projet propose une cabane de forme inutaire, un prisme à neuf faces posée subtilement sur une structure tridimensionnelle composée de troncs de mélèzes écorsés bruts en V auto-contreventés afin de pouvoir se glisser entre les arbres et s’adapter à la multiplicité des situations topographiques.

Catégorie Bâtiment / logement
Numéro de projet7669
Adresse du projet Le Boréon
Parc National du Mercantour
06450 SAINT MARTIN VESUBIE
Date de candidature21/02/2023

Bâtiment / logement

Détail projet

Typologie de bâtiment : Neuf
Type de bâtiment : Logements de vacances ou de loisirs
Année de livraison : 2022
Surface totale du bâtiment en m² : 45
Coût total en € HT (hors foncier, hors VRD, hors honoraires) : 225000
Volume lot bois n°1 - m³ : 60
Coût du lot bois n°1 - € HT : 150000
Bois Français : oui
Matériaux issus du ré-emploi (préciser dans le descriptif technique) : non
Isolations biosourcées (préciser dans le descriptif technique) : oui
Matériaux géosourcés (préciser dans le descriptif technique) : non
Finitions intéreures biosourcées ou géosourcées (préciser dans le descriptif technique) : non

Structure bois du bâtiment

Structure verticale :

ProduitEssenceProvenances (lieu de croissance du bois)Traitements de préservationMarque et certification produit
Panneau ossature bois
Panneau ossature boisTempéréProvence-Alpes-Côte-d'AzurJe n'ai pas l'informationPEFC

Structure horizontale :

ProduitEssenceProvenances (lieu de croissance du bois)Traitements de préservationMarque et certification produit
Solivage traditionnel
Dalle boisTempéréProvence-Alpes-Côte-d'AzurJe n'ai pas l'informationPEFC

Charpente :

ProduitEssenceProvenances (lieu de croissance du bois)Traitements de préservationMarque et certification produit
Caisson de toiture
Caisson de toitureTempéréProvence-Alpes-Côte-d'AzurJe n'ai pas l'informationPEFC

Revêtement bois extérieur

Revêtement bois ou dérivés :

ProduitEssenceProvenances (lieu de croissance du bois)Marque et certification produitFinitionTraitements de préservation
Bardeau boisTempéréProvence-Alpes-Côte-d'AzurPEFCBois bruléJe n'ai pas l'information

Menuiserie intérieure et extérieure

Menuiserie intérieure :

ProduitEssenceProvenances (lieu de croissance du bois)FinitionMarque et certification produit
LambrisTempéréProvence-Alpes-Côte-d'AzurLasurePEFC

Menuiserie extérieure :

ProduitEssenceProvenances (lieu de croissance du bois)Marque et certification produitFinition
Menuiserie boisTempéréAuvergne-Rhône-AlpesPEFCJe n'ai pas l'information

Isolation des murs

Isolation intérieure des murs :

Produit
Laine de verre
Epaisseur (mm) Isolation entre-montant des murs : 250

Isolation extérieure des murs :

Produit
Laine de verre
Epaisseur (mm) Isolation extérieure des murs : 250

Isolation de la toiture

Epaisseur (mm) Isolation extérieure de la toiture : 300

Approche environnementale : Conception en coût global et environnemental pour répondre aux exigences climatiques fortes (Neige, altitude 1650m, sismique (zone de forte sismicité). Choix d'équipements techniques efficients et résilients permettant un suivi et une gestion simple par l'exploitant (location touristique). Chauffage ELEC au sol associé à un poêle à granules pour limiter les consommations. Le confort des occupants a été pensé afin de maximiser les apports gratuits de ressources (larges baies vitrées, récupération d'énergie associant une VMC avec ballon thermodynamique).

Descriptif technique : Structure sur pilotis en mélèze bruts. Les extrémitées sont taillées pour permettre un assemblage drainant sur platines galva. Les massifs de fondation sont limités. Les poteaux inclinés portent des sommiers moisants. Stabilité de la plateforme créée par leur effet système 3D. Le volume habitable est composé d'une ossature bois auto-stable par la réalisation de surfaces diaphragmes assuréees par les caissons de plancher, les murs (MOB) et les caissons de toiture. Composition de l'enveloppe : bardage ventilé bois brulé (épicéa), lattage, OSB, MOB isolant laine de bois 160mm, pare-vapeur pose continue, doublage 50mm laine minérale passage des réseaux ELEC. Toiture avec porte neige, isolation 300mm. Menuiseries ext bois. L'ensemble des bois issus de filières durables et forêts certifiées.

Performance du bâtiment (Cep en kWhep/m²/an) : 133
Chauffage au Bois : oui
Appareil de chauffage au bois : Poële/insert
Données déclaratives

Acteurs du projet

Maître d'ouvrage (1)

Maître d'ouvrage - État ou collectivité (locale et territ)

Syndicat mixte pour le développement de la vallée Vésubie et du Valdeblore (06)

Etudes et ingénieries (3)

Maître d'œuvre - Architecte mandataire

CYRIL CHENEBEAU ARCHITECTE (06)

Bureau d'études structure bois

TECKICEA (25)

Bureau d'études thermique

BET KLEBER DAUDIN (06)

Entreprises des lots bois (1)

Charpentier

LES CHARPENTIERS DE LA CORSE (20)

Fournisseurs du bois (3)

Scierie

COSYLVA (23)

Industriel

KLH - Lignatec (88)
MENUISERIE ANDRE (26)




* : L'entreprise n'est plus active
Retour à la liste