Réhabiliter un équipement

Collège La Lauzière

73220 VAL D ARC - Savoie - Auvergne-Rhône-Alpes

BÂTIMENT / LOGEMENT

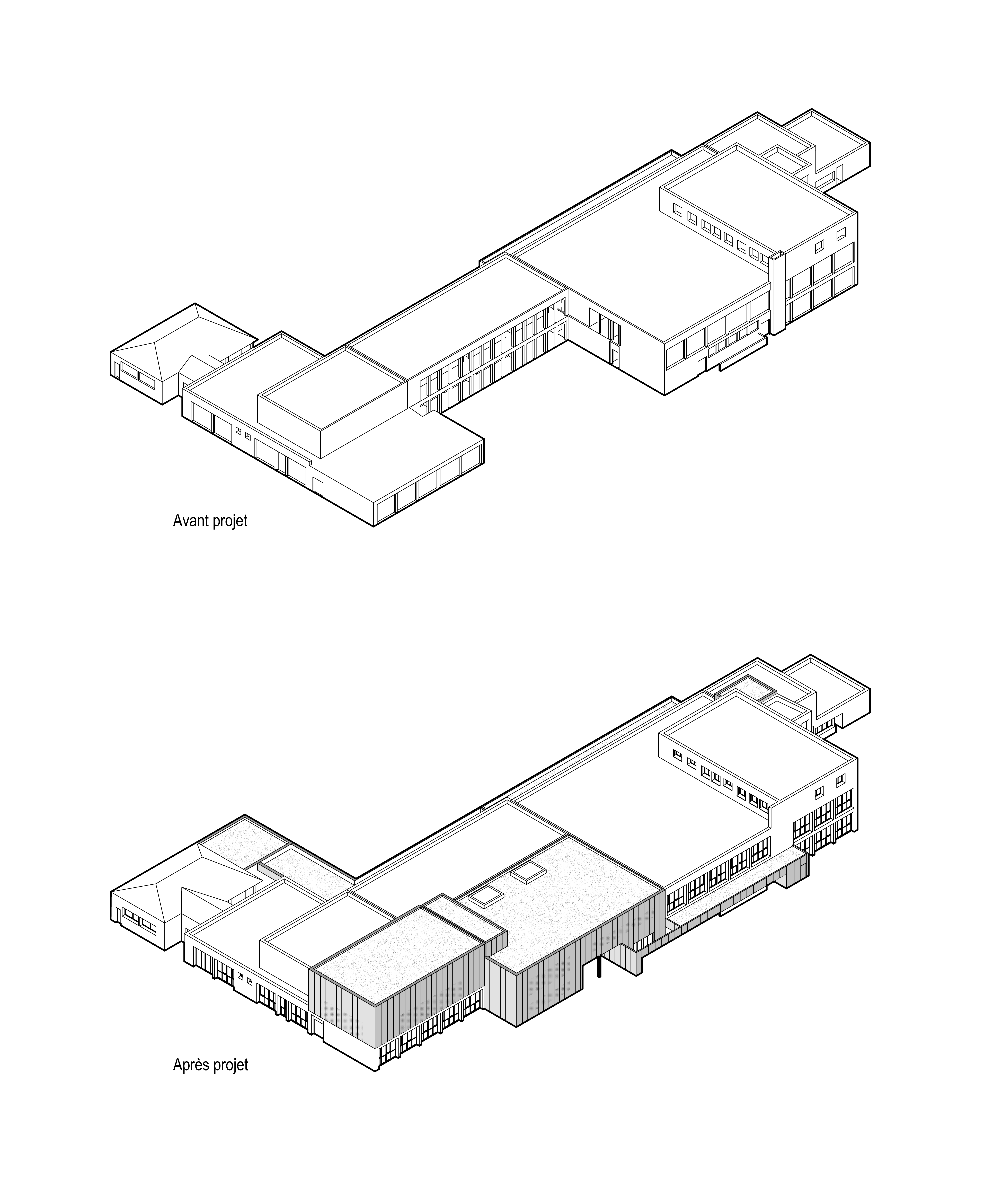
L’intervention sur le collège a consisté à réorganiser les locaux existants et à construire une extension. Très simple, le bâti d’origine se présentait comme l’accumulation de différents parallélépipèdes greffés à la circulation. C’est naturellement que l’extension est venue s’ajouter à cette colonne vertébrale, dans une dent creuse. La partie rénovée et l’extension se confrontent et se complètent : structure béton pour le bâti ancien, bois pour le neuf. Enduit blanc pour l’existant contre façades métalliques pour les parties neuves. En résulte une architecture évanescente et discrète

Catégorie Bâtiment / logement
Numéro de projet7680
Adresse du projet 15 rue des Ecoles
73220 VAL D ARC
Date de candidature22/02/2023

Bâtiment / logement

Détail projet

Typologie de bâtiment : Extension / surélévation,Rénovation / Réhabilitation
Type de bâtiment : Enseignement ou éducation
Année de livraison : 2021
Surface totale du bâtiment en m² : 3500
Dont extension / surélévation en m² : 700
Coût total en € HT (hors foncier, hors VRD, hors honoraires) : 4700000
Lot bois n°1 concerné : Charpente bois
Volume lot bois n°1 - m³ : 300
Coût du lot bois n°1 - € HT : 360000
Bois Français : oui
Matériaux issus du ré-emploi (préciser dans le descriptif technique) : non
Isolations biosourcées (préciser dans le descriptif technique) : non
Matériaux géosourcés (préciser dans le descriptif technique) : non
Finitions intéreures biosourcées ou géosourcées (préciser dans le descriptif technique) : oui

Structure bois du bâtiment

Structure verticale :

ProduitEssenceProvenances (lieu de croissance du bois)Traitements de préservationMarque et certification produit
Panneau de bois massif (CLT collé ou CLT cloué)TempéréFranceJe n'ai pas l'informationPEFC

Structure horizontale :

ProduitEssenceProvenances (lieu de croissance du bois)Traitements de préservationMarque et certification produit
Panneau de bois massif (CLT collé ou CLT cloué)RésineuxFranceJe n'ai pas l'informationPEFC

Charpente :

ProduitEssenceProvenances (lieu de croissance du bois)Traitements de préservationMarque et certification produit
Charpente bois lamellé-colléTempéréAucuneJe n'ai pas l'informationJe n'ai pas l'information

Revêtement bois extérieur

Menuiserie intérieure et extérieure

Isolation des murs

Isolation intérieure des murs :

Produit
Laine de verre
Epaisseur (mm) Isolation intérieure des murs : 45

Isolation entre-montant des murs :

Produit
Fibre de bois (Panneaux)
Epaisseur (mm) Isolation entre-montant des murs : 160

Isolation extérieure des murs :

Produit
Laine de verre
Epaisseur (mm) Isolation extérieure des murs : 200

Isolation de la toiture

Epaisseur (mm) Isolation intérieure de la toiture : 50
Epaisseur (mm) Isolation entre-montant de la toiture : 50
Epaisseur (mm) Isolation extérieure de la toiture : 160

Approche environnementale : Afin de limiter le bilan carbone du projet, les éléments existants (structure, cloisonnement) ont été conservés au maximum. L’extension est réalisée en matériaux biosourcés : panneaux bois (CLT) de fabrication française. L’approche bioclimatique a consisté à ajouter des protections solaires passives (BSO, préaux bois) sur l’existant. L’extension est venue compactifier le bâti, réduisant ainsi les déperditions. Les choix architecturaux ont été fait dans un souci de pérennité. On trouve en façade des matériaux robustes, sans entretien et recyclables :menuiseries et vêture aluminium

Descriptif technique : Pour réduire au maximum la durée des travaux en site occupé, nous nous sommes tournés vers un système constructif permettant la préfabrication en atelier : les panneaux CLT. Ceux-ci sont laissés apparents à l’intérieur, apportant ainsi une ambiance chaleureuse aux espaces et limitant les finitions rapportées. La charpente (laissée visible autant que possible) est constituée de poutres lamellées-collées. La toiture est végétalisée. L’isolation rapportée sur les panneaux bois est répartie entre l’intérieur et l’extérieur afin d’avoir une enveloppe performante et de traiter l’acoustique des locaux. Toujours dans un souci acoustique, la chape sèche sur les panneaux CLT est constituée de plaques en fibres-gypse issues de matériaux recyclés (Fermacell) associées à un isolant en fibres de bois.

Chauffage au Bois : non
Certifications, labels et marques bâtiment : Aucun
Données déclaratives

Acteurs du projet

Maître d'ouvrage (1)

Maître d'ouvrage - État ou collectivité (locale et territ)

CONSEIL DEPARTEMENTAL DE LA SAVOIE (73)

Etudes et ingénieries (6)

Maître d'œuvre - Architecte mandataire

PATEY ARCHITECTES (73)

Bureau d'études acoustique

ACOUSPHERE (73)

Bureau d'études structure bois

STEBAT (73)

Bureau d'études environnement

CANOPEE (38)

Autre intervenant de la construction - bureau de contrôle, AMO, BIM...

CET GRENOBLE (38)
ACOUSPHERE (73)

Entreprises des lots bois (1)

Charpentier

BELLUKIA (73)

Fournisseurs du bois (1)

Industriel

Piveteau Bois (85)




* : L'entreprise n'est plus active
Retour à la liste