Aménager
Aménager

Restructuration des locaux de l'Agence de l'Eau Rhin-Meuse

57160 ROZERIEULLES - Moselle - Grand Est

AMÉNAGEMENT BOIS

Aménagement intérieur

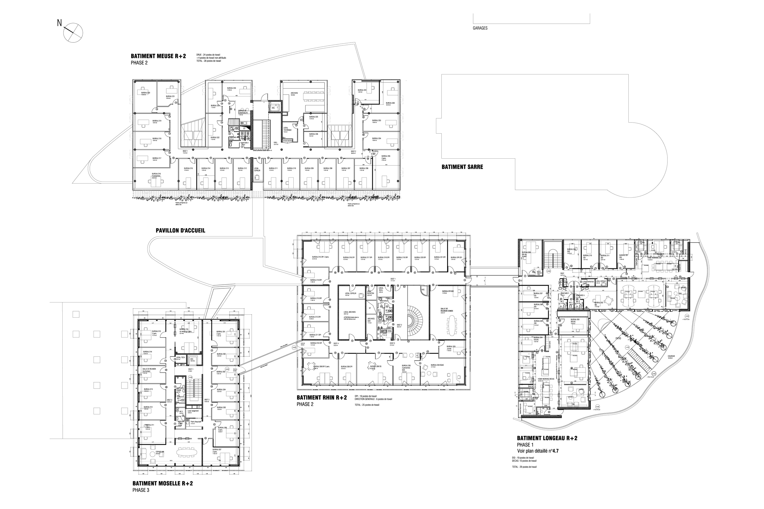
La restructuration des locaux de l’Agence de l’Eau Rhin-Meuse a consisté à l’amélioration du confort thermique et des performances énergétiques de 5 bâtiments construits entre 1971 et 2011. Ce travail sur l’enveloppe thermique a également été accompagné par une rénovation de l’ensemble des espaces intérieurs et la création de mobilier intérieur et extérieur. L’ensemble hétéroclite que formaient les bâtiments existants est aujourd‘hui unifié grâce à l’emploi d’une même section de bois massif dans l’ensemble des interventions (brise-soleil, banque d’accueil, tonnelles, claustras…).

Aménagement exterieur

La restructuration des locaux de l’Agence de l’Eau Rhin-Meuse a consisté à l’amélioration du confort thermique et des performances énergétiques de 5 bâtiments construits entre 1971 et 2011. Ce travail sur l’enveloppe thermique a également été accompagné par une rénovation de l’ensemble des espaces intérieurs et la création de mobilier intérieur et extérieur. L’ensemble hétéroclite que formaient les bâtiments existants est aujourd‘hui unifié grâce à l’emploi d’une même section de bois massif dans l’ensemble des interventions (brise-soleil, banque d’accueil, tonnelles, claustras…).

Catégorie aménagement bois, aménagement intérieur, aménagement exterieur
Numéro de projet7692
Adresse du projet Agence de l'Eau Rhin-Meuse
Chemin de Longeau
57160 ROZERIEULLES
Date de candidature23/02/2023

aménagement bois

typologie : Service institutionnel et public
Coût total en € HT : 3069980

aménagement intérieur

Année de réalisation : 2020
Coût lots bois en € HT : 253304
Surface aménagée en m² : 7494

Liste des produits :

ProduitEssenceProvenances (lieu de croissance du bois)Marque et certification produitFinition
InstallationHêtreFranceHuile
Mobilier, Panneau massif d'agencementHêtreEuropeHuile
Bois Français : oui

Approche environnementale : Mise en place d'une ITI en laine de bois sur l'ensemble des bâtiments. Création de mobilier intérieur en bois de hêtre massif (tables, bancs, meubles rangement, meubles évier, meuble tri des déchets...). Sols caoutchouc naturel. Plafonds acoustiques bois dans les circulations. Réemploie partiel des faux-plafonds existants dans les bureaux. Luminaires LED. Ce projet a permis de changer radicalement l’image des espaces intérieurs, afin qu’ils reflètent les valeurs d’un établissement public sous tutelle du ministère de l'écologie.

Descriptif technique de l'aménagement : 100 % des isolants employés dans le projet sont d'origine biosourcé (200 mm laine de bois pour l'ITI, 400 mm ouate de cellulose en toiture, 40 mm laine de bois dans les cloisons intérieures, etc.). Plafonds des circulations et bureaux partagés en panneaux acoustiques fibre de bois Organic. Sols caoutchouc naturel Nora sans COV ni phtalates. Claustras et banque d'accueil en hêtre massif huilé section 40x140 mm. Mobilier sur mesure en panneaux lamibois de hêtre Baubuche 45 mm.

Des matériaux issus du ré-emploi ont été utilisés dans le projet : oui

aménagement exterieur

Année de réalisation : 2020
Coût lots bois : 277417
Surface aménagée en m² : 7494

Liste des produits :

ProduitEssenceProvenances (lieu de croissance du bois)Traitements de préservationFinitionMarque et certification produit
Abri de jardin / Carport, Brise soleilDouglasEuropeAucun traitementAucune finition
Bois Français : non
Notice architecturale : La restructuration des locaux de l'Agence de l'Eau Rhin-Meuse a consisté à l'amélioration du confort thermique et des performances énergétiques de 5 bâtiments construits entre 1971 et 2011. Ce travail sur l'enveloppe thermique a également été accompagné par une rénovation de l'ensemble des espaces intérieurs et la création de mobilier intérieur et extérieur. L'ensemble hétéroclite que formaient les bâtiments existants est aujourd‘hui unifié grâce à l'emploi d'une même section de bois massif dans l'ensemble des interventions (brise-soleil, banque d'accueil, tonnelles, claustras…).
Approche environnementale : Mise en place de protections solaires sur l'ensemble des façades exposées : brise-soleil en douglas massif, stores extérieurs, treilles végétales composées de vignes vierges et glycines. Remplacement de verrières du bâtiment Meuse provoquant de fortes surchauffes estivales par des toitures charpente bois couverture zinc. Remplacement de l'ensemble des châssis sur le bâtiment Rhin. Création de mobilier extérieur en douglas massif : tonnelles, bancs, tables... Aménagement des abords du ruisseau de Montvaux qui traverse le site.
Descriptif technique de l'aménagement : Ensemble du mobilier extérieur et des brise-soleil en douglas massif section 45*145 mm. Montants des brise-soleil posés sur ferrures métallique en âme intérieure haute et basse et renforcés par tiges filetées Ø 12 intermédiaires et entretoise en tube métallique pour éviter toute déformation dans le temps. Des mats métalliques de 12 m de haut ancrés dans massif béton forment support des câbles inox qui composent la treille végétales du bâtiment Meuse.
Des matériaux issus du ré-emploi ont été utilisés dans le projet : non
Données déclaratives

Acteurs du projet

Maître d'ouvrage (1)

Maître d'ouvrage - État ou collectivité (locale et territ)

Agence de l'Eau Rhin-Meuse (57)

Etudes et ingénieries (4)

Maître d'œuvre - Architecte mandataire

Atelier A4 (57)

Bureau d'études acoustique

ETUDE REALISATION INDUSTRIEL ACOUSTIQUE (SERIAL) (66)

Bureau d'études thermique

CITEL (57)

Economiste

Atelier A4 (57)

Entreprises des lots bois (4)

Charpentier

sarl THOMAS (55)
MARTIN PRODUCTION MOB (54)

Menuisier

BONECHER RICHARD SE BONECHER (57)
EBENISTERIE FORTUNE (54)




* : L'entreprise n'est plus active
Retour à la liste