Réhabiliter un équipement
Réhabiliter un équipement

Réhabilitation et Extension de la Mairie de l'Ile d'Yeu

85350 L ILE D YEU - Vendée - Pays de la Loire

BÂTIMENT / LOGEMENT

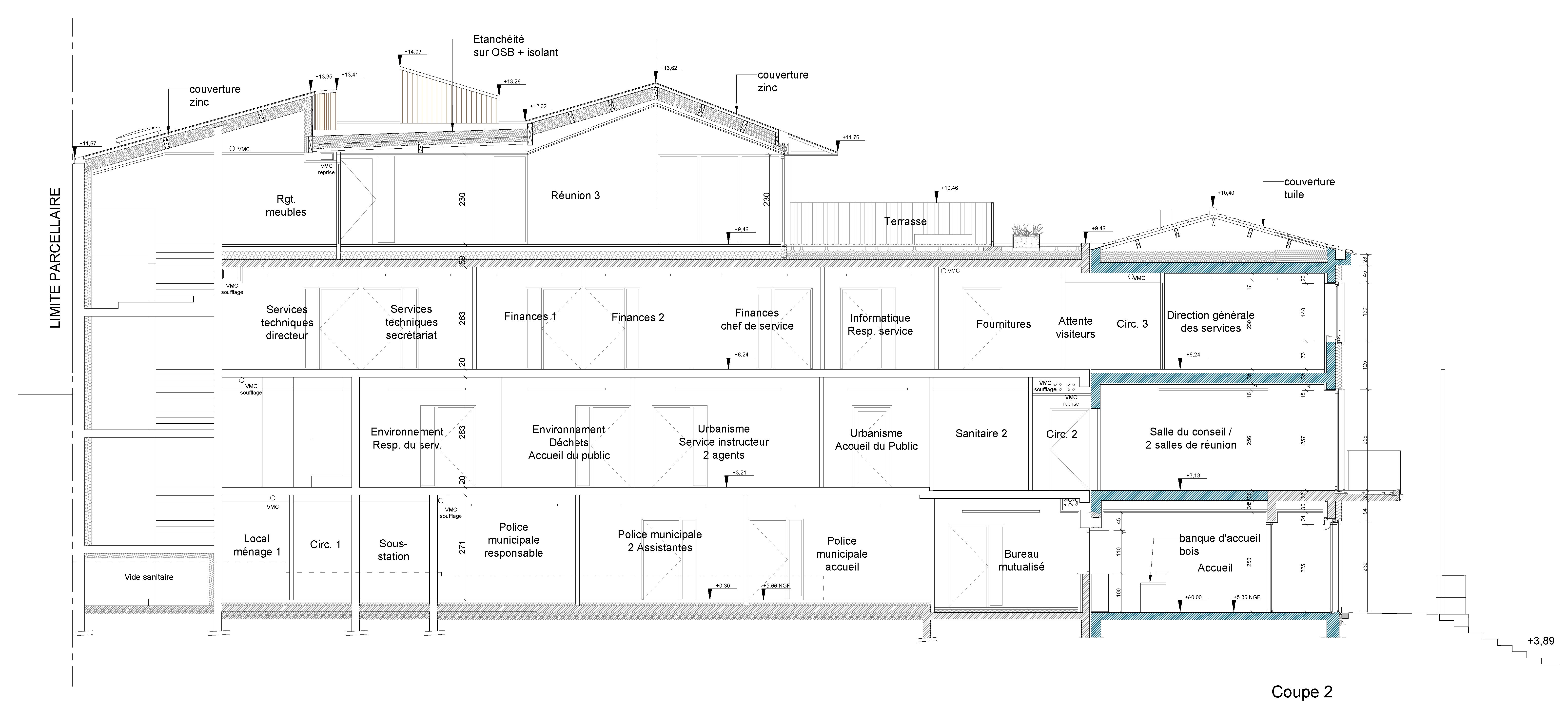
Le projet de la Mairie de l’Ile d’Yeu s’inscrit dans la volonté de la municipalité de valoriser le patrimoine existant et d’afficher pour l’extension une écriture contemporaine forte, tournée vers l’environnement en offrant un accueil et un cadre de travail chaleureux et confortable. Le bâtiment historique voit ses percements sur le quai recomposés. L’extension d’expression contemporaine associe l’enduit blanc local et le bois. Son dernier étage sculpté en attique offre une vue spectaculaire vers le port et l’océan. Ses toitures chahutées participent à l’intégration dans le tissu du bourg.

Catégorie Bâtiment / logement
Numéro de projet7752
Adresse du projet 11 Quai de la Mairie
PORT JOINVILLE
85350 L ILE D YEU
Date de candidature28/02/2023

Bâtiment / logement

Détail projet

Typologie de bâtiment : Extension / surélévation,Rénovation / Réhabilitation
Type de bâtiment : Lieu d'entreprise,Service institutionnel et public
Année de livraison : 2022
Surface totale du bâtiment en m² : 1032
Dont extension / surélévation en m² : 732
Coût total en € HT (hors foncier, hors VRD, hors honoraires) : 3445762.77
Lot bois n°1 concerné : Charpente bois,Bardage bois,ossature bois
Volume lot bois n°1 - m³ : 66
Coût du lot bois n°1 - € HT : 487356
Bois Français : oui
Matériaux issus du ré-emploi (préciser dans le descriptif technique) : non
Isolations biosourcées (préciser dans le descriptif technique) : non
Matériaux géosourcés (préciser dans le descriptif technique) : non
Finitions intéreures biosourcées ou géosourcées (préciser dans le descriptif technique) : non

Structure bois du bâtiment

Structure verticale :

ProduitEssenceProvenances (lieu de croissance du bois)Traitements de préservationMarque et certification produit
Panneau ossature boisTempéréFranceTraitement Classe 2 (trempage)PEFC
Panneau ossature bois

Structure horizontale :

ProduitEssenceProvenances (lieu de croissance du bois)Traitements de préservationMarque et certification produit
Plancher béton

Charpente :

ProduitEssenceProvenances (lieu de croissance du bois)Traitements de préservationMarque et certification produit
Charpente bois lamellé-collé, Charpente traditionnelleTempéréFranceTraitement Classe 2 (trempage)PEFC

Revêtement bois extérieur

Revêtement bois ou dérivés :

ProduitEssenceProvenances (lieu de croissance du bois)Marque et certification produitFinitionTraitements de préservation
Lame bois massifTempéréFranceOrigine France Garantiepré-griséTraitement Classe 3b (autoclave)

Menuiserie intérieure et extérieure

Menuiserie intérieure :

ProduitEssenceProvenances (lieu de croissance du bois)FinitionMarque et certification produit
MobilierTempéréFranceJe n'ai pas l'informationPEFC

Menuiserie extérieure :

ProduitEssenceProvenances (lieu de croissance du bois)Marque et certification produitFinition
Brise soleil bois, Menuiserie mixte, Volet boisTempéréFrancePEFCPeinture

Isolation des murs

Isolation intérieure des murs :

Produit
Autres
Laine de verre
Epaisseur (mm) Isolation intérieure des murs : 180

Isolation entre-montant des murs :

Produit
Laine de verre
Epaisseur (mm) Isolation entre-montant des murs : 145

Isolation extérieure des murs :

Produit
Polystyrène
Epaisseur (mm) Isolation extérieure des murs : 160

Isolation de la toiture

Epaisseur (mm) Isolation intérieure de la toiture : 320

Approche environnementale : Le bâtiment patrimonial est isolé par l’extérieur. L’extension est en murs à ossature bois. Cette solution de préfabrication nous a semblé pertinente en matière d’approvisionnement par bateau. Nous avons choisi le bois non peint pour l’extension. Ce matériau affiche le caractère environnemental souhaité pour ce projet. Il offre une écriture contemporaine, chaleureuse, sobre et respectueuse des teintes locales. Ce bois est pré-grisé pour se fondre immédiatement dans le paysage. Le projet intègre des panneaux photovoltaïques et la possibilité de se raccorder à un chauffage urbain.

Descriptif technique : Structure : Les planchers sont en béton. Les façades de l’extension Rue Requenon et en cœur d’ilot sont en ossature bois. Couverture : Toiture zinc Bardage, brise-soleil : Bois pré-grisé, bardage à lames verticales, tasseaux rapportés devant bardage Menuiseries extérieures : En bois peint pour le bâtiment existant et en aluminium prélaqué pour l’extension Volets : bois Plafonds acoustiques : Fibres de bois et lames aluminium perforé Revêtement de sol : Carrelage au RDC et revêtement textile type Flotex dans les étages

Performance du bâtiment (Cep en kWhep/m²/an) : 52.7
Chauffage au Bois : non
Données déclaratives

Acteurs du projet

Maître d'ouvrage (1)

Maître d'ouvrage - État ou collectivité (locale et territ)

Commune de l'Ile d'Yeu (85)

Etudes et ingénieries (5)

Maître d'œuvre - Architecte mandataire

Architecture Blanchard Marsault Pondevie Sarl (85)

Bureau d'études acoustique

Gamba Accoustique (44)

Bureau d'études thermique

Area Études La Roche (85)

Economiste

Cabinet Denis Rousseau - Challans (85)

Autre intervenant de la construction - bureau de contrôle, AMO, BIM...

INTECO DIRECTION DE TRAVAUX ET OPC (85)

Entreprises des lots bois (1)

Constructeur bois

LCA Construction Bois (85)




* : L'entreprise n'est plus active
Retour à la liste