Réhabiliter un logement

Réhabilitation frugale

59370 MONS EN BAROEUL - Nord - Hauts-de-France

BÂTIMENT / LOGEMENT

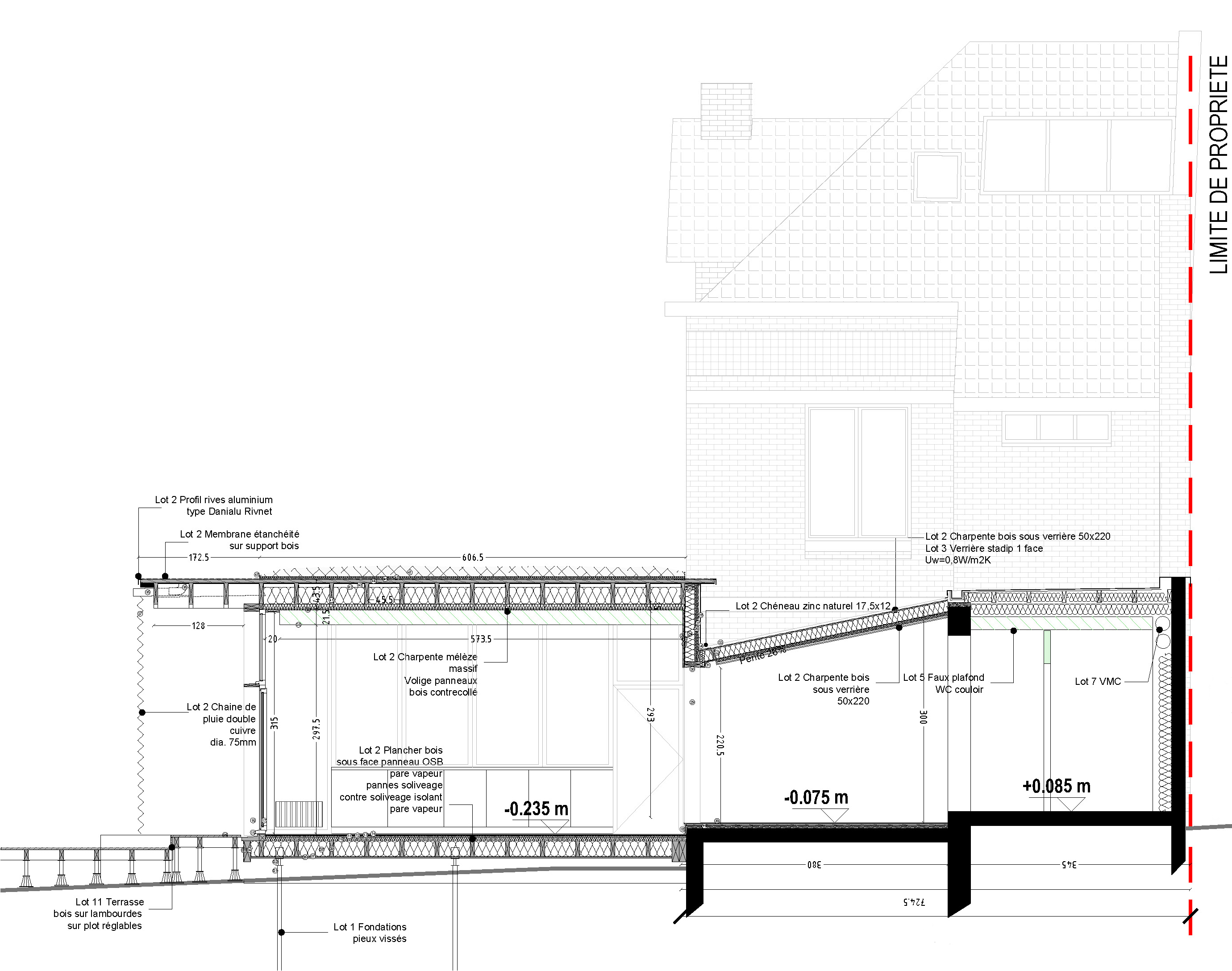
Le projet a permis de retrouver la configuration d’origine de cette maison de 1928 qui avait été divisée en 2 appartements. L’extension vise à ajouter une cuisine ouverte sur le terrain arboré. Elle s’inscrit dans la pente, organisant une transition entre le niveau de la maison existante et le jardin, et connecte salon et salle à manger, multipliant ainsi les vues et perspectives des pièces de vie vers l’extérieur. La structure bois de l’extension est montrée au dehors, la charpente en débord protège la façade sud du soleil et rappelle les corbeaux de la toiture de la maison réhabilitée.

Catégorie Bâtiment / logement
Numéro de projet7859
Date de candidature05/03/2023

Bâtiment / logement

Détail projet

Typologie de bâtiment : Extension / surélévation,Rénovation / Réhabilitation
Type de bâtiment : Logement individuel supérieur à 120 m²
Année de livraison : 2021
Surface totale du bâtiment en m² : 170
Dont extension / surélévation en m² : 30
Coût total en € HT (hors foncier, hors VRD, hors honoraires) : 2840000
Lot bois n°1 concerné : Charpente bois,ossature bois,Autre lot bois
Volume lot bois n°1 - m³ : 13.695
Coût du lot bois n°1 - € HT : 55570
Lot bois n°2 concerné : Menuiserie extérieure bois
Volume lot bois n°2 - m³ : 0.74
Coût du lot bois n°2 - € HT : 35263
Bois Français : non
Matériaux issus du ré-emploi (préciser dans le descriptif technique) : oui
Isolations biosourcées (préciser dans le descriptif technique) : oui
Matériaux géosourcés (préciser dans le descriptif technique) : non
Finitions intéreures biosourcées ou géosourcées (préciser dans le descriptif technique) : non

Structure bois du bâtiment

Structure verticale :

ProduitEssenceProvenances (lieu de croissance du bois)Traitements de préservationMarque et certification produit
Panneau ossature boisÉpicéa communEuropeJe n'ai pas l'informationJe n'ai pas l'information
Poteau poutreMélèzeEuropeAucun traitementJe n'ai pas l'information

Structure horizontale :

ProduitEssenceProvenances (lieu de croissance du bois)Traitements de préservationMarque et certification produit
Dalle boisRésineuxEuropeJe n'ai pas l'informationJe n'ai pas l'information

Charpente :

ProduitEssenceProvenances (lieu de croissance du bois)Traitements de préservationMarque et certification produit
Charpente traditionnelleMélèzeEuropeAucun traitementJe n'ai pas l'information
Charpente traditionnelleRésineuxEuropeJe n'ai pas l'informationJe n'ai pas l'information

Revêtement bois extérieur

Revêtement minéral :

Produit
Autres

Menuiserie intérieure et extérieure

Menuiserie intérieure :

ProduitEssenceProvenances (lieu de croissance du bois)FinitionMarque et certification produit
EscalierHêtreEuropeHuileJe n'ai pas l'information

Menuiserie extérieure :

ProduitEssenceProvenances (lieu de croissance du bois)Marque et certification produitFinition
Menuiserie boisMélèzeEuropeJe n'ai pas l'informationLasure

Isolation des murs

Isolation intérieure des murs :

Produit
Fibre de bois (Panneaux)
Epaisseur (mm) Isolation intérieure des murs : 180

Isolation entre-montant des murs :

Produit
Fibre de bois (Panneaux)
Epaisseur (mm) Isolation entre-montant des murs : 185

Isolation extérieure des murs :

Produit
Fibre de bois (Panneaux)
Epaisseur (mm) Isolation extérieure des murs : 35

Isolation de la toiture

Epaisseur (mm) Isolation intérieure de la toiture : 80
Epaisseur (mm) Isolation entre-montant de la toiture : 220

Approche environnementale : Une démarche de sobriété est menée par un travail sur les performances de l’enveloppe, le recours aux apports passifs. Isolants biosourcés, structure et plancher bois, fondations en pieux vissés, moins de 1m3 de béton en soutènement du terrain, bardage de récupération, plans de travail en PEHD recyclé, tout a été choisi afin de réduire l’impact carbone de ce chantier. Des travaux à venir compléteront la démarche sur les volets eau et biodiversité : la végétalisation de la toiture, l’ajout d’un stockage d’eau pluviale et la création d’une mare alimentée par les toitures.

Descriptif technique : Fondations : pieux vissés acier ; Structure extension : mélèze et épicéa, menuiseries bois triple vitrage ; Bardage : panneaux fibre ciment de récupération « sauvés de la destruction» ; Isolation : fibre de bois, pare-pluie panneaux fibre de bois compressée ; Couverture : membrane polyolefine claire recyclable, végétalisation extensive (à réaliser) ; Etanchéité à l’air complète, ponts thermiques réduits. Performance de parois variant de Up=0,13 (toitures) à 0,2 W/(m2.K) ; Chauffage : chaudière gaz maintenue afin de conserver l’ensemble des radiateurs existants, suppléé par poêle à bûches ; Ventilation : VMC double flux à haut rendement (90%) : réduction des déperditions par l’air, et confort d’un air neuf préchauffé. Surventilation estivale par tirage naturel via cage d’escalier.

Chauffage au Bois : oui
Appareil de chauffage au bois : Poële/insert
Certifications, labels et marques bâtiment : Aucun
Données déclaratives

Acteurs du projet

Maître d'ouvrage (1)

Maître d'ouvrage - Particuliers

particulier (x)

Etudes et ingénieries (3)

Maître d'œuvre - Architecte mandataire

BLAU (59)

Maître d’œuvre - Architecte associé

Olivier JOST (59)

Bureau d'études environnement

Olivier JOST (59)

Entreprises des lots bois (3)

Charpentier

EDWOOD CONSTRUCTION BOIS (59)

Menuisier

BILLIET Menuiserie (59)

Autre lot de la construction (en lien avec le bois)

TECHNOPIEUX (49)




* : L'entreprise n'est plus active
Retour à la liste