Travailler – accueillir
Travailler – accueillir

Pavillon temporaire

06400 CANNES - Alpes maritimes - Provence Alpes Côte d'Azur

BÂTIMENT / LOGEMENT

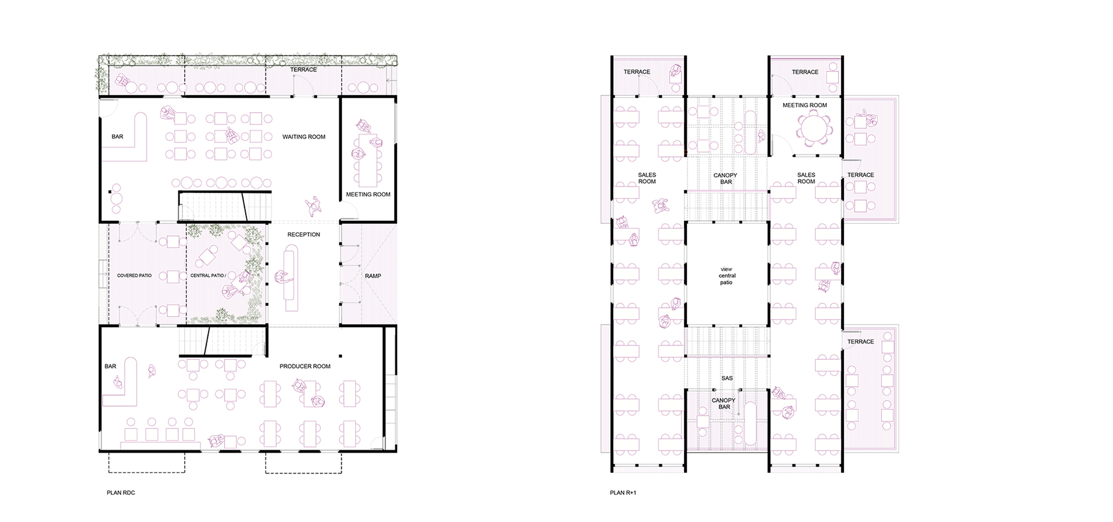
Implanté devant les marches du Palais du festival de Cannes, ce stand XXL a été conçu pour être démontable et remontable chaque année pour le MIPCOM et autres évènements majeurs cannois. Construit autour du patio végétalisé, ce bâtiment éphémère se compose de quatre volume superposés deux à deux, reliés par des verrières. Cette composition offre des jeux de transparences et des multiples cadrages sur l’architecture balnéaire cannoise et sa végétation luxuriante. L’ensemble du projet a été dessiné en 3D et préfabriqué en amont pour respecter les courts délais de montage.

Catégorie Bâtiment / logement
Numéro de projet7883
Adresse du projet 1 Bd de la Croisette
06400 CANNES
Date de candidature06/03/2023

Bâtiment / logement

Détail projet

Typologie de bâtiment : Neuf
Type de bâtiment : Lieu d'entreprise
Année de livraison : 2022
Surface totale du bâtiment en m² : 350
Dont extension / surélévation en m² : 150
Coût total en € HT (hors foncier, hors VRD, hors honoraires) : 620000
Lot bois n°1 concerné : ossature bois
Coût du lot bois n°1 - € HT : 107000
Lot bois n°2 concerné : Menuiserie extérieure bois
Coût du lot bois n°2 - € HT : 63000
Bois Français : non
Matériaux issus du ré-emploi (préciser dans le descriptif technique) : non
Isolations biosourcées (préciser dans le descriptif technique) : oui
Matériaux géosourcés (préciser dans le descriptif technique) : non
Finitions intéreures biosourcées ou géosourcées (préciser dans le descriptif technique) : non

Structure bois du bâtiment

Structure verticale :

ProduitEssenceProvenances (lieu de croissance du bois)Traitements de préservationMarque et certification produit
Panneau de bois massif (CLT collé ou CLT cloué)TempéréEurope

Structure horizontale :

ProduitEssenceProvenances (lieu de croissance du bois)Traitements de préservationMarque et certification produit
Panneau de bois massif (CLT collé ou CLT cloué)TempéréEurope

Charpente :

ProduitEssenceProvenances (lieu de croissance du bois)Traitements de préservationMarque et certification produit
Caisson de toitureTempéréEurope

Revêtement bois extérieur

Menuiserie intérieure et extérieure

Isolation des murs

Isolation de la toiture

Epaisseur (mm) Isolation intérieure de la toiture : 20

Approche environnementale : Le monde évènementielle, foires, festivals salons apparait parfois comme un monde en contradiction avec l'écologie et la réduction de nos empreinte carbone. Notre approche environnementale a été de proposer un pavillon temporaire 100 % bois, ( au lieu d e l'acier et du pvc, très largement utilisé dans ce secteur ), démontable rapidement, mais surtout remontable pour les autres années, ce qui a influé la conception du bâtiments ( technique de vissage particulière, etc )

Descriptif technique : Le défi majeur de ce projet est le temps de construction, qui doit respecter le temps de montage des salons temporaires, à savoir une semaine.4 jours ont été nécessaires pour implanter le bâtiments et monter la structure en clt, et 3 jours pour réaliser les finitions intérieurs et meubler le stand. L'ensemble de la structure a été réalisé en CLT épicéa , murs en 124mm ,caissons allant de 160 à 240mm. Les menuiseries en épicéa ont été réalisées par une entreprise local. Les faux plafond sont en bois et proviennent de la même usine que la structure. Vu le contexte temporaire et le climat clément cannois, aucun système de chauffage n'a été prévu, ni isolation. Tout les meubles, tables, bar, ont été réalisé en bois par une entreprise italienne.

Chauffage au Bois : non
Certifications, labels et marques bâtiment : Bâtiment Bas Carbone (BBCA)
Données déclaratives

Acteurs du projet

Maître d'ouvrage (1)

Maître d'ouvrage - Industriels - commerçants - entreprise

BANIJAY GROUP (75)

Etudes et ingénieries (3)

Maître d'œuvre - Architecte mandataire

NICOLA SPINETTO ARCHITECTES (75)

Bureau d'études structure bois

Etudes Bois du Barrois (55) *

Autre intervenant de la construction - bureau de contrôle, AMO, BIM...

ORATI (75)

Entreprises des lots bois (7)

Charpentier

WOOD SCOP (38) *
CL charpente (71)
FOREZ BOIS CONSTRUCTION (42)
Jean Marchand Charpente (84)
Construibois (29)
LESAGE (06)

Constructeur bois

novawood systèmes (55)

Fournisseurs du bois (1)

Industriel

novawood systèmes (55)




* : L'entreprise n'est plus active
Retour à la liste