Aménager
Aménager

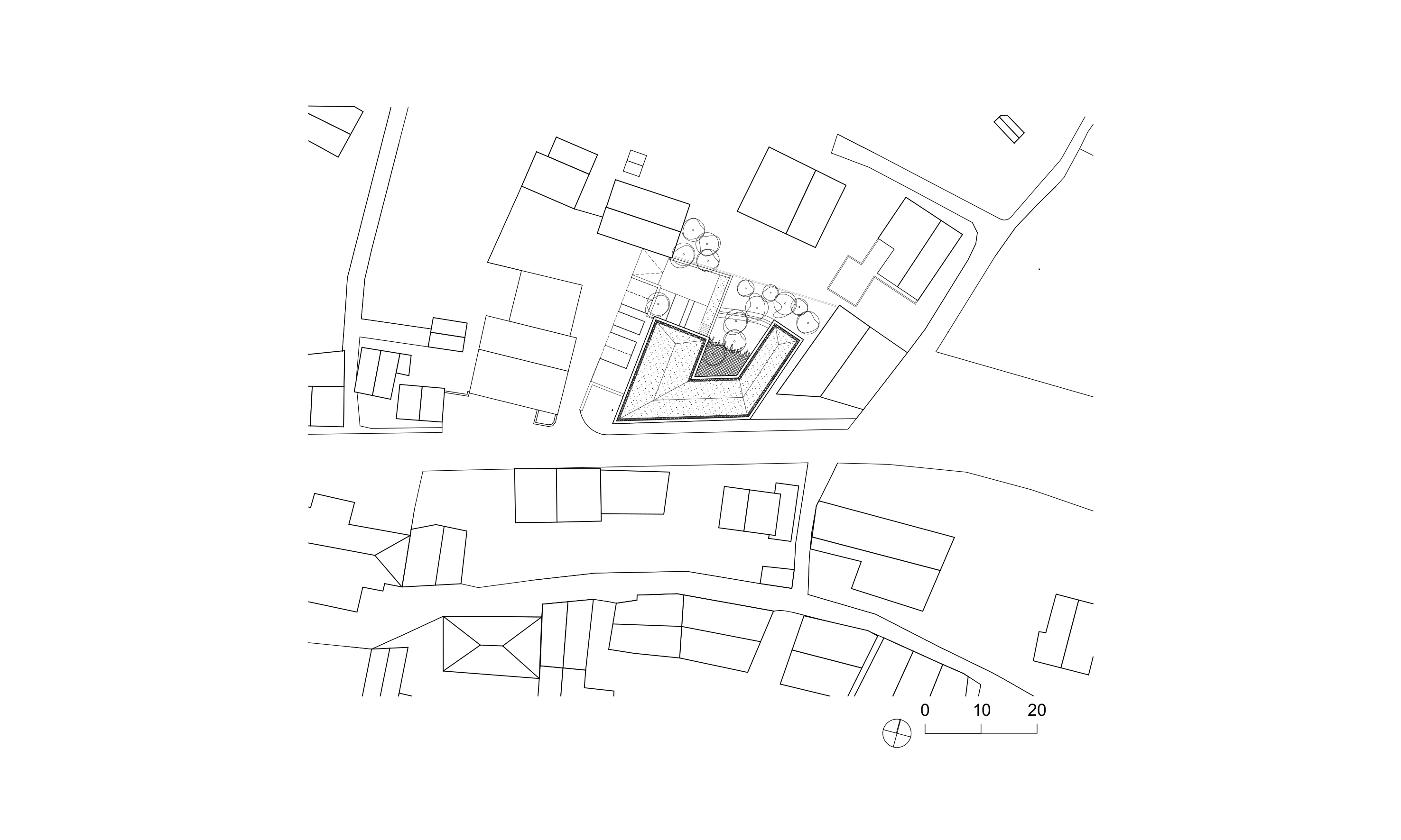
Café/Bibliothèque à la Plagne Tarentaise

73210 LA PLAGNE TARENTAISE - Savoie - Auvergne-Rhône-Alpes

AMÉNAGEMENT BOIS

Aménagement intérieur

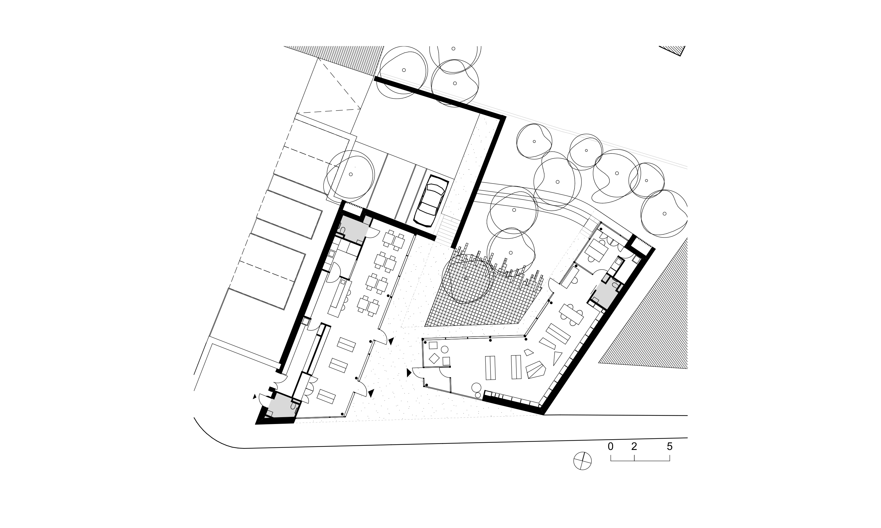
L’aménagement intérieur de la bibliothèque de Bellentre a été conçu entièrement en bois (étagères intégrées en murs, plafond absorbants bois, parquet bois au sol. Cette unité de matériau vient révéler les espaces intérieurs qui sont conçus comme des creux dans une masse en pierre (cf matériau de façade). Les espaces intérieurs sont organisés eu U et tournés vers un jardin intérieur. Le mur de façade auquel nous souhaitions donner une certaine épaisseur pour évoquer sa massivité intègre un mur de rangement. Des étagères et des présentoirs à livres sont intégrés dans un contraste de teinte).

Catégorie aménagement bois, aménagement intérieur
Numéro de projet7890
Adresse du projet 4 Grande rue
73210 LA PLAGNE TARENTAISE
Date de candidature06/03/2023

aménagement bois

typologie : Service institutionnel et public
Coût total en € HT : 761225

aménagement intérieur

Année de réalisation : 2022
Coût total Aménagement Intérieur en € HT : 213000
Coût lots bois en € HT : 67000
Volume bois m³ : 35
Surface aménagée en m² : 102

Liste des produits :

ProduitEssenceProvenances (lieu de croissance du bois)Marque et certification produitFinition
MobilierFrêneEuropeHuile
ParquetChêneFranceHuile
Installation
Panneau massif d'agencementFrêneEuropeJe n'ai pas l'informationAutres
Bois Français : oui

Approche environnementale : L’aménagement bois est prolongé par un jardin. Les façades sont entièrement vitrées sur cet intérieur qui a vocation à revégétaliser ce cœur de village. Cette démarche participe à lutter contre l’îlot de chaleur. La terrasse est recouverte de pavés enherbés qui s’estompent vers le jardin en herbe. L’organisation de ces espaces valorise le potentiel solaire et le potentiel éolien pour minimiser les besoins : apports solaires en hiver, ventilation naturelle. Des protections solaires sont intégrées aux façades afin de gérer le confort thermique d’été.

Descriptif technique de l'aménagement : Afin de s’assurer de l’absence de corps de chauffe le parquet est posé sur un plancher chauffant. Les lames sont posées de façon rayonnante afin d’orienter le regard vers l’espace extérieur. Le plafond est constitué de liteaux frêne classe M1 traités autoclave, ajourés fixés sur un isolant acoustique permettant d’assurer le confort de cette zone de lecture. Le calepinage du plafond a nécessité une coordination fine avec les lots techniques pour intégrer les luminaires et la ventilation. Le mur de rangement présente une zone de présentation des livres qui accentue la ligne horizontale et l’effet de longueur de cet espace. Des boites en bois clair viennent ponctuer les étagères afin de mettre en évidence certains ouvrages. Des tiroirs invisibles sont présents sous les étagères.

Des matériaux issus du ré-emploi ont été utilisés dans le projet : non
Données déclaratives

Acteurs du projet

Maître d'ouvrage (1)

Maître d'ouvrage - État ou collectivité (locale et territ)

COMMUNE DE LA PLAGNE TARENTAISE (73)

Etudes et ingénieries (3)

Maître d'œuvre - Architecte mandataire

CAAZ ARCHITECTURE (38)

Bureau d'études thermique

AXIOME IEC (38)

Economiste

MPF INGENIERIE (38)

Entreprises des lots bois (1)

Menuisier

CHARPENTERIE BUET (73)




* : L'entreprise n'est plus active
Retour à la liste