Habiter une maison

Maison passive avec atelier d'artiste à Carquefou

44470 CARQUEFOU - Loire Atlantique - Pays de la Loire

BÂTIMENT / LOGEMENT

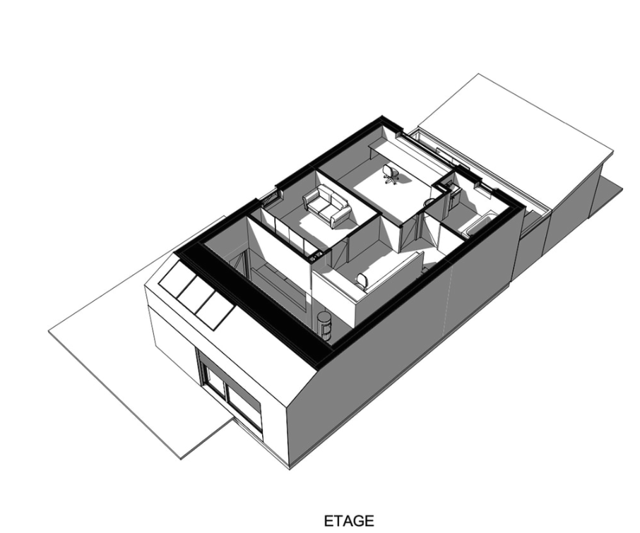
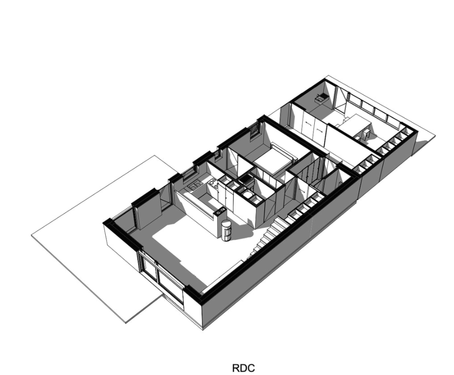
Dans le plus grand quartier passif d'Europe, (La Fleuriaye 2 à Carquefou) une maison écologique avec ateliers (céramique et calligraphie) pour des grands-parents aimant accueillir leurs petits enfants autour d’activités créatives et manuelles. L’atelier de céramique est implanté au nord pour capter lumière naturelle et vues vers la nature. Un préau couvert de polycarbonate relie ce volume à l’habitation. A l’étage, une chambre d’amis, un bureau mezzanine et l’atelier de calligraphie occupent les amples volumes créés par les rampants de toiture, dont profite le séjour en double-hauteur.

Catégorie Bâtiment / logement
Numéro de projet7897
Date de candidature06/03/2023

Bâtiment / logement

Détail projet

Typologie de bâtiment : Neuf
Type de bâtiment : Logement individuel inférieur 120 m²
Année de livraison : 2020
Surface totale du bâtiment en m² : 118
Coût total en € HT (hors foncier, hors VRD, hors honoraires) : 265352
Coût du lot bois n°1 - € HT : 103464
Bois Français : oui
Matériaux issus du ré-emploi (préciser dans le descriptif technique) : non
Isolations biosourcées (préciser dans le descriptif technique) : oui
Matériaux géosourcés (préciser dans le descriptif technique) : non
Finitions intéreures biosourcées ou géosourcées (préciser dans le descriptif technique) : oui

Structure bois du bâtiment

Structure verticale :

ProduitEssenceProvenances (lieu de croissance du bois)Traitements de préservationMarque et certification produit
Panneau de bois massif (CLT collé ou CLT cloué)Épicéa communEuropeAucun traitementPEFC

Structure horizontale :

ProduitEssenceProvenances (lieu de croissance du bois)Traitements de préservationMarque et certification produit
Panneau de bois massif (CLT collé ou CLT cloué)Épicéa communEuropeAucun traitementPEFC

Charpente :

ProduitEssenceProvenances (lieu de croissance du bois)Traitements de préservationMarque et certification produit
Caisson de toitureDouglasFranceAucun traitementJe n'ai pas l'information

Revêtement bois extérieur

Revêtement bois ou dérivés :

ProduitEssenceProvenances (lieu de croissance du bois)Marque et certification produitFinitionTraitements de préservation
Lame bois massifDouglasFranceJe n'ai pas l'informationAucune finitionAucun traitement

Menuiserie intérieure et extérieure

Menuiserie extérieure :

ProduitEssenceProvenances (lieu de croissance du bois)Marque et certification produitFinition
Menuiserie mixtePin sylvestreFranceJe n'ai pas l'informationLasure

Isolation des murs

Isolation extérieure des murs :

Produit
Fibre de bois (Panneaux)
Epaisseur (mm) Isolation extérieure des murs : 220

Isolation de la toiture

Epaisseur (mm) Isolation entre-montant de la toiture : 300
Epaisseur (mm) Isolation extérieure de la toiture : 35

Approche environnementale : ​Le parti architectural met en valeur les caractéristiques du mode constructif: la dalle de béton quartzé du RdC, les panneaux de bois massif contre-collé (CLT) des murs, de l’escalier et du plancher de l’étage sont laissés apparents. Citerne d’eau de pluie et centrale de panneaux solaires viennent compléter les caractéristiques éco-responsables souhaitées par les porteurs de ce projet de maison passive. Les finitions brutes, l'usage de bois massif (CLT) et d'isolants biossourcés permettent de minimiser l'empreinte carbone de la construction.

Descriptif technique : - Ossature CLT apparent (murs extérieurs, sous-face du plancher intermédiaire, rampants des toitures, escalier) - Isolation par l'extérieur en fibre de bois >> zéro pont thermique - Menuiseries mixtes bois aluminium avec triple vitrages - Dalle RdC: béton quartz sur isolant pour l'inertie - Bardage Douglas naturel non raboté - Toiture ardoises naturelles - Récupération d'eau de pluie - Panneaux solaires photovoltaïques - Ventilation double-flux avec récupération de chaleur bouches chauffantes avec régulation par pièce - Poêle à granulés - Peinture écolabellisée - Revêtement de sol stratifié écologique à base de liège et sans PVC

Performance du bâtiment (Cep en kWhep/m²/an) : 29.9
Chauffage au Bois : oui
Appareil de chauffage au bois : Poële/insert
Certifications, labels et marques bâtiment : Passivhaus
Données déclaratives

Acteurs du projet

Maître d'ouvrage (1)

Maître d'ouvrage - Particuliers

particulier (x)

Etudes et ingénieries (2)

Maître d'œuvre - Architecte mandataire

Tektolab Architectes (44)

Bureau d'études thermique

TY ECO2 (35)

Entreprises des lots bois (2)

Charpentier

Atelier Isac (44)

Menuisier

Atelier Isac (44)

Fournisseurs du bois (3)

Scierie

KLH - Lignatec (88)
Piveteau Bois (85)

Industriel

Minco Sas (44)




* : L'entreprise n'est plus active
Retour à la liste