Habiter une maison
Habiter une maison

Maison à la campagne

38120 PROVEYSIEUX - Isère - Auvergne-Rhône-Alpes

BÂTIMENT / LOGEMENT

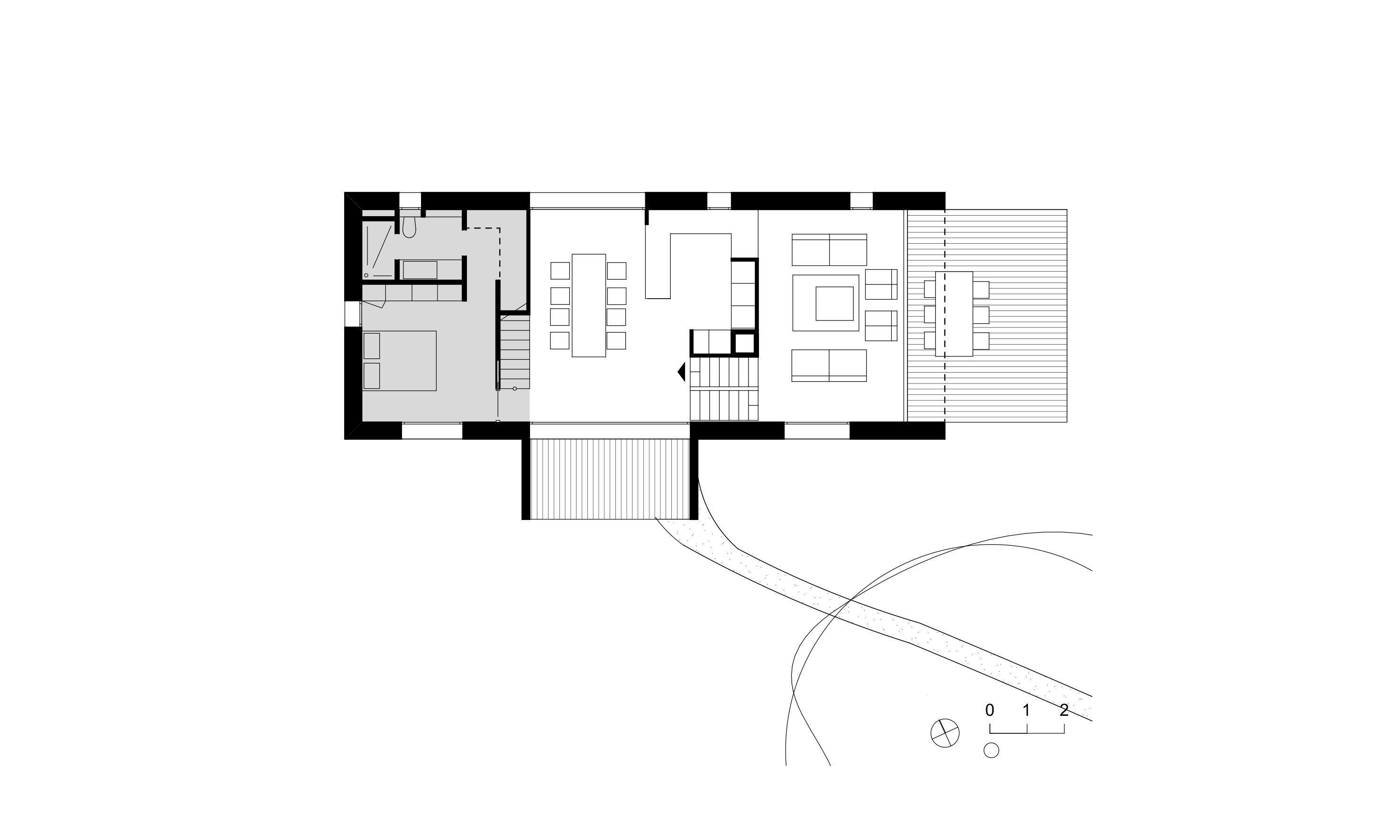
La maison vient se poser délicatement au plus près des courbes du terrain naturel. Sa plastique joue avec de multiples percements sur le grand paysage. Chaque façade est travaillée pour composer des variations équilibrées et organiser les espaces intérieurs vers les grands paysages alentours. Le bardage de façade régulier reprend le typage des maisons du village. La maison s’organise sur 3 niveaux dont un séjour/cuisine en demi-niveau afin de générer un espace de vie généreux au Sud, cadrant principalement sur le Néron. Un balcon en façade Ouest génère une entrée extérieure protégée.

Catégorie Bâtiment / logement
Numéro de projet7898
Date de candidature06/03/2023

Bâtiment / logement

Détail projet

Typologie de bâtiment : Neuf
Type de bâtiment : Logement individuel supérieur à 120 m²
Année de livraison : 2021
Surface totale du bâtiment en m² : 230
Coût total en € HT (hors foncier, hors VRD, hors honoraires) : 237500
Lot bois n°1 concerné : Charpente bois,Bardage bois,Autre lot bois
Volume lot bois n°1 - m³ : 21
Coût du lot bois n°1 - € HT : 33330
Bois Français : oui
Matériaux issus du ré-emploi (préciser dans le descriptif technique) : non
Isolations biosourcées (préciser dans le descriptif technique) : non
Matériaux géosourcés (préciser dans le descriptif technique) : oui
Finitions intéreures biosourcées ou géosourcées (préciser dans le descriptif technique) : non

Structure bois du bâtiment

Structure verticale :

ProduitEssenceProvenances (lieu de croissance du bois)Traitements de préservationMarque et certification produit
Non précisé

Structure horizontale :

ProduitEssenceProvenances (lieu de croissance du bois)Traitements de préservationMarque et certification produit
Plancher béton

Charpente :

ProduitEssenceProvenances (lieu de croissance du bois)Traitements de préservationMarque et certification produit
Charpente traditionnelleÉpicéa communFranceTraitement Classe 2 (trempage)

Revêtement bois extérieur

Revêtement bois ou dérivés :

ProduitEssenceProvenances (lieu de croissance du bois)Marque et certification produitFinitionTraitements de préservation
Lame bois massifDouglasFranceAucune finition

Menuiserie intérieure et extérieure

Menuiserie intérieure :

ProduitEssenceProvenances (lieu de croissance du bois)FinitionMarque et certification produit
EscalierChêneFranceHuile

Isolation des murs

Isolation extérieure des murs :

Produit
Laine de verre
Epaisseur (mm) Isolation extérieure des murs : 200

Isolation de la toiture

Epaisseur (mm) Isolation entre-montant de la toiture : 240

Approche environnementale : L’organisation interne de la maison a permis de donner à cette habitation une orientation optimale autant pour des raisons bioclimatiques que pour minimiser son impact dans le site. La construction est isolée par l’extérieur. Tous les ponts thermiques sont traités. Les fenêtres sont équipées de brise-soleil orientables.

Descriptif technique : La maison se propose de donner à lire sa réalité constructive. Les murs structurels sont en béton. Ce matériau est laissé brut en finition intérieure. Il apporte de l’inertie aux espaces intérieures. La charpente est réalisée en bois de façon traditionnelle. L’ensemble des façades est revêtu d’un bardage bois. La mise en œuvre du bardage reprend les façades ancestrales du hameau. La toiture est conçue sans débord de toiture afin d’assurer un vieillissement homogène de la façade (aucune coulure). Les caniveaux sont intégrés dans l’épaisseur du bardage.

Chauffage au Bois : oui
Appareil de chauffage au bois : Chaudière
Données déclaratives

Acteurs du projet

Maître d'ouvrage (1)

Maître d'ouvrage - Particuliers

particulier (x)

Etudes et ingénieries (1)

Maître d'œuvre - Architecte mandataire

CAAZ ARCHITECTURE (38)




* : L'entreprise n'est plus active
Retour à la liste