Travailler – accueillir, Réhabiliter un équipementTravailler – accueillir, Réhabiliter un équipement
Travailler – accueillir, Réhabiliter un équipement

Siège social pour l'association ASSIA

35131 CHARTRES DE BRETAGNE - Ille et Vilaine - Bretagne
Lauréat régional

BÂTIMENT / LOGEMENT

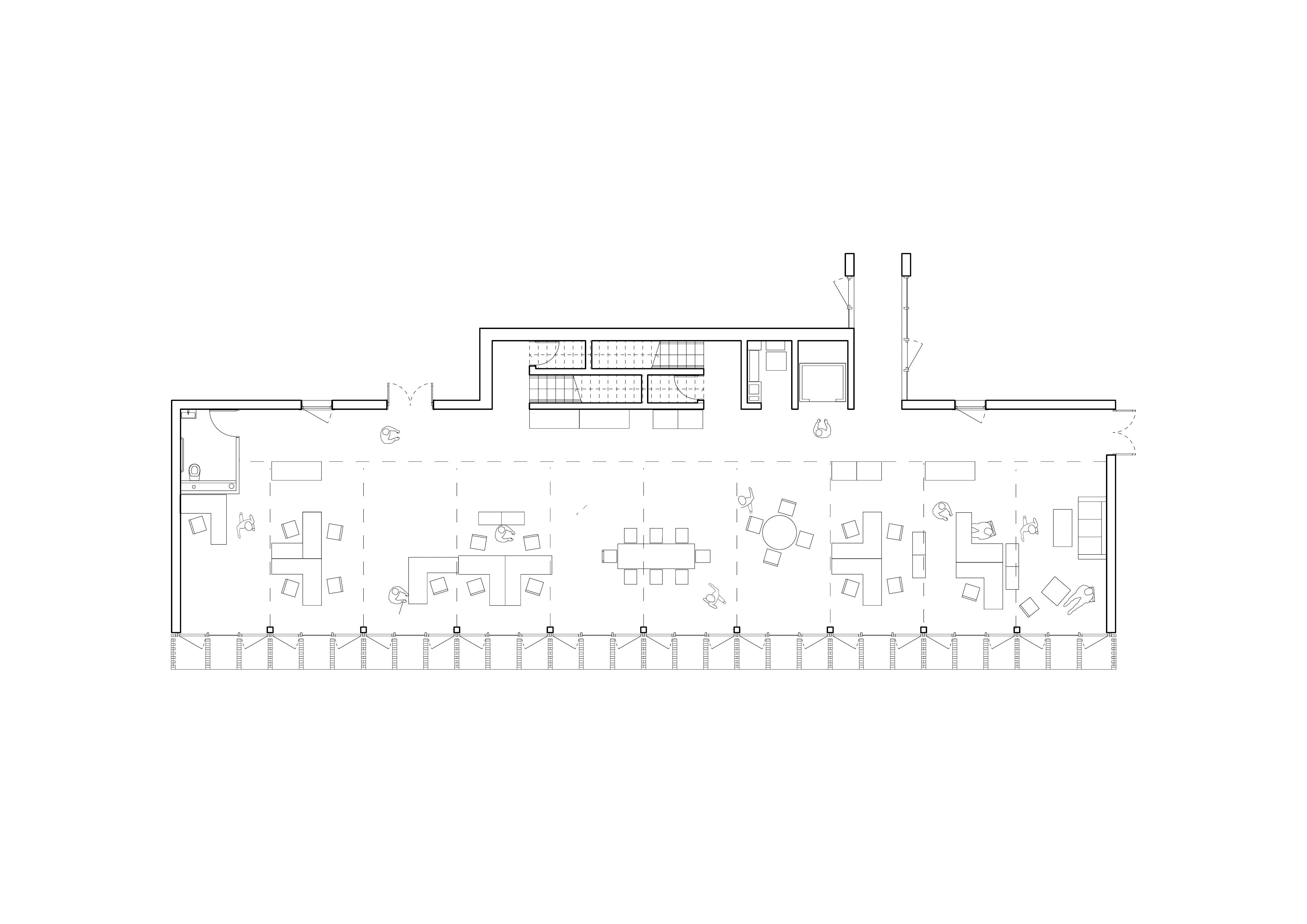
L’extension réalisée est détachée de l’existant, uniquement reliée par une passerelle vitrée. Le nouveau bâtiment s’élève sur trois niveaux, développant ainsi une grande surface de plancher tout en préservant un maximum de terrain libre au sol. Cela permet la création d’un espace planté entre l’existant et l’entité bâti. Notre réflexion nous amène à répondre à un programme spécifique qui puisse évoluer dans le temps. Nous avons créé un plateau libre, sur une trame constructive en poteaux et poutres bois.

Catégorie Bâtiment / logement
Numéro de projet7941
Adresse du projet 35131 CHARTRES DE BRETAGNE
Date de candidature07/03/2023

Bâtiment / logement

Détail projet

Typologie de bâtiment : Neuf,Extension / surélévation,Rénovation / Réhabilitation
Type de bâtiment : Lieu d'entreprise
Année de livraison : 2022
Surface totale du bâtiment en m² : 1700
Dont extension / surélévation en m² : 1700
Coût total en € HT (hors foncier, hors VRD, hors honoraires) : 1540000.00
Bois Français : oui
Matériaux issus du ré-emploi (préciser dans le descriptif technique) : non
Isolations biosourcées (préciser dans le descriptif technique) : oui
Matériaux géosourcés (préciser dans le descriptif technique) : non
Finitions intéreures biosourcées ou géosourcées (préciser dans le descriptif technique) : oui

Structure bois du bâtiment

Structure verticale :

ProduitEssenceProvenances (lieu de croissance du bois)Traitements de préservationMarque et certification produit
Panneau ossature bois

Structure horizontale :

ProduitEssenceProvenances (lieu de croissance du bois)Traitements de préservationMarque et certification produit
Panneau de bois massif (CLT collé ou CLT cloué)

Charpente :

ProduitEssenceProvenances (lieu de croissance du bois)Traitements de préservationMarque et certification produit
Charpente bois lamellé-collé, Panneau massifSapin de NordmannTraitement Classe 2 (trempage)

Revêtement bois extérieur

Revêtement bois ou dérivés :

ProduitEssenceProvenances (lieu de croissance du bois)Marque et certification produitFinitionTraitements de préservation
Lame bois massifDouglaspré-grisé

Menuiserie intérieure et extérieure

Menuiserie intérieure :

ProduitEssenceProvenances (lieu de croissance du bois)FinitionMarque et certification produit
Panneau acoustique

Isolation des murs

Isolation de la toiture

Approche environnementale : La structure de l'extension est réalisée en système 100% bois : poteau/poutre bois et plancher CLT. Les brise-soleils et le bardage sont également bois (pré-vieilli THT). A l'intérieur des panneaux en laine de bois gèrent l'acoustique.

Descriptif technique : Concernant la construction, l’ensemble du projet est préfabriqué ; tant le noyau central en béton que le système poteau poutres bois et planchers en CLT. L’ensemble des matériaux sont laissés apparents pour affirmer les modes constructifs et les différents traitements de matérialité. Les brise-soleils et le bardage sont en bois pré-vieilli, avec des lames de cinq centimètres de large, démontrant une finesse dans le traitement de la façade. Ces derniers changent de tonalité selon les orientations du soleil, accompagné par le mur-rideau en triple vitrage qui reflète le contexte le jour et laisse voir les planchers en bois une fois le soir venu.

Chauffage au Bois : non
Données déclaratives

Acteurs du projet

Maître d'ouvrage (1)

Autres

ASSIA RESEAU UNA (35)

Etudes et ingénieries (4)

Maître d'œuvre - Architecte mandataire

ATELIER 56S (35)

Bureau d'études structure bois

OUEST STRUCTURES (35)

Bureau d'études thermique

BECB (35)

Economiste

CDLP (35)

Entreprises des lots bois (1)

Charpentier

SCOB (35)




* : L'entreprise n'est plus active
Retour à la liste