Travailler – accueillir
Travailler – accueillir

Parc à grumes au Cheylas

38570 - Isère - Auvergne-Rhône-Alpes

BÂTIMENT / LOGEMENT

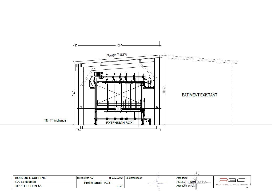
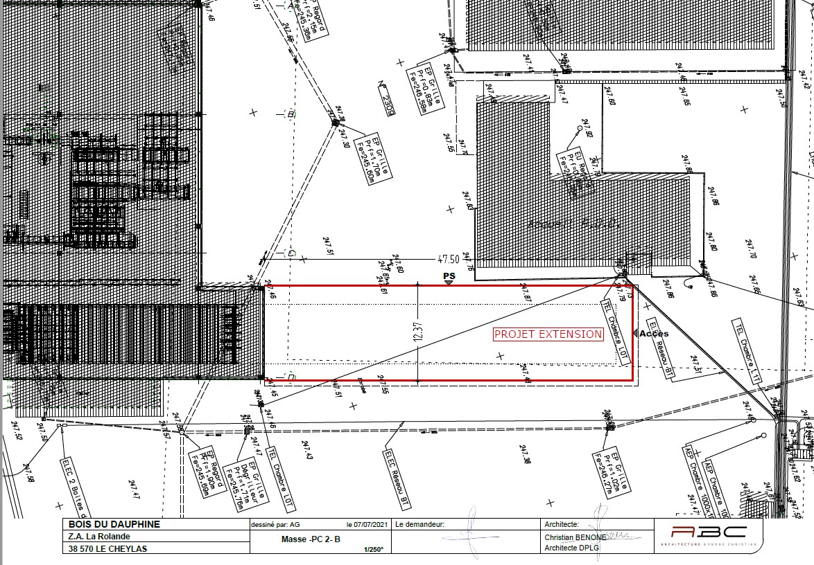
Le projet objet de la présente demande est une extension du bâtiment (parc à grumes) existant. Une nouvelle structure tout en bois vient en continuité du bâtiment existant. Cette extension se compose d'une structure bois en épicéa. D'une portée remarquable et d'une grande hauteur, cette nouvelle halle abrite la ligne de sciage de la scierie.

Catégorie Bâtiment / logement
Numéro de projet7987
Adresse du projet 74, Rte de la Buissière
38570
Date de candidature08/03/2023

Bâtiment / logement

Détail projet

Typologie de bâtiment : Neuf
Type de bâtiment : Industrie et commerce
Année de livraison : 2022
Surface totale du bâtiment en m² : 630
Coût total en € HT (hors foncier, hors VRD, hors honoraires) : 530000
Bois Français : oui
Matériaux issus du ré-emploi (préciser dans le descriptif technique) : non
Isolations biosourcées (préciser dans le descriptif technique) : non
Matériaux géosourcés (préciser dans le descriptif technique) : non
Finitions intéreures biosourcées ou géosourcées (préciser dans le descriptif technique) : non

Structure bois du bâtiment

Structure verticale :

ProduitEssenceProvenances (lieu de croissance du bois)Traitements de préservationMarque et certification produit
Panneau de bois massif (CLT collé ou CLT cloué)TempéréAuvergne-Rhône-AlpesAucun traitementPEFC

Structure horizontale :

ProduitEssenceProvenances (lieu de croissance du bois)Traitements de préservationMarque et certification produit
Panneau de bois massif (CLT collé ou CLT cloué)TempéréAuvergne-Rhône-AlpesAucun traitementPEFC

Charpente :

ProduitEssenceProvenances (lieu de croissance du bois)Traitements de préservationMarque et certification produit
Charpente bois lamellé-colléTempéréAuvergne-Rhône-AlpesAucun traitementPEFC

Revêtement bois extérieur

Autre revêtement métallique :

Produit
Acier

Menuiserie intérieure et extérieure

Isolation des murs

Isolation de la toiture

Chauffage au Bois : non
Certifications, labels et marques bâtiment : Bois de France,PEFC
Données déclaratives

Acteurs du projet

Maître d'ouvrage (1)

Maître d'ouvrage - Industriels - commerçants - entreprise

SCIERIE BOIS DU DAUPHINE (38)

Etudes et ingénieries (3)

Maître d'œuvre - Architecte mandataire

ARCHITECTURE B.C. (38)

Bureau d'études acoustique

A. D. INGÉNIERIE (69)

Bureau d'études structure bois

ALPES STRUCTURES (38) *

Entreprises des lots bois (1)

Charpentier

SOCIETE DAUPHINOISE DE CHARPENTE COUVERTURE (SDCC) (38)

Fournisseurs du bois (2)

Scierie

SCIERIE BOIS DU DAUPHINE (38)

Industriel

MARGUERON (01)




* : L'entreprise n'est plus active
Retour à la liste