Apprendre – se divertir

isigny

14230 ISIGNY SUR MER - Calvados - Normandie

BÂTIMENT / LOGEMENT

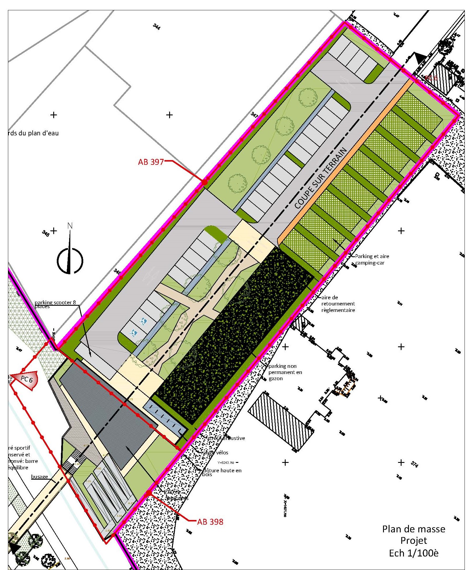
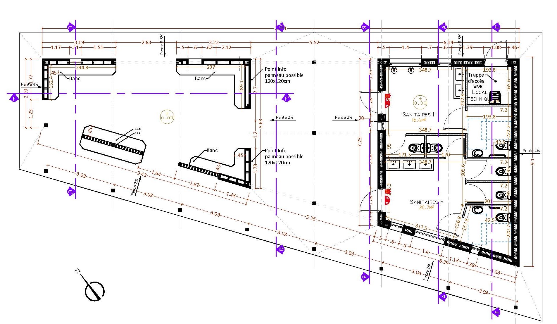
La commune d’Isigny a décidé d’aménager et d’agrandir sa base de loisirs. Dans ce cadre notre cabinet a été missionné afin de réaliser une halle d’entrée de site, abritant des sanitaires et un lieu de rassemblement des vélos et piétons sur un axe de promenade en développement. Cette halle sera réalisée en ossature bois , afin de s’inscrire dans une démarche environnementale. Cette structure mono pente permet de créer un seuil majestueux, tel une porte qui valorise le site et l’identifie.

Catégorie Bâtiment / logement
Numéro de projet7998
Adresse du projet base de loisirs de isigny sur mer
Halle pour promeneurs vélos randonneurs entrée du site
14230 ISIGNY SUR MER
Date de candidature08/03/2023

Bâtiment / logement

Détail projet

Typologie de bâtiment : Neuf
Type de bâtiment : Loisirs
Année de livraison : 2022
Surface totale du bâtiment en m² : 210
Coût total en € HT (hors foncier, hors VRD, hors honoraires) : 297732
Coût du lot bois n°1 - € HT : 60473
Bois Français : oui
Matériaux issus du ré-emploi (préciser dans le descriptif technique) : non
Isolations biosourcées (préciser dans le descriptif technique) : non
Matériaux géosourcés (préciser dans le descriptif technique) : non
Finitions intéreures biosourcées ou géosourcées (préciser dans le descriptif technique) : non

Structure bois du bâtiment

Structure verticale :

ProduitEssenceProvenances (lieu de croissance du bois)Traitements de préservationMarque et certification produit
Panneau ossature bois, Poteau poutrePEFC
Panneau ossature bois, Poteau poutre
Poteau poutreFranceTraitement Classe 3a (trempage)PEFC

Structure horizontale :

ProduitEssenceProvenances (lieu de croissance du bois)Traitements de préservationMarque et certification produit
Poutre en I ou mixte

Charpente :

ProduitEssenceProvenances (lieu de croissance du bois)Traitements de préservationMarque et certification produit
Charpente traditionnelle
Charpente traditionnelleFranceTraitement Classe 3a (trempage)PEFC

Revêtement bois extérieur

Revêtement bois ou dérivés :

ProduitEssenceProvenances (lieu de croissance du bois)Marque et certification produitFinitionTraitements de préservation
Lame bois massif

Menuiserie intérieure et extérieure

Isolation des murs

Isolation de la toiture

Epaisseur (mm) Isolation intérieure de la toiture : 200

Approche environnementale : Pas de chauffage; L'ensemble de la charpente est en bois douglas de pays local PEFC et la structure pannes arbalétriers en épicéa français PEFC et le bardage en sapin traité d'origine française; Cette structure sobre et simple est "fabriquée" avec des bois locaux dans la mesure du possible, le sol béton est bouchardé sans revêtement spécifique et reste simple les bancs sont de même nature que les ossatures l'éclairage est réalisé avec des leds; Sans chauffage et suffisamment isolé ce bâtiment servant d'accueil aux randonneurs se situe sur un circuit vélo, et à l'entrée de la base plein air de Isigny sur mer.

Chauffage au Bois : non
Certifications, labels et marques bâtiment : FSC,Origine France Garantie (OFG),PEFC
Données déclaratives

Acteurs du projet

Maître d'ouvrage (1)

Maître d'ouvrage - État ou collectivité (locale et territ)

commune d'isigny sur mer (14)

Etudes et ingénieries (1)

Maître d'œuvre - Architecte mandataire

ATELIER D'ARCHITECTES DE LA TOUQUES - AAT (EMMANUEL BOISBOURDAIN) (14)

Entreprises des lots bois (1)

Charpentier

CHANU HD (14)




* : L'entreprise n'est plus active
Retour à la liste