Apprendre – se divertir
Apprendre – se divertir

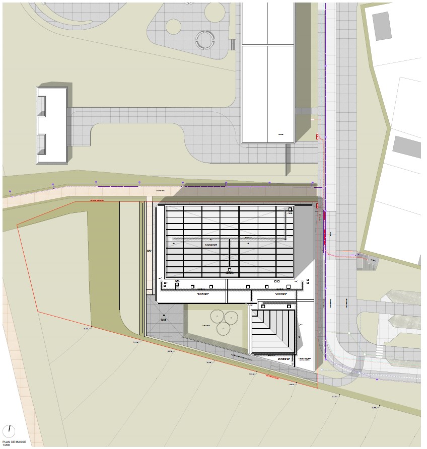
Complexe Sportif à Guipry-Messac

35480 GUIPRY MESSAC - Ille et Vilaine - Bretagne
Lauréat régional

BÂTIMENT / LOGEMENT

A RDC, une hauteur de niveau standard opère le lien entre les différentes entités qui composent l’équipement : Les grandes volumétries apparaissent comme une surélévation posée sur cette nappe continue qui prend en charge les accès et liaisons au sol. L’émergence du dojo présente un dessin singulier d’inflexion des toitures dont les lignes brisées, suivant l’épure de la charpente, casse l’effet de masse. Le Dojo bénéficie d’une ouverture à niveau sur un jardin clos, écho de la filiation japonaise des arts martiaux, à l’instar de sa charpente bois apparente dont les assemblages rappellent la construction traditionnelle.

Catégorie Bâtiment / logement
Numéro de projet8071
Adresse du projet La Roche des Bouillons
35480 GUIPRY MESSAC
Date de candidature09/03/2023

Bâtiment / logement

Détail projet

Typologie de bâtiment : Neuf
Type de bâtiment : Sport
Année de livraison : 2021
Surface totale du bâtiment en m² : 2460
Coût total en € HT (hors foncier, hors VRD, hors honoraires) : 3440000
Lot bois n°1 concerné : Charpente bois,ossature bois
Volume lot bois n°1 - m³ : 290
Coût du lot bois n°1 - € HT : 644145
Lot bois n°2 concerné : Bardage bois
Volume lot bois n°2 - m³ : 40
Bois Français : non
Matériaux issus du ré-emploi (préciser dans le descriptif technique) : non
Isolations biosourcées (préciser dans le descriptif technique) : oui
Matériaux géosourcés (préciser dans le descriptif technique) : non
Finitions intéreures biosourcées ou géosourcées (préciser dans le descriptif technique) : non

Structure bois du bâtiment

Structure verticale :

ProduitEssenceProvenances (lieu de croissance du bois)Traitements de préservationMarque et certification produit
Panneau ossature boisÉpicéa communEuropeTraitement Classe 2 (trempage)Je n'ai pas l'information

Structure horizontale :

ProduitEssenceProvenances (lieu de croissance du bois)Traitements de préservationMarque et certification produit
Non précisé

Charpente :

ProduitEssenceProvenances (lieu de croissance du bois)Traitements de préservationMarque et certification produit
Charpente bois lamellé-colléÉpicéa communEuropeJe n'ai pas l'informationJe n'ai pas l'information

Revêtement bois extérieur

Revêtement bois ou dérivés :

ProduitEssenceProvenances (lieu de croissance du bois)Marque et certification produitFinitionTraitements de préservation
Lame bois massifDouglasBretagnePEFCAucune finitionAucun traitement

Menuiserie intérieure et extérieure

Menuiserie intérieure :

ProduitEssenceProvenances (lieu de croissance du bois)FinitionMarque et certification produit
ParquetTempéré
Panneau massif d'agencementTempéré
Panneau acoustiqueÉpicéa communEuropeJe n'ai pas l'informationJe n'ai pas l'information

Isolation des murs

Isolation entre-montant des murs :

Produit
Fibre de bois (Panneaux)
Epaisseur (mm) Isolation entre-montant des murs : 195

Isolation extérieure des murs :

Produit
Fibre de bois (Panneaux)
Epaisseur (mm) Isolation extérieure des murs : 40

Isolation de la toiture

Epaisseur (mm) Isolation entre-montant de la toiture : 280

Approche environnementale : Le projet allie un recours important à l’éclairage naturel pour l’ensemble des locaux et les circulations via des ouvertures en façades ou en toiture et une enveloppe performante. L’architecture permet ainsi de minimiser les systèmes artificiels consommateurs d’énergie. Les choix techniques et structuraux sont simples, robustes et performants (pas de protection solaire mobile par exemple) et toutes les dispositions sont prévues pour permettre une maintenance aisée du bâtiment. Le choix du système constructif en ossature bois remplissage laine de bois et de l’énergie bois réduit considérablement l’empreinte carbone du projet.

Descriptif technique : Bardage en douglas français. Isolation en fibre de bois dans les ossatures et fibre de bois dense côté extérieur. Gymnase : Charpente bois de type treillis tramée dans le sens de la longueur tous les 7,20m et porte sur environ 28m dans la largeur de la salle et culmine à environ 12m. Soutenue par des poteaux bois qui se reposent sur 3 côtés sur un socle en Béton Armé disposé en U à une altimétrie de 4,50m et sur son 4e côté sur un mur à ossature bois. Dojo : une salle carrée de 16,8m de côté. La structure est composée d’une charpente bois tri-dimensionnelle sous-tendue en métal culminant dans l’angle Sud-Est à 8,7m soutenue en périphérie sur 3 côtés sur des voiles en Béton Armé disposé en U à une altimétrie de 4,50m et sur son 4e côté (sur un mur rideau).

Chauffage au Bois : non
Données déclaratives

Acteurs du projet

Maître d'ouvrage (1)

Maître d'ouvrage - État ou collectivité (locale et territ)

COMMUNE DE GUIPRY-MESSAC (35)

Etudes et ingénieries (4)

Maître d'œuvre - Architecte mandataire

AGENCE D'ARCHITECTURE ROBERT ET SUR (22)

Bureau d'études acoustique

ALHYANGE (29)

Bureau d'études environnement

E'NERGYS (35)

Bureau d'études thermique

EICE (22)

Entreprises des lots bois (3)

Charpentier

Deschamps Sa (53)

Menuisier

BINOIS MENUISERIE (35)

Autre lot de la construction (en lien avec le bois)

Sas Belliard - Groupe LB (53)

Fournisseurs du bois (1)

Industriel

EURO LAMELLE (74) *




* : L'entreprise n'est plus active
Retour à la liste