Travailler – accueillir
Travailler – accueillir

Maison de la B (UO de l'Établissement de Traction - Production du RER B)

77290 MITRY MORY - Seine et Marne - Ile de France

BÂTIMENT / LOGEMENT

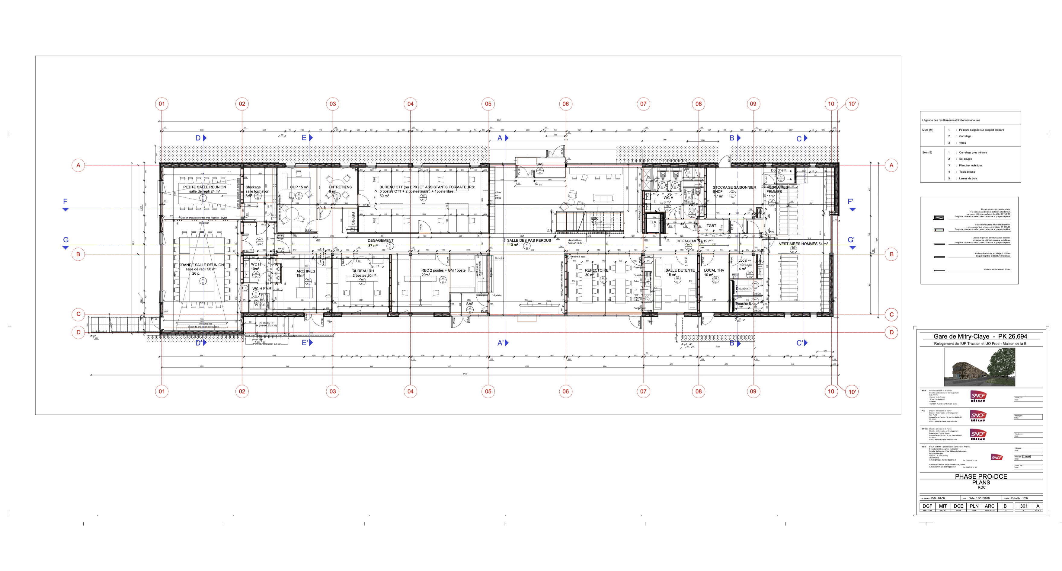
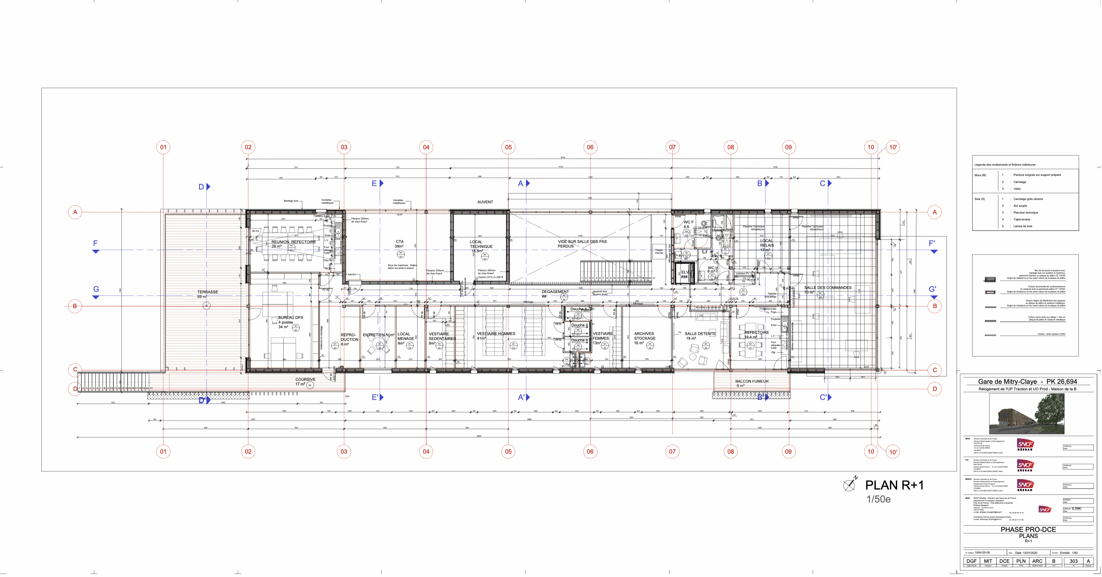
La loi de transition énergétique impose l’exemplarité énergétique et environnementale pour les nouvelles constructions sous maîtrise d’ouvrage de l’Etat. C’est le cas de la Maison de la B qui est livrée aux exploitants depuis septembre 2022. A côté du nouvel atelier de maintenance RATP du matériel roulant, au terminus de la ligne B du RER, la nouvelle Unité Opérationnelle de Mitry est un bâtiment R+1 comprenant les locaux de vie et les bureaux des équipes de conducteurs du RER et agents de manœuvres SNCF de l’Etablissement Traction Production de la ligne B, et un parking paysagé de 125 places

Catégorie Bâtiment / logement
Numéro de projet8075
Adresse du projet Parc SNCF 77290 MITRY-MORY , France
77290 MITRY MORY
Date de candidature09/03/2023

Bâtiment / logement

Détail projet

Typologie de bâtiment : Neuf
Type de bâtiment : Lieu d'entreprise,Service institutionnel et public
Année de livraison : 2022
Surface totale du bâtiment en m² : 1059
Coût total en € HT (hors foncier, hors VRD, hors honoraires) : 3100000
Lot bois n°1 concerné : Charpente bois,Bardage bois,Menuiserie intérieure bois,Menuiserie extérieure bois,ossature bois,Autre lot bois
Coût du lot bois n°2 - € HT : 590000
Bois Français : non
Matériaux issus du ré-emploi (préciser dans le descriptif technique) : oui
Isolations biosourcées (préciser dans le descriptif technique) : non
Matériaux géosourcés (préciser dans le descriptif technique) : non
Finitions intéreures biosourcées ou géosourcées (préciser dans le descriptif technique) : oui

Structure bois du bâtiment

Structure verticale :

ProduitEssenceProvenances (lieu de croissance du bois)Traitements de préservationMarque et certification produit
Panneau ossature boisEuropeJe n'ai pas l'informationPEFC

Structure horizontale :

ProduitEssenceProvenances (lieu de croissance du bois)Traitements de préservationMarque et certification produit
Dalle boisEuropeJe n'ai pas l'informationPEFC

Charpente :

ProduitEssenceProvenances (lieu de croissance du bois)Traitements de préservationMarque et certification produit
Charpente traditionnelleEuropeJe n'ai pas l'informationPEFC
Caisson de toitureÉpicéa communEuropeJe n'ai pas l'informationJe n'ai pas l'information

Revêtement bois extérieur

Revêtement bois ou dérivés :

ProduitEssenceProvenances (lieu de croissance du bois)Marque et certification produitFinitionTraitements de préservation
Lame bois massifTempéréEuropePEFCJe n'ai pas l'informationJe n'ai pas l'information

Menuiserie intérieure et extérieure

Menuiserie intérieure :

ProduitEssenceProvenances (lieu de croissance du bois)FinitionMarque et certification produit
Escalier, Lambris, Mobilier, ParquetTempéréEuropeJe n'ai pas l'informationJe n'ai pas l'information

Menuiserie extérieure :

ProduitEssenceProvenances (lieu de croissance du bois)Marque et certification produitFinition
Menuiserie bois, Volet boisMélèzeEuropePEFCJe n'ai pas l'information

Isolation des murs

Isolation intérieure des murs :

Produit

Isolation de la toiture

Approche environnementale : E3C1 Si l’on prend en compte la démarche EMC2B (énergie, matière, carbone, climat et biodiversité), les critères sont plus diversifiés. Une Analyse de Cycle de Vie sur les produits de construction et sur les équipements a été menée en phase "études", suivie d'une nouvelle ACV réalisée en fin de chantier en vue de la labellisation BBCA.

Descriptif technique : Pour ce qui concerne l’énergie, afin d’atteindre le niveau E3, des panneaux photovoltaïques ont été intégrés au projet. La case matière est cochée par le large recours au bois et à l’isolation biosourcée. La construction bois limite les émissions de gaz à effet de serre du bâtiment sur l'ensemble de son cycle de vie. Par ailleurs, l'aménagement paysager du parking contribue à améliorer le bilan carbone du projet Pour ce qui concerne le climat, une étude bioclimatique a conclu à la nécessité de garder une climatisation d'appoint en été, lors des pics de chaleur. Quant à la biodiversité, l'enjeu était de limiter l'impact de l'opération globale sur le site. Le bâtiment lui-même pourra favoriser la biodiversité avec un claustra en bois.

Chauffage au Bois : non
Certifications, labels et marques bâtiment : Bâtiment Bas Carbone (BBCA)
Données déclaratives

Acteurs du projet

Maître d'ouvrage (1)

Maître d'ouvrage - Bailleur social public

SNCF Mobilités - Gares & Connexions (93)

Etudes et ingénieries (2)

Maître d'œuvre - Architecte mandataire

SNCF Mobilités - Gares & Connexions (93)

Bureau d'études structure bois

CBS CBT (94)

Entreprises des lots bois (2)

Constructeur bois

LIFTEAM (94)
ECOTIM (73)




* : L'entreprise n'est plus active
Retour à la liste