Apprendre – se divertir

Salle de musique privée

84440 ROBION - Vaucluse - Provence Alpes Côte d'Azur

BÂTIMENT / LOGEMENT

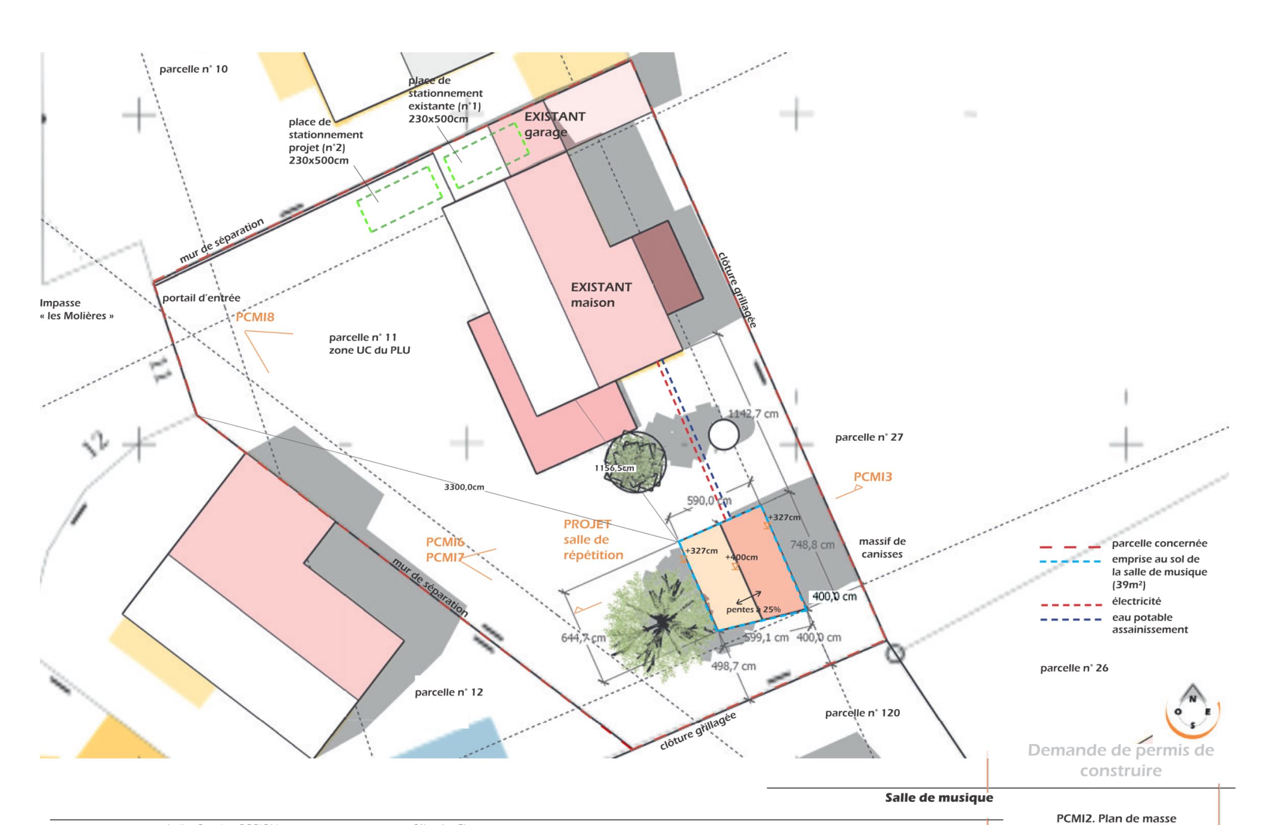
Construction d'une salle de musique en plein coeur d'un lotissement résidentiel pour un batteur. Niveau sonore à maîtriser : 110 dB. Recherche de masse/ressort avec des matériaux naturels. Nous avons opté pour une boite masse en terre et une boite ressort désolidarisée ossature bois et ouate de cellulose. Un chape au mortier a également été mise en oeuvre sur la toiture pour apporter un peu de masse. Il y a une toiture isolée avec 300 mm de ouste de cellulose et une sous toiture suspendue non solidaire de la toiture en absorption avec 100 mm de panneau de paille de riz. Très bons résultats.

Catégorie Bâtiment / logement
Numéro de projet8121
Adresse du projet Lotissement les petites molières
84440 ROBION
Date de candidature10/03/2023

Bâtiment / logement

Détail projet

Typologie de bâtiment : Neuf
Type de bâtiment : Loisirs
Année de livraison : 2022
Surface totale du bâtiment en m² : 22
Coût total en € HT (hors foncier, hors VRD, hors honoraires) : 52800
Lot bois n°1 concerné : ossature bois
Coût du lot bois n°1 - € HT : 30000
Bois Français : oui
Matériaux issus du ré-emploi (préciser dans le descriptif technique) : non
Isolations biosourcées (préciser dans le descriptif technique) : oui
Matériaux géosourcés (préciser dans le descriptif technique) : oui
Finitions intéreures biosourcées ou géosourcées (préciser dans le descriptif technique) : oui

Structure bois du bâtiment

Structure verticale :

ProduitEssenceProvenances (lieu de croissance du bois)Traitements de préservationMarque et certification produit
Panneau ossature boisFranceAucun traitement

Structure horizontale :

ProduitEssenceProvenances (lieu de croissance du bois)Traitements de préservationMarque et certification produit
Plancher béton

Charpente :

ProduitEssenceProvenances (lieu de croissance du bois)Traitements de préservationMarque et certification produit
Charpente traditionnelleFrance

Revêtement bois extérieur

Revêtement minéral :

Produit
Enduit chaux

Menuiserie intérieure et extérieure

Isolation des murs

Isolation entre-montant des murs :

Produit
Epaisseur (mm) Isolation entre-montant des murs : 180

Isolation de la toiture

Epaisseur (mm) Isolation intérieure de la toiture : 100
Epaisseur (mm) Isolation entre-montant de la toiture : 300

Approche environnementale : Matériaux géosourcés et biosourcés (terre du site et apport de carrière d'argile locale) Entreprise locale d'insertion.

Descriptif technique : Ossature et toiture en bois. Emplissage des murs en terre banchée avec stabilisant de chaux. Enduit à la chaux.

Chauffage au Bois : oui
Données déclaratives

Acteurs du projet

Maître d'ouvrage (1)

Maître d'ouvrage - Bailleur social privé

particulier (x)

Etudes et ingénieries (1)

Maître d'œuvre - Architecte mandataire

Atelier Ostraka (84)

Entreprises des lots bois (1)

Charpentier

Association le Village (84)




* : L'entreprise n'est plus active
Retour à la liste