Médiathèque de Saint-Bonnet en Champsaur

05500 SAINT BONNET EN CHAMPSAUR - Hautes alpes - Provence Alpes Côte d'Azur

BÂTIMENT / LOGEMENT

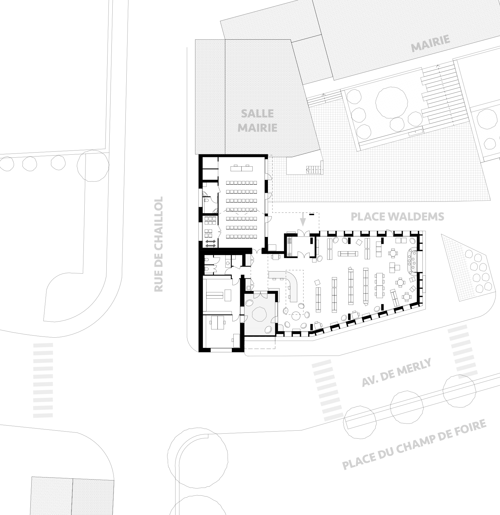
Située en centre bourg, la nouvelle médiathèque se compose de trois bâtiments. Le bâti principal neuf accueille l'espace médiathèque sur 210m2, il est modulable et pourra évoluer dans le temps. Deux autres bâtiments existants, rénovés et isolés, dont les murs et les charpentes traditionnelles ont été conservés, accueillent les bureaux et des salles d'activités. En extérieur, le mélèze local est omniprésent. En intérieur, les espaces sont fonctionnels et lumineux. Du mobilier en mélèze a été conçu sur mesure notamment la banque d'accueil et l’estrade au sud à destination des plus petits.

Catégorie Bâtiment / logement
Numéro de projet8431
Adresse du projet Place Waldems
05500 SAINT BONNET EN CHAMPSAUR
Date de candidature19/02/2024

Bâtiment / logement

Détail projet

Typologie de bâtiment : Extension / surélévation,Rénovation / Réhabilitation
Année de livraison : 2023
Surface totale du bâtiment en m² : 350
Dont extension / surélévation en m² : 210
Coût total en € HT (hors foncier, hors VRD, hors honoraires) : 1620000
Volume lot bois n°1 - m³ : 88
Coût du lot bois n°1 - € HT : 509566
Volume lot bois n°2 - m³ : 8
Coût du lot bois n°2 - € HT : 208423
Bois Français : oui
Matériaux issus du ré-emploi (préciser dans le descriptif technique) : non
Isolations biosourcées (préciser dans le descriptif technique) : oui
Matériaux géosourcés (préciser dans le descriptif technique) : oui
Finitions intéreures biosourcées ou géosourcées (préciser dans le descriptif technique) : non

Structure bois du bâtiment

Structure verticale :

ProduitEssenceProvenances (lieu de croissance du bois)Traitements de préservationMarque et certification produit
Panneau ossature bois

Structure horizontale :

ProduitEssenceProvenances (lieu de croissance du bois)Traitements de préservationMarque et certification produit
Panneau de bois massif (CLT collé ou CLT cloué)

Charpente :

ProduitEssenceProvenances (lieu de croissance du bois)Traitements de préservationMarque et certification produit
Charpente historique

Revêtement bois extérieur

Revêtement bois ou dérivés :

ProduitEssenceProvenances (lieu de croissance du bois)Marque et certification produitFinitionTraitements de préservation
Lame bois massif

Menuiserie intérieure et extérieure

Menuiserie intérieure :

ProduitEssenceProvenances (lieu de croissance du bois)FinitionMarque et certification produit
Mobilier, Panneau acoustique, Panneau massif d'agencement

Isolation des murs

Epaisseur (mm) Isolation intérieure des murs : 160
Epaisseur (mm) Isolation entre-montant des murs : 200

Isolation de la toiture

Epaisseur (mm) Isolation intérieure de la toiture : 100
Epaisseur (mm) Isolation entre-montant de la toiture : 400
Epaisseur (mm) Isolation extérieure de la toiture : 120

Approche environnementale : Les montants de façades en mélèze d'une profondeur de 40cm ainsi que les stores à lamelles orientables sur les menuiseries permettent de réguler les apports solaires dans le bâtiment - confort d'été et d'hiver. L'isolant employé dans les murs ossature bois est la laine de bois – isolant biosourcé. Aucune réglementation thermique n'était applicable au bâtiment (RT 2012 – équipements culturels). Malgré cela la volonté était de réaliser un projet ambitieux vis à vis des enjeux environnementaux : les existants atteignent l'équivalent BBC rénov et la partie neuve suit les attendus RE2020.

Descriptif technique : Le bâti neuf est en structure lamellé collé bois et ossature bois sur socle béton avec plancher poutrelles hourdis pré-isolées. Isolation des murs, 20cm laine de bois dans MOB + 6cm laine de roche intérieur. Toiture CLT avec ITE 12cm d'isolant mince. Sur les bâtis existants : 16cm de laine de roche en ITI en murs - 40cm de laine de roche soufflée en combles + 10cm panneaux laine de laine de roche en sous face intérieure. Tous les ponts thermiques ont été traités. Ventilation double flux sur l'ensemble de l'équipement. Les montants d'ossature ainsi que l'ensemble du bardage en mélèze sont issus du bois des Alpes, de même que la partie solivage dans les existants. La médiathèque a été raccordée à la chaufferie fioul existante en attendant un réseau de chaleur bois communal à venir.

Chauffage au Bois : non
Données déclaratives

Acteurs du projet

Maître d'ouvrage (1)

Maître d'ouvrage - État ou collectivité (locale et territ)

COMMUNE DE SAINT BONNET EN CHAMPSAUR (05)

Etudes et ingénieries (4)

Maître d'œuvre - Architecte mandataire

D'ores et déjà, atelier d'architecture (05)

Bureau d'études structure bois

BUREAU BOIS CONCEPT (BBC) (05)

Bureau d'études thermique

ARMANI YVES (38)

Economiste

CETECO - CEDRIC CLUZEL (07)

Entreprises des lots bois (2)

Charpentier

BOUDOT GUY CHARPENTES (05)

Menuisier

BOIS ET BETON (05)




* : L'entreprise n'est plus active
Retour à la liste