Réhabiliter un équipement

Les Piaules : Surélévation 100% bois 5 niveaux, dernière dent creuse de la Place de la Nation

75012 PARIS 12 - Paris - Ile de France
Lauréat régional
Finaliste national

BÂTIMENT / LOGEMENT

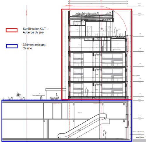
Le projet est localisé sur la Place de la Nation au dessus d'un supermarché Casino à RDC. La Place est marquée par le style Haussmannien avec la plupart des bâtiments environnants construits pendant la seconde moitié du XIXème siècle. Tout le challenge architectural et technique a été de parvenir à construire une structure en bois de 5 niveaux au dessus d'un Casino en activité et avec un traitement de façade compatible avec l'environnement Haussmannien mais aussi avec le support de façade bois CLT (les produits de finition minéraux ne montaient pas à une telle hauteur au moment du chantier)

Catégorie Bâtiment / logement
Numéro de projet8446
Adresse du projet Place de la Nation
75012 PARIS 12
Date de candidature20/02/2024
Récompense1er prix

Bâtiment / logement

Détail projet

Typologie de bâtiment : Extension / surélévation
Type de bâtiment : Hébergement
Année de livraison : 2021
Surface totale du bâtiment en m² : 1140
Dont extension / surélévation en m² : 1140
Coût total en € HT (hors foncier, hors VRD, hors honoraires) : 4590000
Lot bois n°1 concerné : ossature bois
Volume lot bois n°1 - m³ : 293
Coût du lot bois n°1 - € HT : 185000
Bois Français : oui
Matériaux issus du ré-emploi (préciser dans le descriptif technique) : non
Isolations biosourcées (préciser dans le descriptif technique) : non
Matériaux géosourcés (préciser dans le descriptif technique) : non
Finitions intéreures biosourcées ou géosourcées (préciser dans le descriptif technique) : non

Structure bois du bâtiment

Structure verticale :

ProduitEssenceProvenances (lieu de croissance du bois)Traitements de préservationMarque et certification produit
Panneau de bois massif (CLT collé ou CLT cloué)Épicéa communEuropeTraitement Classe 2 (trempage)PEFC
Poteau poutreDouglasNouvelle-AquitaineTraitement Classe 2 (trempage)Bois de France

Structure horizontale :

ProduitEssenceProvenances (lieu de croissance du bois)Traitements de préservationMarque et certification produit
Panneau de bois massif (CLT collé ou CLT cloué)Épicéa communEuropeTraitement Classe 2 (trempage)PEFC

Charpente :

ProduitEssenceProvenances (lieu de croissance du bois)Traitements de préservationMarque et certification produit
Panneau massifÉpicéa communEuropeTraitement Classe 2 (trempage)PEFC

Revêtement bois extérieur

Revêtement minéral :

Produit
Enduit ciment

Menuiserie intérieure et extérieure

Menuiserie extérieure :

ProduitEssenceProvenances (lieu de croissance du bois)Marque et certification produitFinition
Menuiserie boisJe n'ai pas l'informationJe n'ai pas l'information

Isolation des murs

Isolation intérieure des murs :

Produit
Laine de roche
Epaisseur (mm) Isolation intérieure des murs : 60

Isolation extérieure des murs :

Produit
Laine de roche
Epaisseur (mm) Isolation extérieure des murs : 160

Isolation de la toiture

Epaisseur (mm) Isolation intérieure de la toiture : 80
Epaisseur (mm) Isolation extérieure de la toiture : 200

Approche environnementale : Nation est le projet qui illustre l'ambition environnementale de Linkcity : réduire l'artificialisation en réduisant le neuf au profit des réhabilitations/surélévations. C'est dans cette attitude que Casino a été approché pour permettre de densifier cette dent creuse. Le projet atteint le triple du N3 du Bâtiment Biosourcé avec 108kg/m² SDP ! S'agissant d'un permis de construire préalable à la RE2020, le résultat de l'ACV est issu d'une méthode statique avec un gain de -169kg equ. CO2/m² SDP (en comparaison à une construction conventionnelle maçonnée) ce qui est particulièrement performant.

Descriptif technique : La surélévation des 5 niveaux est en structure 100% bois mêlant une partie de structure primaire en poteau-poutres LC de Cosylva (labelisé Bois de France) a du KLH (Autriche) pour les planchers/façades. Le CLT a été choisi pour la façade car le DTU FOB n'était pas encore sorti à l'OS tvx et ne permettait pas d'accueillir une telle finition. Le MOB aurait dû être nettement renforcé (réduction entraxe montant) pour reprendre les charges des 5 niveaux. C'était donc le bon compromis technique "reprise de charge/compatibilité finition minérale/enduit". Les 2 challenges techniques du chantier ont été de trouver une solution satisfaisante avec Socotec sur le dépassement du domaine d'emploi du Sto Ventec sur CLT car façade > à 18m et pour les douches sans ressaut sur plancher CLT.

Performance du bâtiment (Cep en kWhep/m²/an) : 165.6
Chauffage au Bois : non
Certifications, labels et marques bâtiment : Bâtiment Biosourcé,Bois de France,PEFC
Données déclaratives

Acteurs du projet

Maître d'ouvrage (2)

Maître d'ouvrage - Promoteurs immobiliers privés

LINKCITY IDF (78)

Autres

Just Like Home (92)

Etudes et ingénieries (8)

Maître d'œuvre - Architecte mandataire

JBMN ARCHITECTES (75)

Maître d’œuvre - Architecte associé

ARCHITECTURE PELEGRIN SARL (75)

Bureau d'études acoustique

Impédance BET acoustique (75)

Bureau d'études structure bois

BET HEMERY (87)

Bureau d'études environnement

Elan France (78)

Autre intervenant de la construction - bureau de contrôle, AMO, BIM...

SOCOTEC (78)
Casso & Associés (75)

Paysagiste

Le Prieuré les solutions végétal ID (41)

Entreprises des lots bois (1)

Constructeur bois

BOUYGUES CONSTRUCTION HABITAT SOCIAL (78)

Fournisseurs du bois (2)

Industriel

KLH Massivholtz GmbH (DE)
COSYLVA (23)

Autres (1)

Photographe

Alexis Toureau (94)




* : L'entreprise n'est plus active
Retour à la liste