Réhabiliter un logement
Réhabiliter un logement

Rénovation et extension d'une maison à Cachan

94230 CACHAN - Val de Marne - Ile de France

BÂTIMENT / LOGEMENT

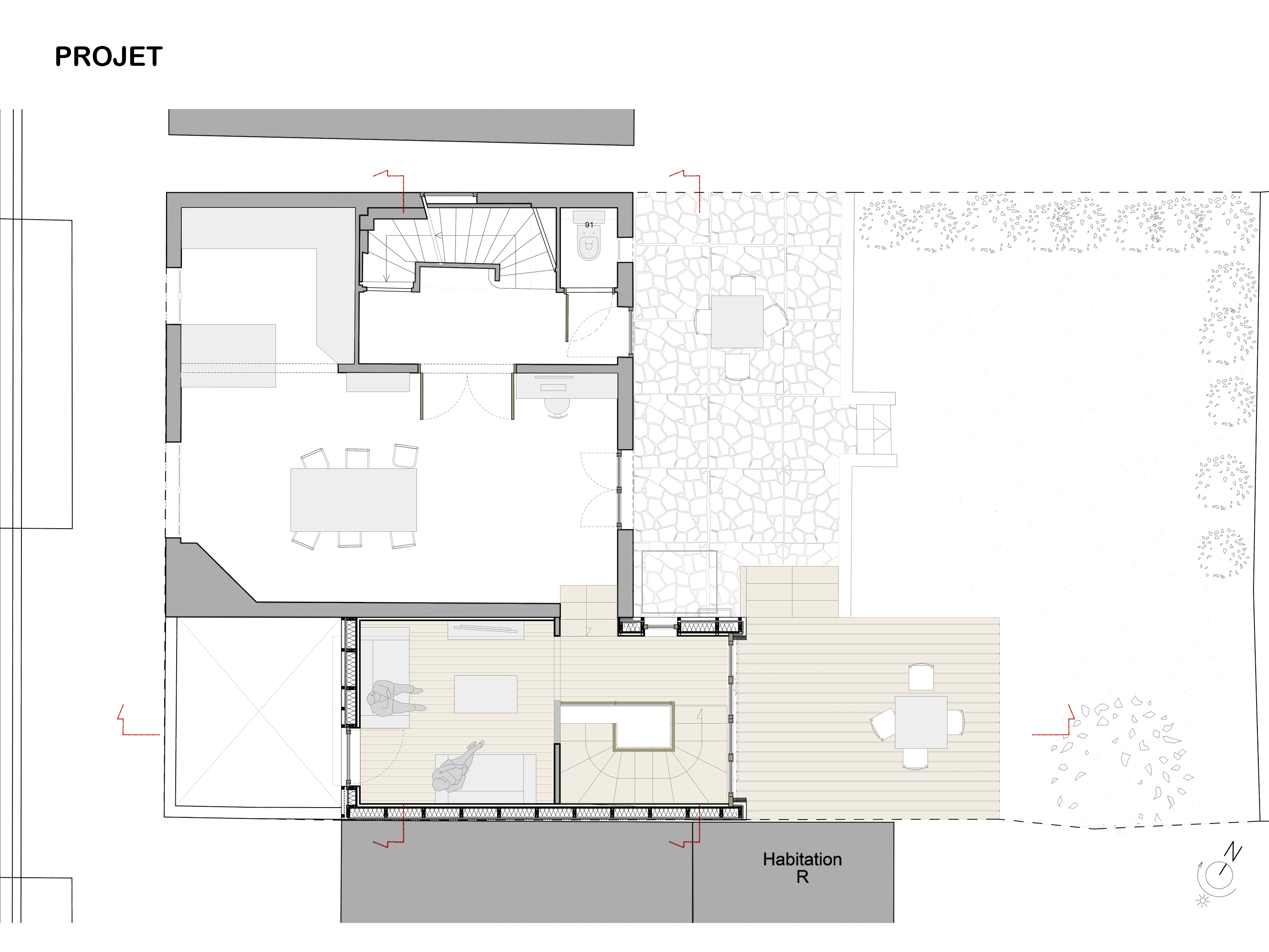
L'extension a la couleur rouille de l’acier Corten, en écho aux briques des constructions voisines. Édifiée en ossature bois, dans l’interstice laissé par la démolition d’un ancien garage et par le réemploi de sa structure poteau-poutre, l'extension permet de repenser l’organisation de la maison tout en augmentant sa surface habitable. La cour dessert un studio au RdC, l'extension devient l'entrée principale de la maison. La recherche de lumière, de liens et de nouveaux espaces s'est accompagnée d'un objectif de sobriété qui aura permis de diviser les besoins énergétiques de la maison par 2.

Catégorie Bâtiment / logement
Numéro de projet8480
Date de candidature22/02/2024

Bâtiment / logement

Détail projet

Typologie de bâtiment : Extension / surélévation
Type de bâtiment : Logement individuel supérieur à 120 m²
Année de livraison : 2022
Surface totale du bâtiment en m² : 135
Dont extension / surélévation en m² : 30
Coût total en € HT (hors foncier, hors VRD, hors honoraires) : 231672.13
Lot bois n°1 concerné : ossature bois,Autre lot bois
Coût du lot bois n°1 - € HT : 44000
Lot bois n°2 concerné : Menuiserie extérieure bois
Coût du lot bois n°2 - € HT : 32000
Bois Français : non
Matériaux issus du ré-emploi (préciser dans le descriptif technique) : oui
Isolations biosourcées (préciser dans le descriptif technique) : oui
Matériaux géosourcés (préciser dans le descriptif technique) : oui
Finitions intéreures biosourcées ou géosourcées (préciser dans le descriptif technique) : oui

Structure bois du bâtiment

Structure verticale :

ProduitEssenceProvenances (lieu de croissance du bois)Traitements de préservationMarque et certification produit
Panneau ossature boisEuropeTraitement Classe 2 (trempage)FSC

Structure horizontale :

ProduitEssenceProvenances (lieu de croissance du bois)Traitements de préservationMarque et certification produit
Dalle boisEuropeTraitement Classe 2 (trempage)FSC

Charpente :

ProduitEssenceProvenances (lieu de croissance du bois)Traitements de préservationMarque et certification produit
Caisson de toitureEuropeTraitement Classe 2 (trempage)FSC

Revêtement bois extérieur

Autre revêtement métallique :

Produit
Acier

Menuiserie intérieure et extérieure

Menuiserie extérieure :

ProduitEssenceProvenances (lieu de croissance du bois)Marque et certification produitFinition
Menuiserie boisPin sylvestreFranceFSCLasure

Isolation des murs

Isolation intérieure des murs :

Produit
Laine de bois souple
Epaisseur (mm) Isolation intérieure des murs : 120

Isolation entre-montant des murs :

Produit
Laine de bois souple
Epaisseur (mm) Isolation entre-montant des murs : 190

Isolation extérieure des murs :

Produit
Laine de bois souple

Isolation de la toiture

Epaisseur (mm) Isolation entre-montant de la toiture : 220
Epaisseur (mm) Isolation extérieure de la toiture : 80

Approche environnementale : L'objectif a été de densifier et rénover une meulière francilienne en valorisant ce patrimoine bâti caractéristique. Durant les études, un audit énergétique de la maison a été réalisé afin de cibler les travaux de rénovation de la maison existante et limiter ses consommations. Les murs de la maison sont isolés, les menuiseries sont remplacées par des menuiseries bois double vitrage. Une VMC hygro B et une pompe à chaleur double service air/eau sont installées ainsi qu'une cuve de récupération des eaux pluviales pour l'arrosage (en lieu et place de l'ancien escalier d'accès au jardin).

Descriptif technique : Le réemploi de la structure béton de l'ancien garage aura fortement limité l'utilisation du béton dans ce projet. L'ossature bois, plus légère que les parties de garage démolies, aura permis d'éviter toute reprise en sous-œuvre. Un plancher bois est construit sur les poteaux de l'ancien garage pour former le support de l'étage créée. L’étage de l’extension relie l'entrée à l'espace de vie situé au premier étage de la maison, de plain-pied avec le jardin. Matériaux biosourcés, géosourcés et qualité sanitaire : ossature bois, pare-pluie et isolation de la maison et de l'extension en fibre de bois, étanchéité en EPDM, peinture à la caséine... L'oxydation des panneaux Corten fut amorcée en atelier pour que la patine se forme rapidement, celle-ci continue à s'harmoniser avec le temps.

Performance du bâtiment (Cep en kWhep/m²/an) : 90
Chauffage au Bois : non
Données déclaratives

Acteurs du projet

Maître d'ouvrage (1)

Maître d'ouvrage - Particuliers

particulier (x)

Etudes et ingénieries (1)

Maître d'œuvre - Architecte mandataire

Secousses architectes (75)

Entreprises des lots bois (2)

Charpentier

J.L.B. CHARPENTE CONSTRUCTION BOIS (02)

Menuisier

MENUISERIE DAVID ET FILS (02)

Autres (1)

Photographe

11h45 (93)




* : L'entreprise n'est plus active
Retour à la liste