Réhabiliter un équipement
Réhabiliter un équipement

Agence BPM Architectes

33800 BORDEAUX - Gironde - Nouvelle-Aquitaine

BÂTIMENT / LOGEMENT

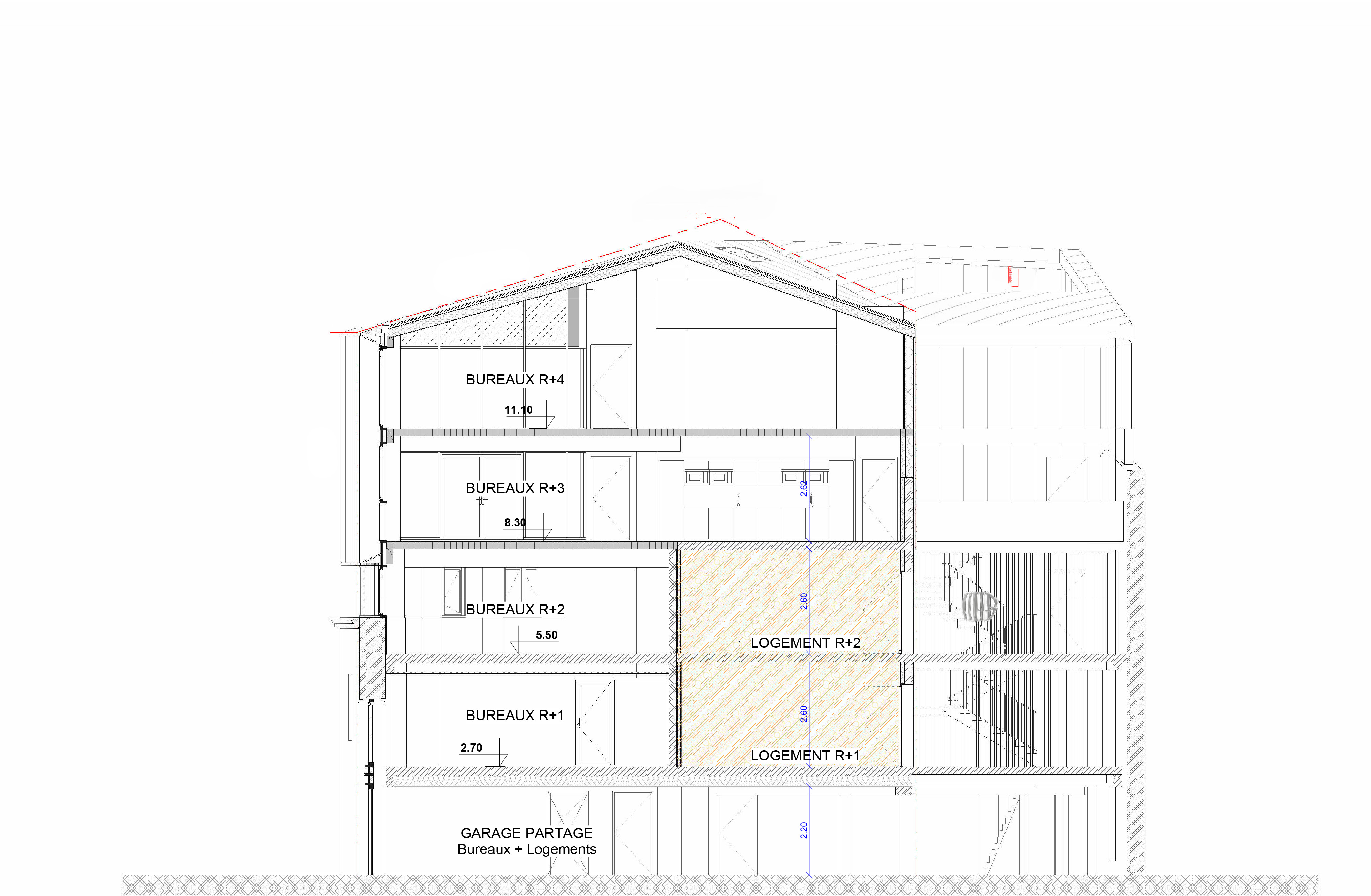
A Bordeaux, le projet de l’agence BPM Architectes est un projet de réhabilitation et de surélévation. Pour ses nouveaux locaux, BPM Architectes a imaginé un lieu de travail, un espace de recherches et de réflexions. L’agence a conçu l’architecture du bâtiment, pensé l’aménagement intérieur et suivi le chantier de ce projet qui incarne son expertise. Le choix a été fait de densifier et de rénover à l’échelle urbaine en surélevant le bâtiment existant.

Catégorie Bâtiment / logement
Numéro de projet8770
Adresse du projet 26 rue Peyronnet
33800 BORDEAUX
Date de candidature11/03/2024

Bâtiment / logement

Détail projet

Typologie de bâtiment : Extension / surélévation
Type de bâtiment : Lieu d'entreprise
Année de livraison : 2023
Surface totale du bâtiment en m² : 1054
Dont extension / surélévation en m² : 382
Coût total en € HT (hors foncier, hors VRD, hors honoraires) : 2100000
Bois Français : non
Matériaux issus du ré-emploi (préciser dans le descriptif technique) : oui
Isolations biosourcées (préciser dans le descriptif technique) : oui
Matériaux géosourcés (préciser dans le descriptif technique) : non
Finitions intéreures biosourcées ou géosourcées (préciser dans le descriptif technique) : non

Structure bois du bâtiment

Structure verticale :

ProduitEssenceProvenances (lieu de croissance du bois)Traitements de préservationMarque et certification produit
Panneau ossature boisEuropeTraitement Classe 2 (trempage)PEFC

Structure horizontale :

ProduitEssenceProvenances (lieu de croissance du bois)Traitements de préservationMarque et certification produit
Dalle boisEuropeTraitement Classe 2 (trempage)PEFC

Charpente :

ProduitEssenceProvenances (lieu de croissance du bois)Traitements de préservationMarque et certification produit
Charpente bois lamellé-colléEuropeTraitement Classe 2 (trempage)Marques de territoire (à préciser dans le texte)

Revêtement bois extérieur

Menuiserie intérieure et extérieure

Menuiserie intérieure :

ProduitEssenceProvenances (lieu de croissance du bois)FinitionMarque et certification produit
PlinthesEuropePeintureJe n'ai pas l'information

Isolation des murs

Isolation intérieure des murs :

Produit
Laine de bois souple
Epaisseur (mm) Isolation intérieure des murs : 145
Epaisseur (mm) Isolation entre-montant des murs : 145

Isolation de la toiture

Epaisseur (mm) Isolation intérieure de la toiture : 249
Epaisseur (mm) Isolation entre-montant de la toiture : 249

Approche environnementale : Le modèle de construction choisi va dans le sens de la transition énergétique et de la construction durable. Plus de 70% des éléments structurels de la surélévation est en ossature bois pour un bilan carbone positif de la construction. La structure béton du socle devient une structure bois à partir de deuxième étage. Outre les qualités de ce matériau (confort thermique et sanitaire, respect de l’environnement…), ce choix permet d’alléger la charge sur les fondations existantes et a permis un chantier en milieu urbain.

Descriptif technique : L’inertie du bâtiment est apportée par le socle en pierre d’origine (pierre en façade et béton en structure). L’utilisation de la laine de bois pour l’isolation des façades (ossature bois) offre au projet un véritable confort thermique. Au dernier niveau, une recherche de ventilation a été trouvée par la mise en place de vélux et l’alimentation pour d’éventuels brasseurs d’air. La façade en mur rideau limite les déperditions thermiques. Cela a été possible grâce à l’orientation Nord/Nord-Est et Nord-Ouest. La réutilisation des matériaux et des équipements existants fait partie d’une démarche de réemploi et s’inscrit dans une démarche de conception frugale.

Ic construction - Impact Environnemental de la Construction (kg éq CO2/m² de SHAB ou SU) : 40.0
Chauffage au Bois : non
Données déclaratives

Acteurs du projet

Maître d'ouvrage (2)

Maître d'ouvrage - Industriels - commerçants - entreprise

particulier (x)
BPM ARCHITECTES (33)

Etudes et ingénieries (1)

Maître d'œuvre - Architecte mandataire

BPM ARCHITECTES (33)

Entreprises des lots bois (2)

Charpentier

MCE PERCHALEC (33)

Menuisier

RICHARD Sarl (51)

Fournisseurs du bois (1)

Scierie

SIMONIN SAS (25)

Autres (1)

Photographe

11h45 (93)




* : L'entreprise n'est plus active
Retour à la liste