Réhabiliter un logement
Réhabiliter un logement

Réhabilitation pour deux appartements en Site Patrimonial Remarquable

87400 SAINT LEONARD DE NOBLAT - Haute Vienne - Nouvelle-Aquitaine

BÂTIMENT / LOGEMENT

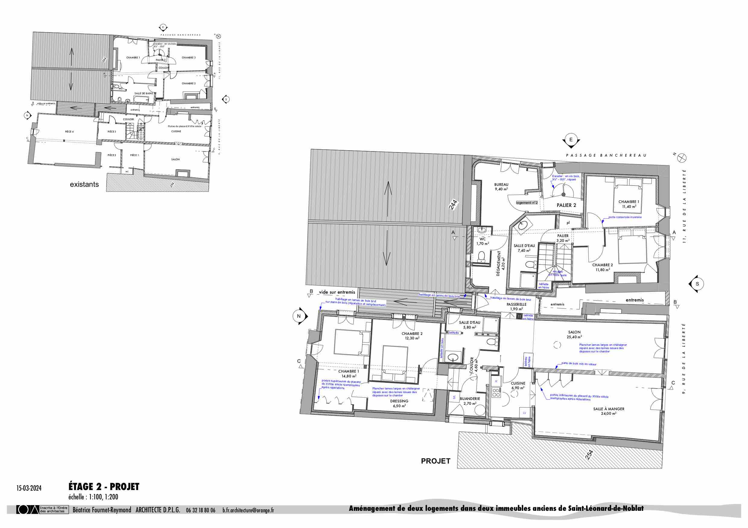
Le projet a permis l'aménagement de deux appartements dans deux anciennes maisons dont l'origine est antérieure au XVe siècle avec des éléments patrimoniaux de construction qui témoignent des années 1500 à 1800. Dans les appartements, la complexité des structures historiques offrent des espaces atypiques, lumineux et confortables. Le bois de hêtre, huilé, a été choisi pour les éléments intérieurs neufs : sa couleur dialogue harmonieusement avec les bois anciens. Un bardage en bois habille toute la paroi intérieure et extérieure de l'entremis, témoin de l'ancienne séparation des maisons.

Catégorie Bâtiment / logement
Numéro de projet8897
Date de candidature14/03/2024

Bâtiment / logement

Détail projet

Typologie de bâtiment : Rénovation / Réhabilitation
Type de bâtiment : Logement collectif
Année de livraison : 2023
Surface totale du bâtiment en m² : 198
Coût total en € HT (hors foncier, hors VRD, hors honoraires) : 357000.00
Lot bois n°1 concerné : Charpente bois
Coût du lot bois n°1 - € HT : 35400.00
Bois Français : oui
Matériaux issus du ré-emploi (préciser dans le descriptif technique) : oui
Isolations biosourcées (préciser dans le descriptif technique) : oui
Matériaux géosourcés (préciser dans le descriptif technique) : oui
Finitions intéreures biosourcées ou géosourcées (préciser dans le descriptif technique) : oui

Structure bois du bâtiment

Structure verticale :

ProduitEssenceProvenances (lieu de croissance du bois)Traitements de préservationMarque et certification produit
Colombage

Structure horizontale :

ProduitEssenceProvenances (lieu de croissance du bois)Traitements de préservationMarque et certification produit
Solivage traditionnel

Charpente :

ProduitEssenceProvenances (lieu de croissance du bois)Traitements de préservationMarque et certification produit
Charpente historique

Revêtement bois extérieur

Revêtement bois ou dérivés :

ProduitEssenceProvenances (lieu de croissance du bois)Marque et certification produitFinitionTraitements de préservation
Lame bois massif

Menuiserie intérieure et extérieure

Menuiserie intérieure :

ProduitEssenceProvenances (lieu de croissance du bois)FinitionMarque et certification produit
Escalier, Lambris, Mobilier, Parquet, Plinthes

Menuiserie extérieure :

ProduitEssenceProvenances (lieu de croissance du bois)Marque et certification produitFinition
Menuiserie bois

Isolation des murs

Isolation intérieure des murs :

Produit
Torchis
Laine de verre
Epaisseur (mm) Isolation intérieure des murs : 150

Isolation entre-montant des murs :

Produit
Laine de verre
Torchis
Epaisseur (mm) Isolation entre-montant des murs : 100

Isolation extérieure des murs :

Produit
Laine de verre
Epaisseur (mm) Isolation extérieure des murs : 100

Isolation de la toiture

Epaisseur (mm) Isolation intérieure de la toiture : 400

Approche environnementale : Lors des déposes, les éléments en bois ont été triés et déposés avec soin pour être réemployés (éléments de structure, de plancher, mobilier). Certains planchers en larges lames de châtaigner ont ainsi pu être réparés. Des portes de placard ont également été déposées et réparées avant repose. Leur réemploi a justifié la création de certains placards. Les bardages sont en bois de douglas brut, sans traitement, destinés à vieillir naturellement. Les appartements ont été rénovés thermiquement de façon optimale comprenant le traitement de l'étanchéité à l'air.

Descriptif technique : * Menuiseries extérieures en bois, strictement adaptées aux baies, double vitrage et petits bois structurants. Porte d'entrée neuve en bois. * Vérification, modification et remplacement des bois de structure en chêne. * Structure de la passerelle en bois, façades en ossature bois (douglas). * Pour la couverture de la passerelle, chevrons porteurs sur pannes muraillères en chêne, planches de volige en chêne, à lames larges. * Pose de bardages en bois de douglas (finition brute destinées à vieillir naturellement) sur tasseaux bois compris film pare-pluie, encadrement de baies. * Escalier médiéval à vis en bois avec noyau sculpté : réparation avec remplacement à l’identique d’éléments endommagés compris remise en teinte. * Escalier neuf 2/4 tournant en hêtre, huilé.

Performance du bâtiment (Cep en kWhep/m²/an) : 145
Ic construction - Impact Environnemental de la Construction (kg éq CO2/m² de SHAB ou SU) : 4
Chauffage au Bois : non
Données déclaratives

Acteurs du projet

Maître d'ouvrage (1)

Maître d'ouvrage - Particuliers

particulier (x)

Etudes et ingénieries (1)

Maître d'œuvre - Architecte mandataire

SARL FOURNET-REYMOND BEATRICE ARCHITECTURE (87)

Entreprises des lots bois (2)

Charpentier

sarl DEBEAUPTE 87 (87)

Menuisier

BRISSIAUD ET FILS (87)




* : L'entreprise n'est plus active
Retour à la liste