Aménager
Aménager

Restaurant Universitaire Gaston Berger - Fac St Charles Marseille

13003 MARSEILLE 03 - Bouches du rhône - Provence Alpes Côte d'Azur
Lauréat régional
Finaliste national

AMÉNAGEMENT BOIS

Aménagement intérieur

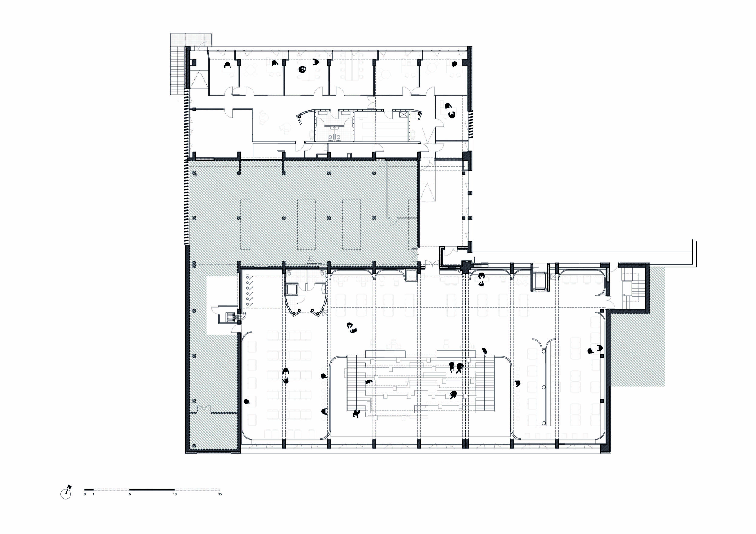
" Révéler l’espace, transformer les usages " L’intervention dans ce patrimoine ACR cherche à révéler la force spatiale et les traces des 60 ans de pratiques du lieu. Elle consiste à : - ouvrir le plancher pour relier les deux étages et créer un volume continu à grande échelle ; - nettoyés et sablés les portiques en B.A. pour en révéler toute l’expressivité ... Chaque rajout est visible, autonome et réversible pour proposer de nouveaux usages sans conditionner le futur. Ce projet est attentif à la matière brute et au confort d'usage d'un point de vue social, visuel, thermique et acoustique.

Catégorie aménagement bois, aménagement intérieur
Numéro de projet9098
Adresse du projet 30 Rue Lucien Rolmer
13003 MARSEILLE 03
Date de candidature24/02/2025

aménagement bois

typologie : Loisirs,Enseignement ou éducation,Restauration
Coût total en € HT : 1970000

aménagement intérieur

Année de réalisation : 2024
Coût total Aménagement Intérieur en € HT : 1720000
Coût lots bois en € HT : 249000
Volume bois m³ : 49.97
Surface aménagée en m² : 1295

Liste des produits :

ProduitEssenceProvenances (lieu de croissance du bois)Marque et certification produitFinition
ParquetChêneAuvergne-Rhône-AlpesBois de FranceVernis
EscalierÉpicéa communProvence-Alpes-Côte-d'AzurBois de FranceAucune finition
LambrisChêneAuvergne-Rhône-AlpesBois de FranceVernis
Panneau acoustiqueÉpicéa communFranceJe n'ai pas l'informationAucune finition
MobilierChêneFrancePEFCHuile
Bois Français : oui

Approche environnementale : La stratégie de projet s'inscrit dans le temps long et le foisonnement d'usages. La cité universitaire n’ayant pas de foyer étudiant, ni de co-working nous avons proposé que cette salle puisse remplir ces fonctions hors temps de restauration. Le résultat est un espace très utilisé et investi et un lieu évènementiel en devenir pour la faculté. Le projet mise sur l'utilisation de matériaux naturels bruts (fibre de bois en doublage acoustiques, bois locaux, terre cuites et faïences de réemploi, bétons bruts). L'adaptation climatique se fait par l'inertie et la ventilation naturelle contrôlée.

Descriptif technique de l'aménagement : Pour porter le gradin sans détériorer les dalles de sol existantes en marbres situées sous la trémie, nous avons imaginé une structure métallique appuyée sur la base des anciens poteaux béton rendus inutiles par la création de la trémie. Ceux-ci ont été arasés pour supporter le gradin en ossature bois ayant un poids chargé inférieur à l’ancienne dalle (économie de matière et préservation patrimoniale). Le gradin est un ouvrage complexe, pensé pour être démontable (sans colles) structurellement autonome (posé sur appuis élastomère). Construit en charpente en épicéa, il est traité au feu par flocage en sous face. Posés sur un absorbant acoustique, le parquet et les carrelets massifs en chêne sur chaque angle saillant permettent d'assurer la pérennité d’un ouvrage qui sera très sollicité.

Des matériaux issus du ré-emploi ont été utilisés dans le projet : oui
Données déclaratives

Acteurs du projet

Maître d'ouvrage (1)

Maître d'ouvrage - Services publics

CROUS AIX-MARSEILLE AVIGNON (13)

Etudes et ingénieries (6)

Maître d'œuvre - Architecte mandataire

PANARCHITECTURE FUGIER & BARBIER-BOUVET (13)

Bureau d'études acoustique

JEAN-PAUL VAN CUYCK (A2MS) (13)

Bureau d'études structure bois

particulier (x)

Bureau d'études thermique

AD2i Ingiénerie (13)

Economiste

AD2i Ingiénerie (13)

Autre intervenant de la construction - bureau de contrôle, AMO, BIM...

BTP CONSULTANTS (59)

Entreprises des lots bois (3)

Charpentier

SOPREN (13)

Menuisier

Société GUERRA (13)

Constructeur bois

SOPREN (13)




* : L'entreprise n'est plus active
Retour à la liste