Réhabiliter un logement
Réhabiliter un logement

A23.75ML-MOUZAÏA

75019 - Paris - Ile de France

BÂTIMENT / LOGEMENT

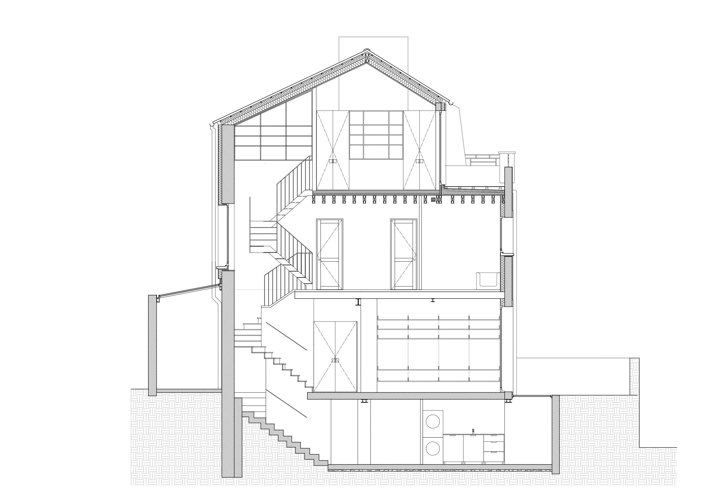
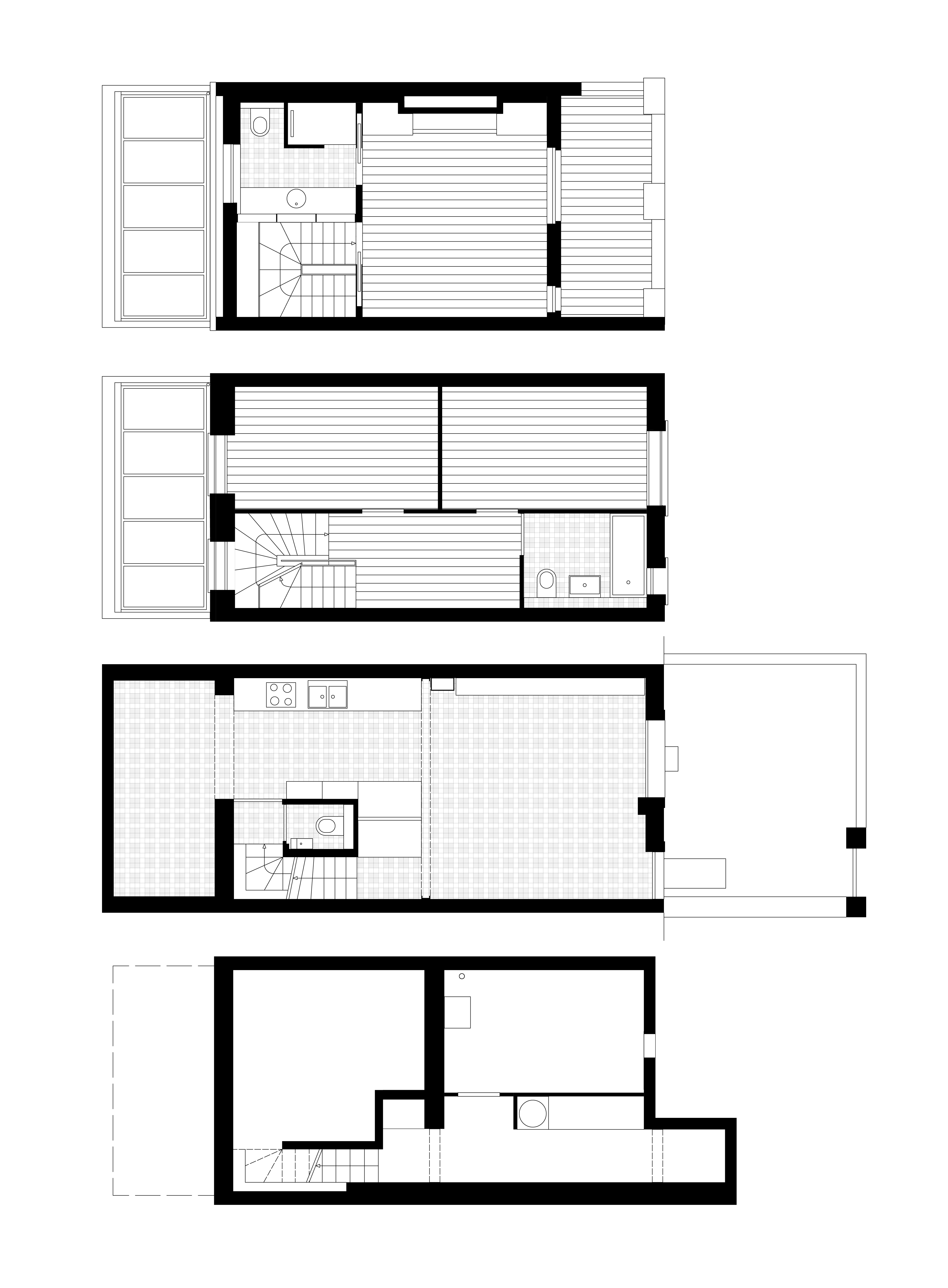
Située dans le quartier de la Mouzaïa, cette rénovation concerne une maison mitoyenne qui s’organise sur quatre niveaux. Le projet consiste à rationaliser les surfaces et à rendre chaque étage traversant, permettant un éclairage naturel et une meilleure ventilation. Le plancher du R+2 est entièrement reconstruit et le dernier escalier vient désormais se superposer au deux autres. Au rez-de-chaussée, un volume en chêne reçoit les aménagements nécessaires (penderie, cuisine) et intègre l'accès au sous-sol, tout en partitionnant le salon et la salle à manger sous la verrière.

Catégorie Bâtiment / logement
Numéro de projet9100
Date de candidature24/01/2025

Bâtiment / logement

Détail projet

Typologie de bâtiment : Rénovation / Réhabilitation
Type de bâtiment : Logement individuel inférieur 120 m²
Année de livraison : 2024
Surface totale du bâtiment en m² : 110
Coût total en € HT (hors foncier, hors VRD, hors honoraires) : 278000
Lot bois n°1 concerné : Charpente bois
Coût du lot bois n°1 - € HT : 13220
Lot bois n°2 concerné : Menuiserie intérieure bois
Coût du lot bois n°2 - € HT : 23600
Bois Français : oui
Matériaux issus du ré-emploi (préciser dans le descriptif technique) : oui
Isolations biosourcées (préciser dans le descriptif technique) : oui
Matériaux géosourcés (préciser dans le descriptif technique) : oui
Finitions intéreures biosourcées ou géosourcées (préciser dans le descriptif technique) : oui

Structure bois du bâtiment

Structure verticale :

ProduitEssenceProvenances (lieu de croissance du bois)Traitements de préservationMarque et certification produit
Non précisé

Structure horizontale :

ProduitEssenceProvenances (lieu de croissance du bois)Traitements de préservationMarque et certification produit
Solivage traditionnel

Charpente :

ProduitEssenceProvenances (lieu de croissance du bois)Traitements de préservationMarque et certification produit
Non précisé

Revêtement bois extérieur

Menuiserie intérieure et extérieure

Menuiserie intérieure :

ProduitEssenceProvenances (lieu de croissance du bois)FinitionMarque et certification produit
MobilierChêneFrance
ParquetChêne

Menuiserie extérieure :

ProduitEssenceProvenances (lieu de croissance du bois)Marque et certification produitFinition
Menuiserie boisÉpicéa commun

Isolation des murs

Isolation intérieure des murs :

Produit
Fibre de bois (Panneaux)
Epaisseur (mm) Isolation intérieure des murs : 120

Isolation entre-montant des murs :

Produit
Fibre de bois (Panneaux)
Epaisseur (mm) Isolation entre-montant des murs : 40

Isolation extérieure des murs :

Produit
Fibre de bois (Panneaux)
Epaisseur (mm) Isolation extérieure des murs : 120

Isolation de la toiture

Epaisseur (mm) Isolation intérieure de la toiture : 240

Approche environnementale : Concevoir avec l’existant répond à un impératif environnemental. Un nécessaire changement de paradigme : du monde de la construction à celui de la transformation. L’approche environnementale pour ce projet est globale. D’abord éclairer, ventiler puis restaurer, isoler. La rénovation thermique est traitée au cas par cas : les menuiseries sont remplacées à l’exception de la porte d’entrée selon la demande de l’ABF ; l’isolation thermique est extérieure sur la façade arrière et sur la terrasse haute en retrait, mais intérieure pour la façade sur jardin, au droit des alignements avec les voisins.

Descriptif technique : L’ensemble des éléments constructifs existants en bois ne nécessitant pas d’être remplacés, ont été rénovés (charpente toiture, escalier du RDC). Des éléments tels que les portes intérieures, le réseau de radiateur en fonte, ont été restaurés et réemployés. Le plancher du R+2, en trop mauvais état, a été recréé en solivage traditionnel. Une isolation en verre cellulaire recyclé à pente intégrée est mise en œuvre sur le plancher bois pour la terrasse du R+2. L’isolation thermique de la maison est traitée en panneaux de fibre de bois. Les planchers sont également isolés en matériaux bio et géosourcé (fibre de bois entre lambourde pour le plancher restauré du R+1;chape sèche en granules recyclées sous panneaux Fermacell + fibre de bois, liège, pour le plancher reconstruit du R+2.)

Chauffage au Bois : non
Données déclaratives

Acteurs du projet

Maître d'ouvrage (1)

Maître d'ouvrage - Particuliers

particulier (x)

Etudes et ingénieries (1)

Maître d'œuvre - Architecte mandataire

Augure Studio (75)

Autres (1)

Photographe

AGNES CLOTIS (33)




* : L'entreprise n'est plus active
Retour à la liste