Habiter ensemble
Habiter ensemble

MYRHA

75018 PARIS 18 - Paris - Ile de France

BÂTIMENT / LOGEMENT

Dans ce quartier populaire du 18ème arrond.de Paris, l’édification était, historiquement, affaire de moyens du bord et de matériaux locaux. Le projet se propose de réinterpréter les qualités de ces caractéristiques haussmanniennes et de faubourg, par la transposition de procédés constructifs plutôt que par mimétisme formel. Sur la rue Myrha, la façade suit une trame régulière avec de larges ouvertures sur l’extérieur pour mettre en valeur son épaisseur active. Une façade en brique de réemploie, active et tempérée, avec un système passive de preffauffage de l'air pour la ventilation naturelle.

Catégorie Bâtiment / logement
Numéro de projet9284
Adresse du projet 39 rue Myrha
75018 PARIS 18
Date de candidature19/02/2025

Bâtiment / logement

Détail projet

Typologie de bâtiment : Neuf
Type de bâtiment : Logement collectif
Année de livraison : 2025
Surface totale du bâtiment en m² : 680
Coût total en € HT (hors foncier, hors VRD, hors honoraires) : 2700000
Lot bois n°1 concerné : Charpente bois,ossature bois
Volume lot bois n°1 - m³ : 220
Coût du lot bois n°1 - € HT : 380000
Lot bois n°2 concerné : Menuiserie intérieure bois
Bois Français : non
Matériaux issus du ré-emploi (préciser dans le descriptif technique) : oui
Isolations biosourcées (préciser dans le descriptif technique) : oui
Matériaux géosourcés (préciser dans le descriptif technique) : non
Finitions intéreures biosourcées ou géosourcées (préciser dans le descriptif technique) : non

Structure bois du bâtiment

Structure verticale :

ProduitEssenceProvenances (lieu de croissance du bois)Traitements de préservationMarque et certification produit
Panneau de bois massif (CLT collé ou CLT cloué)Épicéa communEuropeTraitement Classe 2 (trempage)PEFC

Structure horizontale :

ProduitEssenceProvenances (lieu de croissance du bois)Traitements de préservationMarque et certification produit
Panneau de bois massif (CLT collé ou CLT cloué)Épicéa communEuropeTraitement Classe 2 (trempage)PEFC

Charpente :

ProduitEssenceProvenances (lieu de croissance du bois)Traitements de préservationMarque et certification produit
Charpente bois lamellé-colléÉpicéa communEuropeTraitement Classe 2 (trempage)PEFC

Revêtement bois extérieur

Menuiserie intérieure et extérieure

Isolation des murs

Isolation intérieure des murs :

Produit
Laine de bois souple
Epaisseur (mm) Isolation intérieure des murs : 60

Isolation extérieure des murs :

Produit
Laine de roche
Epaisseur (mm) Isolation extérieure des murs : 60

Isolation de la toiture

Epaisseur (mm) Isolation intérieure de la toiture : 60
Epaisseur (mm) Isolation extérieure de la toiture : 130

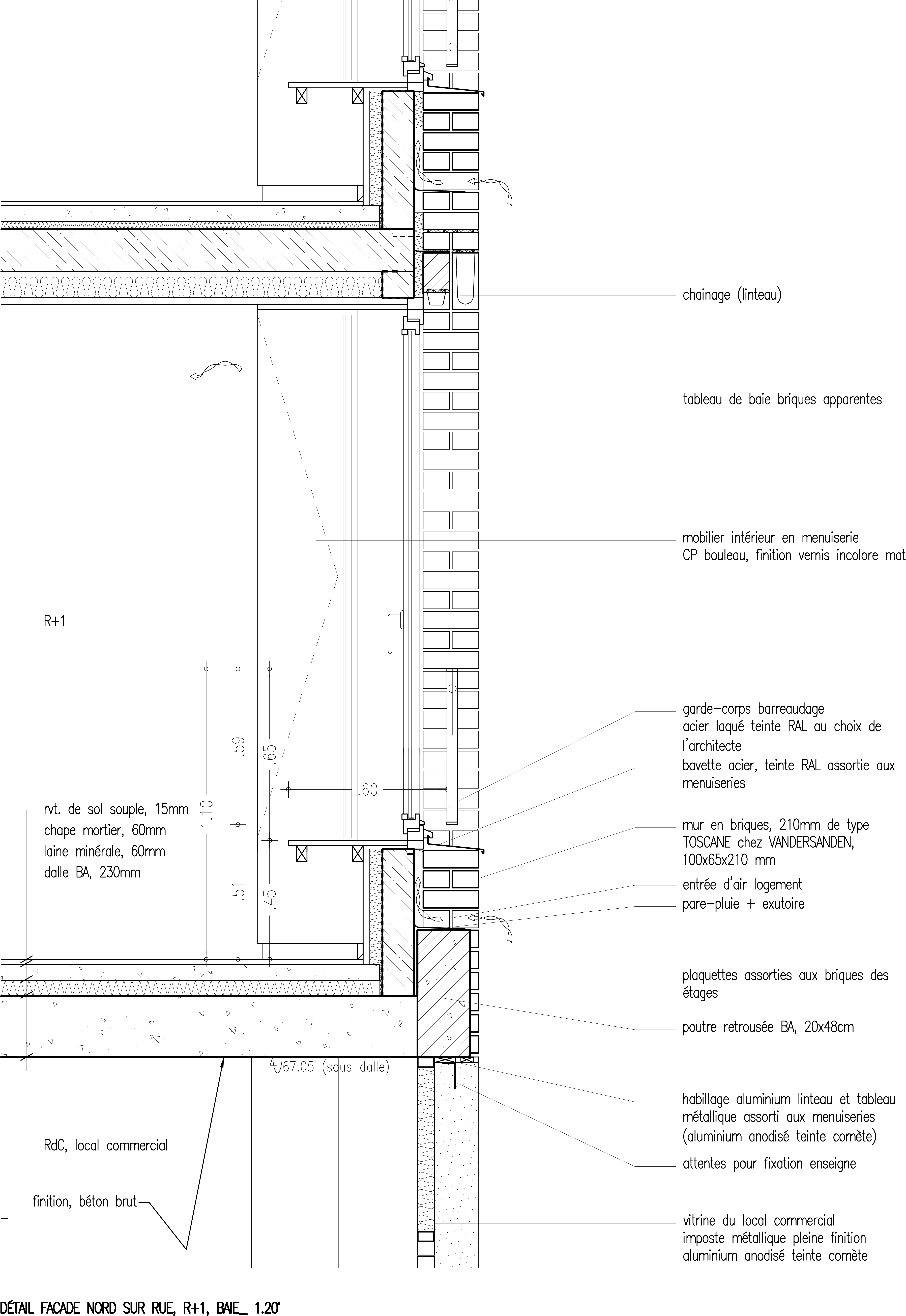
Approche environnementale : NF Habitat HQE 7*, le projet cherche l'exemplarité environnementale. Au-delà des certifications le projet cherche à explorer de nouveaux dispositifs passifs et low tech afin d'améliorer la qualité d'usage et environnementale du projet. L'inertie et la récupération de chaleur (que ce soit des eaux résiduelles pour préchauffer l'eau des chaudières, ou de l'air pour préchauffer l'air de l'extérieur pour la ventilation naturelle de bâtiment) vont être de vecteurs de performance. La façade épaisse se compose également d'un placard en façade qui crée un filtre supplémentaire et de nouveaux usages.

Descriptif technique : Les pans de bois des constructions traditionnelles du quartier deviennent une structure bois CLT avec des murs porteurs le long des mitoyens et de planchers en CLT. A exception du sous-sol et le RDC, la totalité de la structure a été réalisée en bois, y compris la cage d'escaliers et ascenseur! Premier bâtiment en France en 100% structure bois et brique de réemploi, le bâtiment cherche à dépasser les exigences environnementales du moment (PC déposé en 2017). 8 ans après, le bâtiment reste très innovateur d'un point de vu technique. Dans une démarche passive la façade intègre un système de ventilation dans la lame d'air qui permet de préchauffer l'air de la rue avant de le faire rentrer dans le bâtiment. Ainsi, la chaleur résiduelle du bâtiment est utilisée pour tempérer l'air.

Performance du bâtiment (Cep en kWhep/m²/an) : 46
Chauffage au Bois : non
Certifications, labels et marques bâtiment : Effinergie,HQE,PEFC
Données déclaratives

Acteurs du projet

Maître d'ouvrage (1)

Maître d'ouvrage - Bailleur social public

RIVP (75)

Etudes et ingénieries (7)

Maître d'œuvre - Architecte mandataire

Atelier FUSO (75)

Bureau d'études acoustique

VENATHEC (54)

Bureau d'études structure bois

LM Ingénieur (75)

Bureau d'études environnement

LM Ingénieur (75)

Bureau d'études thermique

LM Ingénieur (75)

Economiste

ALP INGENIERIE (75)

Autre intervenant de la construction - bureau de contrôle, AMO, BIM...

ATELUX INGENIERIE (78)

Autres (1)

Photographe

Antoine Seguin (75)




* : L'entreprise n'est plus active
Retour à la liste