Réhabiliter un équipement
Réhabiliter un équipement

Construction d'un dojo en extension du Hall Kummer | Espace Adrien Zeller à Bischwiller

67240 BISCHWILLER - Bas Rhin - Grand Est

BÂTIMENT / LOGEMENT

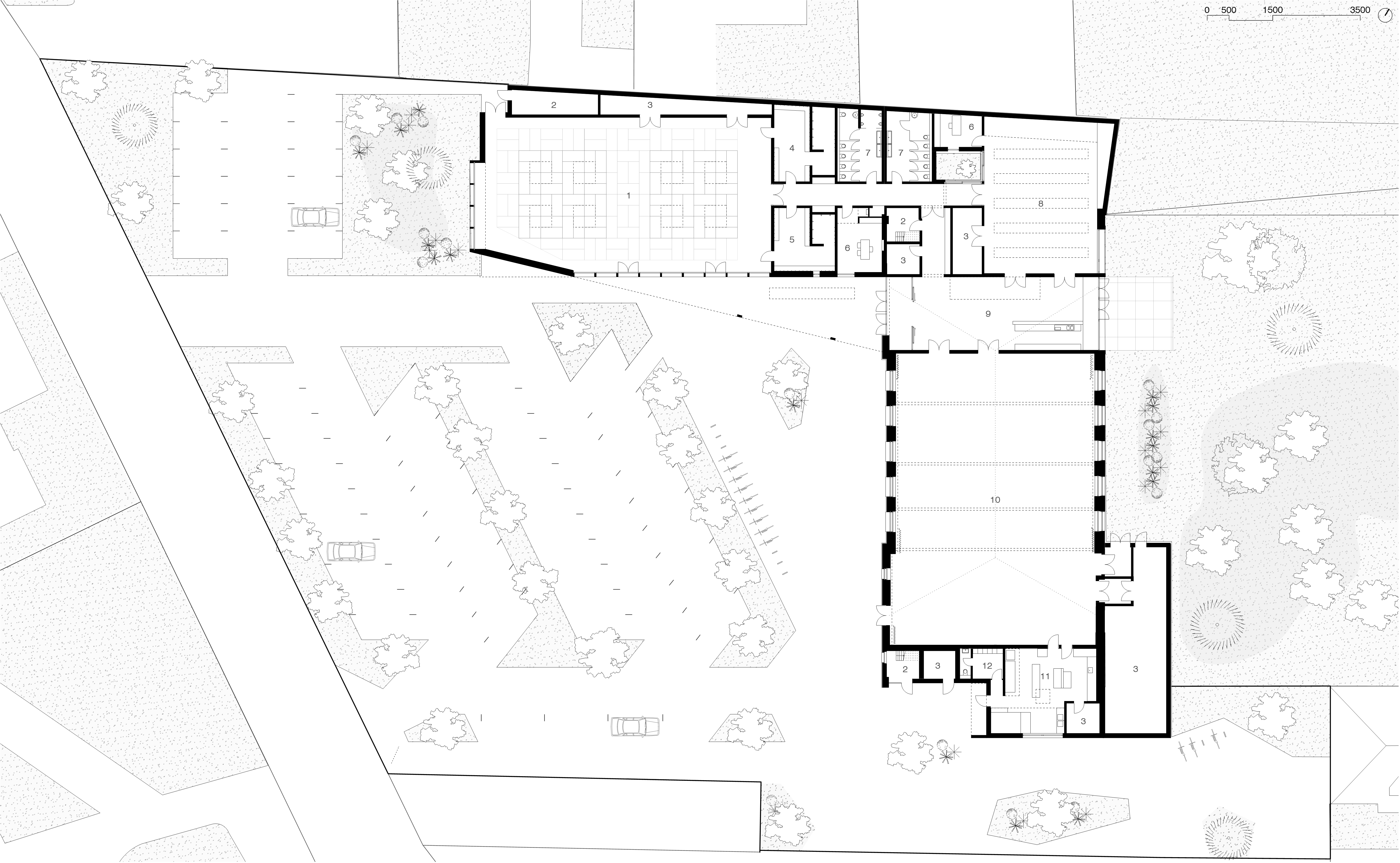
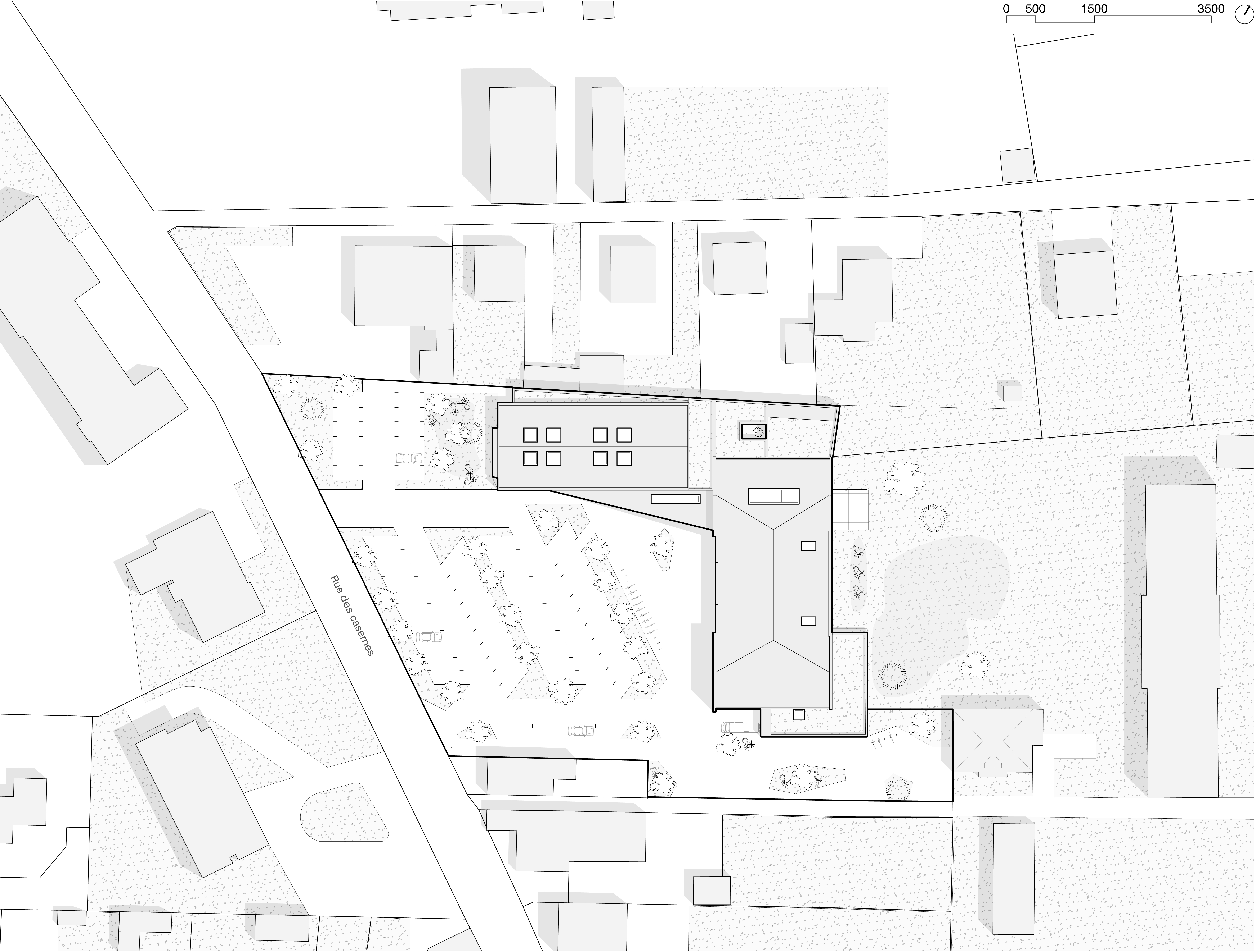
L’ancien Hall Kummer accueille aujourd’hui un espace associatif, sportif, culturel, familial et de loisir. Le bâtiment historique devient salle des fêtes, tandis que son extension comprend un dojo, une salle de danse et un hall traversant vers un jardin aménagé. Le projet vise à valoriser cet ancien magasin de fourrage militaire, patrimoine bâti de Bischwiller. Le dojo joue un rôle de signal en s’avançant vers la rue. Le quadrillage de sa charpente apparente est comme la réponse des tatamis au sol et ses ouvertures zénithales apportent une ambiance zen aux deux aires de combat.

Catégorie Bâtiment / logement
Numéro de projet9422
Adresse du projet 10 Rue des Casernes
67240 BISCHWILLER
Date de candidature03/03/2025

Bâtiment / logement

Détail projet

Typologie de bâtiment : Extension / surélévation
Type de bâtiment : Loisirs,Sport
Année de livraison : 2022
Surface totale du bâtiment en m² : 1708
Dont extension / surélévation en m² : 522
Coût total en € HT (hors foncier, hors VRD, hors honoraires) : 3900000
Lot bois n°1 concerné : Charpente bois,ossature bois
Volume lot bois n°1 - m³ : 40
Coût du lot bois n°1 - € HT : 68625
Lot bois n°2 concerné : Menuiserie intérieure bois,Menuiserie extérieure bois,Autre lot bois
Volume lot bois n°2 - m³ : 212
Coût du lot bois n°2 - € HT : 308300
Bois Français : non
Matériaux issus du ré-emploi (préciser dans le descriptif technique) : non
Isolations biosourcées (préciser dans le descriptif technique) : oui
Matériaux géosourcés (préciser dans le descriptif technique) : non
Finitions intéreures biosourcées ou géosourcées (préciser dans le descriptif technique) : non

Structure bois du bâtiment

Structure verticale :

ProduitEssenceProvenances (lieu de croissance du bois)Traitements de préservationMarque et certification produit
Panneau ossature boisÉpicéa communPEFC

Structure horizontale :

ProduitEssenceProvenances (lieu de croissance du bois)Traitements de préservationMarque et certification produit
Non précisé

Charpente :

ProduitEssenceProvenances (lieu de croissance du bois)Traitements de préservationMarque et certification produit
Charpente bois lamellé-colléÉpicéa communTraitement Classe 3b (autoclave)

Revêtement bois extérieur

Autre revêtement métallique :

Produit
Zinc

Menuiserie intérieure et extérieure

Menuiserie intérieure :

ProduitEssenceProvenances (lieu de croissance du bois)FinitionMarque et certification produit
Panneau acoustiquePeuplier

Menuiserie extérieure :

ProduitEssenceProvenances (lieu de croissance du bois)Marque et certification produitFinition
Menuiserie boisMélèze

Isolation des murs

Isolation intérieure des murs :

Produit
Laine de bois souple
Epaisseur (mm) Isolation intérieure des murs : 60

Isolation entre-montant des murs :

Produit
Laine de bois souple
Epaisseur (mm) Isolation entre-montant des murs : 160
Epaisseur (mm) Isolation extérieure des murs : 80

Isolation de la toiture

Epaisseur (mm) Isolation intérieure de la toiture : 100
Epaisseur (mm) Isolation extérieure de la toiture : 220

Approche environnementale : Les matériaux utilisés, bruts mais nobles, tels que le bois, cuivre, béton pour l’extension, l’enduit à la chaux et pierre pour rénover l’existant, introduisent un dialogue entre neuf et ancien, réhabilitation et extension. Notre intervention vise à magnifier l’utilisation du bois là où il a été employé. Que ce soit la charpente apparente du dojo ou dans le hall, où les éléments en bois massif au plafond créé une vibration jouant avec la lumière zénithale. Son sol est réalisé en parquet bois debout en bois massif, qui est à la fois très résistant et qui peut se reponcer, se rehuiler.

Descriptif technique : La charpente du dojo se compose de poutres lamellé-collé de section 12 x 68 cm. Les poutres principales franchissent 14 m entre façades. Elles ont été produites avec une contre-flèche de 7 cm pour la déformation. Les entretoises forment un quadrillage de 2 m x 2 m. La charpente est apparente, les assemblages entre les bois se faisant par des étriers en âme non visibles. Un panneau OSB, posé sur les éléments lamellé-collé, forme un diaphragme rigide nécessaire au contreventement. Une ossature secondaire, tasseaux à inertie variable et panneau OSB, sert de support au complexe étanchéité/isolation. La toiture comprend 8 puits de lumière, positionnés entre les éléments de charpente. Les réhausses de ces puits de lumières ont été réalisées en MOB, comme l’acrotère régnant sur l’angle du bâti.

Performance du bâtiment (Cep en kWhep/m²/an) : 75
Chauffage au Bois : non
Données déclaratives

Acteurs du projet

Maître d'ouvrage (1)

Maître d'ouvrage - État ou collectivité (locale et territ)

Ville de Bischwiller (67)

Etudes et ingénieries (6)

Maître d'œuvre - Architecte mandataire

Ballast Architectes SARL (67)

Bureau d'études acoustique

dB Silence - ESP (67)

Bureau d'études structure bois

INGENIERIE BOIS (67)

Bureau d'études environnement

SOLARES BAUEN (67)

Bureau d'études thermique

SOLARES BAUEN (67)

Economiste

Echoes (67)

Entreprises des lots bois (3)

Charpentier

SYSTEME WOLF (67)

Menuisier

HUNSINGER SAS (67)

Autre lot de la construction (en lien avec le bois)

VOLLMER menuiseries extérieures (67)

Autres (2)

Photographe

Valérie Trégan (67)
EV STudio - Vincent Eschmann (67)




* : L'entreprise n'est plus active
Retour à la liste