Réhabiliter un logement

DU HANGAR A LA MAISON

31230 L ISLE EN DODON - Haute garonne - Occitanie

BÂTIMENT / LOGEMENT

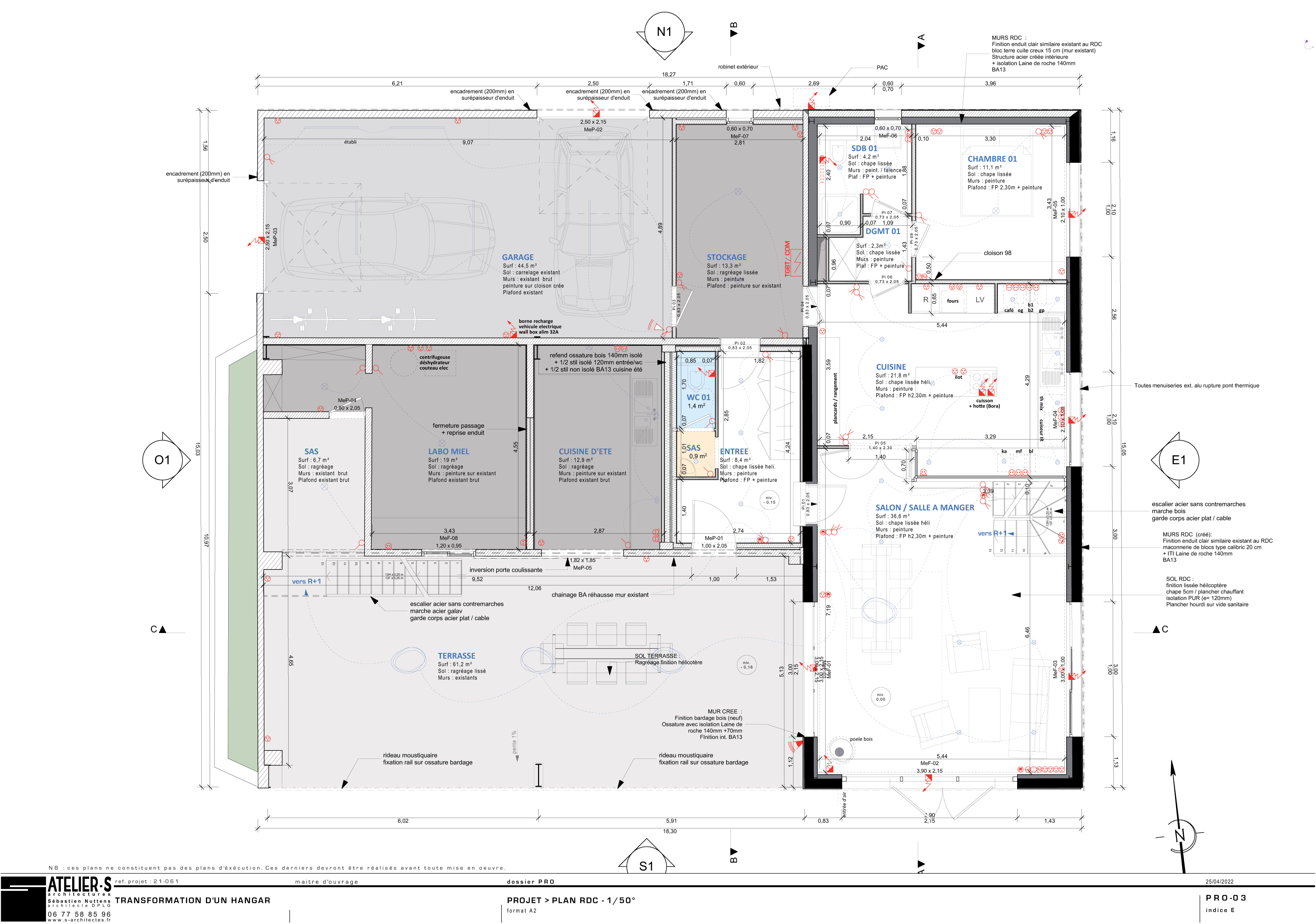
La maison est glissée sous la travée Est du hangar. Cuisine et chambres bénéficient de la vue sur les arbres et du soleil matinal qui sera filtré par le feuillage en été. Séjour et bureau en mezzanine profitent d´une triple orientation avec vue lointaine sur la chaîne des Pyrénées. Les locaux au centre du hangar deviennent une cuisine d´été et un "labo miel", ceux au nord sont transformés en garage double et local technique. Le reste du volume constitue deux belles terrasses couvertes Le réemploi du bardage bois et le rythme des ouvertures créées préservent l'esprit de l´existant;

Catégorie Bâtiment / logement
Numéro de projet9694
Date de candidature13/03/2025

Bâtiment / logement

Détail projet

Typologie de bâtiment : Rénovation / Réhabilitation
Type de bâtiment : Logement individuel supérieur à 120 m²
Année de livraison : 2024
Surface totale du bâtiment en m² : 530
Coût total en € HT (hors foncier, hors VRD, hors honoraires) : 342385
Lot bois n°1 concerné : Bardage bois,ossature bois
Coût du lot bois n°1 - € HT : 60405
Lot bois n°2 concerné : Menuiserie intérieure bois,Autre lot bois
Coût du lot bois n°2 - € HT : 41462.5
Bois Français : oui
Matériaux issus du ré-emploi (préciser dans le descriptif technique) : oui
Isolations biosourcées (préciser dans le descriptif technique) : oui
Matériaux géosourcés (préciser dans le descriptif technique) : non
Finitions intéreures biosourcées ou géosourcées (préciser dans le descriptif technique) : non

Structure bois du bâtiment

Structure verticale :

ProduitEssenceProvenances (lieu de croissance du bois)Traitements de préservationMarque et certification produit
Panneau ossature boisDouglasOccitanieTraitement Classe 4 (autoclave)Marques de territoire (à préciser dans le texte)

Structure horizontale :

ProduitEssenceProvenances (lieu de croissance du bois)Traitements de préservationMarque et certification produit
Solivage traditionnelOccitanieTraitement Classe 4 (autoclave)Je n'ai pas l'information
Solivage traditionnelDouglasOccitanieTraitement Classe 4 (autoclave)Marques de territoire (à préciser dans le texte)

Charpente :

ProduitEssenceProvenances (lieu de croissance du bois)Traitements de préservationMarque et certification produit
Charpente non bois

Revêtement bois extérieur

Revêtement bois ou dérivés :

ProduitEssenceProvenances (lieu de croissance du bois)Marque et certification produitFinitionTraitements de préservation
Lame bois massifDouglasOccitanieAucune finitionTraitement Classe 4 (autoclave)

Revêtement minéral :

Produit
Enduit chaux

Menuiserie intérieure et extérieure

Menuiserie intérieure :

ProduitEssenceProvenances (lieu de croissance du bois)FinitionMarque et certification produit
Escalier, MobilierHêtreFranceAucune finitionJe n'ai pas l'information
ParquetChêneFranceHuileJe n'ai pas l'information

Isolation des murs

Isolation intérieure des murs :

Produit
Laine de roche
Epaisseur (mm) Isolation intérieure des murs : 120

Isolation entre-montant des murs :

Produit
Autres
Epaisseur (mm) Isolation entre-montant des murs : 145

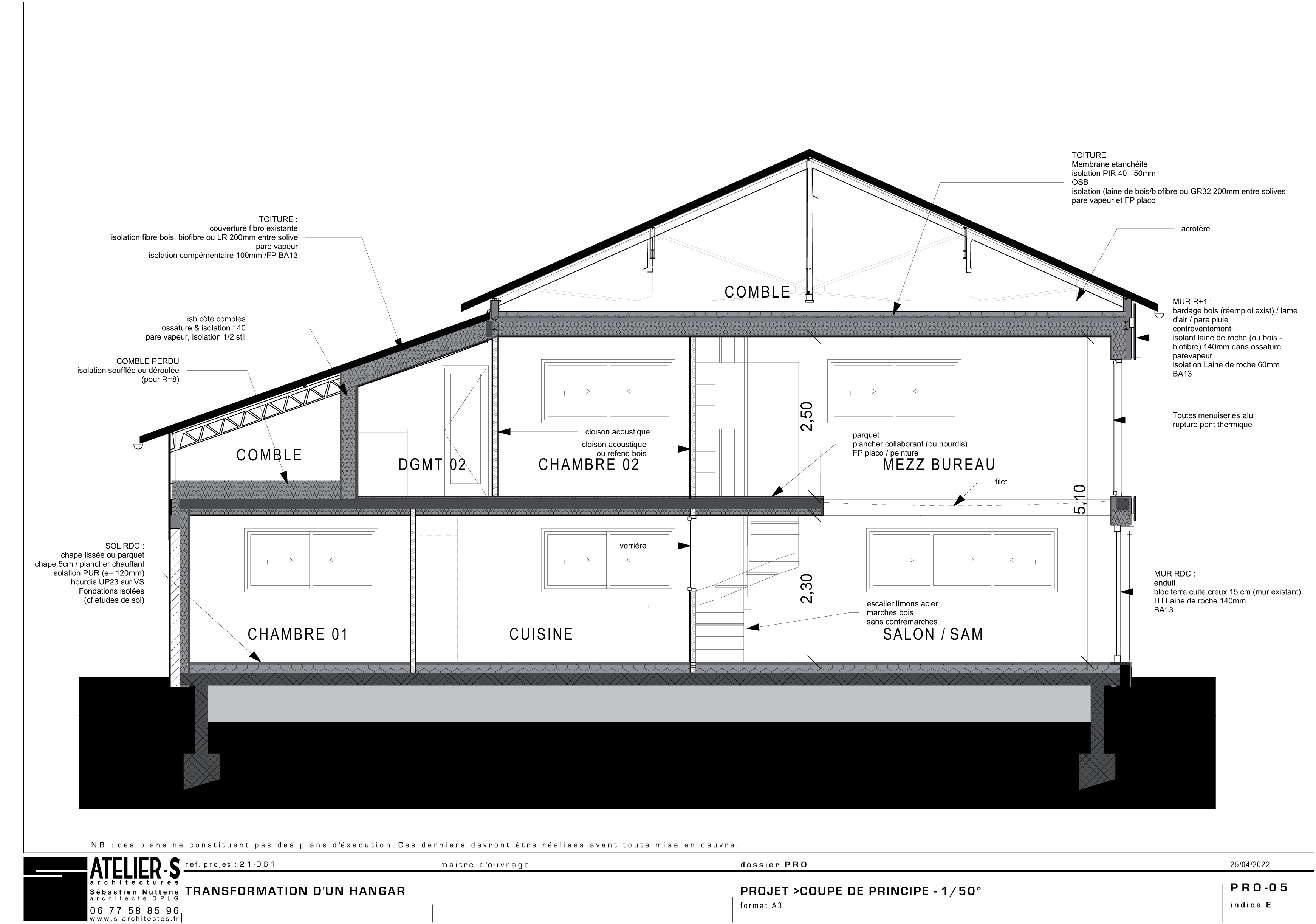
Isolation de la toiture

Epaisseur (mm) Isolation intérieure de la toiture : 120
Epaisseur (mm) Isolation entre-montant de la toiture : 200

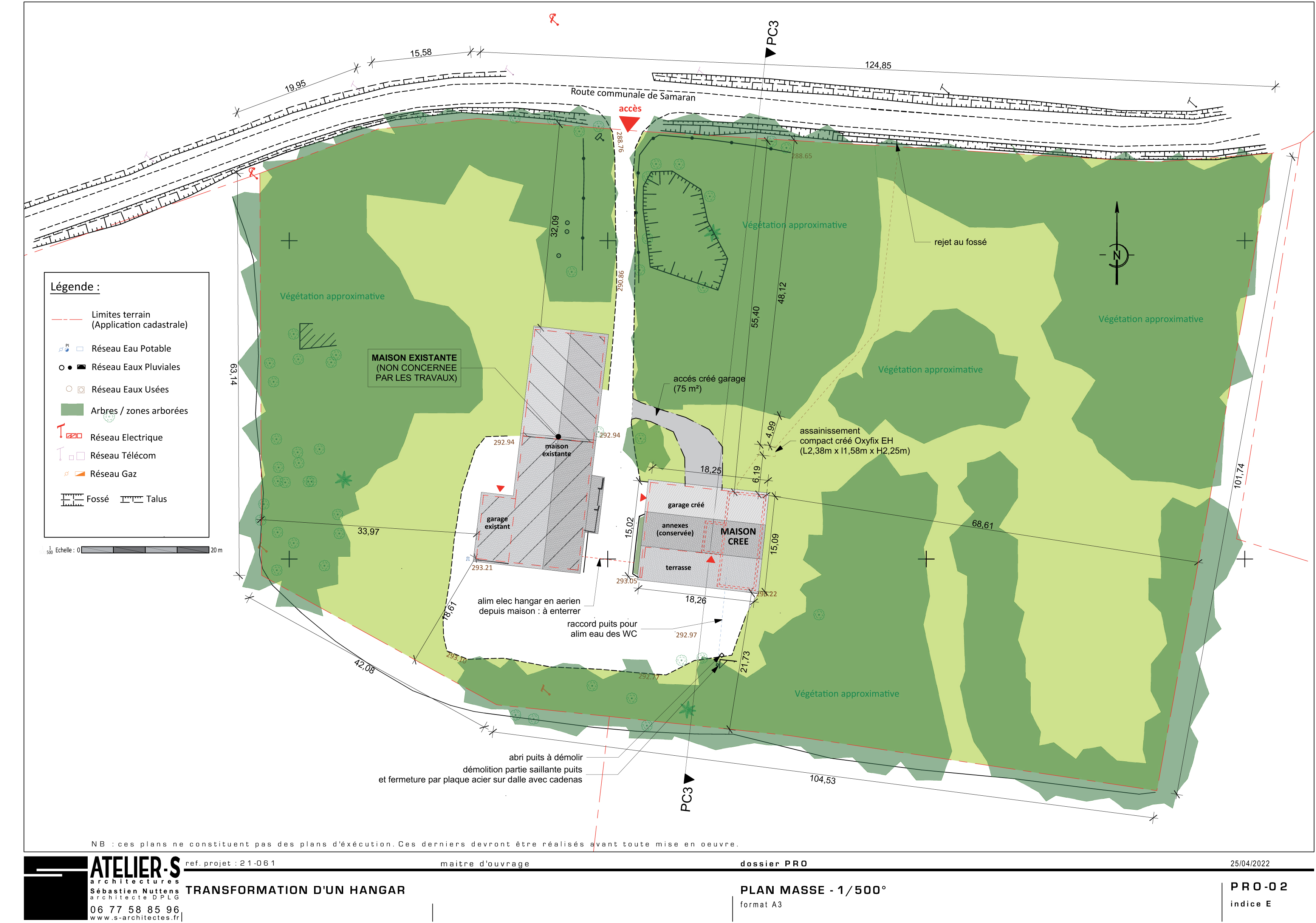
Approche environnementale : Le 1er choix environnemental est de transformer le hangar existant plutôt que de construire une maison neuve, souhait initial des clients. Volume compact, combles et triple orientation profitant au mieux de la vue et des apports solaires. Baies vitrées protégées en été par les arbres ou par la terrasse couverte à l'Ouest. PAC, ossature certifiée Bois des Pyrénées avec isolation BIOFIBRE, poêle bois (bois sur le terrain), phyto-épuration, reprise de maçonnerie en Qualibric, enduits chaux. Réemploi de lames planchers, solives, bardage, structure acier transformée en luminaire sur terrasse...

Descriptif technique : Plancher hourdis isolés UP23 sur VS au RDC. Reprise des murs RDC en qualibric + ITI 150mm, murs ossature bois certif des Pyrénées pr l'étage avec isolation Biofibre 145mm + dblge int 120mm. Toit horizontal bois sous toiture existante pour créer des combles ventilés, isolation Biofibre 200mm + doublage intérieur 120mm Menuiseries Extérieures aluminium à rupture de ponts thermique, double vitrage gaz argon 4/16/4 et 4/20/4 + volets roulants double parois avec mousse ROL Pompe à chaleur Air Eau pour ECS + chauffage plancher chauffant au RDC et radiateur au R+1 Poele Bois TT22HS de Termatech - 7,5kw rendement 82% (Bios de chauffage provenant directement du terrain) Assainissement par phyto-épuration. NB : PC dec 2021 - Projet non concerné par les normes RE202 pas de Cep et Ic construction

Chauffage au Bois : oui
Appareil de chauffage au bois : Poële/insert
Données déclaratives

Acteurs du projet

Maître d'ouvrage (1)

Maître d'ouvrage - Particuliers

particulier (x)

Etudes et ingénieries (1)

Maître d'œuvre - Architecte mandataire

Atelier S architectures (31)

Entreprises des lots bois (2)

Charpentier

TRADI-CARDES (32)

Menuisier

TRADI-CARDES (32)

Autres (1)

Photographe

SEBASTIEN NUTTENS (31)




* : L'entreprise n'est plus active
Retour à la liste