Habiter ensemble
Habiter ensemble

Maison relais

09300 lavelanet - Ariège - Occitanie

BÂTIMENT / LOGEMENT

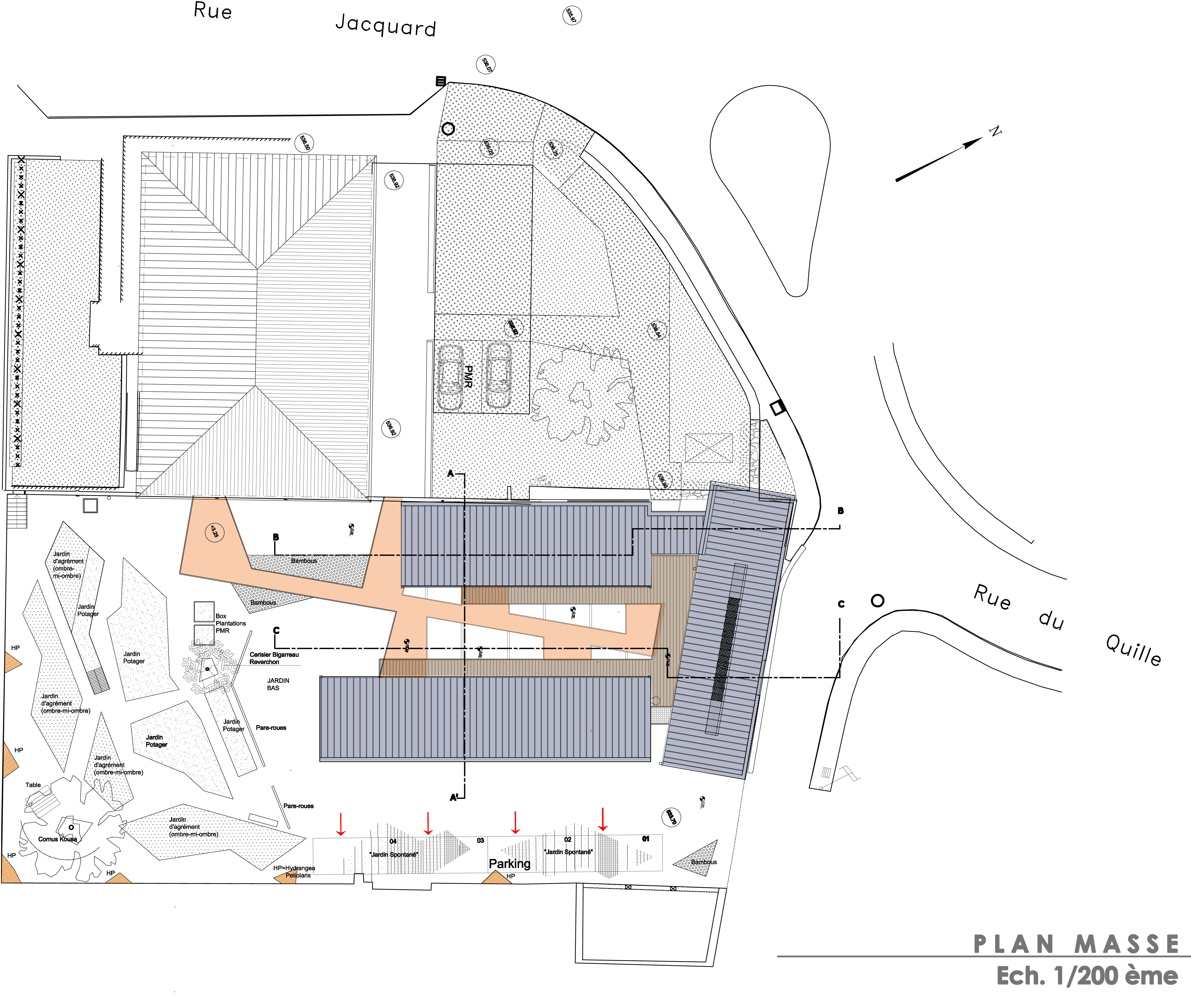
Maison Relais de 19 appartements pour la Croix Rouge et le relogement de personnes en difficultés. Le bâtiment découle d'une composition ouverte, selon trois corps de bâtis qui épousent la géométrie urbaine et qui forment une cour intérieure en U, préservant l'intimité des locataires. Les passerelles de circulations en bois sont conçues comme une promenade architecturale ouverte sur le paysage. Chaque appartement est traversant. La construction en ossature bois utilise du bois régional (filière courte, filière sèche, recyclage) pour ses qualités esthétiques et son rapport économique (légèreté, préfabrication en atelier, rapidité de pose). Les façades sont pour la plupart enduites sur ITE. Le toit accueille des panneaux solaires pour la production d’ECS.

Catégorie Bâtiment / logement
Numéro de projet1849
Adresse du projet 09300 lavelanet
Date de candidature28/02/2019

Bâtiment / logement

Détail projet

Typologie de bâtiment : Neuf
Type de bâtiment : Logement collectif
Année de livraison : 2017
Surface totale du bâtiment en m² : 562(neuf) + 140(réhab)
Coût total en € HT (hors foncier, hors VRD, hors honoraires) : 927 000 € HT
Lot bois n°1 concerné : ossature bois
Lot bois n°2 concerné : Menuiserie extérieure bois
Bois Français : oui
Isolations biosourcées (préciser dans le descriptif technique) : non
Finitions intéreures biosourcées ou géosourcées (préciser dans le descriptif technique) : non

Structure bois du bâtiment

Structure verticale :

ProduitEssenceProvenances (lieu de croissance du bois)Traitements de préservationMarque et certification produit
Panneau ossature boisDouglasOccitanieAucun traitement

Structure horizontale :

ProduitEssenceProvenances (lieu de croissance du bois)Traitements de préservationMarque et certification produit
Solivage traditionnelDouglasOccitanieAucun traitement

Charpente :

ProduitEssenceProvenances (lieu de croissance du bois)Traitements de préservationMarque et certification produit
Charpente traditionnelleDouglasOccitanieAucun traitement

Revêtement bois extérieur

Revêtement minéral :

Produit
Enduit chaux

Menuiserie intérieure et extérieure

Menuiserie extérieure :

ProduitEssenceProvenances (lieu de croissance du bois)Marque et certification produitFinition
Menuiserie boisPin sylvestreOccitanieLasure

Isolation des murs

Isolation intérieure des murs :

Produit
Laine de verre
Epaisseur (mm) Isolation entre-montant des murs : 145mm
Epaisseur (mm) Isolation extérieure des murs : 40mm

Isolation de la toiture

Epaisseur (mm) Isolation intérieure de la toiture : 240mm

Approche environnementale : La forme ouverte en U permet de faire pénétrer le soleil abondamment jusqu’au fond de la cour. L’immeuble est conçu en ossature bois à partir du RDC haut. L’eau chaude sanitaire est fournie à 60% par des panneaux solaires disposés en toiture. L’immeuble présente les caractéristiques de Très Haute Performance Energétique (THPE) avec une double isolation thermique : isolation en laine minérale de 145mm entre les ossatures bois et ITE de 40mm support d'enduit.

Descriptif technique : Immeuble en R+2 en ossature bois, charpente bois, menuiserie extérieures en bois. Passerelle en bois LC, platelage en bois massif 40mm Sous bassement sur pilotis et fondation béton ECS solaire (60%) et électrique (40%) Chauffage Gaz de ville

Chauffage au Bois : non
Données déclaratives

Acteurs du projet

Maître d'ouvrage (2)

Maître d'ouvrage - Bailleur social public

Croix Rouge Française (87)

Maître d'ouvrage - Services publics

OFFICE PUBLIC DE L'HABITAT (OPH ARIEGE) (09)

Etudes et ingénieries (5)

Maître d'œuvre - Architecte mandataire

ARCHITECTURE ET PAYSAGE (09)

Maître d’œuvre - Architecte associé

STUDIO DE CONCEPTION ARCHITECTURAL (STUDIO K) (31)

Bureau d'études structure bois

TERRELL (31)

Bureau d'études thermique

JACQUES VIARD (09)

Paysagiste

ARCHITECTURE ET PAYSAGE (09)

Entreprises des lots bois (3)

Charpentier

WEINGARTNER MELCHIOR (09)

Menuisier

SARL PIBOULEAU ET FILS (PIBOULEAU ET FILS) (09) *

Autre lot de la construction (en lien avec le bois)

SOCIETE NOUVELLE COFFRA T.P (09)

Fournisseurs du bois (1)

Scierie

BOIS SANCHEZ (09)




* : L'entreprise n'est plus active
Retour à la liste