Réhabiliter un logement
Réhabiliter un logement

Entre 2 Patios

93400 Saint-Ouen - Seine Saint Denis - Ile de France

BÂTIMENT / LOGEMENT

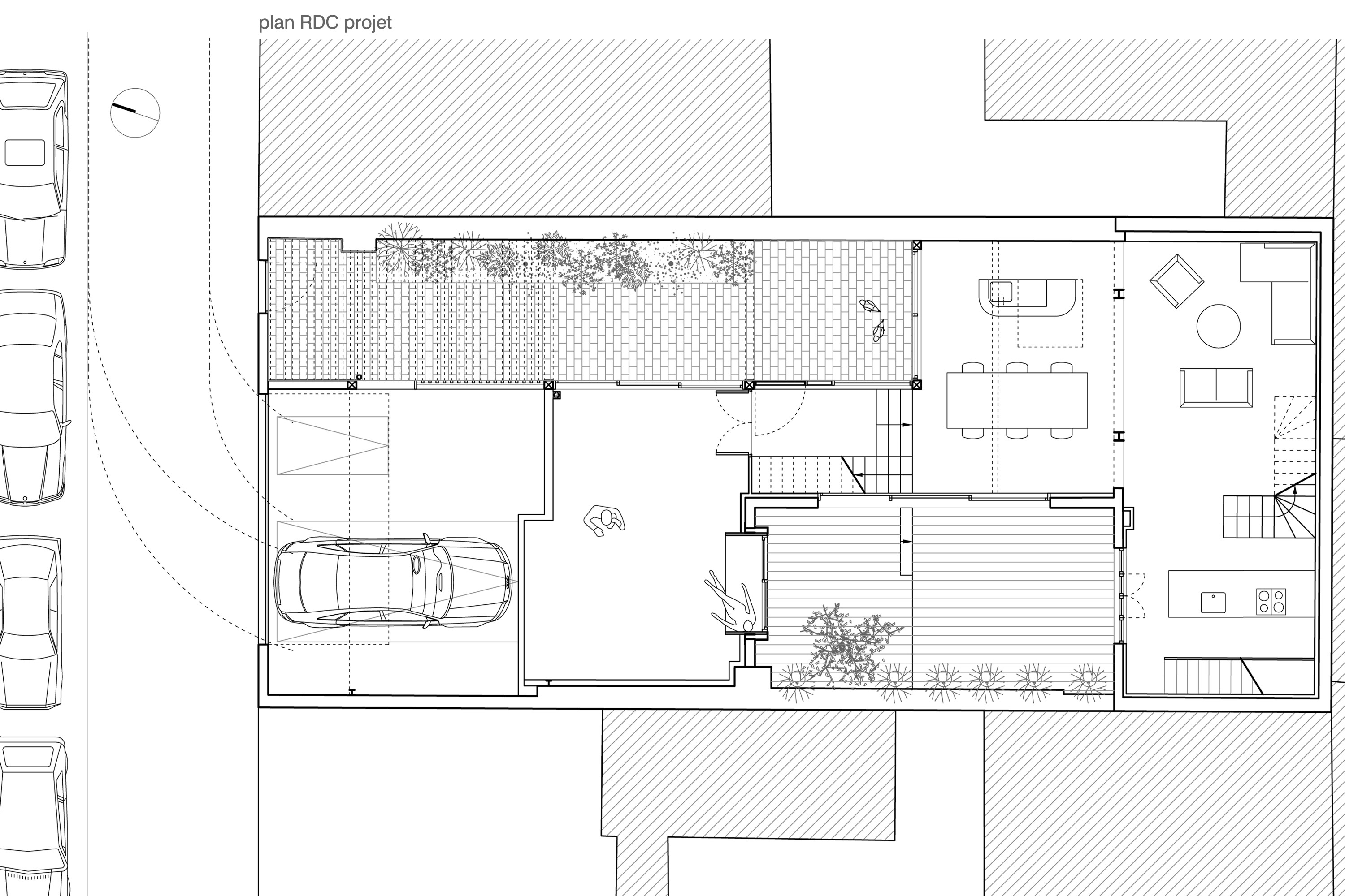
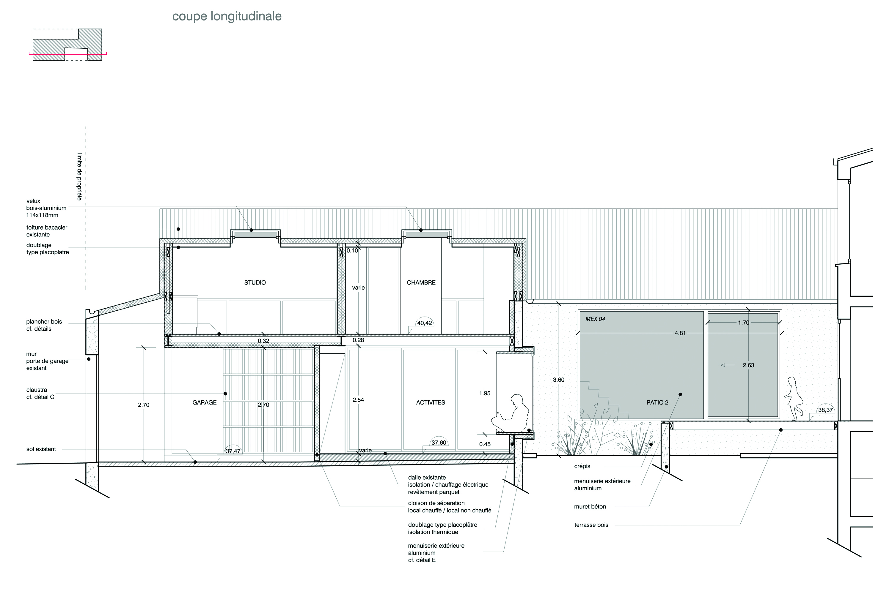
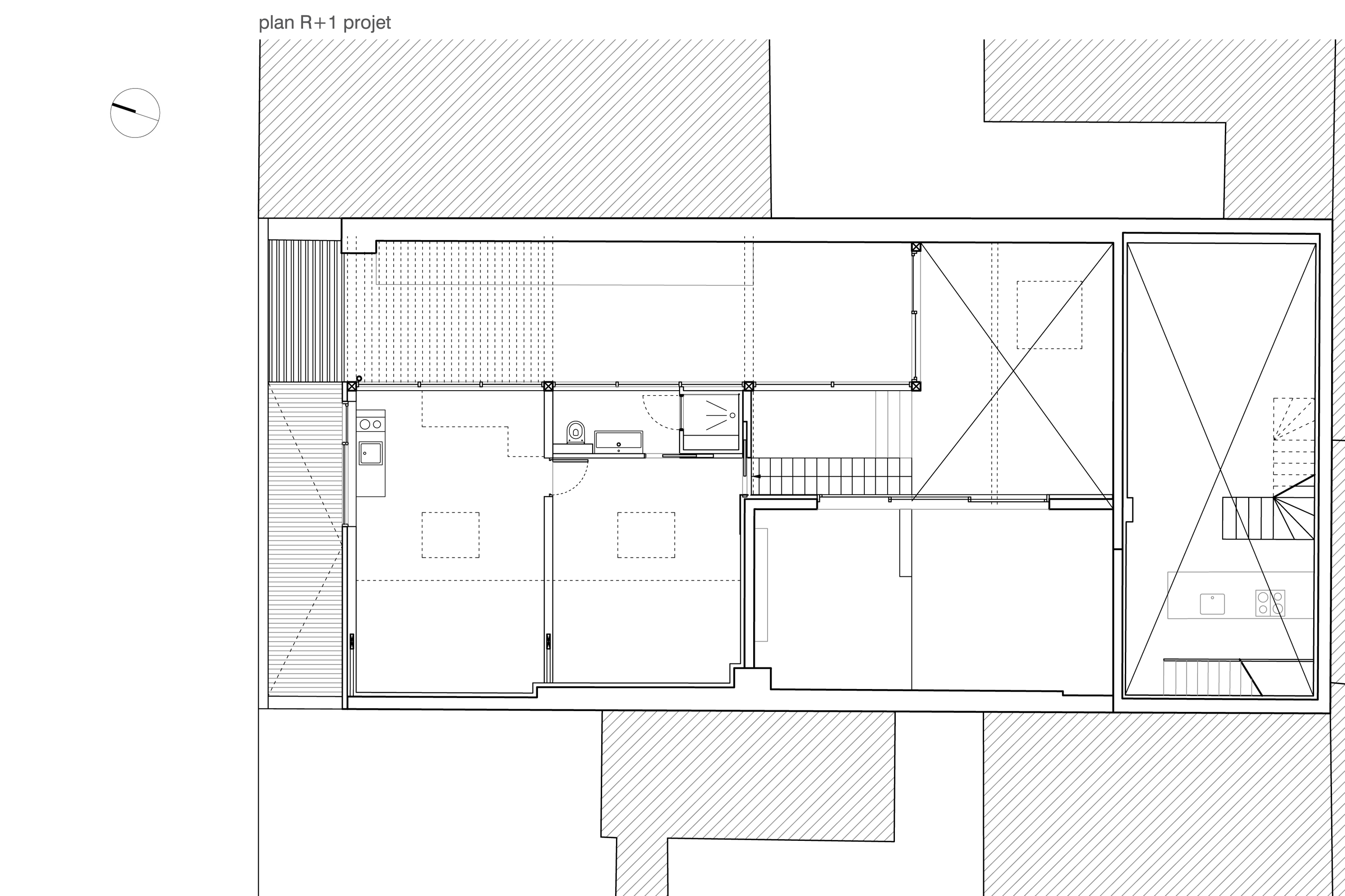
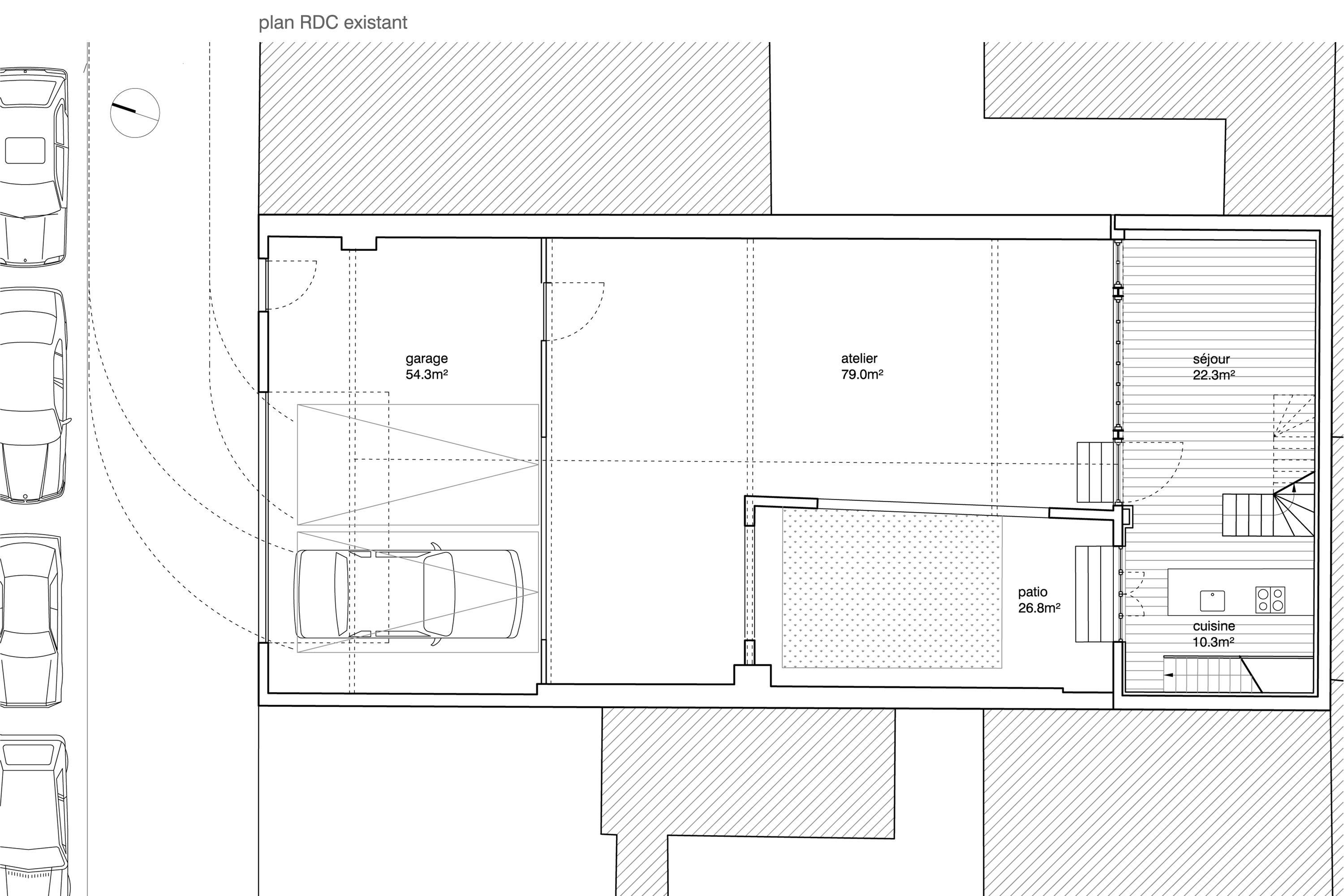
Le projet visait à améliorer un existant : une parcelle 100% construite dans un quartier dense au cœur de la ville de St Ouen. La parcelle se divisait en 3 parties : un garage sur rue, un atelier (ancienne usine) et une maison en fond de parcelle. La maison a été récemment réhabilitée et abrite au RDC un salon / cuisine, au R+1 deux chambres, une salle de bain et un WC et au sous-sol une buanderie ainsi qu’une grande chambre d’ami. La maison au RDC restait très sombre malgré les travaux effectués. Le but du projet est à la fois d’augmenter la surface de la maison en agrandissant le salon et créant, entre autres, une salle d’activité, un bureau, une chambre avec salle de bain, et aussi de gagner en luminosité et ouvrir les vues. Le projet est conçu dans un souci d’économie de moyen ou les éléments existants restent en place. Nous proposons de créer une maison entre deux patios qui seront les outils spatiaux pour apporter de la lumière, dégager des vues et gérer les programmes supplémentaires. Nous envisageons deux opérations de soustraction dans la masse : - nous profitons du patio qui a déjà été réalisé - nous créons un autre patio le long de l’autre limite séparative allant du salon jusqu’à l’accès sur rue. Ainsi, le salon est étendu jusqu’aux deux patios pour profiter d’un maximum de lumière alors que les espaces plus privatifs comme la salle d’activités, le bureau et la chambre avec salle d’eau viennent se loger dans l’ancien atelier largement ouvert sur les deux patios. L’entrée de la maison se situe à l’interstice là où la maison est la plus étroite. Pour accentuer, le jeu entre ouvert / fermé d’une typologie à patio, nous brouillons le rapport dedans/dehors en jouant sur des espaces accessibles, des espaces vues et des niches donnant une épaisseur aux parois vitrées.

Catégorie Bâtiment / logement
Numéro de projet230
Date de candidature13/03/2018

Bâtiment / logement

Détail projet

Typologie de bâtiment : Extension / surélévation,Rénovation / Réhabilitation
Type de bâtiment : Logement individuel supérieur à 120 m²
Année de livraison : 2016
Surface totale du bâtiment en m² : 84
Coût total en € HT (hors foncier, hors VRD, hors honoraires) : 254000
Lot bois n°1 concerné : Charpente bois
Coût du lot bois n°1 - € HT : 29655
Lot bois n°2 concerné : Aucun
Bois Français : non

Structure bois du bâtiment

Structure verticale :

ProduitEssenceProvenances (lieu de croissance du bois)Traitements de préservationMarque et certification produit
Poteau poutreDouglasFranceTraitement Classe 3b (autoclave)

Structure horizontale :

ProduitEssenceProvenances (lieu de croissance du bois)Traitements de préservationMarque et certification produit
Solivage traditionnelSapin pectinéFranceJe n'ai pas l'information

Charpente :

ProduitEssenceProvenances (lieu de croissance du bois)Traitements de préservationMarque et certification produit
Charpente traditionnelleTempéré

Revêtement bois extérieur

Revêtement bois ou dérivés :

ProduitEssenceProvenances (lieu de croissance du bois)Marque et certification produitFinitionTraitements de préservation
Lame bois massifDouglasFranceJe n'ai pas l'informationTraitement Classe 4 (autoclave)

Revêtement minéral :

Produit
Enduit ciment
Autres

Menuiserie intérieure et extérieure

Isolation des murs

Isolation intérieure des murs :

Produit
Fibre de bois (Panneaux)
Epaisseur (mm) Isolation intérieure des murs : 100

Isolation entre-montant des murs :

Produit
Fibre de bois (Panneaux)
Epaisseur (mm) Isolation entre-montant des murs : 140

Isolation de la toiture

Epaisseur (mm) Isolation intérieure de la toiture : 100

Approche environnementale : L'approche environnemental est basé sur la conservation du maximum du bâtiment existant (charpente bois + couverture bac-acier isolée). L'intervention emploie exclusivement du bois, a l'exception des fondations. Deux poutres métalliques dû à la portée. Des matériaux provenant de la filière bois ont été préconisés (isolation, ossature bois, charpente, poteaux, planchers, etc..)

Descriptif technique : - Structure bois existante (charpente). - Poteaux / poutres bois massif (extension) - Reprise charpente bois (reprise de l’existant) - Plancher bois traditionnel (extension) - Ossature bois (reprise de l'existant et extension) - Terrasse bois (extension) - Isolation laine de fibre de bois (extension et reprise de l'existant (élément par élément rt2012)) - Chauffage électrique - Menuiseries extérieurs aluminium (extension) - Finition intérieures parquet de l'extension (massif et contre-collé) et carrelage - Escalier intérieur en bois contre-plaqué marine et béton (extension)

Chauffage au Bois : non
Données déclaratives

Acteurs du projet

Etudes et ingénieries (3)

Maître d'œuvre - Architecte mandataire

OVERCODE architecture urbanisme (93)

Bureau d'études structure bois

TradiCad (75)
TradiCad (75)

Entreprises des lots bois (2)

Charpentier

LISANDRE (92)

Constructeur bois

LISANDRE (92)




* : L'entreprise n'est plus active
Retour à la liste