Réhabiliter un équipement
Réhabiliter un équipement

Médiathèque de Forcalquier

04300 Forcalquier - Alpes de haute provence - Provence Alpes Côte d'Azur

BÂTIMENT / LOGEMENT

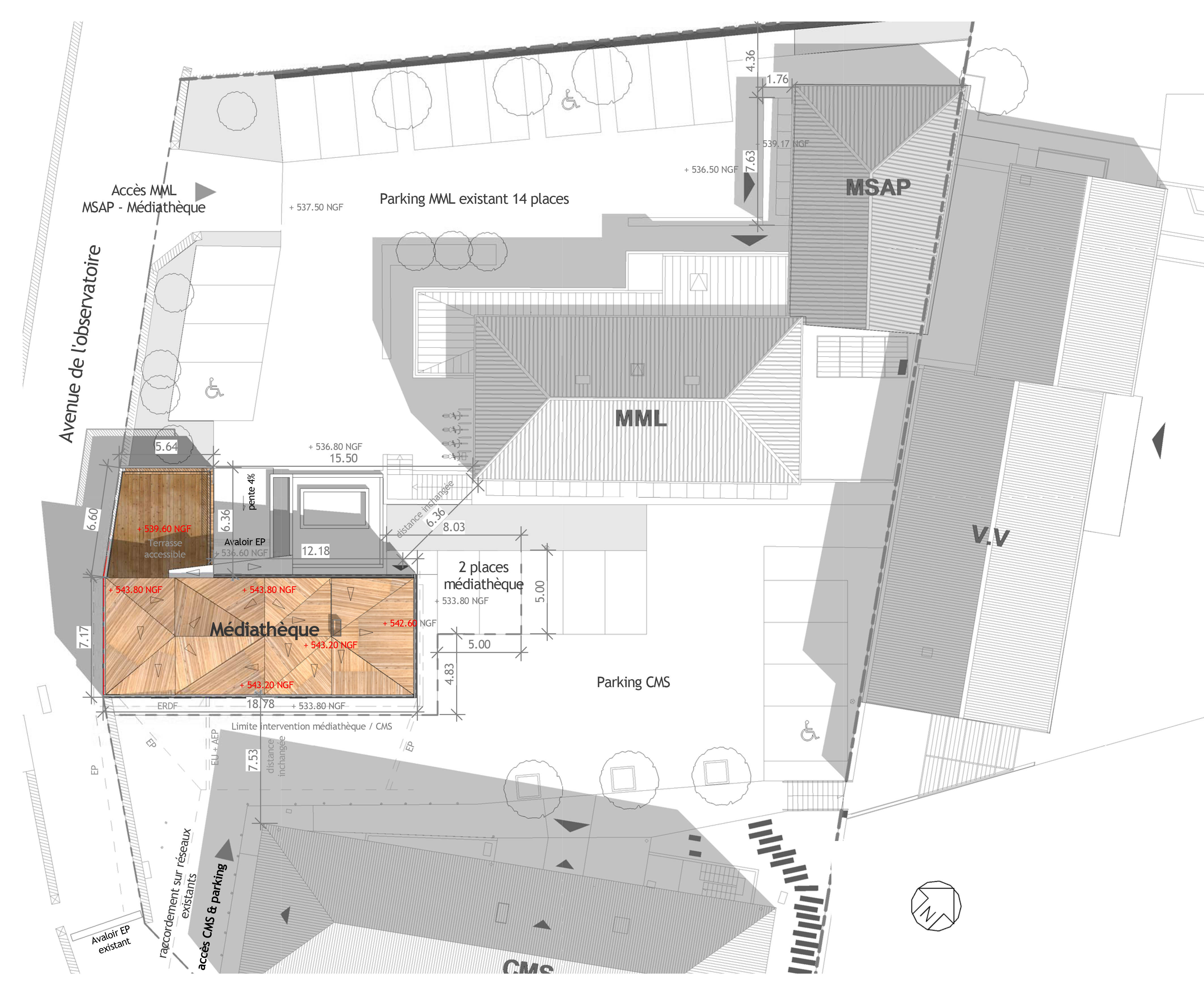
L’ancienne capitainerie de gendarmerie de Forcalquier a été entièrement rénovée et surélevée pour y implanter la médiathèque intercommunale. Le bâtiment existant ( un étage sur garage) a été profondément remanié afin d’offrir trois niveaux de plateaux libres. En lieu et place d'une toiture tuiles avec combles perdus ,un étage habitée est construit ,la surélévation prenant la forme d'une toiture dynamique en bois et permettant un lien doux avec les bâtiments du quartier et les collines adjacentes. Elle marque de manière forte et significative le caractère public du bâtiment au centre d'un nouveau quartier de la ville regroupant d'autres équipements

Catégorie Bâtiment / logement
Numéro de projet3942
Adresse du projet Avenue de l'Observatoire
04300 Forcalquier
Date de candidature14/01/2020

Bâtiment / logement

Détail projet

Typologie de bâtiment : Extension / surélévation
Type de bâtiment : Service institutionnel et public
Année de livraison : 2019
Surface totale du bâtiment en m² : 313
Coût total en € HT (hors foncier, hors VRD, hors honoraires) : 860000
Lot bois n°1 concerné : Charpente bois
Volume lot bois n°1 - m³ : 39
Coût du lot bois n°1 - € HT : 194986
Bois Français : oui
Isolations biosourcées (préciser dans le descriptif technique) : oui
Finitions intéreures biosourcées ou géosourcées (préciser dans le descriptif technique) : non

Structure bois du bâtiment

Structure verticale :

ProduitEssenceProvenances (lieu de croissance du bois)Traitements de préservationMarque et certification produit
Panneau ossature boisDouglasProvence-Alpes-Côte-d'AzurTraitement Classe 3a (trempage)

Structure horizontale :

ProduitEssenceProvenances (lieu de croissance du bois)Traitements de préservationMarque et certification produit
Plancher béton

Charpente :

ProduitEssenceProvenances (lieu de croissance du bois)Traitements de préservationMarque et certification produit
Charpente bois lamellé-colléDouglasProvence-Alpes-Côte-d'AzurTraitement Classe 3a (trempage)

Revêtement bois extérieur

Revêtement bois ou dérivés :

ProduitEssenceProvenances (lieu de croissance du bois)Marque et certification produitFinitionTraitements de préservation
Lame bois massifDouglasProvence-Alpes-Côte-d'AzurSaturateurTraitement Classe 3a (trempage)

Revêtement minéral :

Produit
Enduit chaux

Autre revêtement métallique :

Produit
Zinc

Menuiserie intérieure et extérieure

Isolation des murs

Isolation intérieure des murs :

Produit
Fibre de bois (Panneaux)
Epaisseur (mm) Isolation intérieure des murs : 100

Isolation entre-montant des murs :

Produit
Fibre de bois (Panneaux)
Epaisseur (mm) Isolation entre-montant des murs : 145

Isolation de la toiture

Epaisseur (mm) Isolation intérieure de la toiture : 100
Epaisseur (mm) Isolation entre-montant de la toiture : 220

Approche environnementale : - Construction mixte maçonnerie-ossature bois - Isolant matériaux naturels - Raccordement sur chaufferie bois collective - brises soleils dans bow windows rentrants - optimisation de l'emprise ( 40% de surface en plus de plancher) sans modification de la hauteur au faitage. - isolation par l’extérieur pour la partie en maçonnerie conservée - création d'une terrasse de lecture extérieure

Descriptif technique : La partie existante et conservée de l’ancienne capitainerie ainsi que la chaufferie bois en R-1 et RDC sont en maçonnerie isolée par l’extérieur. Les menuiseries et les brises soleil orientables extérieurs sont en aluminium. Les murs de l'étage sont en ossature bois. La toiture est composée de facettes triangulaires créant un origami en charpente bois. Côté intérieur les caissons sont fermés par des panneaux trois plis et côté extérieur une ombrière en lames de bois non jointives en sur-toiture recouvre l'ensemble. Cette sur-toiture permet de limiter l'apport de chaleur en été, de protéger l'étanchéité, de masquer les descentes pluviales et de créer un effet coque unifiant murs et toiture. Bois des Alpes

Chauffage au Bois : oui
Appareil de chauffage au bois : Chaudière
Données déclaratives

Acteurs du projet

Maître d'ouvrage (1)

Maître d'ouvrage - État ou collectivité (locale et territ)

Communauté de communes Pays de Forcalquier-Montagne de Lure (04)

Etudes et ingénieries (4)

Maître d'œuvre - Architecte mandataire

R+4 architectes (04)

Bureau d'études structure bois

E.TECH. BOIS (05)

Bureau d'études thermique

ADRET BUREAU D'ETUDES (05)

Economiste

Bureau d'études NOEL (05)

Entreprises des lots bois (1)

Charpentier

Les ARBres BÂTisseurS - SCOP ARBÂTS (04)




* : L'entreprise n'est plus active
Retour à la liste