Travailler – accueillir

Ateliers charpentier et bureaux

72510 Requeil - Sarthe - Pays de la Loire
Finaliste national
Lauréat régional
Lauréat national

BÂTIMENT / LOGEMENT

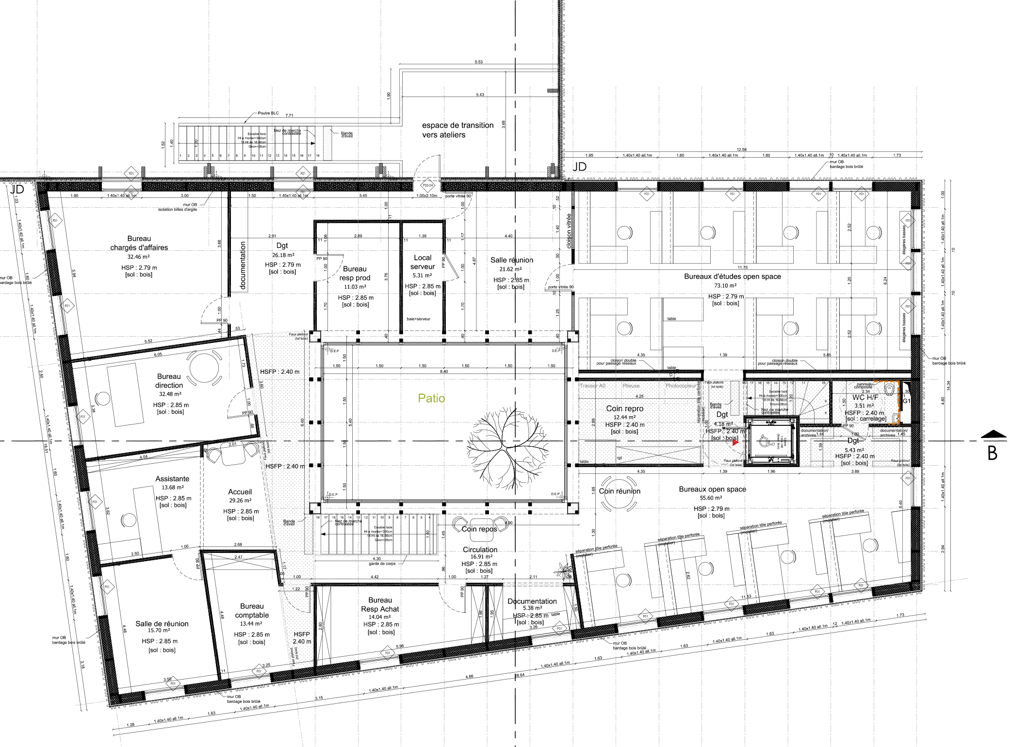
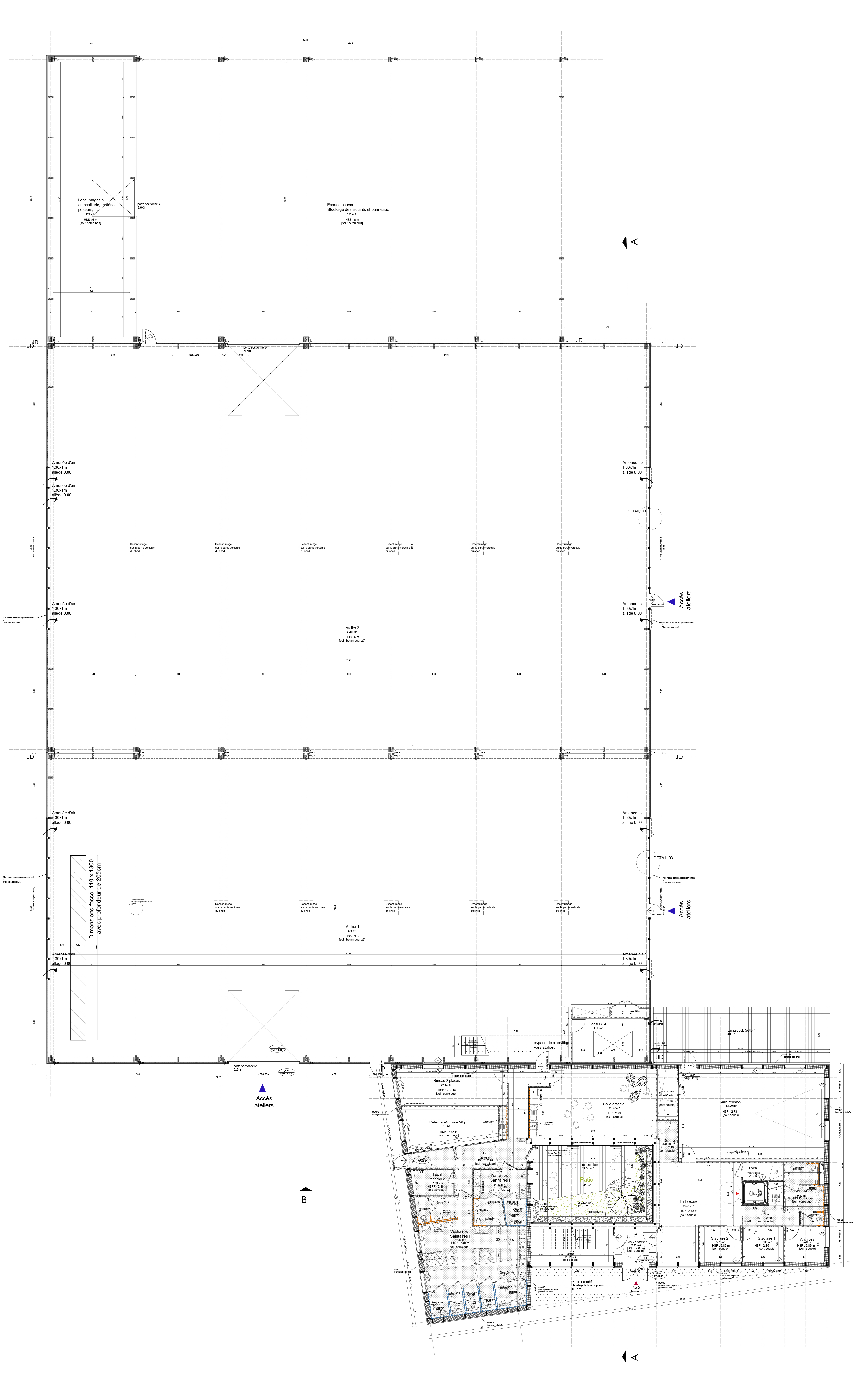
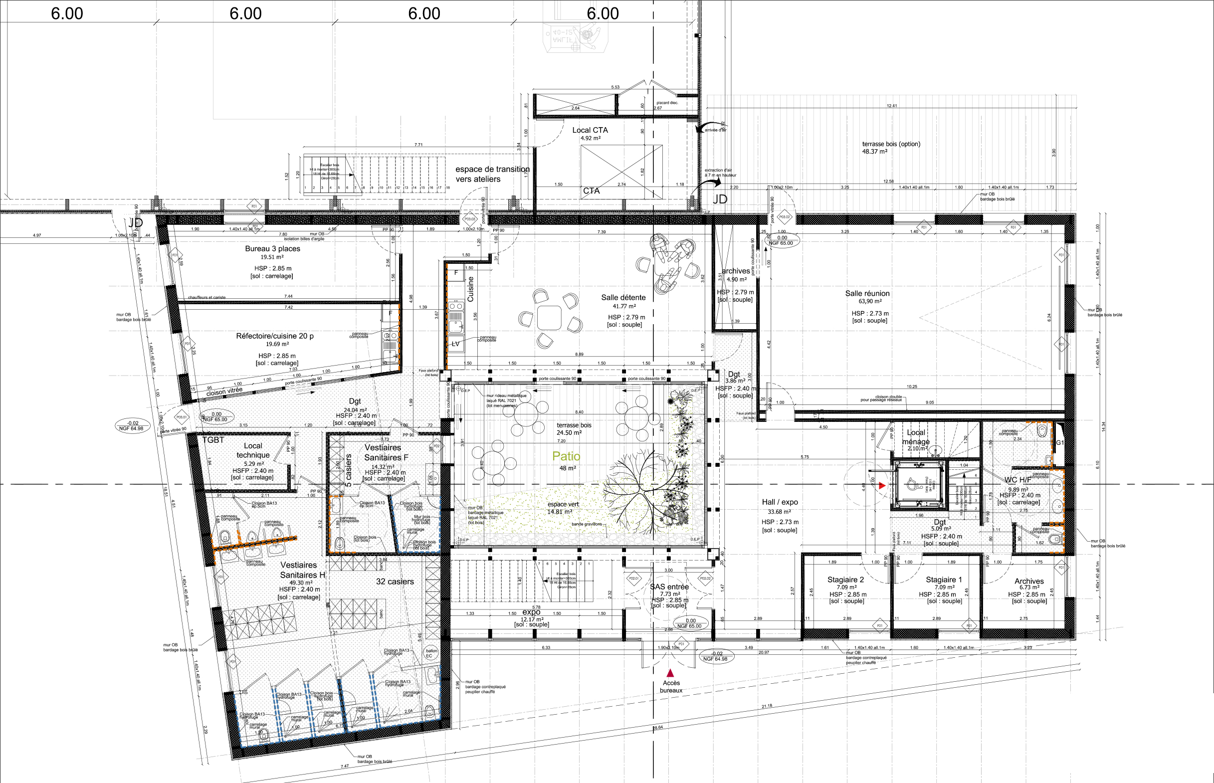
Programme : bureaux 718m², ateliers 2076m² et annexes 796m². Les ateliers bénéficient d’un éclairage naturel par les façades N et S, ainsi que par les sheds orientés N, qui donnent une image caractéristique, identifiable. Le langage commun entre bureaux et ateliers est donné par le dessin du profil de la façade Nord, par le dessin rythmé du bardage extérieur, inspiré par l’image des arbres existants. Une emprise est gardée sur la façade N (facilement démontable ) pour une future extension. La structure des ateliers est imaginée par modules, pour qu’elle puisse être répétée sans soucis.

Catégorie Bâtiment / logement
Numéro de projet5831
Adresse du projet ZA Belle Croix
72510 Requeil
Date de candidature28/01/2021
Récompense1er prix

Bâtiment / logement

Détail projet

Typologie de bâtiment : Neuf
Type de bâtiment : Lieu d'entreprise
Année de livraison : 2020
Surface totale du bâtiment en m² : 2792
Coût total en € HT (hors foncier, hors VRD, hors honoraires) : 2847447
Volume lot bois n°1 - m³ : 450
Coût du lot bois n°1 - € HT : 2438679
Volume lot bois n°2 - m³ : 2
Coût du lot bois n°2 - € HT : 54775
Bois Français : oui
Isolations biosourcées (préciser dans le descriptif technique) : oui
Finitions intéreures biosourcées ou géosourcées (préciser dans le descriptif technique) : oui

Structure bois du bâtiment

Structure verticale :

ProduitEssenceProvenances (lieu de croissance du bois)Traitements de préservationMarque et certification produit
Panneau ossature boisÉpicéa communFranceTraitement Classe 2 (trempage)

Structure horizontale :

ProduitEssenceProvenances (lieu de croissance du bois)Traitements de préservationMarque et certification produit
Dalle boisÉpicéa communFranceTraitement Classe 2 (trempage)

Charpente :

ProduitEssenceProvenances (lieu de croissance du bois)Traitements de préservationMarque et certification produit
Charpente traditionnelleÉpicéa communFranceTraitement Classe 2 (trempage)

Revêtement bois extérieur

Revêtement bois ou dérivés :

ProduitEssenceProvenances (lieu de croissance du bois)Marque et certification produitFinitionTraitements de préservation
Bardeau boisDouglasFranceBois brulé

Menuiserie intérieure et extérieure

Isolation des murs

Isolation intérieure des murs :

Produit
Laine de bois souple
Epaisseur (mm) Isolation intérieure des murs : 80

Isolation extérieure des murs :

Produit
Laine de bois souple
Epaisseur (mm) Isolation extérieure des murs : 145

Isolation de la toiture

Epaisseur (mm) Isolation extérieure de la toiture : 36

Approche environnementale : Utilisation du bois brûlé en façades pour la pérennité et l’utilisation du bois local, sans traitement chimique = stabilité d’aspect + grande longévité. La toiture: étanchéité type membrane couleur gris clair=la toiture se réchauffe moins. Contreplaqué de peuplier: essence locale (l’ent Drouin est à 50 km du chantier). Le projet détient le label Bâtiment Bas Carbone niveau Performance grâce aux choix constructifs : l’ensemble du bâtiment est en bois (sauf fondations) et les isolants des parois verticales et des planchers sont biosourcés (fibre de bois, ouate de cellulose et billes d’argile).

Descriptif technique : Bureaux Les parois porteuses et contreventantes: caissons avec ouate de cellulose ou billes d'argile (mur acoustique contre les ateliers). Contreplaqué peuplier à l'intérieur Planchers et toitures : poutres composées tramées 75x75cm + plafond en contreplaqué peuplier. Les gaines et câbles sont intégrés, rien n’est visible. Ateliers Struct en fermes triangulées de bois massif de portée 28 et 21m. Trame de 6m Les poteaux sont composés de trois bois massifs : la partie centrale s'écarte vers le haut pour accueillir le rail du pont roulant. Les fermes: éclairage et ventilation par convection

Chauffage au Bois : oui
Appareil de chauffage au bois : Chaudière
Certifications, labels et marques bâtiment : Bâtiment Bas Carbone (BBCA),Origine France Garantie (OFG),Bois de France
Données déclaratives

Acteurs du projet

Maître d'ouvrage (1)

Maître d'ouvrage - État ou collectivité (locale et territ)

Communauté de Communes Sud Sarthe (72)

Etudes et ingénieries (5)

Maître d'œuvre - Architecte mandataire

ATELIER NAO (38) *

Bureau d'études structure bois

ATELIER NAO (38) *

Bureau d'études thermique

Blin Ingénierie (72)

Economiste

Carré D'Aire - Bouttier & Associés (72)

Designer / architecte d'intérieur

Autre Territoire (72)

Entreprises des lots bois (2)

Charpentier

Charpente Cénomane Sarl (72)

Menuisier

Charpente Cénomane Sarl (72)

Fournisseurs du bois (6)

Industriel

Drouin Sas (72)
SCHILLIGER BOIS (68)
ORLO (35)
Etablissement Gastebois (27)
COSYLVA (23)
A.JAMES (SAEA) (50)




* : L'entreprise n'est plus active
Retour à la liste