Habiter une maison
Habiter une maison

Maison des Hautes Vosges

88400 GERARDMER - Vosges - Grand Est

BÂTIMENT / LOGEMENT

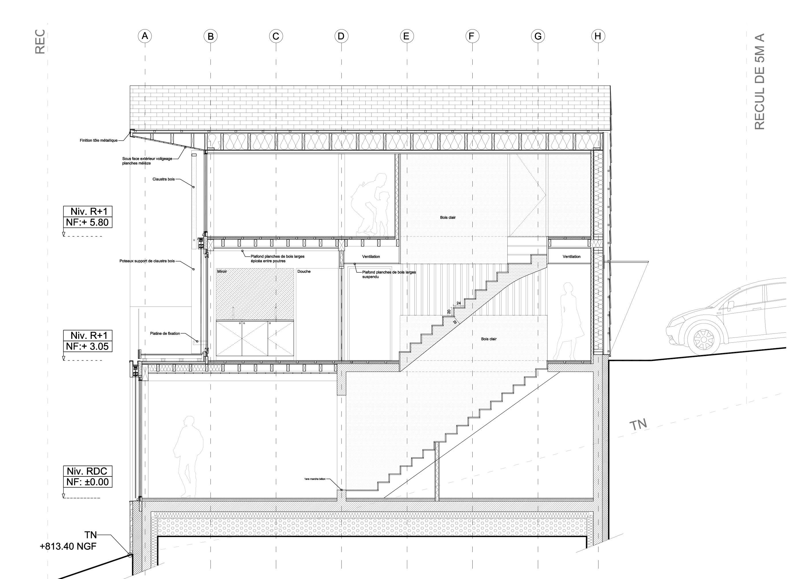
Le projet réinterprète la « ferme vosgienne d'altitude » : le volume est massif, encastré dans la pente et tourne son pignon vers le paysage. Avec une vue pareille, on vitre tout. Comment faire autrement ? On entre en haut, côté chemin, à l’étage des chambres, comme on rentre le foin. La pièce de vie est en bas au niveau du jardin. Le bâtiment annexe est une réduction du volume principal. Contrer le modèle actuel de la maison de montagne : "rusticité pastiche" à base de faux vieux matériaux et de formes complexes torturées. Comment réinventer une "rusticité" contemporaine et élégante ?

Catégorie Bâtiment / logement
Numéro de projet7112
Date de candidature09/03/2022

Bâtiment / logement

Détail projet

Typologie de bâtiment : Neuf
Type de bâtiment : Logement individuel supérieur à 120 m²
Année de livraison : 2021
Surface totale du bâtiment en m² : 205
Coût total en € HT (hors foncier, hors VRD, hors honoraires) : 730000
Lot bois n°1 concerné : Charpente bois
Coût du lot bois n°1 - € HT : 204000
Lot bois n°2 concerné : Menuiserie intérieure bois
Coût du lot bois n°2 - € HT : 202000
Bois Français : oui
Isolations biosourcées (préciser dans le descriptif technique) : oui
Matériaux géosourcés (préciser dans le descriptif technique) : non
Finitions intéreures biosourcées ou géosourcées (préciser dans le descriptif technique) : oui

Structure bois du bâtiment

Structure verticale :

ProduitEssenceProvenances (lieu de croissance du bois)Traitements de préservationMarque et certification produit
Panneau ossature bois, Poteau poutreÉpicéa communGrand-EstAucun traitement

Structure horizontale :

ProduitEssenceProvenances (lieu de croissance du bois)Traitements de préservationMarque et certification produit
Solivage traditionnelÉpicéa communGrand-EstAucun traitement

Charpente :

ProduitEssenceProvenances (lieu de croissance du bois)Traitements de préservationMarque et certification produit
Caisson de toitureÉpicéa communGrand-EstAucun traitement

Revêtement bois extérieur

Revêtement bois ou dérivés :

ProduitEssenceProvenances (lieu de croissance du bois)Marque et certification produitFinitionTraitements de préservation
Bardeau boisWestern red cedar (Thuya géant)AmériqueAucun traitement

Revêtement minéral :

Produit
Pierre collée

Menuiserie intérieure et extérieure

Menuiserie extérieure :

ProduitEssenceProvenances (lieu de croissance du bois)Marque et certification produitFinition
Menuiserie bois, Menuiserie mixteMélèzeGrand-EstSaturateur

Isolation des murs

Isolation intérieure des murs :

Produit
Fibre de bois (Panneaux)
Epaisseur (mm) Isolation intérieure des murs : 200

Isolation entre-montant des murs :

Produit
Fibre de bois (Panneaux)
Epaisseur (mm) Isolation entre-montant des murs : 200

Isolation de la toiture

Epaisseur (mm) Isolation entre-montant de la toiture : 300

Approche environnementale : L'architecture contemporaine prend un nouveau virage qui s'inspire des récentes évolutions des univers de l'agriculture ou de la gastronomie par exemple. Faire du bio et de la basse énergie : c'est bien et incontournable. Mais en plus il s'agit d'utiliser des ingrédients cultivés et produits localement, à la bonne saison, transformés de la bonne manière, avec authenticité. Ce qui apporte aussi une belle touche de poésie et de sens au plat ou à l'architecture qui en résulte (et valorise une économie rurale de proximité).

Descriptif technique : Bois gris dehors, bois blond dedans. Pas de Placo ! Tout est en bois, finition en épicéa des Vosges de la scierie Gaiffe : de la planche (et non pas du panneau industriel) Les revêtements minéraux sont en pierre de Bourgogne (Massangis) et les aménagements extérieurs en granit des Vosges Travailler en filière courte, dans l'objectif de valoriser (magnifier) nos ressources locales : ressources en termes de matières et de savoir-faire.

Chauffage au Bois : oui
Appareil de chauffage au bois : Poële/insert
Données déclaratives

Acteurs du projet

Maître d'ouvrage (1)

Maître d'ouvrage - Particuliers

particulier (x)

Etudes et ingénieries (4)

Maître d'œuvre - Architecte mandataire

Christophe AUBERTIN - Studiolada Architectes (54)

Maître d’œuvre - Architecte collaborateur

Studiolada Architectes (54)

Bureau d'études thermique

TERRANERGIE (88)

Designer / architecte d'intérieur

DU CIMENT SOUS LES PLAINES (54)

Entreprises des lots bois (3)

Charpentier

ACMB ATELIERS DE CONSTRUCTION MAISONS BOIS PETITDEMANGE (88)

Menuisier

ACMB ATELIERS DE CONSTRUCTION MAISONS BOIS PETITDEMANGE (88)

Autre lot de la construction (en lien avec le bois)

MENUISERIE LECOMTE (88)

Fournisseurs du bois (1)

Scierie

ETABLISSEMENTS GAIFFE (88)




* : L'entreprise n'est plus active
Retour à la liste