Habiter une maison
Habiter une maison

La ritournelle, maison autour d'un poele de masse

68380 MUHLBACH SUR MUNSTER - Haut Rhin - Grand Est

BÂTIMENT / LOGEMENT

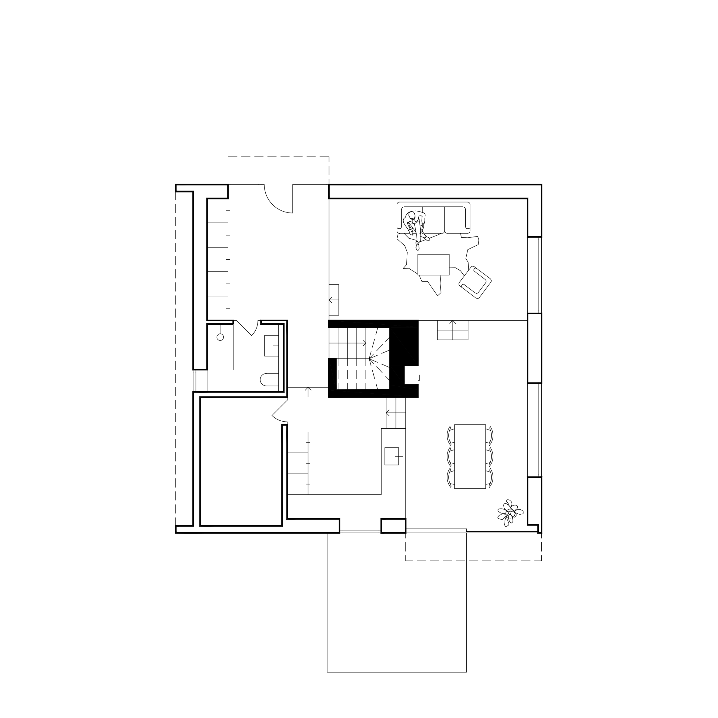
Face au massif du Petit Ballon, la maison propose ses tableaux. Ses larges fenêtres sont à l'échelle du paysage, les autres sont domestiques. Le projet s'inscrit dans un terrain en forte pente, bouleversé au minimum. Les parties en contact avec le sol sont en béton sur lequel vient s'élever la charpente bois ainsi protégée. Tel un continuum spatial, les espaces de vie profitent du volume, de la lumière et des vues les uns les autres sans tout dévoiler. Les espaces, le poêle de masse et les paysages s'exposent au fur et à mesure de la déambulation.

Catégorie Bâtiment / logement
Numéro de projet7404
Date de candidature26/01/2023

Bâtiment / logement

Détail projet

Typologie de bâtiment : Neuf
Type de bâtiment : Logement individuel supérieur à 120 m²
Année de livraison : 2022
Surface totale du bâtiment en m² : 130
Coût total en € HT (hors foncier, hors VRD, hors honoraires) : 375000
Volume lot bois n°1 - m³ : 27
Coût du lot bois n°1 - € HT : 90000
Bois Français : oui
Matériaux issus du ré-emploi (préciser dans le descriptif technique) : non
Isolations biosourcées (préciser dans le descriptif technique) : oui
Matériaux géosourcés (préciser dans le descriptif technique) : non
Finitions intéreures biosourcées ou géosourcées (préciser dans le descriptif technique) : oui

Structure bois du bâtiment

Structure verticale :

ProduitEssenceProvenances (lieu de croissance du bois)Traitements de préservationMarque et certification produit
Panneau ossature boisGrand-EstJe n'ai pas l'information

Structure horizontale :

ProduitEssenceProvenances (lieu de croissance du bois)Traitements de préservationMarque et certification produit
Solivage traditionnelGrand-EstJe n'ai pas l'information

Charpente :

ProduitEssenceProvenances (lieu de croissance du bois)Traitements de préservationMarque et certification produit
Caisson de toitureGrand-EstJe n'ai pas l'information

Revêtement bois extérieur

Revêtement bois ou dérivés :

ProduitEssenceProvenances (lieu de croissance du bois)Marque et certification produitFinitionTraitements de préservation
Lame bois massifDouglasGrand-EstAucune finitionJe n'ai pas l'information

Menuiserie intérieure et extérieure

Menuiserie intérieure :

ProduitEssenceProvenances (lieu de croissance du bois)FinitionMarque et certification produit
MobilierFrêneGrand-EstHuileOrigine France Garantie
ParquetChêneBourgogne-Franche-ComtéHuileOrigine France Garantie
Panneau massif d'agencementÉpicéa communGrand-EstPeinture
EscalierÉpicéa communGrand-EstHuile

Menuiserie extérieure :

ProduitEssenceProvenances (lieu de croissance du bois)Marque et certification produitFinition
Menuiserie boisPin sylvestreEuropeHuile

Isolation des murs

Isolation entre-montant des murs :

Produit
Epaisseur (mm) Isolation entre-montant des murs : 380

Isolation extérieure des murs :

Produit
Fibre de bois (Panneaux)
Epaisseur (mm) Isolation extérieure des murs : 40

Isolation de la toiture

Epaisseur (mm) Isolation entre-montant de la toiture : 400

Approche environnementale : La maison est guidée par une approche low-tech. L'isolation, l'étanchéité à l'air optimale et une petite ventilation double flux sont les seuls éléments techniques. La maison est uniquement chauffée par les apports solaires des grandes fenêtres orientées Sud et par son poêle de masse de plus de 2 tonnes. Il perpétue la tradition ancestrale alsacienne des Kachelofen. Avec sa faïence au bleu profond, il réchauffe le plus transit des corps et illumine la plus sombre des nuits.

Descriptif technique : Le plancher bas s'échelonne sur 4 niveaux en fonction du terrain naturel. Ces niveaux définissent 4 espaces, l'entrée, le séjour, la salle-à-manger et la cuisine. Ils tournent autour d'une verticalité centrale maçonnée qui accueille l'escalier et le poêle de masse. Centralité géométrique, c'est le cœur du foyer au propre comme au figuré. Cet élément participe à l'inertie de la maison contrebalançant la légèreté des façades et contreventant l'ensemble de la charpente bois. L'agencement des solives supportant le plancher intermédiaire continue la logique de rotation initiée par les 4 espaces principaux. Elles viennent prendre appui par paume et queue d'aronde sur 4 muralières de dimension supérieure qui accentuent la division des espaces, formant un enchevêtrement indéformable.

Performance du bâtiment (Cep en kWhep/m²/an) : 25
Chauffage au Bois : oui
Appareil de chauffage au bois : Poële/insert
Données déclaratives

Acteurs du projet

Maître d'ouvrage (1)

Maître d'ouvrage - Particuliers

particulier (x)

Etudes et ingénieries (2)

Maître d'œuvre - Architecte mandataire

DRATLER DUTHOIT (67)

Bureau d'études thermique

TERRANERGIE (88)

Entreprises des lots bois (3)

Charpentier

FRITSCH SARL (68)

Menuisier

GRIS BOIS (67)

Autre lot de la construction (en lien avec le bois)

Feu & Masse (90)




* : L'entreprise n'est plus active
Retour à la liste