Travailler – accueillir
Travailler – accueillir

Providence

29000 QUIMPER - Finistère - Bretagne

BÂTIMENT / LOGEMENT

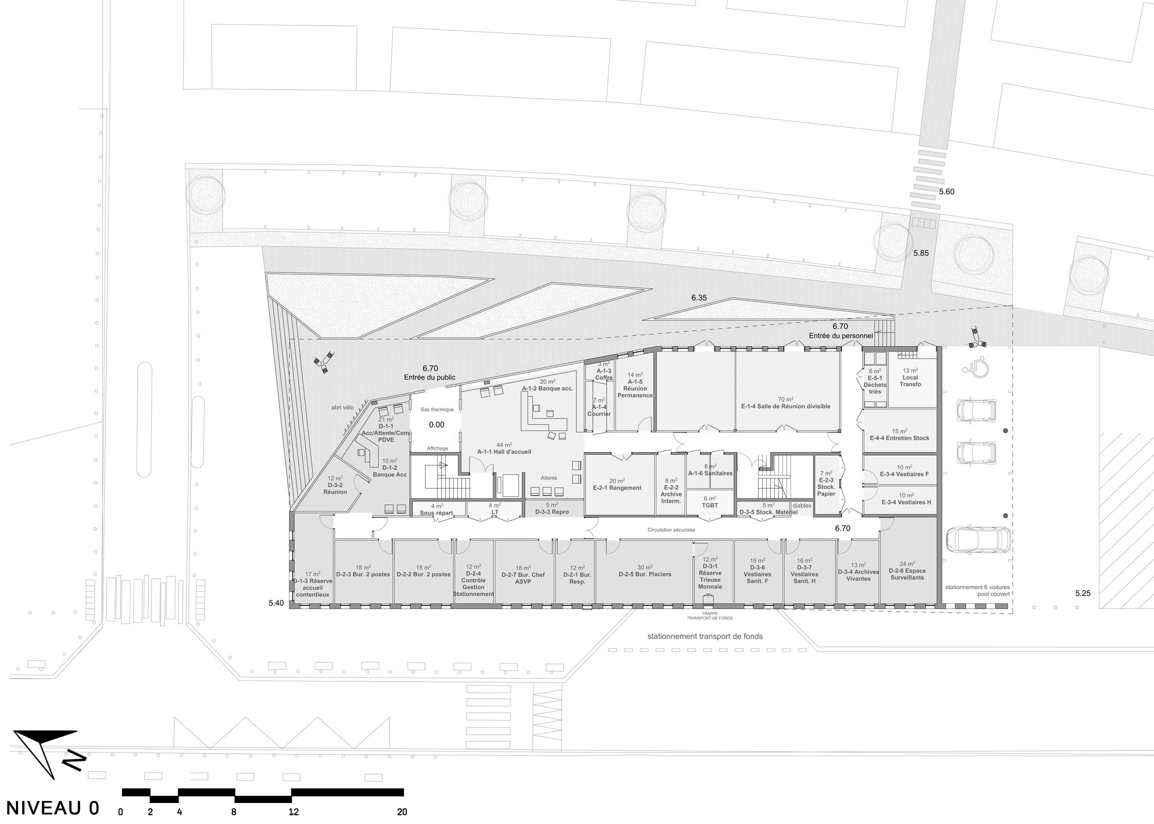
La volumétrie du projet vise à une intégration harmonieuse dans l'environnement bâti, avec une distinction de traitement entre la façade Ouest sur rue, très tramée, mais aussi animée par un effet de « décroché » aux niveaux R+1 et R+2, et la façade Est côté Steïr, dont le RDC se démarque nettement par un jeu de porche formé par le porte-à-faux des niveaux R+1 et R+2. L’impression recherché est celle d'un bâtiment sobre, harmonieux et intégré dans son environnement. Le parement mis en œuvre sur le volume principal rappelle la pierre : il s'agit d'un parement minéral composite. Le RDC côté entrée est rythmé par des lames verticales en bois massif, assurant brise soleil et offrant une homogénéité de traitement sur la façade tournée vers le public.

Catégorie Bâtiment / logement
Numéro de projet7732
Adresse du projet 29000 QUIMPER
Date de candidature27/02/2023

Bâtiment / logement

Détail projet

Typologie de bâtiment : Neuf
Type de bâtiment : Service institutionnel et public
Année de livraison : 2023
Surface totale du bâtiment en m² : 2720
Coût total en € HT (hors foncier, hors VRD, hors honoraires) : 4465000
Lot bois n°1 concerné : Charpente bois,Bardage bois,ossature bois
Volume lot bois n°1 - m³ : 198
Coût du lot bois n°1 - € HT : 1600000
Lot bois n°2 concerné : Menuiserie intérieure bois
Coût du lot bois n°2 - € HT : 360000
Bois Français : oui
Matériaux issus du ré-emploi (préciser dans le descriptif technique) : non
Isolations biosourcées (préciser dans le descriptif technique) : oui
Matériaux géosourcés (préciser dans le descriptif technique) : non
Finitions intéreures biosourcées ou géosourcées (préciser dans le descriptif technique) : non

Structure bois du bâtiment

Structure verticale :

ProduitEssenceProvenances (lieu de croissance du bois)Traitements de préservationMarque et certification produit
Poteau poutre

Structure horizontale :

ProduitEssenceProvenances (lieu de croissance du bois)Traitements de préservationMarque et certification produit
Plancher béton

Charpente :

ProduitEssenceProvenances (lieu de croissance du bois)Traitements de préservationMarque et certification produit
Caisson de toiture

Revêtement bois extérieur

Revêtement bois ou dérivés :

ProduitEssenceProvenances (lieu de croissance du bois)Marque et certification produitFinitionTraitements de préservation
Bardeau boisDouglasBretagneJe n'ai pas l'informationSaturateurTraitement Classe 3b (autoclave)

Revêtement minéral :

Produit
Autres

Menuiserie intérieure et extérieure

Menuiserie extérieure :

ProduitEssenceProvenances (lieu de croissance du bois)Marque et certification produitFinition
Menuiserie mixteTempéréPays-de-la-LoireJe n'ai pas l'informationJe n'ai pas l'information

Isolation des murs

Isolation entre-montant des murs :

Produit
Laine de roche
Epaisseur (mm) Isolation entre-montant des murs : 145

Isolation extérieure des murs :

Produit
Laine de roche
Epaisseur (mm) Isolation extérieure des murs : 60

Isolation de la toiture

Epaisseur (mm) Isolation intérieure de la toiture : 60
Epaisseur (mm) Isolation entre-montant de la toiture : 360

Approche environnementale : De conception bioclimatique et passive, le bâtiment : - limite son impact sur l’environnement (bâtiment existant, lutter contre l’étalement urbain) - réduit les déperditions énergétiques (enveloppe performante : isolation renforcée et étanchéité à l’air) - une orientation sud-ouest permettant de capter des apports solaires passifs - bénéficie de finitions intérieures biosourcées (structure, aménagements et plafonds acoustiques bois, colles et peintures sans COV, isolation des cloisons en laine de tissu recyclé)

Descriptif technique : Le bâtiment est construit majoritairement en bois : - Murs : ossature bois avec isolation intégrée - Structure principale en béton apportant de l'inertie - Charpente bois - CTA double-flux à haut rendement permettant de réguler parfaitement la qualité de l’air intérieur tout en limitant les déperditions thermiques - Menuiseries mixtes bois-alu

Performance du bâtiment (Cep en kWhep/m²/an) : 15
Chauffage au Bois : non
Certifications, labels et marques bâtiment : Passivhaus
Données déclaratives

Acteurs du projet

Maître d'ouvrage (1)

Maître d'ouvrage - Services publics

COMMUNE DE QUIMPER (29)

Etudes et ingénieries (6)

Maître d'œuvre - Architecte mandataire

BRULE ARCHITECTES ASSOCIES (29)

Bureau d'études acoustique

ALHYANGE BRETAGNE SUD (44)

Bureau d'études structure bois

SOFRESID ENGINEERING SA - Etablissement de Brest (29)

Bureau d'études environnement

Batitherm Conseils (29)

Bureau d'études thermique

Batitherm Conseils (29)

Economiste

TPF INGÉNIERIE - QUIMPER (29) *

Entreprises des lots bois (3)

Charpentier

Cruard Charpente Et Construction Bois (53)

Menuisier

Cruard Charpente Et Construction Bois (53)

Autre lot de la construction (en lien avec le bois)

LAUTRIDOU PIERRE (29)

Fournisseurs du bois (3)

Scierie

ORLO (35)

Industriel

Piveteau Bois (85)
Bignon (53)




* : L'entreprise n'est plus active
Retour à la liste