Travailler – accueillir
Travailler – accueillir

Centre Technique pour les Agents de la Voirie à Rosny-sous-Bois

93110 ROSNY SOUS BOIS - Seine Saint Denis - Ile de France

BÂTIMENT / LOGEMENT

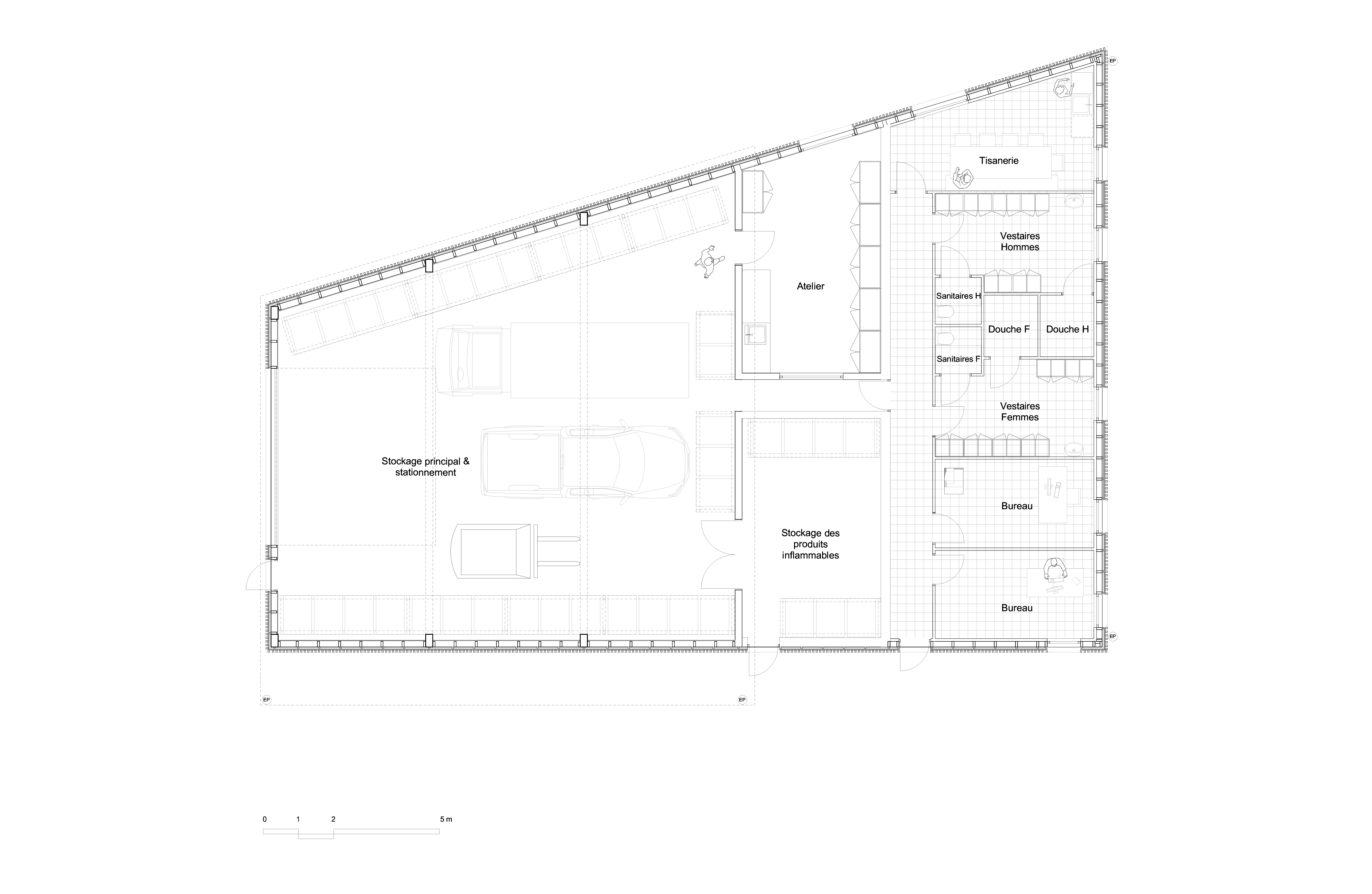
Le projet s’implante sur le plateau d’Avron connu historiquement pour ses plâtrières, comme en témoignent les carrières de gypse en sous-terrain. Celles-ci contraignant fortement l'implantation possible d'un bâtiment, en résulte une volumétrie prismatique et épurée.Une optimisation des modes de stockage a permis de proposer un bâtiment rationnel et de plain-pied. Intégré à un tissu aux identités architecturales variées, le projet offre une écriture sobre dessinant plusieurs registres complémentaires articulés autour du bois et de l'ossature structurelle comme élément principal de composition.

Catégorie Bâtiment / logement
Numéro de projet7929
Adresse du projet rue Clément Ader
93110 ROSNY SOUS BOIS
Date de candidature07/03/2023

Bâtiment / logement

Détail projet

Typologie de bâtiment : Neuf
Type de bâtiment : Service institutionnel et public
Année de livraison : 2021
Surface totale du bâtiment en m² : 350
Coût total en € HT (hors foncier, hors VRD, hors honoraires) : 600000
Volume lot bois n°1 - m³ : 350
Coût du lot bois n°1 - € HT : 163000
Bois Français : oui
Matériaux issus du ré-emploi (préciser dans le descriptif technique) : non
Isolations biosourcées (préciser dans le descriptif technique) : oui
Matériaux géosourcés (préciser dans le descriptif technique) : non
Finitions intéreures biosourcées ou géosourcées (préciser dans le descriptif technique) : non

Structure bois du bâtiment

Structure verticale :

ProduitEssenceProvenances (lieu de croissance du bois)Traitements de préservationMarque et certification produit
Panneau ossature boisÉpicéa communBourgogne-Franche-ComtéTraitement Classe 2 (trempage)

Structure horizontale :

ProduitEssenceProvenances (lieu de croissance du bois)Traitements de préservationMarque et certification produit
Plancher béton

Charpente :

ProduitEssenceProvenances (lieu de croissance du bois)Traitements de préservationMarque et certification produit
Caisson de toiture, Charpente bois lamellé-colléÉpicéa communFranceTraitement Classe 2 (trempage)

Revêtement bois extérieur

Revêtement bois ou dérivés :

ProduitEssenceProvenances (lieu de croissance du bois)Marque et certification produitFinitionTraitements de préservation
Bardeau boisDouglasFrancepré-griséTraitement Classe 3b (autoclave)

Menuiserie intérieure et extérieure

Isolation des murs

Isolation intérieure des murs :

Produit
Laine de bois souple

Isolation de la toiture

Approche environnementale : Matériaux biosourcés (structure en ossature bois et isolant laine de bois, bardage en douglas pré-grisé) performance d’étanchéité à l’air de niveau passif pour permettre un confort d’utilisation des zones de stockage sans chauffage.

Chauffage au Bois : non
Données déclaratives

Acteurs du projet

Maître d'ouvrage (1)

Maître d'ouvrage - État ou collectivité (locale et territ)

COMMUNE DE ROSNY-SOUS-BOIS (93)

Etudes et ingénieries (3)

Maître d'œuvre - Architecte mandataire

ASPHALT ARCHITECTURE ET URBANISME (75)

Bureau d'études structure bois

CBS CBT (94)

Bureau d'études thermique

WOR ingénierie (76)

Entreprises des lots bois (1)

Charpentier

Le Bâtiment Associé (51)




* : L'entreprise n'est plus active
Retour à la liste