Habiter ensemble
Habiter ensemble

Wood’Art, ZAC de la Cartoucherie

31000 TOULOUSE - Haute garonne - Occitanie
Lauréat régional
Finaliste national

BÂTIMENT / LOGEMENT

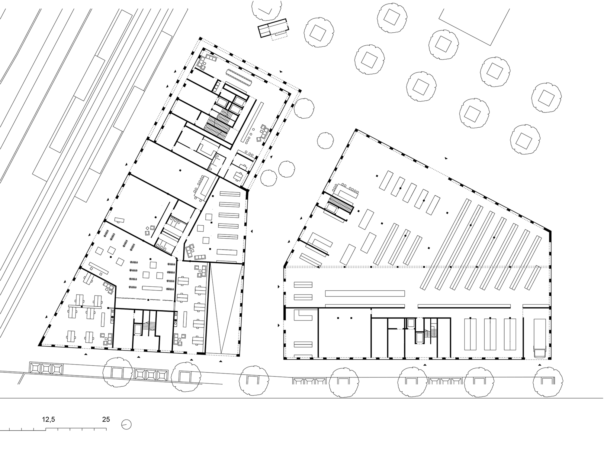
Situé dans l'écoquartier de la Cartoucherie, le projet Wood’Art est une opération mixte associant plusieurs maîtres d’ouvrage. Une tour de neuf étages abrite un hôtel et des logements. Située en bordure de la place publique et longée par l’axe du tramway, elle joue le rôle de bâtiment-signal dans le nouveau quartier. En retrait de cette tour s’élèvent deux ensembles de logements, protégés de la rue par des jardins posés sur un socle de commerces. Une rue piétonne intérieure les relie et s’élargit pour accueillir des terrasses de café.

Catégorie Bâtiment / logement
Numéro de projet8000
Adresse du projet Avenue de Grande Bretagne
ZAC La Cartoucherie
Avenue de Grande Bretagne
31000 TOULOUSE
Date de candidature08/03/2023
Récompense1er prix

Bâtiment / logement

Détail projet

Typologie de bâtiment : Neuf
Type de bâtiment : Logement collectif
Année de livraison : 2022
Surface totale du bâtiment en m² : 13000
Coût total en € HT (hors foncier, hors VRD, hors honoraires) : 20250000
Lot bois n°1 concerné : Charpente bois,Bardage bois,ossature bois,Autre lot bois
Volume lot bois n°1 - m³ : 5300
Bois Français : oui
Matériaux issus du ré-emploi (préciser dans le descriptif technique) : non
Isolations biosourcées (préciser dans le descriptif technique) : non
Matériaux géosourcés (préciser dans le descriptif technique) : non
Finitions intéreures biosourcées ou géosourcées (préciser dans le descriptif technique) : non

Structure bois du bâtiment

Structure verticale :

ProduitEssenceProvenances (lieu de croissance du bois)Traitements de préservationMarque et certification produit
Panneau de bois massif (CLT collé ou CLT cloué)TempéréFSC
Panneau de bois massif (CLT collé ou CLT cloué), Panneau ossature bois, Poteau poutre

Structure horizontale :

ProduitEssenceProvenances (lieu de croissance du bois)Traitements de préservationMarque et certification produit
Panneau de bois massif (CLT collé ou CLT cloué)
Panneau de bois massif (CLT collé ou CLT cloué)

Charpente :

ProduitEssenceProvenances (lieu de croissance du bois)Traitements de préservationMarque et certification produit
Non précisé

Revêtement bois extérieur

Revêtement bois ou dérivés :

ProduitEssenceProvenances (lieu de croissance du bois)Marque et certification produitFinitionTraitements de préservation
Bardeau bois

Revêtement minéral :

Produit
Bardeau terre cuite

Menuiserie intérieure et extérieure

Isolation des murs

Isolation de la toiture

Approche environnementale : Les jardins vallonnés, visibles depuis la place, offrent des espaces de rencontre partagés aux habitants ; ils forment une réserve de biodiversité et limitent la constitution d’îlots de chaleur. L’ensemble bâti com- prend 76 % de bois (soit 5 300 m3). Le matériau est mis en valeur là où sa mise en œuvre est la plus pertinente.

Descriptif technique : À partir du R+, hormis un noyau de circulations en béton, toute la superstructure est réalisée en préfabrication, avec des éléments en deux dimensions pour les logements et l’hôtel. Cette solution assure la réduction des déchets et la rapidité du chantier, des contraintes essentielles de la construction en ville dense. Des bardeaux de terre cuite, en écho aux traditions constructives locales, forment une double peau en façade au niveau des passerelles et des circulations de la tour et devant les loggias des logements. L’unité visuelle qui se dégage de l’architecture génère un repère emblématique pour le quartier, tandis que la diversité des espaces publics, la perméabilité des îlots et la mixité sociale et fonctionnelle des bâtiments garantissent aux usagers un environnement plein de vie.

Chauffage au Bois : non
Certifications, labels et marques bâtiment : Bâtiment Bas Carbone (BBCA),Bâtiment Biosourcé
Données déclaratives

Acteurs du projet

Maître d'ouvrage (2)

Maître d'ouvrage - Promoteurs immobiliers privés

ICADE PROMOTION (31)

Maître d'ouvrage - Industriels - commerçants - entreprise

HOTEL EKLO (77)

Etudes et ingénieries (7)

Maître d'œuvre - Architecte mandataire

DIETRICH UNTERTRIFALLER ARCHITECTES (75)

Maître d’œuvre - Architecte associé

SEUIL ARCHITECTURE (31)

Bureau d'études acoustique

GROUPE GAMBA (31)

Bureau d'études structure bois

TERRELL (31)

Bureau d'études thermique

Soconer (31)

Autre intervenant de la construction - bureau de contrôle, AMO, BIM...

SOCOTEC CONSTRUCTION (31)

Paysagiste

IDTEC-PROJETS DE VILLE (31)

Entreprises des lots bois (2)

Charpentier

MAITRE CUBE (75)

Constructeur bois

MAITRE CUBE (75)




* : L'entreprise n'est plus active
Retour à la liste